4.9
Рейтинг на основании 120 отзывов
Дмитров
Опорный проезд 28Б
(индустриальный парк Ниагара)
Бренд "Дмитров-Дело" c 2008 года на рынке строительства в Дмитрове
Звоните 9:00 до 18:00 8 (915) 055-33-61
Бренд "Дмитров-Дело" c 2008 года на рынке строительства в Дмитрове

Одноэтажный дом КД-32 с террасой и крыльцом

Стоимость проекта от:
45 900 ₽
Стоимость строительства от:
5 912 940 ₽
Артикул ART-10333
Дата 25.12.2025
Архитектурный стиль Классический
Количество надземных этажей 1
Круглогодичное проживание Да
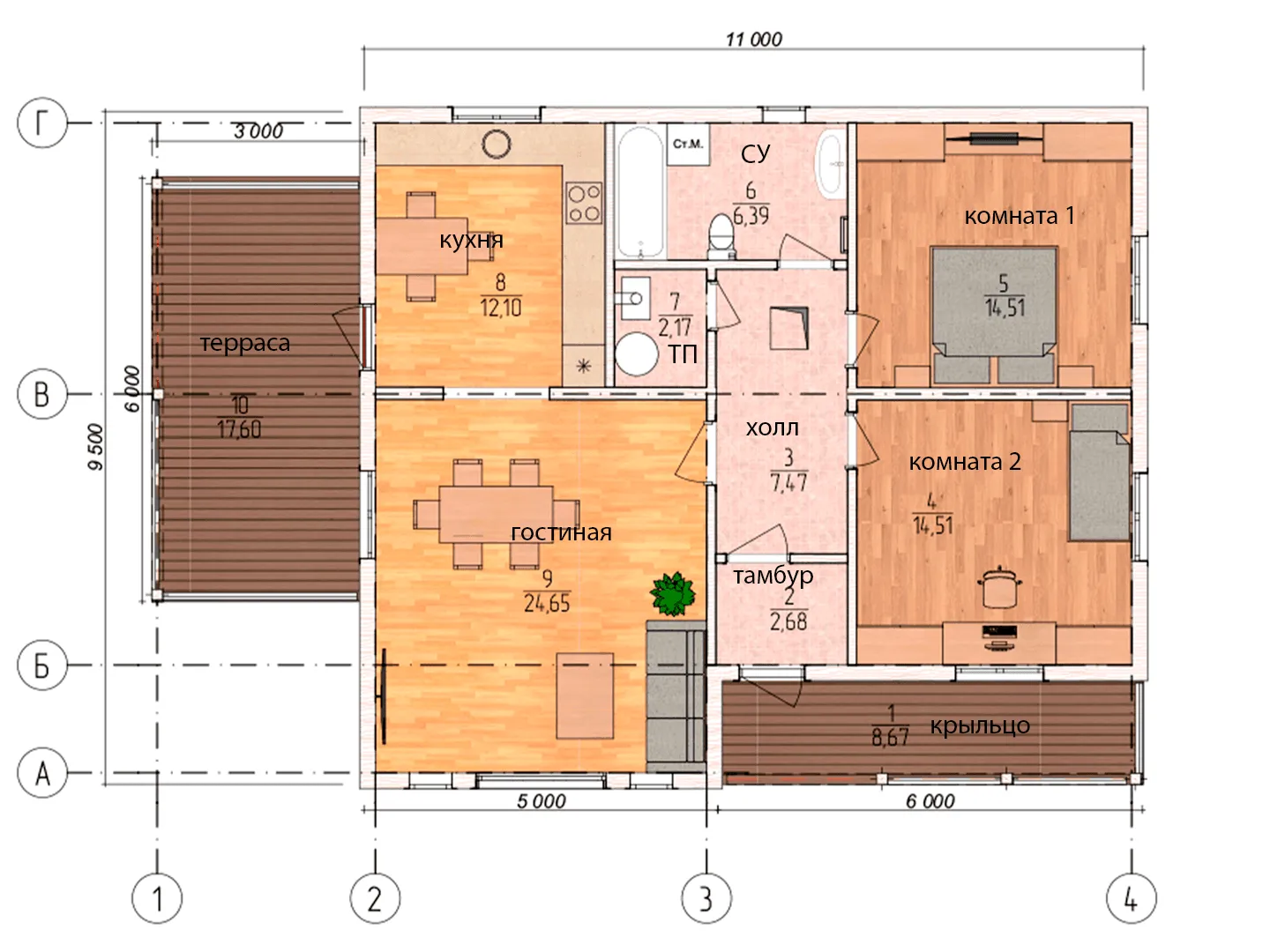
Площадь дома 102 м2
Санузлы 1
Спальни 2

Описание

Одноэтажный дом КД‑32 – это идеальное сочетание традиционного классического дизайна и современных удобств. Внутреннее пространство с открытой планировкой обеспечивает обильный поступок естественного света, а просторные двери и большие окна создают ощущение свободы и лёгкости. Начиная с первых шагов, вы ощутите гармонию, которую подарит классический стиль: симметричные фасады, аккуратные колонны и тщательно продуманные детали. Уникальную привлекательность делает наличие уютной террасы и гостеприимного крыльца, которые служат точкой входа в мир уюта и спокойствия. Лесной каркасный стройный корпус, обрамленный комбинированной крышей, гарантирует длительное проживание и надежную защиту от атмосферных нагрузок. Отсутствие балконов и веранд упрощает уход, но при этом в доме сохранен очаровательный внешний вид. Просторная чердачная полость открывает дополнительные варианты для хранения или создания личного кабинета, а отсутствие прицепленного гаража позволяет легко обустроить площадку под машину по собственному усмотрению. Этот дом – идеальный выбор для тех, кто ценит комфорт, тепло и простоту. Здесь каждое утро начинается с аромата свежих ветров, а вечер завершается на уютной террасе под звуки звёзд. Приглашаем вас увидеть это место лично – убедитесь, как классический стиль воплощается в реальности, и начните новую главу своей жизни в доме, который станет настоящим уголком счастья.

Характеристики дома

Архитектурный стиль
Классический
Автоматизированное регулирование параметров теплоносителя
Нет
Балконы/лоджии
Отсутствуют
Чердачное помещение
Да
Датчики протечки воды
Нет
Эксплуатируемая или зеленая кровля
Нет
Электроснабжение
Центральное
Газоснабжение
Не предусмотрено
Изоляция воздушного шума
Да
Камин
Нет
Класс энергоэффективности
-
Класс энергосбережения
-
Количество надземных этажей
1
Круглогодичное проживание
Да
Материал кровли
Металлочерепица
Материал перекрытий
Деревянные
Материал внешних стен
Деревянные каркасные
Материал внутренних перегородок
Деревянные
Модульное строительство с конструкциями заводского изготовления
Нет
Объем надземной части
-
Основной материал фасадов
Фасадная плитка
Отопление
Индивидуальное
Площадь дома
102 м2
Площадь застройки
122 м2
Подвальное помещение
Нет
Показатель компактности здания
-
Приборы учета тепловой энергии
Нет
Пристроенный гараж/крытая автостоянка
Нет
Противопожарная система
Нет
Санузлы
1
Совмещенная кухня-гостиная
Нет
Спальни
2
Терраса
Да
Тип фундамента
Свайный
Тип кровли
Комбинированная
Толщина внешних стен
300 мм
Толщина внутренних перегородок
250 мм
Улучшенные шумовые характеристики
Да
Вентиляция
Естественная
Веранда
Нет
Водоотведение
Локальные очистные сооружения
Водоснабжение
Индивидуальное
Высота дома
5.54 м
Высота потолков
2.8 м

Планировка

Фасад дома

Александр

Закажите выезд инженера

Александр

Выездной инженер
Закажите выезд инженера для точной диагностики и профессиональной консультации по инженерным системам. Специалист приедет в удобное время, проведёт осмотр, рассчитает стоимость работ и подберёт оптимальные решения для вашего дома.


    Похожие проекты

    Ипотека и
    рассрочка
    Грата 2-170-Г
    Стоимость от:
    12 150 720
    Проект от: 75 600
    Этажей 2
    Санузлы 1
    Спальни 3
    Смотреть
    Ипотека и
    рассрочка
    Скандинавия 111
    Стоимость от:
    8 715 520
    Проект от: 52 200
    Этажей 1
    Санузлы 2
    Спальни 3
    Смотреть
    Ипотека и
    рассрочка
    Дом из CLT «Артем»
    Стоимость от:
    398 160
    Проект от: 37 800
    Этажей 2
    Санузлы 2
    Спальни 3
    Смотреть
    Ипотека и
    рассрочка
    Проект одноэтажного дома Луч
    Стоимость от:
    12 316 480
    Проект от: 73 800
    Этажей 1
    Санузлы 2
    Спальни 3
    Смотреть
    Ипотека и
    рассрочка
    Компактный мансардный дом с большой террасой S3-137-1 (Z12 P)
    Стоимость от:
    12 197 520
    Проект от: 73 350
    Этажей 2
    Санузлы 2
    Спальни 5
    Смотреть
    Ипотека и
    рассрочка
    Проект 10
    Стоимость от:
    14 666 400
    Проект от: 94 500
    Этажей 2
    Санузлы 3
    Спальни 5
    Смотреть

    Как узнать стоимость дома

    back
    Оставляете заявку
    Вы заполняете форму на сайте или звоните нам. Менеджер Лайвкрафт связывается с вами для уточнения деталей: тип дома, площадь, материалы, участок строительства.
    back
    Консультация и подбор решения
    Наш специалист помогает выбрать оптимальный тип дома и конструкцию с учётом бюджета, сроков и целей — будь то дом для постоянного проживания или дача.
    back
    Расчёт предварительной стоимости
    Инженер делает первичный расчёт стоимости строительства по вашим параметрам: фундамент, коробка, кровля, отделка. Вы получаете смету с разбивкой по этапам.
    back
    Корректировка и утверждение сметы
    При необходимости вносим изменения — например, замену материалов или сокращение этапов. После согласования формируется окончательная фиксированная смета.
    back
    Заключение договора и старт работ
    После утверждения сметы заключаем официальный договор с гарантией. Вы получаете прозрачный график и точную стоимость — без скрытых расходов.

    Заказать конусльтацию по:Одноэтажный дом КД-32 с террасой и крыльцом

    Фото 1 Одноэтажный дом КД-32 с террасой и крыльцом


      Наши
      контакты

      Дмитров
      Опорный проезд 28Б
      (индустриальный парк Ниагара)
      9:00 до 18:00

      Корзина