4.9
Рейтинг на основании 120 отзывов
Дмитров
Опорный проезд 28Б
(индустриальный парк Ниагара)
Бренд "Дмитров-Дело" c 2008 года на рынке строительства в Дмитрове
Звоните 9:00 до 18:00 8 (915) 055-33-61
Бренд "Дмитров-Дело" c 2008 года на рынке строительства в Дмитрове

Одноэтажный дом линей «Эстетика» 1-140

Стоимость проекта от:
63 000 ₽
БЕСПЛАТНО! ПРИ ЗАКАЗЕ СТРОИТЕЛЬСТВА
Стоимость строительства от:
9 886 800 ₽
Артикул ART-10197
Дата 25.12.2025
Архитектурный стиль Европейский
Количество надземных этажей 1
Круглогодичное проживание Да
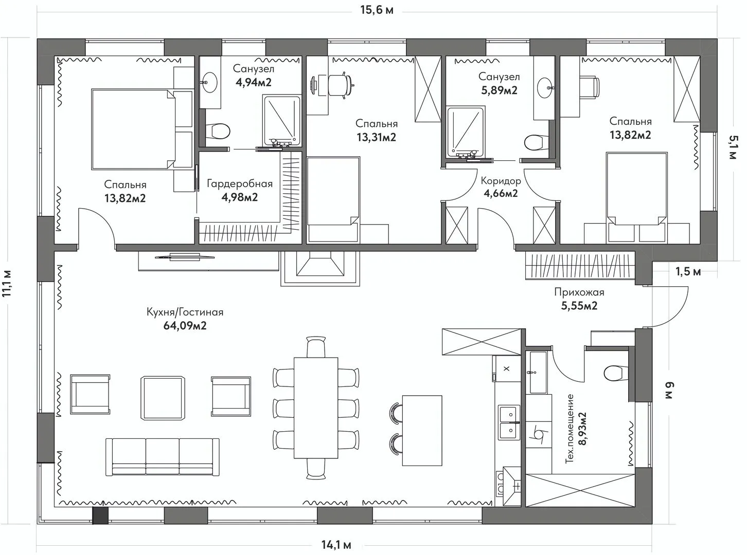
Площадь дома 140 м2
Санузлы 2
Спальни 3

Описание

Одноэтажный дом «Эстетика» 1‑140 – это идеальное сочетание европейской элегантности и практичности, созданных, чтобы радовать домохозяев каждый день. Благодаря теплому, светлому фасаду из сборного железобетона, этот дом выглядит одновременно современно и надёжно, а его чистые линии и простая геометрия делают его легко вписываться во всевозможные ландшафты. Четырехскатная (вальмовая) крыша добавляет дому изысканности, создавая уютное ощущение защищённости, в то время как материал внешних стен гарантирует тепло и комфорт в любое время года. Ключевым преимуществом «Эстетика» 1‑140 является его универсальность: дом идеально подходит для круглогодичного проживания без компромиссов. Просторная планировка, оптимально организованная с учётом всех благ современных семей, позволяет легко распределить пространство между зонами отдыха, работы и личной жизни. Внутри вы встретите светлые, открытые комнаты с мягким светом, который льется из просторных окон, создавая ощущение легкости и простора. В то время как в доме нет балконов, веранд или гаража при этом каждая деталь продумана так, чтобы обеспечить максимальный комфорт и удовольствие от жизни. Выбирая «Эстетика» 1‑140, вы инвестируете в спокойствие, уют и безупречную эстетику, которая будет радовать вас каждый день. Это идеальное решение для тех, кто ценит простоту, качество и современные технологии, и ищет дом, в котором каждое мгновение будет наполнено ощущением заботы и уюта.

Характеристики дома

Архитектурный стиль
Автоматизированное регулирование параметров теплоносителя
Нет
Балконы/лоджии
Отсутствуют
Чердачное помещение
Нет
Датчики протечки воды
Нет
Эксплуатируемая или зеленая кровля
Нет
Электроснабжение
Центральное
Газоснабжение
Не предусмотрено
Изоляция воздушного шума
Нет
Камин
Нет
Класс энергоэффективности
-
Класс энергосбережения
-
Количество надземных этажей
1
Круглогодичное проживание
Да
Материал кровли
Металлочерепица
Материал перекрытий
Сборные железобетонные
Материал внешних стен
Материал внутренних перегородок
Пенобетонные
Модульное строительство с конструкциями заводского изготовления
Нет
Объем надземной части
620 м3
Основной материал фасадов
Искусственный камень
Отопление
Индивидуальное
Площадь дома
140 м2
Площадь застройки
162 м2
Подвальное помещение
Нет
Показатель компактности здания
-
Приборы учета тепловой энергии
Нет
Пристроенный гараж/крытая автостоянка
Нет
Противопожарная система
Нет
Санузлы
2
Совмещенная кухня-гостиная
Да
Спальни
3
Терраса
Нет
Тип фундамента
Плитный
Толщина внешних стен
425 мм
Толщина внутренних перегородок
160 мм
Улучшенные шумовые характеристики
Нет
Вентиляция
2 варианта
Веранда
Нет
Водоотведение
2 варианта
Водоснабжение
2 варианта
Высота дома
6 м
Высота потолков
2.9 м

Планировка

Фасад дома

Александр

Закажите выезд инженера

Александр

Выездной инженер
Закажите выезд инженера для точной диагностики и профессиональной консультации по инженерным системам. Специалист приедет в удобное время, проведёт осмотр, рассчитает стоимость работ и подберёт оптимальные решения для вашего дома.


    Похожие проекты

    Ипотека и
    рассрочка
    Проект загородного дома NHD-155
    Стоимость от:
    10 561 440
    Проект от: 65 700
    Этажей 2
    Санузлы 2
    Спальни 4
    Смотреть
    Ипотека и
    рассрочка
    Индивидуальный жилой дом 105 м2
    Стоимость от:
    8 356 700
    Проект от: 47 250
    Этажей 1
    Санузлы 2
    Спальни 3
    Смотреть
    Ипотека и
    рассрочка
    Двухэтажный дом с большой террасой CD11
    Стоимость от:
    10 355 880
    Проект от: 70 650
    Этажей 2
    Санузлы 2
    Спальни 5
    Смотреть
    Ипотека и
    рассрочка
    Одноэтажный дом LITTLE — 78 m2 (Декоративная штукатурка)
    Стоимость от:
    4 385 700
    Проект от: 24 750
    Этажей 1
    Санузлы 1
    Спальни 2
    Смотреть
    Ипотека и
    рассрочка
    Вентра 57
    Стоимость от:
    3 414 660
    Проект от: 25 650
    Этажей 2
    Санузлы 1
    Спальни 2
    Смотреть
    Ипотека и
    рассрочка
    Загородный дом-110
    Стоимость от:
    10 140 900
    Проект от: 69 300
    Этажей 2
    Санузлы 2
    Спальни 5
    Смотреть

    Как узнать стоимость дома

    back
    Оставляете заявку
    Вы заполняете форму на сайте или звоните нам. Менеджер Лайвкрафт связывается с вами для уточнения деталей: тип дома, площадь, материалы, участок строительства.
    back
    Консультация и подбор решения
    Наш специалист помогает выбрать оптимальный тип дома и конструкцию с учётом бюджета, сроков и целей — будь то дом для постоянного проживания или дача.
    back
    Расчёт предварительной стоимости
    Инженер делает первичный расчёт стоимости строительства по вашим параметрам: фундамент, коробка, кровля, отделка. Вы получаете смету с разбивкой по этапам.
    back
    Корректировка и утверждение сметы
    При необходимости вносим изменения — например, замену материалов или сокращение этапов. После согласования формируется окончательная фиксированная смета.
    back
    Заключение договора и старт работ
    После утверждения сметы заключаем официальный договор с гарантией. Вы получаете прозрачный график и точную стоимость — без скрытых расходов.

    Заказать конусльтацию по:Одноэтажный дом линей «Эстетика» 1-140

    Фото 1 Одноэтажный дом линей «Эстетика» 1-140


      Наши
      контакты

      Дмитров
      Опорный проезд 28Б
      (индустриальный парк Ниагара)
      9:00 до 18:00

      Корзина