4.9
Рейтинг на основании 120 отзывов
Дмитров
Опорный проезд 28Б
(индустриальный парк Ниагара)
Бренд "Дмитров-Дело" c 2008 года на рынке строительства в Дмитрове
Звоните 9:00 до 18:00 8 (915) 055-33-61
Бренд "Дмитров-Дело" c 2008 года на рынке строительства в Дмитрове

Одноэтажный дом с плоской кровлей ДНК Ш157-141

Стоимость проекта от:
70 650 ₽
БЕСПЛАТНО! ПРИ ЗАКАЗЕ СТРОИТЕЛЬСТВА
Стоимость строительства от:
12 141 140 ₽
Артикул ART-18202
Дата 26.12.2025
Архитектурный стиль Хайтек
Количество надземных этажей 1
Круглогодичное проживание Да
Площадь дома 157 м2
Санузлы 2
Спальни 3

Описание

Откройте двери в будущее уже сегодня. Одноэтажный дом **ДНК Ш157‑141** — это сочетание современного хай‑тек дизайна и непревзойденного комфорта круглогодичного проживания. Его пейзажная, плоская крыша создаёт ощущение бесконечных возможностей, а просторное внутреннее планирование дарит уют и функциональность без компромиссов. Прозрачные фасадные панели из газобетонных блоков не только обеспечивают тепло‑инерцию, но и делают ваш дом устойчивым и долговечным, способным противостоять любым климатическим вызовам. Ландшафтный дизайн окружения подчёркнут яркой террасой, где каждый момент станет вашим личным ритуалом: утренний кофе, вечерняя беседа с друзьями, наблюдение за закатами — всё это теперь под одной крышей. Инновационная архитектурная линия вписана во все детали: просторные окна, открытые переходы, продуманные зоны хранения, встроенные технологии для умного дома. Бизнес и комфорт идут рука об руку, а ваше жильё становится местом, где каждый день начинается с вдохновения и закончится чувством полной уверенности. Переходите к новой главе вашей жизни. Закажите просмотр дома **ДНК Ш157‑141** и убедитесь, как высокие технологии могут сделать ваш дом поистине живым и гостеприимным. Ваша мечта об идеальном доме уже ждёт открытия. 🚀

Характеристики дома

Архитектурный стиль
Автоматизированное регулирование параметров теплоносителя
Да
Балконы/лоджии
Отсутствуют
Чердачное помещение
Нет
Датчики протечки воды
Нет
Эксплуатируемая или зеленая кровля
Нет
Электроснабжение
Центральное
Газоснабжение
2 варианта
Изоляция воздушного шума
Да
Камин
Нет
Класс энергоэффективности
A+
Класс энергосбережения
A+
Количество надземных этажей
1
Круглогодичное проживание
Да
Материал кровли
ПВХ мембраны
Материал перекрытий
Сборные железобетонные
Материал внешних стен
Материал внутренних перегородок
Кирпичные
Модульное строительство с конструкциями заводского изготовления
Нет
Объем надземной части
471 м3
Основной материал фасадов
Штукатурка
Отопление
Индивидуальное
Площадь дома
157 м2
Площадь застройки
190 м2
Подвальное помещение
Нет
Показатель компактности здания
0.8
Приборы учета тепловой энергии
Да
Пристроенный гараж/крытая автостоянка
Нет
Противопожарная система
Нет
Санузлы
2
Совмещенная кухня-гостиная
Да
Спальни
3
Терраса
Да
Тип фундамента
Ленточный
Тип кровли
Толщина внешних стен
400 мм
Толщина внутренних перегородок
120 мм
Улучшенные шумовые характеристики
Да
Вентиляция
Естественная
Веранда
Нет
Водоотведение
2 варианта
Водоснабжение
2 варианта
Высота дома
4.35 м
Высота потолков
3 м

Планировка

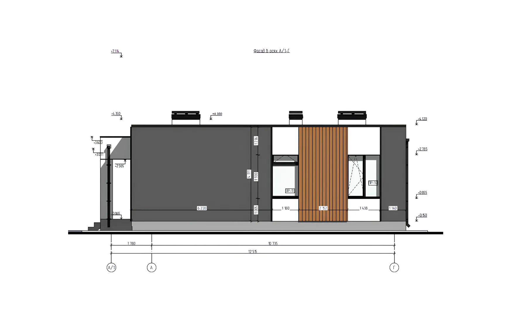
Фасад дома

Александр

Закажите выезд инженера

Александр

Выездной инженер
Закажите выезд инженера для точной диагностики и профессиональной консультации по инженерным системам. Специалист приедет в удобное время, проведёт осмотр, рассчитает стоимость работ и подберёт оптимальные решения для вашего дома.


    Похожие проекты

    Ипотека и
    рассрочка
    Каркасный дом Финляндия 12
    Стоимость от:
    6 260 760
    Проект от: 48 600
    Этажей 1
    Санузлы 2
    Спальни 3
    Смотреть
    Ипотека и
    рассрочка
    Индивидуальный жилой дом (тип S), расположенный в п. Мичуринский.
    Стоимость от:
    5 585 360
    Проект от: 39 600
    Этажей 1
    Санузлы 2
    Спальни 2
    Смотреть
    Ипотека и
    рассрочка
    Каркасный дом ДК-74
    Стоимость от:
    4 573 140
    Проект от: 36 900
    Этажей 1
    Санузлы 1
    Спальни 2
    Смотреть
    Ипотека и
    рассрочка
    ТН-205
    Стоимость от:
    16 573 440
    Проект от: 115 200
    Этажей 2
    Санузлы 3
    Спальни 5
    Смотреть
    Ипотека и
    рассрочка
    Дом Лили Лофт
    Стоимость от:
    3 534 360
    Проект от: 26 550
    Этажей 2
    Санузлы 1
    Спальни 1
    Смотреть
    Ипотека и
    рассрочка
    ВС90Б
    Стоимость от:
    6 355 800
    Проект от: 40 500
    Этажей 1
    Санузлы 1
    Спальни 3
    Смотреть

    Как узнать стоимость дома

    back
    Оставляете заявку
    Вы заполняете форму на сайте или звоните нам. Менеджер Лайвкрафт связывается с вами для уточнения деталей: тип дома, площадь, материалы, участок строительства.
    back
    Консультация и подбор решения
    Наш специалист помогает выбрать оптимальный тип дома и конструкцию с учётом бюджета, сроков и целей — будь то дом для постоянного проживания или дача.
    back
    Расчёт предварительной стоимости
    Инженер делает первичный расчёт стоимости строительства по вашим параметрам: фундамент, коробка, кровля, отделка. Вы получаете смету с разбивкой по этапам.
    back
    Корректировка и утверждение сметы
    При необходимости вносим изменения — например, замену материалов или сокращение этапов. После согласования формируется окончательная фиксированная смета.
    back
    Заключение договора и старт работ
    После утверждения сметы заключаем официальный договор с гарантией. Вы получаете прозрачный график и точную стоимость — без скрытых расходов.

    Заказать конусльтацию по:Одноэтажный дом с плоской кровлей ДНК Ш157-141

    Фото 1 Одноэтажный дом с плоской кровлей ДНК Ш157-141


      Наши
      контакты

      Дмитров
      Опорный проезд 28Б
      (индустриальный парк Ниагара)
      9:00 до 18:00

      Корзина