4.9
Рейтинг на основании 120 отзывов
Дмитров
Опорный проезд 28Б
(индустриальный парк Ниагара)
Бренд "Дмитров-Дело" c 2008 года на рынке строительства в Дмитрове
Звоните 9:00 до 18:00 8 (915) 055-33-61
Бренд "Дмитров-Дело" c 2008 года на рынке строительства в Дмитрове

Одноэтажный дом «Миранда»

Стоимость проекта от:
41 400 ₽
Стоимость строительства от:
7 324 240 ₽
Артикул ART-12324
Дата 25.12.2025
Архитектурный стиль Европейский
Количество надземных этажей 1
Круглогодичное проживание Да
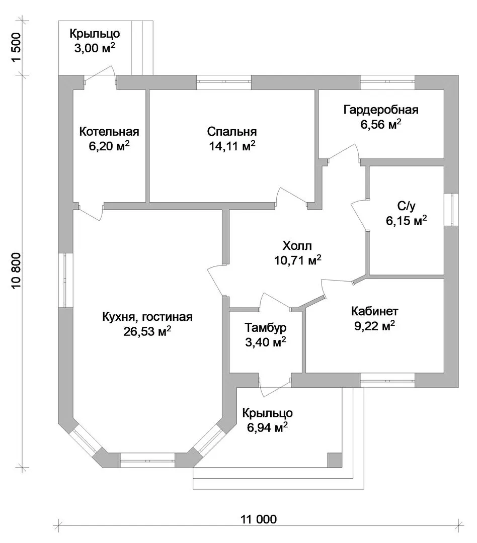
Площадь дома 92 м2
Санузлы 1
Спальни 1

Описание

Одноэтажный дом «Миранда» – это уютный уголок, где европейский стиль встречается с практичностью современного жилья. В его простом, но элегантном внешнем облике, выполненном из крепкого кирпича, скрывается гармоничность и долговечность, а четырехскатная (вальмовая) крыша придаёт особую изысканность. Дом рассчитан на круглогодичную жизнь: от теплых летних дней до уютных зимних вечеров, где свет, проникнутый сквозь большие окна, создаст домашнюю атмосферу в любой сезон. Внутреннее пространство «Миранды» продумано до мелочей: просторный открытый план гостиной, кухни и столовой способствует свободному общению, а наличие чердачного помещения позволяет легко адаптировать его под хранилище, детскую мастерскую или уютный кабинет. Несмотря на отсутствие балконов, веранды и прицепного гаража, это не уменьшает привлекательности дома – напротив, чистый и минималистичный фасон делает его ещё более притягательным для тех, кто ценит лаконичность и функциональность. Если вы ищете семейный дом, где традиции сочетаются с современной комфортностью, «Миранда» станет идеальным выбором. Его элегантный вид и продуманные детали создадут для вас и ваших близких пространство для теплых семейных моментов, где каждый день будет наполнен уютом и спокойствием.

Характеристики дома

Архитектурный стиль
Европейский
Автоматизированное регулирование параметров теплоносителя
Нет
Балконы/лоджии
Отсутствуют
Чердачное помещение
Да
Датчики протечки воды
Нет
Эксплуатируемая или зеленая кровля
Нет
Электроснабжение
Центральное
Газоснабжение
Центральное
Изоляция воздушного шума
Нет
Камин
Нет
Класс энергоэффективности
-
Класс энергосбережения
-
Количество надземных этажей
1
Круглогодичное проживание
Да
Материал кровли
Металлочерепица
Материал перекрытий
Монолитные железобетонные
Материал внешних стен
Кирпич
Материал внутренних перегородок
Блочные
Модульное строительство с конструкциями заводского изготовления
Нет
Объем надземной части
650 м3
Основной материал фасадов
Облицовочный кирпич
Отопление
Индивидуальное
Площадь дома
92 м2
Площадь застройки
135 м2
Подвальное помещение
Нет
Показатель компактности здания
-
Приборы учета тепловой энергии
Нет
Пристроенный гараж/крытая автостоянка
Нет
Противопожарная система
Нет
Санузлы
1
Совмещенная кухня-гостиная
Да
Спальни
1
Терраса
Нет
Тип фундамента
Ленточный
Тип кровли
Четырехскатная (вальмовая)
Толщина внешних стен
470 мм
Толщина внутренних перегородок
200 мм
Улучшенные шумовые характеристики
Нет
Вентиляция
Принудительная
Веранда
Нет
Водоотведение
Центральное
Водоснабжение
Центральное
Высота дома
7 м
Высота потолков
2.8 м

Планировка

Фасад дома

Александр

Закажите выезд инженера

Александр

Выездной инженер
Закажите выезд инженера для точной диагностики и профессиональной консультации по инженерным системам. Специалист приедет в удобное время, проведёт осмотр, рассчитает стоимость работ и подберёт оптимальные решения для вашего дома.


    Похожие проекты

    Ипотека и
    рассрочка
    Нодик-78
    Стоимость от:
    5 071 715
    Проект от: 37 350
    Этажей 1
    Санузлы 1
    Спальни 3
    Смотреть
    Ипотека и
    рассрочка
    Одноэтажный кирпичный дом PREMIUM — 158 m2 Красный облицовочный кирпич
    Стоимость от:
    9 548 000
    Проект от: 54 000
    Этажей 1
    Санузлы 2
    Спальни 3
    Смотреть
    Ипотека и
    рассрочка
    Двухэтажный жилой дом 19/11-24-АС
    Стоимость от:
    16 176 000
    Проект от: 99 000
    Этажей 2
    Санузлы 2
    Спальни 3
    Смотреть
    Ипотека и
    рассрочка
    Мансардный П-160
    Стоимость от:
    11 314 080
    Проект от: 72 900
    Этажей 2
    Санузлы 2
    Спальни 4
    Смотреть
    Ипотека и
    рассрочка
    Одноэтажный дом СП 12
    Стоимость от:
    8 715 520
    Проект от: 52 200
    Этажей 1
    Санузлы 1
    Спальни 3
    Смотреть
    Ипотека и
    рассрочка
    СК с террасой 151 м2
    Стоимость от:
    9 226 855
    Проект от: 67 950
    Этажей 1
    Санузлы 2
    Спальни 3
    Смотреть

    Как узнать стоимость дома

    back
    Оставляете заявку
    Вы заполняете форму на сайте или звоните нам. Менеджер Лайвкрафт связывается с вами для уточнения деталей: тип дома, площадь, материалы, участок строительства.
    back
    Консультация и подбор решения
    Наш специалист помогает выбрать оптимальный тип дома и конструкцию с учётом бюджета, сроков и целей — будь то дом для постоянного проживания или дача.
    back
    Расчёт предварительной стоимости
    Инженер делает первичный расчёт стоимости строительства по вашим параметрам: фундамент, коробка, кровля, отделка. Вы получаете смету с разбивкой по этапам.
    back
    Корректировка и утверждение сметы
    При необходимости вносим изменения — например, замену материалов или сокращение этапов. После согласования формируется окончательная фиксированная смета.
    back
    Заключение договора и старт работ
    После утверждения сметы заключаем официальный договор с гарантией. Вы получаете прозрачный график и точную стоимость — без скрытых расходов.

    Заказать конусльтацию по:Одноэтажный дом «Миранда»

    Фото 1 Одноэтажный дом «Миранда»


      Наши
      контакты

      Дмитров
      Опорный проезд 28Б
      (индустриальный парк Ниагара)
      9:00 до 18:00