4.9
Рейтинг на основании 120 отзывов
Дмитров
Опорный проезд 28Б
(индустриальный парк Ниагара)
Бренд "Дмитров-Дело" c 2008 года на рынке строительства в Дмитрове
Звоните 9:00 до 18:00 8 (915) 055-33-61
Бренд "Дмитров-Дело" c 2008 года на рынке строительства в Дмитрове

Одноэтажный дом ПГ — 5

Стоимость проекта от:
37 800 ₽
БЕСПЛАТНО! ПРИ ЗАКАЗЕ СТРОИТЕЛЬСТВА
Стоимость строительства от:
6 314 880 ₽
Артикул ART-19795
Дата 26.12.2025
Архитектурный стиль Классический
Количество надземных этажей 1
Круглогодичное проживание Да
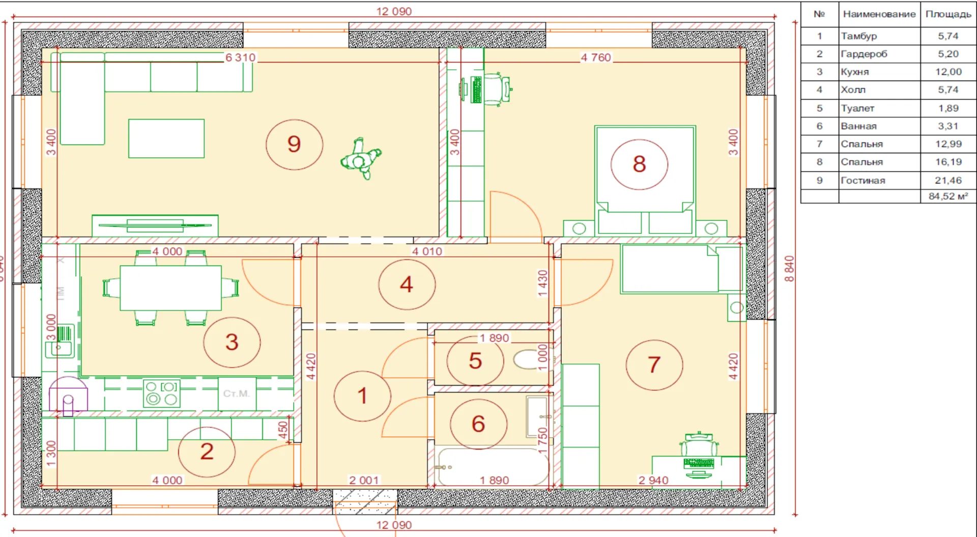
Площадь дома 84 м2
Санузлы 2
Спальни 2

Описание

Уникальная возможность стать владельцем уютного одноэтажного дома в классическом стиле, где каждая деталь продумана до мелочей. В здании только один надземный этаж, но он при этом наполнен естественным светом, открывающим просторные помещения и создающим атмосферу тепла и уюта на протяжении всего года. В интерьере сочетается строгий классический дизайн с современными удобствами, а фасад выполнен из плотных газобетонных блоков, что гарантирует тепло и шумо‑изоляцию даже в холодные зимние дни. Дом оснащён роскошным чердачным помещением, которое легко можно превратить в уютное рабочее пространство, хобби‑гостиную или небольшую комнату для отдыха. Несмотря на небольшую площадь, наличие чердака придаёт проекту дополнительную функциональность. Гибкое планирование внутреннего пространства обеспечивает комфорт для всей семьи, а два боковых окна — естественное освещение и свежий воздух. В доме нет внешних балконов, веранд и приёма к гаражу, но это лишь подчёркивает лаконичность и строгость архитектурного концепта. Крыша двухскатная, покрытая качественной кровельной обработкой, создаёт характерный профиль, который подчёркивает величие и элегантность этого дома. При желании, будущий владелец может легко расширить пространство, добавив к дому прицепную постройку или расширить чердачное помещение. В итоге вы получаете современное, уютное, круглогодичное жильё, которое сочетает традиционное обаяние классического стиля с практичностью и комфортом современного быта.

Характеристики дома

Архитектурный стиль
Автоматизированное регулирование параметров теплоносителя
Нет
Балконы/лоджии
Отсутствуют
Чердачное помещение
Да
Датчики протечки воды
Нет
Эксплуатируемая или зеленая кровля
Нет
Электроснабжение
Центральное
Газоснабжение
Центральное
Изоляция воздушного шума
Да
Камин
Нет
Класс энергоэффективности
-
Класс энергосбережения
-
Количество надземных этажей
1
Круглогодичное проживание
Да
Материал кровли
Металлочерепица
Материал перекрытий
Деревянные
Материал внешних стен
Материал внутренних перегородок
Блочные
Модульное строительство с конструкциями заводского изготовления
Нет
Объем надземной части
-
Основной материал фасадов
Облицовочный кирпич
Отопление
Индивидуальное
Площадь дома
84 м2
Площадь застройки
106 м2
Подвальное помещение
Нет
Показатель компактности здания
-
Приборы учета тепловой энергии
Нет
Пристроенный гараж/крытая автостоянка
Нет
Противопожарная система
Нет
Санузлы
2
Совмещенная кухня-гостиная
Нет
Спальни
2
Терраса
Нет
Тип фундамента
Свайно-ростверковый
Тип кровли
Толщина внешних стен
400 мм
Толщина внутренних перегородок
120 мм
Улучшенные шумовые характеристики
Да
Вентиляция
Естественная
Веранда
Нет
Водоотведение
Локальные очистные сооружения
Водоснабжение
Индивидуальное
Высота дома
7 м
Высота потолков
3 м

Планировка

Фасад дома

Александр

Закажите выезд инженера

Александр

Выездной инженер
Закажите выезд инженера для точной диагностики и профессиональной консультации по инженерным системам. Специалист приедет в удобное время, проведёт осмотр, рассчитает стоимость работ и подберёт оптимальные решения для вашего дома.


    Похожие проекты

    Ипотека и
    рассрочка
    Двухэтажный дом в стиле хай-тек с цокольным этажом S3-405-1 (Zx123 P)
    Стоимость от:
    35 361 820
    Проект от: 210 150
    Этажей 3
    Санузлы 3
    Спальни 4
    Смотреть
    Ипотека и
    рассрочка
    Дом Рубин 103
    Стоимость от:
    5 874 120
    Проект от: 44 100
    Этажей 2
    Санузлы 1
    Спальни 4
    Смотреть
    Ипотека и
    рассрочка
    Форелька проект 5
    Стоимость от:
    5 027 400
    Проект от: 37 800
    Этажей 2
    Санузлы 2
    Спальни 2
    Смотреть
    Ипотека и
    рассрочка
    Авторский проект «Фрэни»
    Стоимость от:
    8 827 500
    Проект от: 56 250
    Этажей 1
    Санузлы 2
    Спальни 3
    Смотреть
    Ипотека и
    рассрочка
    Компактный
    Стоимость от:
    4 115 870
    Проект от: 31 950
    Этажей 1
    Санузлы 1
    Спальни 2
    Смотреть
    Ипотека и
    рассрочка
    Загородный дом 117
    Стоимость от:
    7 753 680
    Проект от: 48 150
    Этажей 2
    Санузлы 2
    Спальни 4
    Смотреть

    Как узнать стоимость дома

    back
    Оставляете заявку
    Вы заполняете форму на сайте или звоните нам. Менеджер Лайвкрафт связывается с вами для уточнения деталей: тип дома, площадь, материалы, участок строительства.
    back
    Консультация и подбор решения
    Наш специалист помогает выбрать оптимальный тип дома и конструкцию с учётом бюджета, сроков и целей — будь то дом для постоянного проживания или дача.
    back
    Расчёт предварительной стоимости
    Инженер делает первичный расчёт стоимости строительства по вашим параметрам: фундамент, коробка, кровля, отделка. Вы получаете смету с разбивкой по этапам.
    back
    Корректировка и утверждение сметы
    При необходимости вносим изменения — например, замену материалов или сокращение этапов. После согласования формируется окончательная фиксированная смета.
    back
    Заключение договора и старт работ
    После утверждения сметы заключаем официальный договор с гарантией. Вы получаете прозрачный график и точную стоимость — без скрытых расходов.

    Заказать конусльтацию по:Одноэтажный дом ПГ — 5

    Фото 1 Одноэтажный дом ПГ — 5


      Наши
      контакты

      Дмитров
      Опорный проезд 28Б
      (индустриальный парк Ниагара)
      9:00 до 18:00

      Корзина