4.9
Рейтинг на основании 120 отзывов
Дмитров
Опорный проезд 28Б
(индустриальный парк Ниагара)
Бренд "Дмитров-Дело" c 2008 года на рынке строительства в Дмитрове
Звоните 9:00 до 18:00 8 (915) 055-33-61
Бренд "Дмитров-Дело" c 2008 года на рынке строительства в Дмитрове

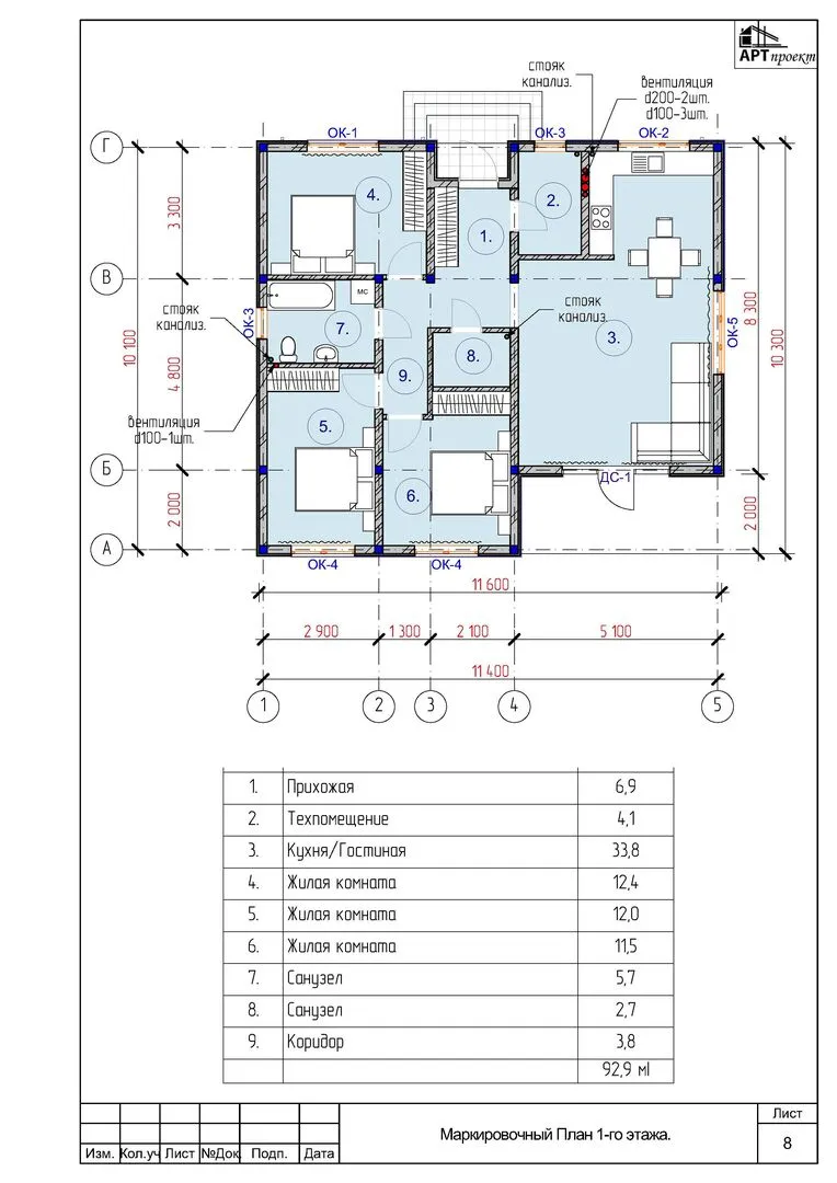
Одноэтажный дом площадью 92,9 кв.м.

Стоимость проекта от:
41 850 ₽
Стоимость строительства от:
7 199 060 ₽
Артикул ART-16122
Дата 25.12.2025
Архитектурный стиль Хайтек
Количество надземных этажей 1
Круглогодичное проживание Да
Площадь дома 93 м2
Санузлы 2
Спальни 3

Описание

Приветствуем вас в нашем современном, уютном доме, где каждый элемент продуман до мелочей, а стиль хай‑тек сливается с функциональностью. На площадке 92,9 м² вы найдёте полноценный жилой уют в одном открытом пространстве, где просторные комнаты без границ, большие окна, пропускающие свет и тепло, создают ощущение простора и благополучия. Ощутите лёгкость жизни в доме, предназначенном для круглогодичного проживания – тепло, тепло, комфорт и современные решения кажутся естественной частью вашего ежедневного пространства. Структура строительства из керамзитобетонных блоков гарантирует не только долговечность и энергоэффективность, но и изоляцию от шума и холода, что особенно важно в городских условиях. Односкатная крыша придаёт дому динамичную, чистую линию, подчёркивая лаконичность и утонченность дизайна. Хай‑тек интерьеры сочетают в себе изысканный минимализм, высокие технологии и комфорт, придавая дому неповторимый характер, в котором каждый уголок продуман вниманием к современным требованиям жизни. Не упустите шанс оценить и почувствовать эту гармонию — дом, где функциональность встречается с эстетикой, а каждый день становится праздником уюта и стиля. Приглашаем вас жить в пространстве, где технологии и тепло сливаются в единую картину уюта и современного благополучия.

Характеристики дома

Архитектурный стиль
Хайтек
Автоматизированное регулирование параметров теплоносителя
Да
Балконы/лоджии
Отсутствуют
Чердачное помещение
Нет
Датчики протечки воды
Нет
Эксплуатируемая или зеленая кровля
Нет
Электроснабжение
Центральное
Газоснабжение
Не предусмотрено
Изоляция воздушного шума
Нет
Камин
Нет
Класс энергоэффективности
-
Класс энергосбережения
-
Количество надземных этажей
1
Круглогодичное проживание
Да
Материал кровли
Металлические листовые гофрированные профили
Материал перекрытий
Деревянные
Материал внешних стен
Керамзитобетонные блоки
Материал внутренних перегородок
Блочные
Модульное строительство с конструкциями заводского изготовления
Нет
Объем надземной части
420 м3
Основной материал фасадов
Штукатурка
Отопление
Индивидуальное
Площадь дома
93 м2
Площадь застройки
112 м2
Подвальное помещение
Нет
Показатель компактности здания
-
Приборы учета тепловой энергии
Нет
Пристроенный гараж/крытая автостоянка
Нет
Противопожарная система
Нет
Санузлы
2
Совмещенная кухня-гостиная
Да
Спальни
3
Терраса
Нет
Тип фундамента
Ленточный
Тип кровли
Односкатная
Толщина внешних стен
200 мм
Толщина внутренних перегородок
200 мм
Улучшенные шумовые характеристики
Нет
Вентиляция
Естественная
Веранда
Нет
Водоотведение
Локальные очистные сооружения
Водоснабжение
Индивидуальное
Высота дома
5.15 м
Высота потолков
3 м

Планировка

Фасад дома

Александр

Закажите выезд инженера

Александр

Выездной инженер
Закажите выезд инженера для точной диагностики и профессиональной консультации по инженерным системам. Специалист приедет в удобное время, проведёт осмотр, рассчитает стоимость работ и подберёт оптимальные решения для вашего дома.


    Похожие проекты

    Ипотека и
    рассрочка
    Одноэтажный дом по проекту «Ника»
    Стоимость от:
    6 497 040
    Проект от: 41 400
    Этажей 1
    Санузлы 1
    Спальни 3
    Смотреть
    Ипотека и
    рассрочка
    Комфортный частный дом для двоих S3-129 (Z248)
    Стоимость от:
    11 898 960
    Проект от: 71 550
    Этажей 2
    Санузлы 2
    Спальни 3
    Смотреть
    Ипотека и
    рассрочка
    Одноэтажный дом ОБТ103
    Стоимость от:
    7 740 260
    Проект от: 46 350
    Этажей 1
    Санузлы 2
    Спальни 3
    Смотреть
    Ипотека и
    рассрочка
    Мансардный дом М-155
    Стоимость от:
    10 692 720
    Проект от: 68 850
    Этажей 2
    Санузлы 2
    Спальни 4
    Смотреть
    Ипотека и
    рассрочка
    МД-58.11
    Стоимость от:
    4 405 830
    Проект от: 35 550
    Этажей 1
    Санузлы 1
    Спальни 2
    Смотреть
    Ипотека и
    рассрочка
    Двухэтажный дом Ирбис 2
    Стоимость от:
    7 483 200
    Проект от: 45 000
    Этажей 2
    Санузлы 2
    Спальни 3
    Смотреть

    Как узнать стоимость дома

    back
    Оставляете заявку
    Вы заполняете форму на сайте или звоните нам. Менеджер Лайвкрафт связывается с вами для уточнения деталей: тип дома, площадь, материалы, участок строительства.
    back
    Консультация и подбор решения
    Наш специалист помогает выбрать оптимальный тип дома и конструкцию с учётом бюджета, сроков и целей — будь то дом для постоянного проживания или дача.
    back
    Расчёт предварительной стоимости
    Инженер делает первичный расчёт стоимости строительства по вашим параметрам: фундамент, коробка, кровля, отделка. Вы получаете смету с разбивкой по этапам.
    back
    Корректировка и утверждение сметы
    При необходимости вносим изменения — например, замену материалов или сокращение этапов. После согласования формируется окончательная фиксированная смета.
    back
    Заключение договора и старт работ
    После утверждения сметы заключаем официальный договор с гарантией. Вы получаете прозрачный график и точную стоимость — без скрытых расходов.

    Заказать конусльтацию по:Одноэтажный дом площадью 92,9 кв.м.

    Фото 1 Одноэтажный дом площадью 92,9 кв.м.


      Наши
      контакты

      Дмитров
      Опорный проезд 28Б
      (индустриальный парк Ниагара)
      9:00 до 18:00