4.9
Рейтинг на основании 120 отзывов
Дмитров
Опорный проезд 28Б
(индустриальный парк Ниагара)
Бренд "Дмитров-Дело" c 2008 года на рынке строительства в Дмитрове
Звоните 9:00 до 18:00 8 (915) 055-33-61
Бренд "Дмитров-Дело" c 2008 года на рынке строительства в Дмитрове

Одноэтажный дом S Light

Стоимость проекта от:
40 950 ₽
БЕСПЛАТНО! ПРИ ЗАКАЗЕ СТРОИТЕЛЬСТВА
Стоимость строительства от:
6 840 020 ₽
Артикул ART-19465
Дата 26.12.2025
Архитектурный стиль Скандинавский
Количество надземных этажей 1
Круглогодичное проживание Да
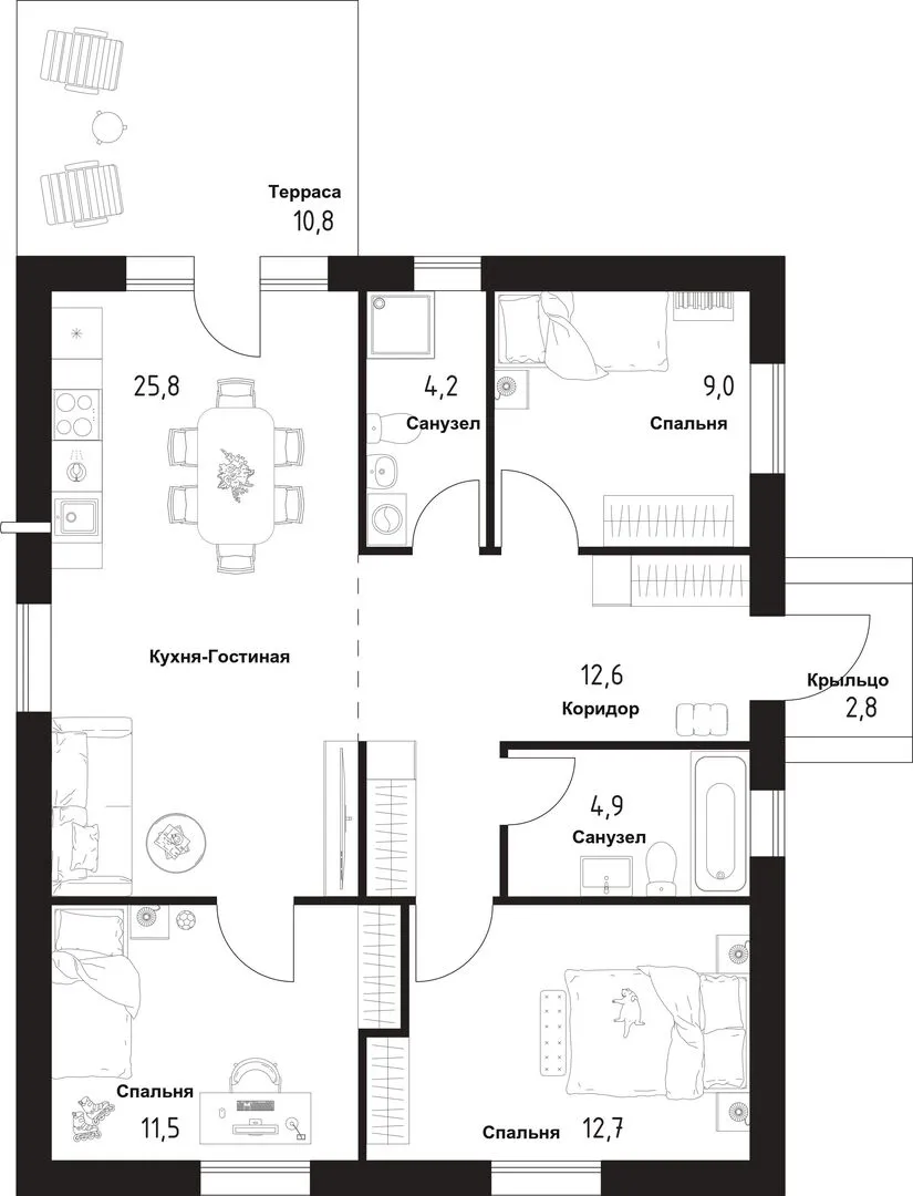
Площадь дома 91 м2
Санузлы 2
Спальни 3

Описание

В поисках идеального уединенного уголка, где уют встречается с функциональностью, вы обязательно оцените наш одноэтажный дом в стиле «S Light». Потрясающая скандинавская архитектоника создает ощущение простора и светлости: большие окна пропускают естественный дневной свет, а открытая планировка наполняет пространство мягкой гармонией. Дом рассчитан на круглогодичную жизнь — тепло обитает и даже в самые холодные дни, а лёгкие ветра приятно дунутся с открытой террасы, добавляя в атмосферу ощущение свободы. Фасад, выполненный из газобетонных блоков, сочетает в себе надёжность и эстетику, а двускатная крыша добавляет дома характерного силуэта. Отсутствие балконов и веранд позволяет полностью сфокусироваться на внутреннем уюте, в то время как чердачное помещение открывает возможности для хранения вещей или создания индивидуального рабочего уголка. Небольшая, но удобная терраса становится идеальным местом для завтраков на свежем воздухе, приятных бесед за чашкой кофе и наслаждения природой прямо у порога. Мы создали этот дом, чтобы каждая его деталь подчеркивала практичность и стиль. Просторный интерьеры, простая и функциональная планировка, а также удобство без лишних конструктивных ограничений делают этот объект привлекательным для тех, кто ищет гармонию между комфортом и удобством. В нём вы найдёте все, что нужно для достойной жизни, и при этом каждый день будет напоминать о простоте и красоте скандинавского подхода к жилью.

Характеристики дома

Архитектурный стиль
Автоматизированное регулирование параметров теплоносителя
Да
Балконы/лоджии
Отсутствуют
Чердачное помещение
Да
Датчики протечки воды
Нет
Эксплуатируемая или зеленая кровля
Нет
Электроснабжение
Центральное
Газоснабжение
Центральное
Изоляция воздушного шума
Да
Камин
Нет
Класс энергоэффективности
A
Класс энергосбережения
A
Количество надземных этажей
1
Круглогодичное проживание
Да
Материал кровли
Металлочерепица
Материал перекрытий
Деревянные
Материал внешних стен
Материал внутренних перегородок
Гипсокартонные
Модульное строительство с конструкциями заводского изготовления
Нет
Объем надземной части
390 м3
Основной материал фасадов
Штукатурка
Отопление
Индивидуальное
Площадь дома
91 м2
Площадь застройки
112 м2
Подвальное помещение
Нет
Показатель компактности здания
1
Приборы учета тепловой энергии
Да
Пристроенный гараж/крытая автостоянка
Нет
Противопожарная система
Нет
Санузлы
2
Совмещенная кухня-гостиная
Да
Спальни
3
Терраса
Да
Тип фундамента
Свайно-ростверковый
Тип кровли
Толщина внешних стен
400 мм
Толщина внутренних перегородок
100 мм
Улучшенные шумовые характеристики
Да
Вентиляция
Принудительная
Веранда
Нет
Водоотведение
Локальные очистные сооружения
Водоснабжение
Центральное
Высота дома
5.3 м
Высота потолков
2.8 м

Планировка

Фасад дома

Александр

Закажите выезд инженера

Александр

Выездной инженер
Закажите выезд инженера для точной диагностики и профессиональной консультации по инженерным системам. Специалист приедет в удобное время, проведёт осмотр, рассчитает стоимость работ и подберёт оптимальные решения для вашего дома.


    Похожие проекты

    Ипотека и
    рассрочка
    Одноэтажный жилой дом 151м.кв.
    Стоимость от:
    12 010 020
    Проект от: 67 950
    Этажей 1
    Санузлы 2
    Спальни 3
    Смотреть
    Ипотека и
    рассрочка
    Барн классика-70
    Стоимость от:
    4 111 800
    Проект от: 31 500
    Этажей 2
    Санузлы 1
    Спальни 2
    Смотреть
    Ипотека и
    рассрочка
    Купри — ИД
    Стоимость от:
    4 637 600
    Проект от: 36 000
    Этажей 1
    Санузлы 2
    Спальни 3
    Смотреть
    Ипотека и
    рассрочка
    Гурзуф 64
    Стоимость от:
    3 988 600
    Проект от: 22 500
    Этажей 1
    Санузлы 1
    Спальни 2
    Смотреть
    Ипотека и
    рассрочка
    Проект «Балтика топ»
    Стоимость от:
    6 795 120
    Проект от: 46 350
    Этажей 2
    Санузлы 1
    Спальни 2
    Смотреть
    Ипотека и
    рассрочка
    Проект 958
    Стоимость от:
    6 708 900
    Проект от: 42 750
    Этажей 1
    Санузлы 2
    Спальни 3
    Смотреть

    Как узнать стоимость дома

    back
    Оставляете заявку
    Вы заполняете форму на сайте или звоните нам. Менеджер Лайвкрафт связывается с вами для уточнения деталей: тип дома, площадь, материалы, участок строительства.
    back
    Консультация и подбор решения
    Наш специалист помогает выбрать оптимальный тип дома и конструкцию с учётом бюджета, сроков и целей — будь то дом для постоянного проживания или дача.
    back
    Расчёт предварительной стоимости
    Инженер делает первичный расчёт стоимости строительства по вашим параметрам: фундамент, коробка, кровля, отделка. Вы получаете смету с разбивкой по этапам.
    back
    Корректировка и утверждение сметы
    При необходимости вносим изменения — например, замену материалов или сокращение этапов. После согласования формируется окончательная фиксированная смета.
    back
    Заключение договора и старт работ
    После утверждения сметы заключаем официальный договор с гарантией. Вы получаете прозрачный график и точную стоимость — без скрытых расходов.

    Заказать конусльтацию по:Одноэтажный дом S Light

    Фото 1 Одноэтажный дом S Light


      Наши
      контакты

      Дмитров
      Опорный проезд 28Б
      (индустриальный парк Ниагара)
      9:00 до 18:00

      Корзина