4.9
Рейтинг на основании 120 отзывов
Дмитров
Опорный проезд 28Б
(индустриальный парк Ниагара)
Бренд "Дмитров-Дело" c 2008 года на рынке строительства в Дмитрове
Звоните 9:00 до 18:00 8 (915) 055-33-61
Бренд "Дмитров-Дело" c 2008 года на рынке строительства в Дмитрове

Одноэтажный дом с террасой и большой кухней-гостинной

Стоимость проекта от:
55 350 ₽
БЕСПЛАТНО! ПРИ ЗАКАЗЕ СТРОИТЕЛЬСТВА
Стоимость строительства от:
9 240 660 ₽
Артикул ART-16942
Дата 26.12.2025
Архитектурный стиль Классический
Количество надземных этажей 1
Круглогодичное проживание Да
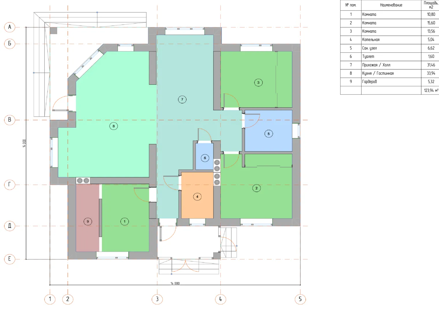
Площадь дома 123 м2
Санузлы 2
Спальни 3

Описание

**Уютный, классический уголок, где каждый день начинается с улыбки.** Наш одноэтажный дом обретает особую гармонию простоты и элегантности: открытая, просторная кухня‑гостинная с большим обеденным столом приглашает к совместным трапезам, а светлые окна дарят ощущение тепла в любой пору года. Стены, выложенные газобетонными блоками, обеспечивают надёжную изоляцию и комфорт, а четырёхскатная, вальмовая крыша подчёркивает строгую классическую эстетику, создавая уютный городской уголок из чистых линий и гармоничного соотношения просторов. **Комфорт и практичность в деталях.** Дом спроектирован с учётом круглогодичного проживания: просторный зал, функциональная кухня, лёгкое разделение светового потока и достаточная площадь для размещения мебели и техники. Отсутствие пристроенного гаража и веранд не меняет ощущение простоты и открытости, а рядом располагается небольшая крытая автостоянка, удобная для гостей и жителей. Такой баланс делает жильё идеальным как для молодой семьи, желающей уютного семейного пространства, так и для одних людей, ценящих спокойствие и легкость в повседневной жизни. **Стиль, который вдохновляет.** Классический архитектурный стиль подчёркивает величие и простоту фасада, а материалы, выдержанные в холодном климате, дарят уверенность и долговечность. Вдохновляйтесь классикой в каждом углу: от аккуратных черт фасада до открытых пространств, где каждая минутка превращается в момент наслаждения простыми радостями жизни.

Характеристики дома

Архитектурный стиль
Автоматизированное регулирование параметров теплоносителя
Нет
Балконы/лоджии
Отсутствуют
Чердачное помещение
Нет
Датчики протечки воды
Нет
Эксплуатируемая или зеленая кровля
Нет
Электроснабжение
Не предусмотрено
Газоснабжение
Не предусмотрено
Изоляция воздушного шума
Нет
Камин
Нет
Класс энергоэффективности
-
Класс энергосбережения
-
Количество надземных этажей
1
Круглогодичное проживание
Да
Материал кровли
Металлочерепица
Материал перекрытий
Деревянные
Материал внешних стен
Материал внутренних перегородок
Блочные
Модульное строительство с конструкциями заводского изготовления
Нет
Объем надземной части
369 м3
Основной материал фасадов
Штукатурка
Отопление
Индивидуальное
Площадь дома
123 м2
Площадь застройки
123 м2
Подвальное помещение
Нет
Показатель компактности здания
-
Приборы учета тепловой энергии
Нет
Пристроенный гараж/крытая автостоянка
Нет
Противопожарная система
Нет
Санузлы
2
Совмещенная кухня-гостиная
Да
Спальни
3
Терраса
Нет
Тип фундамента
Свайно-ростверковый
Толщина внешних стен
400 мм
Толщина внутренних перегородок
100 мм
Улучшенные шумовые характеристики
Нет
Вентиляция
Естественная
Веранда
Нет
Водоотведение
Локальные очистные сооружения
Водоснабжение
Не предусмотрено
Высота дома
6.5 м
Высота потолков
3 м

Планировка

Фасад дома

Александр

Закажите выезд инженера

Александр

Выездной инженер
Закажите выезд инженера для точной диагностики и профессиональной консультации по инженерным системам. Специалист приедет в удобное время, проведёт осмотр, рассчитает стоимость работ и подберёт оптимальные решения для вашего дома.


    Похожие проекты

    Ипотека и
    рассрочка
    Одноэтажный дом «Тулуза» 100м2
    Стоимость от:
    6 636 740
    Проект от: 43 650
    Этажей 1
    Санузлы 3
    Спальни 3
    Смотреть
    Ипотека и
    рассрочка
    Одноэтажный дом АС-2438
    Стоимость от:
    8 040 340
    Проект от: 48 150
    Этажей 1
    Санузлы 2
    Спальни 3
    Смотреть
    Ипотека и
    рассрочка
    Двухэтажный дом МХМ
    Стоимость от:
    8 528 160
    Проект от: 51 300
    Этажей 2
    Санузлы 2
    Спальни 4
    Смотреть
    Ипотека и
    рассрочка
    СЕРИЯ «КЛАССИКА» ПРОЕКТ КД-15
    Стоимость от:
    7 507 200
    Проект от: 57 600
    Этажей 2
    Санузлы 2
    Спальни 5
    Смотреть
    Ипотека и
    рассрочка
    ПРОЕКТ А004
    Стоимость от:
    14 462 400
    Проект от: 90 000
    Этажей 2
    Санузлы 2
    Спальни 3
    Смотреть
    Ипотека и
    рассрочка
    Возведение — 13.1
    Стоимость от:
    10 024 520
    Проект от: 56 700
    Этажей 1
    Санузлы 2
    Спальни 3
    Смотреть

    Как узнать стоимость дома

    back
    Оставляете заявку
    Вы заполняете форму на сайте или звоните нам. Менеджер Лайвкрафт связывается с вами для уточнения деталей: тип дома, площадь, материалы, участок строительства.
    back
    Консультация и подбор решения
    Наш специалист помогает выбрать оптимальный тип дома и конструкцию с учётом бюджета, сроков и целей — будь то дом для постоянного проживания или дача.
    back
    Расчёт предварительной стоимости
    Инженер делает первичный расчёт стоимости строительства по вашим параметрам: фундамент, коробка, кровля, отделка. Вы получаете смету с разбивкой по этапам.
    back
    Корректировка и утверждение сметы
    При необходимости вносим изменения — например, замену материалов или сокращение этапов. После согласования формируется окончательная фиксированная смета.
    back
    Заключение договора и старт работ
    После утверждения сметы заключаем официальный договор с гарантией. Вы получаете прозрачный график и точную стоимость — без скрытых расходов.

    Заказать конусльтацию по:Одноэтажный дом с террасой и большой кухней-гостинной

    Фото 1 Одноэтажный дом с террасой и большой кухней-гостинной


      Наши
      контакты

      Дмитров
      Опорный проезд 28Б
      (индустриальный парк Ниагара)
      9:00 до 18:00

      Корзина