4.9
Рейтинг на основании 120 отзывов
Дмитров
Опорный проезд 28Б
(индустриальный парк Ниагара)
Бренд "Дмитров-Дело" c 2008 года на рынке строительства в Дмитрове
Звоните 9:00 до 18:00 8 (915) 055-33-61
Бренд "Дмитров-Дело" c 2008 года на рынке строительства в Дмитрове

Одноэтажный дом с выносом SHIP100

Стоимость проекта от:
58 500 ₽
БЕСПЛАТНО! ПРИ ЗАКАЗЕ СТРОИТЕЛЬСТВА
Стоимость строительства от:
8 465 600 ₽
Артикул ART-19418
Дата 26.12.2025
Архитектурный стиль Скандинавский
Количество надземных этажей 1
Круглогодичное проживание Да
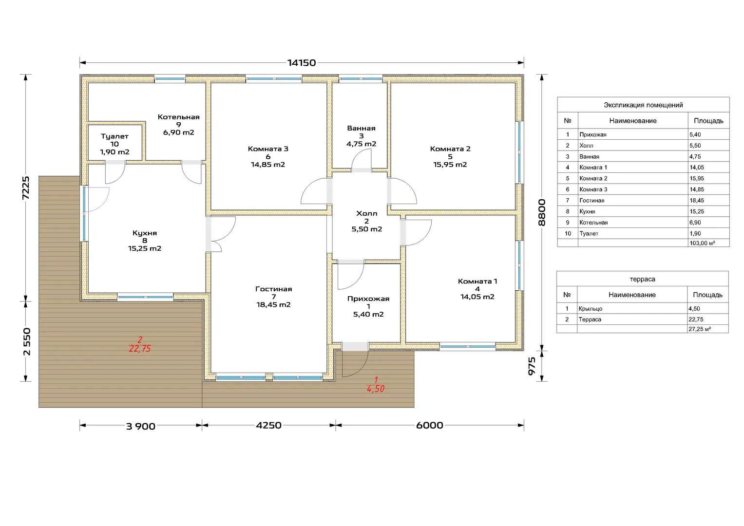
Площадь дома 130 м2
Санузлы 2
Спальни 3

Описание

Приближаясь к новому дому, вы сразу замечаете его простую элегантность: строгий скандинавский стиль, нежно-деревянный каркас и воздушный открытый дизайн создают ощущение лёгкого баланса между природой и уютом. Здания с одним надземным этажом, как и ваш избранный дом, дарят свободный поток света, а отсутствие балконов и веранд позволяет полностью погрузиться в спокойствие внутри – здесь каждое утро просыпается на свежем воздухе, а вечер уюта сгущается в тёплых объёмах обыденных комнат. Круглогодичное проживание – не просто слово, а обещание комфорта в любой сезон. Современная комбинированная кровля защищает от непогоды, а деревянный каркас сохраняет тепло и одновременно вписывается в природный ландшафт участка. Тёплый, приглушённый свет проникает сквозь большие окна, создавая безмятежную атмосферу, где каждая деталь проработана до мелочей, чтобы ваш дом стал не только местом силы, но и оазисом покоя. Ещё одним преимуществом является удобный SHIP100 с выносом, который предоставляет гибкость в использовании: будь то мастерская, хранилище или дополнительное жилое пространство, его наличие расширяет функционал дома без потери дизайна. Присутствие террасы добавляет ещё один уровень живого пространства, где можно наслаждаться завтраком на солнце или вечерним шиком при звёздном небе. В итоге, ваш новый одинэтажный дом – это идеальный союз простоты и уюта, созданный для тех, кто ищет гармонию с природой и удобство без компромиссов.

Характеристики дома

Архитектурный стиль
Автоматизированное регулирование параметров теплоносителя
Да
Балконы/лоджии
Отсутствуют
Чердачное помещение
Нет
Датчики протечки воды
Нет
Эксплуатируемая или зеленая кровля
Нет
Электроснабжение
Центральное
Газоснабжение
Центральное
Изоляция воздушного шума
Да
Камин
Нет
Класс энергоэффективности
A
Класс энергосбережения
A
Количество надземных этажей
1
Круглогодичное проживание
Да
Материал кровли
Металлочерепица
Материал перекрытий
Деревянные
Материал внешних стен
Материал внутренних перегородок
Гипсокартонные
Модульное строительство с конструкциями заводского изготовления
Нет
Объем надземной части
309 м3
Основной материал фасадов
Дерево
Отопление
Индивидуальное
Площадь дома
130 м2
Площадь застройки
152 м2
Подвальное помещение
Нет
Показатель компактности здания
1.1
Приборы учета тепловой энергии
Да
Пристроенный гараж/крытая автостоянка
Нет
Противопожарная система
Нет
Санузлы
2
Совмещенная кухня-гостиная
Нет
Спальни
3
Терраса
Да
Тип фундамента
Плитный
Тип кровли
Толщина внешних стен
285 мм
Толщина внутренних перегородок
125 мм
Улучшенные шумовые характеристики
Да
Вентиляция
Принудительная
Веранда
Нет
Водоотведение
Локальные очистные сооружения
Водоснабжение
Индивидуальное
Высота дома
4.5 м
Высота потолков
2.8 м

Планировка

Фасад дома

Александр

Закажите выезд инженера

Александр

Выездной инженер
Закажите выезд инженера для точной диагностики и профессиональной консультации по инженерным системам. Специалист приедет в удобное время, проведёт осмотр, рассчитает стоимость работ и подберёт оптимальные решения для вашего дома.


    Похожие проекты

    Ипотека и
    рассрочка
    Одноэтажный дом 85 м2
    Стоимость от:
    6 768 300
    Проект от: 38 250
    Этажей 1
    Санузлы 1
    Спальни 3
    Смотреть
    Ипотека и
    рассрочка
    Берген
    Стоимость от:
    10 133 160
    Проект от: 76 050
    Этажей 2
    Санузлы 1
    Спальни 3
    Смотреть
    Ипотека и
    рассрочка
    Мансардный дом «Лазарь» 7*7
    Стоимость от:
    5 098 200
    Проект от: 38 250
    Этажей 2
    Санузлы 1
    Спальни 3
    Смотреть
    Ипотека и
    рассрочка
    Двухэтажный дом Дабл
    Стоимость от:
    4 272 840
    Проект от: 29 700
    Этажей 2
    Санузлы 1
    Спальни 1
    Смотреть
    Ипотека и
    рассрочка
    Этажи комфорта загородный
    Стоимость от:
    7 899 120
    Проект от: 50 850
    Этажей 2
    Санузлы 2
    Спальни 3
    Смотреть
    Ипотека и
    рассрочка
    Одиссей К255-1 (Каркасный дом)
    Стоимость от:
    11 478 060
    Проект от: 89 100
    Этажей 1
    Санузлы 2
    Спальни 3
    Смотреть

    Как узнать стоимость дома

    back
    Оставляете заявку
    Вы заполняете форму на сайте или звоните нам. Менеджер Лайвкрафт связывается с вами для уточнения деталей: тип дома, площадь, материалы, участок строительства.
    back
    Консультация и подбор решения
    Наш специалист помогает выбрать оптимальный тип дома и конструкцию с учётом бюджета, сроков и целей — будь то дом для постоянного проживания или дача.
    back
    Расчёт предварительной стоимости
    Инженер делает первичный расчёт стоимости строительства по вашим параметрам: фундамент, коробка, кровля, отделка. Вы получаете смету с разбивкой по этапам.
    back
    Корректировка и утверждение сметы
    При необходимости вносим изменения — например, замену материалов или сокращение этапов. После согласования формируется окончательная фиксированная смета.
    back
    Заключение договора и старт работ
    После утверждения сметы заключаем официальный договор с гарантией. Вы получаете прозрачный график и точную стоимость — без скрытых расходов.

    Заказать конусльтацию по:Одноэтажный дом с выносом SHIP100

    Фото 1 Одноэтажный дом с выносом SHIP100


      Наши
      контакты

      Дмитров
      Опорный проезд 28Б
      (индустриальный парк Ниагара)
      9:00 до 18:00

      Корзина