4.9
Рейтинг на основании 120 отзывов
Дмитров
Опорный проезд 28Б
(индустриальный парк Ниагара)
Бренд "Дмитров-Дело" c 2008 года на рынке строительства в Дмитрове
Звоните 9:00 до 18:00 8 (915) 055-33-61
Бренд "Дмитров-Дело" c 2008 года на рынке строительства в Дмитрове

Одноэтажный дом СП 17

Стоимость проекта от:
30 600 ₽
Стоимость строительства от:
5 114 560 ₽
Артикул ART-10112
Дата 25.12.2025
Архитектурный стиль Европейский
Количество надземных этажей 1
Круглогодичное проживание Да
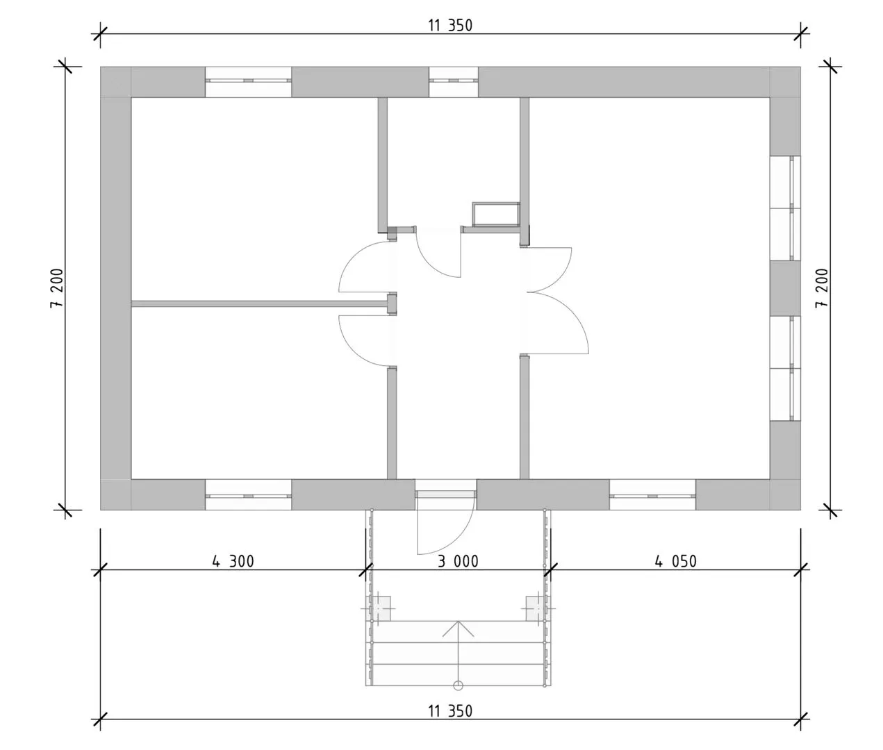
Площадь дома 68 м2
Санузлы 1
Спальни 2

Описание

**Одноэтажный дом в очаровательной европейской стилистике – ваш уют в сердце города** Внутреннее пространство одного этажа в доме СП 17 открывает атмосферу лёгкости и простора. Вся конструкция выполнена из газобетонных блоков, что обеспечивает отличную звуко- и теплоизоляцию, а также устойчивость к климатическим колебаниям. Зимою тепло, летним – прохлада, и каждый день будет проживаться в комфорте, ведь кровля с четырёхскатной (вальмовой) схемой обеспечивает быстрый отвод дождей и приятную вентиляцию. Стиль европейского дизайна просматривается во всех деталях: строгие линии фасада, гармонично интегрированные окна и изящная отделка интерьера, создающие ощущение современного, но в то же время классического уюта. Дом рассчитан на круглогодичную жизнь – от светлых летних дней до уютных холодных вечеров. Несмотря на отсутствие балконов, веранд и причёрстков, просторные комнаты и продуманная планировка компенсируют это, создавая полноценную жилую атмосферу. Этот дом – идеальный выбор для семьи, которая ценит функциональность, высокое качество строительства и атмосферу европейского комфорта. Станьте владельцем – ощутите, как простота и уют сливаются в одном месте. Контактируйте сегодня, чтобы узнать подробности и увидеть дом своими глазами.

Характеристики дома

Архитектурный стиль
Европейский
Автоматизированное регулирование параметров теплоносителя
-
Балконы/лоджии
Отсутствуют
Чердачное помещение
Нет
Датчики протечки воды
-
Эксплуатируемая или зеленая кровля
-
Электроснабжение
2 варианта
Газоснабжение
2 варианта
Изоляция воздушного шума
-
Камин
Нет
Класс энергоэффективности
-
Класс энергосбережения
-
Количество надземных этажей
1
Круглогодичное проживание
Да
Материал кровли
Металлочерепица
Материал перекрытий
Монолитные железобетонные по металлическим балкам
Материал внешних стен
Газобетонные блоки
Материал внутренних перегородок
Блочные
Модульное строительство с конструкциями заводского изготовления
Нет
Объем надземной части
620 м3
Основной материал фасадов
Облицовочный кирпич
Отопление
2 варианта
Площадь дома
68 м2
Площадь застройки
81 м2
Подвальное помещение
Нет
Показатель компактности здания
-
Приборы учета тепловой энергии
-
Пристроенный гараж/крытая автостоянка
Нет
Противопожарная система
Нет
Санузлы
1
Совмещенная кухня-гостиная
Да
Спальни
2
Терраса
Нет
Тип фундамента
Свайно-ростверковый
Тип кровли
Четырехскатная (вальмовая)
Толщина внешних стен
375 мм
Толщина внутренних перегородок
150 мм
Улучшенные шумовые характеристики
-
Вентиляция
Естественная
Веранда
Нет
Водоотведение
2 варианта
Водоснабжение
2 варианта
Высота дома
5.34 м
Высота потолков
3.1 м

Планировка

Фасад дома

Александр

Закажите выезд инженера

Александр

Выездной инженер
Закажите выезд инженера для точной диагностики и профессиональной консультации по инженерным системам. Специалист приедет в удобное время, проведёт осмотр, рассчитает стоимость работ и подберёт оптимальные решения для вашего дома.


    Похожие проекты

    Ипотека и
    рассрочка
    Каркасный дом 19х12 Оржицы 22РИ12.00
    Стоимость от:
    11 850 300
    Проект от: 89 100
    Этажей 2
    Санузлы 3
    Спальни 5
    Смотреть
    Ипотека и
    рассрочка
    Загородный дом «Кит»
    Стоимость от:
    4 166 580
    Проект от: 26 550
    Этажей 1
    Санузлы 1
    Спальни 2
    Смотреть
    Ипотека и
    рассрочка
    Шале 140 м²
    Стоимость от:
    10 208 000
    Проект от: 63 000
    Этажей 1
    Санузлы 2
    Спальни 3
    Смотреть
    Ипотека и
    рассрочка
    КЛМ 093
    Стоимость от:
    9 198 480
    Проект от: 57 150
    Этажей 2
    Санузлы 2
    Спальни 3
    Смотреть
    Ипотека и
    рассрочка
    Барн хаус Соловей, 8*12
    Стоимость от:
    4 094 035
    Проект от: 30 150
    Этажей 1
    Санузлы 1
    Спальни 2
    Смотреть
    Ипотека и
    рассрочка
    Дом Людмила
    Стоимость от:
    4 069 800
    Проект от: 30 600
    Этажей 2
    Санузлы 1
    Спальни 2
    Смотреть

    Как узнать стоимость дома

    back
    Оставляете заявку
    Вы заполняете форму на сайте или звоните нам. Менеджер Лайвкрафт связывается с вами для уточнения деталей: тип дома, площадь, материалы, участок строительства.
    back
    Консультация и подбор решения
    Наш специалист помогает выбрать оптимальный тип дома и конструкцию с учётом бюджета, сроков и целей — будь то дом для постоянного проживания или дача.
    back
    Расчёт предварительной стоимости
    Инженер делает первичный расчёт стоимости строительства по вашим параметрам: фундамент, коробка, кровля, отделка. Вы получаете смету с разбивкой по этапам.
    back
    Корректировка и утверждение сметы
    При необходимости вносим изменения — например, замену материалов или сокращение этапов. После согласования формируется окончательная фиксированная смета.
    back
    Заключение договора и старт работ
    После утверждения сметы заключаем официальный договор с гарантией. Вы получаете прозрачный график и точную стоимость — без скрытых расходов.

    Заказать конусльтацию по:Одноэтажный дом СП 17

    Фото 1 Одноэтажный дом СП 17


      Наши
      контакты

      Дмитров
      Опорный проезд 28Б
      (индустриальный парк Ниагара)
      9:00 до 18:00

      Корзина