4.9
Рейтинг на основании 120 отзывов
Дмитров
Опорный проезд 28Б
(индустриальный парк Ниагара)
Бренд "Дмитров-Дело" c 2008 года на рынке строительства в Дмитрове
Звоните 9:00 до 18:00 8 (915) 055-33-61
Бренд "Дмитров-Дело" c 2008 года на рынке строительства в Дмитрове

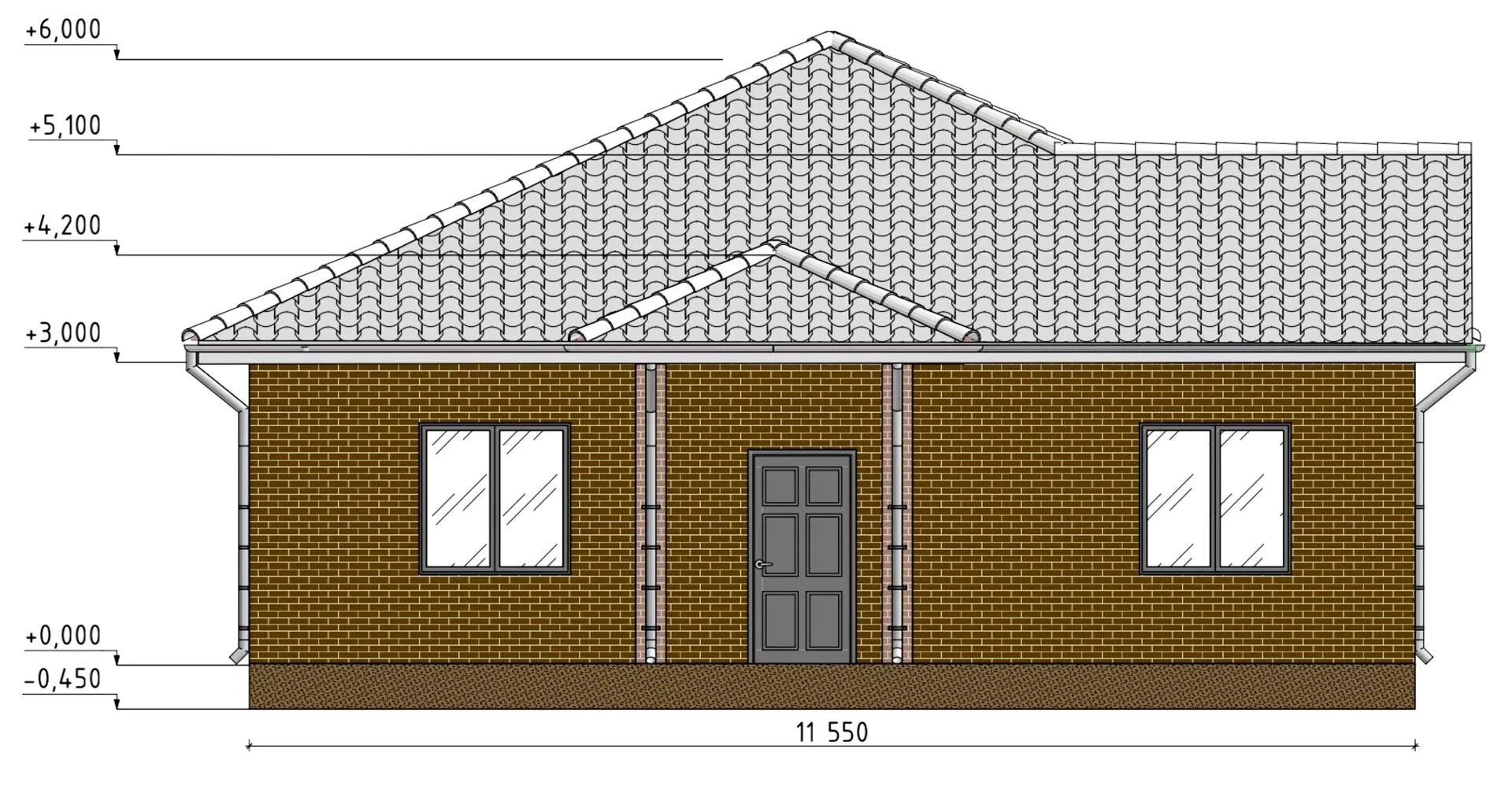
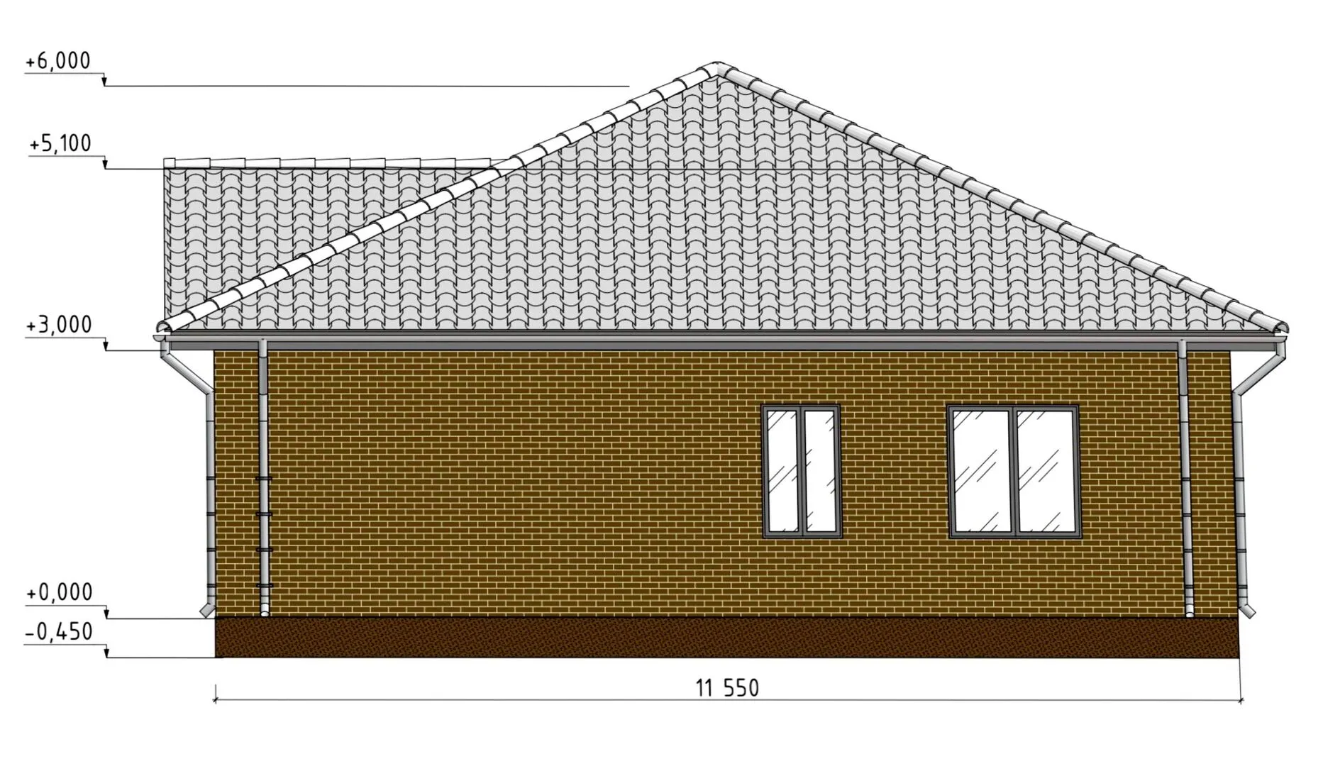
Одноэтажный дом СП 38

Стоимость проекта от:
50 850 ₽
Стоимость строительства от:
8 490 460 ₽
Артикул ART-10598
Дата 25.12.2025
Архитектурный стиль Европейский
Количество надземных этажей 1
Круглогодичное проживание Да
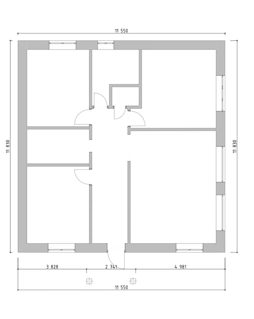
Площадь дома 113 м2
Санузлы 1
Спальни 3

Описание

Добро пожаловать в уютный уголок, где традиции европейского стиля сливаются с современными удобствами. Это одноэтажный дом, созданный для круглогодичного проживания, располагается в тихом придорожном участке, где каждая деталь продумана до мелочей. Газобетонные блоки внешних стен обеспечивают теплоизоляцию и звукоизоляцию, при этом сохраняют легкость и прозрачность естественного освещения. Четырехскатная (вальмовая) крыша придает зданию элегантный профиль, а её современный вид легко вписывается в любой ландшафт. Планировка пространства проста и гибка: открытая кухня‑гостиная с большим оконным фасадом создаёт ощущение простора и свободы. Жилые зоны можно легко организовать в соответствии с вашими предпочтениями – от просторного семейного пространства до уединённого рабочего уголка. Несмотря на то, что балконы и лоджии отсутствуют, большие окна обеспечивают великолепную видимость и позволяют наслаждаться внешними пейзажами прямо из дома. Без прицепленного гаража автомобильные парковки остаются открытыми, обеспечивая комфорт и простоту доступа. Идеальный дом для тех, кто ценит сочетание функциональности и эстетики. Его европейский шарм, продуманная изоляция, и простая, но элегантная конструкция делают его привлекательным выбором как для молодой семьи, так и для тех, кто ищет простую, но комфортную недвижимость для спокойной жизни. Откройте для себя новый стандарт домашнего уюта – ваш будущий дом уже ждёт ваших шагов!

Характеристики дома

Архитектурный стиль
Европейский
Автоматизированное регулирование параметров теплоносителя
-
Балконы/лоджии
Отсутствуют
Чердачное помещение
Нет
Датчики протечки воды
-
Эксплуатируемая или зеленая кровля
-
Электроснабжение
2 варианта
Газоснабжение
2 варианта
Изоляция воздушного шума
-
Камин
Нет
Класс энергоэффективности
-
Класс энергосбережения
-
Количество надземных этажей
1
Круглогодичное проживание
Да
Материал кровли
Металлочерепица
Материал перекрытий
Монолитные железобетонные
Материал внешних стен
Газобетонные блоки
Материал внутренних перегородок
Блочные
Модульное строительство с конструкциями заводского изготовления
Нет
Объем надземной части
600 м3
Основной материал фасадов
Облицовочный кирпич
Отопление
2 варианта
Площадь дома
113 м2
Площадь застройки
136 м2
Подвальное помещение
Нет
Показатель компактности здания
-
Приборы учета тепловой энергии
-
Пристроенный гараж/крытая автостоянка
Нет
Противопожарная система
Нет
Санузлы
1
Совмещенная кухня-гостиная
Да
Спальни
3
Терраса
Нет
Тип фундамента
Свайно-ростверковый
Тип кровли
Четырехскатная (вальмовая)
Толщина внешних стен
375 мм
Толщина внутренних перегородок
150 мм
Улучшенные шумовые характеристики
-
Вентиляция
Естественная
Веранда
Нет
Водоотведение
2 варианта
Водоснабжение
2 варианта
Высота дома
6 м
Высота потолков
3.1 м

Планировка

Фасад дома

Александр

Закажите выезд инженера

Александр

Выездной инженер
Закажите выезд инженера для точной диагностики и профессиональной консультации по инженерным системам. Специалист приедет в удобное время, проведёт осмотр, рассчитает стоимость работ и подберёт оптимальные решения для вашего дома.


    Похожие проекты

    Ипотека и
    рассрочка
    Одноэтажный дом с плоской эксплуатируемой крышей. Проект»Калифорния»
    Стоимость от:
    12 315 600
    Проект от: 81 000
    Этажей 1
    Санузлы 2
    Спальни 3
    Смотреть
    Ипотека и
    рассрочка
    Двухэтажный загородный дом №303-2
    Стоимость от:
    10 476 000
    Проект от: 67 500
    Этажей 2
    Санузлы 2
    Спальни 4
    Смотреть
    Ипотека и
    рассрочка
    Одноэтажный дом с плоской крышей и тремя спальнями
    Стоимость от:
    6 004 460
    Проект от: 44 100
    Этажей 1
    Санузлы 1
    Спальни 3
    Смотреть
    Ипотека и
    рассрочка
    Каркасный дом «Оззи»
    Стоимость от:
    6 297 000
    Проект от: 47 250
    Этажей 2
    Санузлы 1
    Спальни 3
    Смотреть
    Ипотека и
    рассрочка
    Райт 128
    Стоимость от:
    9 090 620
    Проект от: 54 450
    Этажей 1
    Санузлы 2
    Спальни 3
    Смотреть
    Ипотека и
    рассрочка
    Одноэтажного дома Бунгало M
    Стоимость от:
    7 418 400
    Проект от: 49 500
    Этажей 1
    Санузлы 1
    Спальни 2
    Смотреть

    Как узнать стоимость дома

    back
    Оставляете заявку
    Вы заполняете форму на сайте или звоните нам. Менеджер Лайвкрафт связывается с вами для уточнения деталей: тип дома, площадь, материалы, участок строительства.
    back
    Консультация и подбор решения
    Наш специалист помогает выбрать оптимальный тип дома и конструкцию с учётом бюджета, сроков и целей — будь то дом для постоянного проживания или дача.
    back
    Расчёт предварительной стоимости
    Инженер делает первичный расчёт стоимости строительства по вашим параметрам: фундамент, коробка, кровля, отделка. Вы получаете смету с разбивкой по этапам.
    back
    Корректировка и утверждение сметы
    При необходимости вносим изменения — например, замену материалов или сокращение этапов. После согласования формируется окончательная фиксированная смета.
    back
    Заключение договора и старт работ
    После утверждения сметы заключаем официальный договор с гарантией. Вы получаете прозрачный график и точную стоимость — без скрытых расходов.

    Заказать конусльтацию по:Одноэтажный дом СП 38

    Фото 1 Одноэтажный дом СП 38


      Наши
      контакты

      Дмитров
      Опорный проезд 28Б
      (индустриальный парк Ниагара)
      9:00 до 18:00

      Корзина