4.9
Рейтинг на основании 120 отзывов
Дмитров
Опорный проезд 28Б
(индустриальный парк Ниагара)
Бренд "Дмитров-Дело" c 2008 года на рынке строительства в Дмитрове
Звоните 9:00 до 18:00 8 (915) 055-33-61
Бренд "Дмитров-Дело" c 2008 года на рынке строительства в Дмитрове

Одноэтажный дом террасой на крыше ДПБ34

Стоимость проекта от:
81 900 ₽
БЕСПЛАТНО! ПРИ ЗАКАЗЕ СТРОИТЕЛЬСТВА
Стоимость строительства от:
12 943 680 ₽
Артикул ART-2289
Дата 26.12.2025
Архитектурный стиль Хайтек
Количество надземных этажей 2
Круглогодичное проживание Да
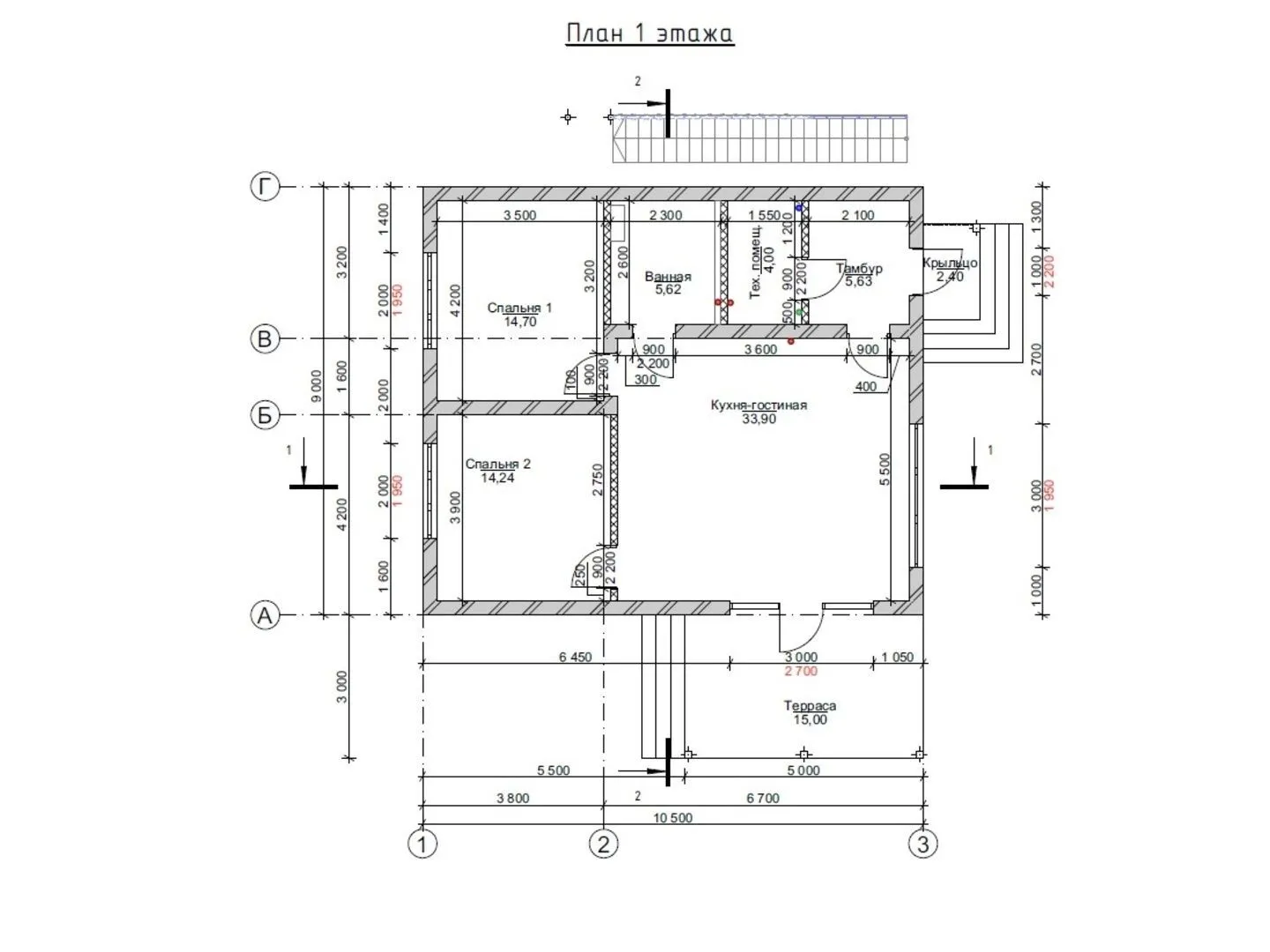
Площадь дома 182 м2
Санузлы 2
Спальни 2

Описание

**Добро пожаловать в дом, где современность встречается с комфортом.** Модель DPB34 – это идеальное сочетание лаконичного хай‑тек дизайна и практичных решений. Дом, построенный из высококачественного полистиролбетона, радует чистыми геометрическими линиями и продуманными пропорциями, а плоская крыша с просторной террасой создает уникальное пространство для отдыха и общения. Благодаря тщательно подобранной теплоизоляции и современным системам отопления и вентиляции, ваш дом будет уютным и энергоэффективным круглый год, а большие окна пропустят солнечный свет и обеспечат панорамный вид на окружающую природу. **Уникальные детали делают каждый день особенным.** Внутреннее планировочное решение открытое и гибкое: свободный лоскут большой гостиной, куда можно раздвигать двери в открытый двор и наслаждаться солнечным светом, а спальня с панорамным окном создаст атмосферу спокойствия. Плюс, у нас есть уютный балкон, где можно утреннее кофе и вечернее чтение, а также простая, но стильная лофт-версия в открытом веранде – для тех, кто любит простоту и функциональность. Отсутствие крытой автостоянки позволяет вам наслаждаться открытой территорией и дополнительным пространством для садовых развлечений. **Стиль, комфорт, и свобода выбора.** Дом DPB34 – это не просто строение, а ваш новый образ жизни, где каждая деталь продумана задолго до того, как вы войдете в дверь. Если вы цените современность без лишних привязей, ищете пространство, где можно отдыхать, работать и развлекаться – наш дом откроет перед вами просторы без компромиссов. Приглашаем вас стать частью этого стильного, высокотехнологичного дома, готового превратить обычные будни в настоящее вдохновение.

Характеристики дома

Архитектурный стиль
Автоматизированное регулирование параметров теплоносителя
-
Балконы/лоджии
1
Чердачное помещение
Нет
Датчики протечки воды
-
Эксплуатируемая или зеленая кровля
-
Электроснабжение
Центральное
Газоснабжение
Не предусмотрено
Изоляция воздушного шума
-
Камин
Нет
Класс энергоэффективности
-
Класс энергосбережения
-
Количество надземных этажей
2
Круглогодичное проживание
Да
Материал кровли
ПВХ мембраны
Материал перекрытий
Сборные железобетонные многопустотные плиты
Материал внешних стен
Материал внутренних перегородок
Модульное строительство с конструкциями заводского изготовления
Нет
Объем надземной части
-
Основной материал фасадов
Штукатурка
Отопление
Индивидуальное
Площадь дома
182 м2
Площадь застройки
116 м2
Подвальное помещение
Нет
Показатель компактности здания
-
Приборы учета тепловой энергии
-
Пристроенный гараж/крытая автостоянка
Нет
Противопожарная система
Нет
Санузлы
2
Совмещенная кухня-гостиная
Да
Спальни
2
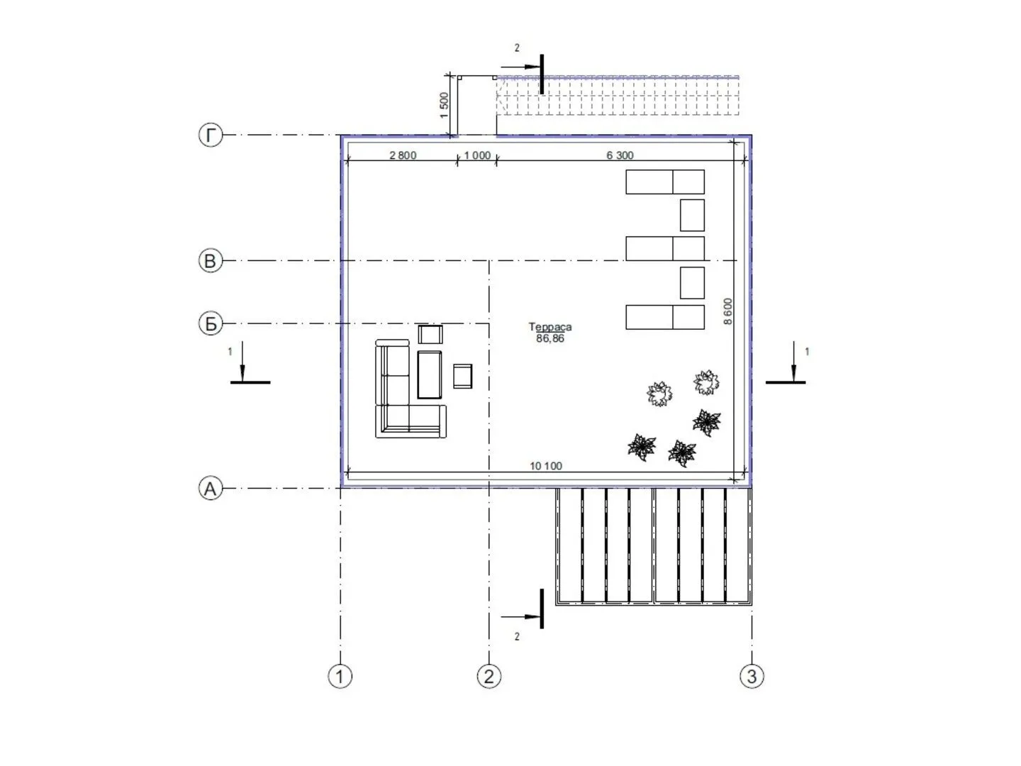
Терраса
Да
Тип фундамента
Свайно-ростверковый
Тип кровли
Толщина внешних стен
300 мм
Толщина внутренних перегородок
200 мм
Улучшенные шумовые характеристики
-
Вентиляция
2 варианта
Веранда
Нет
Водоотведение
Локальные очистные сооружения
Водоснабжение
Индивидуальное
Высота дома
3.9 м
Высота потолков
3 м

Планировка

Фасад дома

Информация скоро появится.

Александр

Закажите выезд инженера

Александр

Выездной инженер
Закажите выезд инженера для точной диагностики и профессиональной консультации по инженерным системам. Специалист приедет в удобное время, проведёт осмотр, рассчитает стоимость работ и подберёт оптимальные решения для вашего дома.


    Похожие проекты

    Ипотека и
    рассрочка
    Каркасный одноэтажный дом с террасой
    Стоимость от:
    3 583 910
    Проект от: 27 900
    Этажей 1
    Санузлы 1
    Спальни 2
    Смотреть
    Ипотека и
    рассрочка
    Барнхаус СК — 74
    Стоимость от:
    4 126 980
    Проект от: 33 300
    Этажей 1
    Санузлы 1
    Спальни 2
    Смотреть
    Ипотека и
    рассрочка
    Проект загородного дома NHD-143
    Стоимость от:
    9 116 640
    Проект от: 56 700
    Этажей 2
    Санузлы 2
    Спальни 4
    Смотреть
    Ипотека и
    рассрочка
    Красивый одноэтажный дом №361
    Стоимость от:
    9 180 600
    Проект от: 58 500
    Этажей 1
    Санузлы 2
    Спальни 4
    Смотреть
    Ипотека и
    рассрочка
    СКАНДИ
    Стоимость от:
    4 115 870
    Проект от: 31 950
    Этажей 1
    Санузлы 1
    Спальни 2
    Смотреть
    Ипотека и
    рассрочка
    СКС-11
    Стоимость от:
    13 789 440
    Проект от: 97 200
    Этажей 2
    Санузлы 3
    Спальни 5
    Смотреть

    Как узнать стоимость дома

    back
    Оставляете заявку
    Вы заполняете форму на сайте или звоните нам. Менеджер Лайвкрафт связывается с вами для уточнения деталей: тип дома, площадь, материалы, участок строительства.
    back
    Консультация и подбор решения
    Наш специалист помогает выбрать оптимальный тип дома и конструкцию с учётом бюджета, сроков и целей — будь то дом для постоянного проживания или дача.
    back
    Расчёт предварительной стоимости
    Инженер делает первичный расчёт стоимости строительства по вашим параметрам: фундамент, коробка, кровля, отделка. Вы получаете смету с разбивкой по этапам.
    back
    Корректировка и утверждение сметы
    При необходимости вносим изменения — например, замену материалов или сокращение этапов. После согласования формируется окончательная фиксированная смета.
    back
    Заключение договора и старт работ
    После утверждения сметы заключаем официальный договор с гарантией. Вы получаете прозрачный график и точную стоимость — без скрытых расходов.

    Заказать конусльтацию по:Одноэтажный дом террасой на крыше ДПБ34

    Фото 1 Одноэтажный дом террасой на крыше ДПБ34


      Наши
      контакты

      Дмитров
      Опорный проезд 28Б
      (индустриальный парк Ниагара)
      9:00 до 18:00

      Корзина