4.9
Рейтинг на основании 120 отзывов
Дмитров
Опорный проезд 28Б
(индустриальный парк Ниагара)
Бренд "Дмитров-Дело" c 2008 года на рынке строительства в Дмитрове
Звоните 9:00 до 18:00 8 (915) 055-33-61
Бренд "Дмитров-Дело" c 2008 года на рынке строительства в Дмитрове

Одноэтажный дом в классическом стиле «Диана»

Стоимость проекта от:
60 300 ₽
БЕСПЛАТНО! ПРИ ЗАКАЗЕ СТРОИТЕЛЬСТВА
Стоимость строительства от:
8 504 980 ₽
Артикул ART-13244
Дата 25.12.2025
Архитектурный стиль Классический
Количество надземных этажей 1
Круглогодичное проживание Да
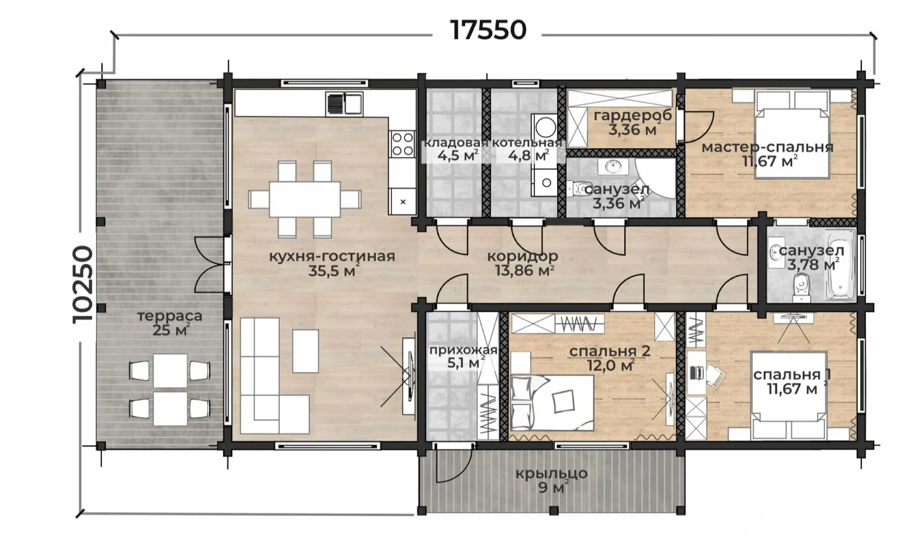
Площадь дома 134 м2
Санузлы 2
Спальни 3

Описание

В сердце уютного квартала находится дома­вый шедевр в классическом стиле «Диана» – одноэтажный уютный уголок, где каждая деталь пропитана гармонией традиции и современного комфорта. Снятые с грифовых шпилей и тонко вырезанные детали из клеёного бруса создают ощущение натурального, теплого дома, который вписывается в любое природное окружение. Его двускатная крыша, пропитанная ветрами и дождями, обеспечивает надёжную защиту и добавляет архитектуре изящества и элегантности. Постройка ориентирована на круглогодичную жизнь: крепкие стеклянные окна пропускают свет даже в прохладные утренние часы, а просторный центральный холл плавно переходит в удобные комнаты, где каждая зона – это отдельная история комфорта. Отсутствие балконов и веранд не мешает почувствовать связь с природой – открытый вид на внутренний двор и зеленый ландшафт создают свой собственный оазис уюта. Отсутствие пристроенного гаража не затрудняет, а наоборот, подчеркивает чистоту линии архитектуры и простоту городской жизни без лишних «пушек». «Диана» – это дом, где традиционная классика встречается с требованиями современного образа жизни. Её неповторимый стиль, качественная кладка из клеёного бруса, надёжная двускатная крыша и продуманный внутренний план делают этот объект идеальным выбором для тех, кто ценит эстетику, комфорт и долговечность. Дайте себе возможность открыть дверь в уют, где каждое утро обещает тепло, а каждый вечер – спокойствие.

Характеристики дома

Архитектурный стиль
Автоматизированное регулирование параметров теплоносителя
Нет
Балконы/лоджии
Отсутствуют
Чердачное помещение
Нет
Датчики протечки воды
Нет
Эксплуатируемая или зеленая кровля
Нет
Электроснабжение
Индивидуальное
Газоснабжение
Не предусмотрено
Изоляция воздушного шума
Нет
Камин
Нет
Класс энергоэффективности
-
Класс энергосбережения
-
Количество надземных этажей
1
Круглогодичное проживание
Да
Материал кровли
Металлочерепица
Материал перекрытий
Деревянные
Материал внешних стен
Материал внутренних перегородок
Деревянные
Модульное строительство с конструкциями заводского изготовления
Нет
Объем надземной части
578 м3
Основной материал фасадов
Дерево
Отопление
Индивидуальное
Площадь дома
134 м2
Площадь застройки
192 м2
Подвальное помещение
Нет
Показатель компактности здания
-
Приборы учета тепловой энергии
Нет
Пристроенный гараж/крытая автостоянка
Нет
Противопожарная система
Нет
Санузлы
2
Совмещенная кухня-гостиная
Да
Спальни
3
Терраса
Нет
Тип фундамента
Свайный
Тип кровли
Толщина внешних стен
200 мм
Толщина внутренних перегородок
200 мм
Улучшенные шумовые характеристики
Нет
Вентиляция
Естественная
Веранда
Нет
Водоотведение
Локальные очистные сооружения
Водоснабжение
Индивидуальное
Высота дома
4.3 м
Высота потолков
2.7 м

Планировка

Фасад дома

Александр

Закажите выезд инженера

Александр

Выездной инженер
Закажите выезд инженера для точной диагностики и профессиональной консультации по инженерным системам. Специалист приедет в удобное время, проведёт осмотр, рассчитает стоимость работ и подберёт оптимальные решения для вашего дома.


    Похожие проекты

    Ипотека и
    рассрочка
    Барнхаус 125
    Стоимость от:
    5 800 080
    Проект от: 46 800
    Этажей 1
    Санузлы 1
    Спальни 3
    Смотреть
    Ипотека и
    рассрочка
    Каркасный дом «ДК-194»
    Стоимость от:
    5 060 055
    Проект от: 40 950
    Этажей 1
    Санузлы 1
    Спальни 2
    Смотреть
    Ипотека и
    рассрочка
    Индивидуальный дом 153
    Стоимость от:
    10 468 260
    Проект от: 68 850
    Этажей 1
    Санузлы 3
    Спальни 3
    Смотреть
    Ипотека и
    рассрочка
    Проект A022
    Стоимость от:
    5 639 700
    Проект от: 33 750
    Этажей 1
    Санузлы 1
    Спальни 3
    Смотреть
    Ипотека и
    рассрочка
    Одноэтажный дом FK-176 Пестрецы
    Стоимость от:
    13 216 720
    Проект от: 79 200
    Этажей 1
    Санузлы 2
    Спальни 3
    Смотреть
    Ипотека и
    рассрочка
    Next-72-1
    Стоимость от:
    5 577 440
    Проект от: 32 400
    Этажей 1
    Санузлы 1
    Спальни 2
    Смотреть

    Как узнать стоимость дома

    back
    Оставляете заявку
    Вы заполняете форму на сайте или звоните нам. Менеджер Лайвкрафт связывается с вами для уточнения деталей: тип дома, площадь, материалы, участок строительства.
    back
    Консультация и подбор решения
    Наш специалист помогает выбрать оптимальный тип дома и конструкцию с учётом бюджета, сроков и целей — будь то дом для постоянного проживания или дача.
    back
    Расчёт предварительной стоимости
    Инженер делает первичный расчёт стоимости строительства по вашим параметрам: фундамент, коробка, кровля, отделка. Вы получаете смету с разбивкой по этапам.
    back
    Корректировка и утверждение сметы
    При необходимости вносим изменения — например, замену материалов или сокращение этапов. После согласования формируется окончательная фиксированная смета.
    back
    Заключение договора и старт работ
    После утверждения сметы заключаем официальный договор с гарантией. Вы получаете прозрачный график и точную стоимость — без скрытых расходов.

    Заказать конусльтацию по:Одноэтажный дом в классическом стиле «Диана»

    Фото 1 Одноэтажный дом в классическом стиле «Диана»


      Наши
      контакты

      Дмитров
      Опорный проезд 28Б
      (индустриальный парк Ниагара)
      9:00 до 18:00

      Корзина