4.9
Рейтинг на основании 120 отзывов
Дмитров
Опорный проезд 28Б
(индустриальный парк Ниагара)
Бренд "Дмитров-Дело" c 2008 года на рынке строительства в Дмитрове
Звоните 9:00 до 18:00 8 (915) 055-33-61
Бренд "Дмитров-Дело" c 2008 года на рынке строительства в Дмитрове

Одноэтажный дом в современном стиле с гаражом на 2 авто SS-303

Стоимость проекта от:
168 300 ₽
БЕСПЛАТНО! ПРИ ЗАКАЗЕ СТРОИТЕЛЬСТВА
Стоимость строительства от:
25 589 080 ₽
Артикул ART-10832
Дата 25.12.2025
Архитектурный стиль Хайтек
Количество надземных этажей 1
Круглогодичное проживание Да
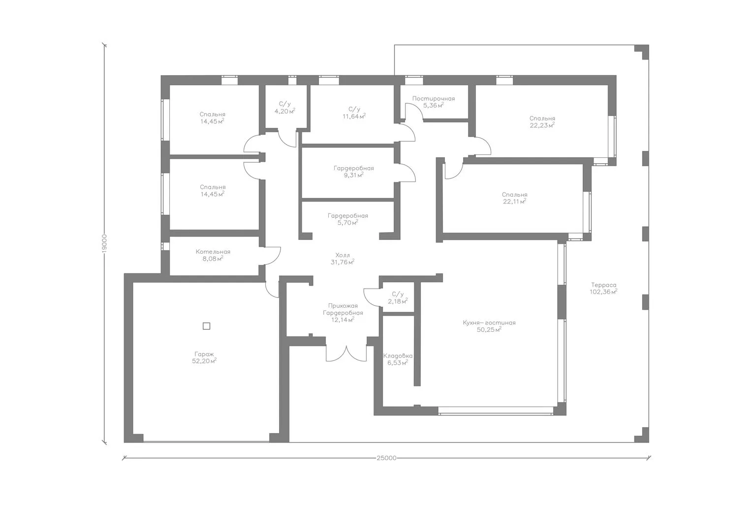
Площадь дома 374 м2
Санузлы 3
Спальни 4

Описание

Дом SS‑303 – это воплощение современной элегантности и уюта, расположенный в спокойном, но живописном районе. Одиннадцати этажей, который, однако, остаётся целиком в одном надземном пространстве, подарит просторную квартиру с открытой планировкой. Внутри дом излучает дух хай‑тек архитектуры: простые линии, большие стеклянные панели и светлые оттекания создают ощущение лёгкости и простора. Вся ваша жизнь будет комфортной в любое время года: теплоизоляция и современная система отопления обеспечат круглогодичное проживание, а стеклянные фасады пропускают естественный свет, даря весенний свет и летний жар. Ключевой особенностью становится приарендный гараж, способный вместить два автомобиля. Это не просто удобное решение для хранения авто, но и дополнительная защита ваших транспортных средств в любом сезоне. Плоская крыша, выполненная из надежных газобетонных блоков, подтверждает долговечность и функциональность. Вместе с уютной террасой над крышей, вы можете наслаждаться свободным воздухом и закатами у своего дома. Каждый элемент дома построен с учётом вашего комфорта: простота в обслуживании, отсутствие балконов и веранд позволяет сосредоточиться на создании благоприятной атмосферы уюта внутри. SS‑303 станет вашим тихим убежищем от суеты города, где современные технологии сочетаются с удобством и эстетикой. Приглашаем вас открыть двери в новый стиль жизни.

Характеристики дома

Архитектурный стиль
Автоматизированное регулирование параметров теплоносителя
Нет
Балконы/лоджии
Отсутствуют
Чердачное помещение
Нет
Датчики протечки воды
Нет
Эксплуатируемая или зеленая кровля
Да
Электроснабжение
2 варианта
Газоснабжение
2 варианта
Изоляция воздушного шума
Нет
Камин
Нет
Класс энергоэффективности
-
Класс энергосбережения
-
Количество надземных этажей
1
Круглогодичное проживание
Да
Материал кровли
Рулонные битумно-полимерные покрытия
Материал перекрытий
Монолитные железобетонные
Материал внешних стен
Материал внутренних перегородок
Блочные
Модульное строительство с конструкциями заводского изготовления
Нет
Объем надземной части
2145 м3
Основной материал фасадов
Штукатурка
Отопление
2 варианта
Площадь дома
374 м2
Площадь застройки
439 м2
Подвальное помещение
Нет
Показатель компактности здания
-
Приборы учета тепловой энергии
Нет
Пристроенный гараж/крытая автостоянка
Да
Противопожарная система
Нет
Санузлы
3
Совмещенная кухня-гостиная
Да
Спальни
4
Терраса
Да
Тип фундамента
Плитный
Тип кровли
Толщина внешних стен
400 мм
Толщина внутренних перегородок
150 мм
Улучшенные шумовые характеристики
Да
Вентиляция
Рекуперация
Веранда
Нет
Водоотведение
2 варианта
Водоснабжение
2 варианта
Высота дома
5.7 м
Высота потолков
3.8 м

Планировка

Фасад дома

Александр

Закажите выезд инженера

Александр

Выездной инженер
Закажите выезд инженера для точной диагностики и профессиональной консультации по инженерным системам. Специалист приедет в удобное время, проведёт осмотр, рассчитает стоимость работ и подберёт оптимальные решения для вашего дома.


    Похожие проекты

    Ипотека и
    рассрочка
    Жилой дом № 10
    Стоимость от:
    6 765 000
    Проект от: 40 500
    Этажей 1
    Санузлы 2
    Спальни 3
    Смотреть
    Ипотека и
    рассрочка
    Каркасный дом 9х9 Гарден
    Стоимость от:
    7 912 080
    Проект от: 59 400
    Этажей 2
    Санузлы 2
    Спальни 5
    Смотреть
    Ипотека и
    рассрочка
    Одноэтажный коттедж «БРИЗ-33»
    Стоимость от:
    9 786 260
    Проект от: 55 350
    Этажей 1
    Санузлы 1
    Спальни 3
    Смотреть
    Ипотека и
    рассрочка
    ИЖД площадью 144 кв.м.
    Стоимость от:
    11 454 080
    Проект от: 64 800
    Этажей 1
    Санузлы 2
    Спальни 5
    Смотреть
    Ипотека и
    рассрочка
    Жилой дом
    Стоимость от:
    7 149 560
    Проект от: 44 100
    Этажей 1
    Санузлы 2
    Спальни 3
    Смотреть
    Ипотека и
    рассрочка
    Одноэтажный дом из массивного профилированого бруса КД164
    Стоимость от:
    5 191 010
    Проект от: 36 900
    Этажей 1
    Санузлы 1
    Спальни 3
    Смотреть

    Как узнать стоимость дома

    back
    Оставляете заявку
    Вы заполняете форму на сайте или звоните нам. Менеджер Лайвкрафт связывается с вами для уточнения деталей: тип дома, площадь, материалы, участок строительства.
    back
    Консультация и подбор решения
    Наш специалист помогает выбрать оптимальный тип дома и конструкцию с учётом бюджета, сроков и целей — будь то дом для постоянного проживания или дача.
    back
    Расчёт предварительной стоимости
    Инженер делает первичный расчёт стоимости строительства по вашим параметрам: фундамент, коробка, кровля, отделка. Вы получаете смету с разбивкой по этапам.
    back
    Корректировка и утверждение сметы
    При необходимости вносим изменения — например, замену материалов или сокращение этапов. После согласования формируется окончательная фиксированная смета.
    back
    Заключение договора и старт работ
    После утверждения сметы заключаем официальный договор с гарантией. Вы получаете прозрачный график и точную стоимость — без скрытых расходов.

    Заказать конусльтацию по:Одноэтажный дом в современном стиле с гаражом на 2 авто SS-303

    Фото 1 Одноэтажный дом в современном стиле с гаражом на 2 авто SS-303


      Наши
      контакты

      Дмитров
      Опорный проезд 28Б
      (индустриальный парк Ниагара)
      9:00 до 18:00

      Корзина