4.9
Рейтинг на основании 120 отзывов
Дмитров
Опорный проезд 28Б
(индустриальный парк Ниагара)
Бренд "Дмитров-Дело" c 2008 года на рынке строительства в Дмитрове
Звоните 9:00 до 18:00 8 (915) 055-33-61
Бренд "Дмитров-Дело" c 2008 года на рынке строительства в Дмитрове

Одноэтажный каркасный дом ИП-92

Стоимость проекта от:
35 100 ₽
БЕСПЛАТНО! ПРИ ЗАКАЗЕ СТРОИТЕЛЬСТВА
Стоимость строительства от:
4 521 660 ₽
Артикул ART-12990
Дата 25.12.2025
Архитектурный стиль Европейский
Количество надземных этажей 1
Круглогодичное проживание Да
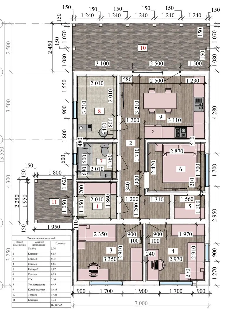
Площадь дома 78 м2
Санузлы 1
Спальни 3

Описание

Сердце этой семьи – уютный однокорневое жилище IP‑92, выполненное по европейскому дизайну, где каждая деталь пронизана теплом и элегантностью. Внутри вас ждут светлые, открытые интерьеры, обретшие комфортность круглый год благодаря продуманной теплоизоляции деревянного каркаса и обшивке. Просторные комнаты, большая кухня‑столовая и тихие уголки для отдыха создают идеальное пространство для семейных праздников и уединённой романтики. Уникальность дома проявляется в его внешней гармонии: строгий двускатный шили, обрамлённый натуральными древесными стенами, в сочетании с современной лаконичной отделкой. Тераса, выходящая из жилой зоны, становится личным пристанищем, где можно наслаждаться рассветом или закатом в окружении садовой зелени. Без чердачного пространства и гаража, дом предлагает более глубокую связь с природой, а наличие только одного надземного этажа облегчает уход и повышает энергоэффективность. Этот дом – воплощение европейского спокойствия и русской душевности, готовый стать началом вашей истории. Он идеален для тех, кто ценит простоту, качество и функциональность, и хочет почувствовать, что каждый день начинается с улыбки перед уютом и светом. Ваша новая жизнь уже ждёт вас.

Характеристики дома

Архитектурный стиль
Автоматизированное регулирование параметров теплоносителя
Нет
Балконы/лоджии
Отсутствуют
Чердачное помещение
Нет
Датчики протечки воды
Нет
Эксплуатируемая или зеленая кровля
Нет
Электроснабжение
Центральное
Газоснабжение
Индивидуальное
Изоляция воздушного шума
Нет
Камин
Нет
Класс энергоэффективности
-
Класс энергосбережения
-
Количество надземных этажей
1
Круглогодичное проживание
Да
Материал кровли
Металлочерепица
Материал перекрытий
Деревянные
Материал внешних стен
Материал внутренних перегородок
Деревянные
Модульное строительство с конструкциями заводского изготовления
Нет
Объем надземной части
242 м3
Основной материал фасадов
Дерево
Отопление
Индивидуальное
Площадь дома
78 м2
Площадь застройки
99 м2
Подвальное помещение
Нет
Показатель компактности здания
-
Приборы учета тепловой энергии
Нет
Пристроенный гараж/крытая автостоянка
Нет
Противопожарная система
Нет
Санузлы
1
Совмещенная кухня-гостиная
Нет
Спальни
3
Терраса
Да
Тип фундамента
Свайный
Тип кровли
Толщина внешних стен
200 мм
Толщина внутренних перегородок
100 мм
Улучшенные шумовые характеристики
Нет
Вентиляция
Естественная
Веранда
Нет
Водоотведение
Локальные очистные сооружения
Водоснабжение
Индивидуальное
Высота дома
4.9 м
Высота потолков
2.8 м

Планировка

Фасад дома

Александр

Закажите выезд инженера

Александр

Выездной инженер
Закажите выезд инженера для точной диагностики и профессиональной консультации по инженерным системам. Специалист приедет в удобное время, проведёт осмотр, рассчитает стоимость работ и подберёт оптимальные решения для вашего дома.


    Похожие проекты

    Ипотека и
    рассрочка
    Загородный барн
    Стоимость от:
    7 971 260
    Проект от: 46 350
    Этажей 1
    Санузлы 2
    Спальни 3
    Смотреть
    Ипотека и
    рассрочка
    Индивидуальный проект Сыктывкар 2.0
    Стоимость от:
    7 659 905
    Проект от: 54 450
    Этажей 1
    Санузлы 1
    Спальни 3
    Смотреть
    Ипотека и
    рассрочка
    ЗК-317
    Стоимость от:
    8 040 340
    Проект от: 48 150
    Этажей 1
    Санузлы 1
    Спальни 3
    Смотреть
    Ипотека и
    рассрочка
    Д-201
    Стоимость от:
    10 982 400
    Проект от: 72 000
    Этажей 2
    Санузлы 2
    Спальни 4
    Смотреть
    Ипотека и
    рассрочка
    Дом из газобетона Вали
    Стоимость от:
    5 418 160
    Проект от: 30 600
    Этажей 1
    Санузлы 2
    Спальни 2
    Смотреть
    Ипотека и
    рассрочка
    Дом с оцилиндрованного бревна
    Стоимость от:
    3 666 300
    Проект от: 27 000
    Этажей 1
    Санузлы 1
    Спальни 2
    Смотреть

    Как узнать стоимость дома

    back
    Оставляете заявку
    Вы заполняете форму на сайте или звоните нам. Менеджер Лайвкрафт связывается с вами для уточнения деталей: тип дома, площадь, материалы, участок строительства.
    back
    Консультация и подбор решения
    Наш специалист помогает выбрать оптимальный тип дома и конструкцию с учётом бюджета, сроков и целей — будь то дом для постоянного проживания или дача.
    back
    Расчёт предварительной стоимости
    Инженер делает первичный расчёт стоимости строительства по вашим параметрам: фундамент, коробка, кровля, отделка. Вы получаете смету с разбивкой по этапам.
    back
    Корректировка и утверждение сметы
    При необходимости вносим изменения — например, замену материалов или сокращение этапов. После согласования формируется окончательная фиксированная смета.
    back
    Заключение договора и старт работ
    После утверждения сметы заключаем официальный договор с гарантией. Вы получаете прозрачный график и точную стоимость — без скрытых расходов.

    Заказать конусльтацию по:Одноэтажный каркасный дом ИП-92

    Фото 1 Одноэтажный каркасный дом ИП-92


      Наши
      контакты

      Дмитров
      Опорный проезд 28Б
      (индустриальный парк Ниагара)
      9:00 до 18:00

      Корзина