4.9
Рейтинг на основании 120 отзывов
Дмитров
Опорный проезд 28Б
(индустриальный парк Ниагара)
Бренд "Дмитров-Дело" c 2008 года на рынке строительства в Дмитрове
Звоните 9:00 до 18:00 8 (915) 055-33-61
Бренд "Дмитров-Дело" c 2008 года на рынке строительства в Дмитрове

Одноэтажный каркасный дом 8х8 м.

Стоимость проекта от:
24 750 ₽
БЕСПЛАТНО! ПРИ ЗАКАЗЕ СТРОИТЕЛЬСТВА
Стоимость строительства от:
3 188 350 ₽
Артикул ART-15191
Дата 25.12.2025
Архитектурный стиль Классический
Количество надземных этажей 1
Круглогодичное проживание Да
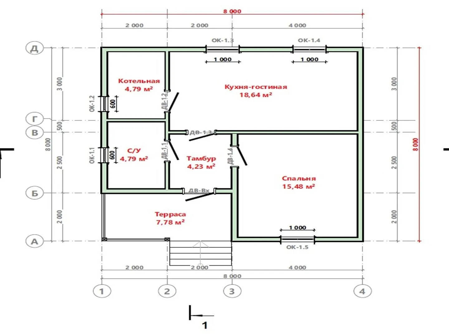
Площадь дома 55 м2
Санузлы 1
Спальни 1

Описание

Небольшой, но душевный уголок, где каждая деталь продумана с заботой о комфорте и стиле. Дом в классическом стиле, выполненный в деревянном каркасном корпусе, занимает площадь 8 × 8 м—это идеальный вариант для тех, кто ценит простоту и функциональность, но не хочет обделять себя теплом и уютом. Двускатная крыша, соединяющаяся с элегантными чертами классики, придаёт фасаду благородный вид, а террасу можно использовать как дополнительное место для отдыха, где легко отдохнуть после долгого дня или устроить небольшой пикник. Эта квартира, рассчитанная на однонадземное проживание, создана для круглогодичного использования: изолирующий каркас и качественная теплоизоляция позволяют наслаждаться комфортной температурой как летом, так и зимой. Внутренние помещения пропитаны природной светимостью, а классический план помещения облегчает планировку и позволяет гибко использовать комнатные зоны. Пристроенный гараж отсутствует, но благодаря открытой парковке и небольшой площади, владельцы легко найдут своё место на улице или в небольшом застройке. Идеальный выбор для тех, кто ищет гармоничное сочетание традиций и современных удобств: уютный дом, где каждая деталь – от каркасных стен до крыши, заботливо оберегает вашу домашнюю атмосферу. Вы можете рассчитывать на спокойствие, практичность и эстетику, а также на простоту ухода за таким небольшим, но очень функциональным жильём.

Характеристики дома

Архитектурный стиль
Автоматизированное регулирование параметров теплоносителя
Нет
Балконы/лоджии
Отсутствуют
Чердачное помещение
Нет
Датчики протечки воды
Нет
Эксплуатируемая или зеленая кровля
Нет
Электроснабжение
Не предусмотрено
Газоснабжение
Не предусмотрено
Изоляция воздушного шума
Нет
Камин
Нет
Класс энергоэффективности
-
Класс энергосбережения
-
Количество надземных этажей
1
Круглогодичное проживание
Да
Материал кровли
Металлочерепица
Материал перекрытий
Деревянные
Материал внешних стен
Материал внутренних перегородок
Деревянные
Модульное строительство с конструкциями заводского изготовления
Нет
Объем надземной части
264 м3
Основной материал фасадов
Дерево
Отопление
Не предусмотрено
Площадь дома
55 м2
Площадь застройки
64 м2
Подвальное помещение
Нет
Показатель компактности здания
-
Приборы учета тепловой энергии
Нет
Пристроенный гараж/крытая автостоянка
Нет
Противопожарная система
Нет
Санузлы
1
Совмещенная кухня-гостиная
Да
Спальни
1
Терраса
Да
Тип фундамента
Свайный
Тип кровли
Толщина внешних стен
250 мм
Толщина внутренних перегородок
165 мм
Улучшенные шумовые характеристики
Нет
Вентиляция
Естественная
Веранда
Нет
Водоотведение
Не предусмотрено
Водоснабжение
Не предусмотрено
Высота дома
5.2 м
Высота потолков
2.5 м

Планировка

Фасад дома

Александр

Закажите выезд инженера

Александр

Выездной инженер
Закажите выезд инженера для точной диагностики и профессиональной консультации по инженерным системам. Специалист приедет в удобное время, проведёт осмотр, рассчитает стоимость работ и подберёт оптимальные решения для вашего дома.


    Похожие проекты

    Ипотека и
    рассрочка
    Загородный дом — 105
    Стоимость от:
    7 062 000
    Проект от: 45 000
    Этажей 1
    Санузлы 2
    Спальни 3
    Смотреть
    Ипотека и
    рассрочка
    50м2
    Стоимость от:
    3 654 200
    Проект от: 22 500
    Этажей 1
    Санузлы 1
    Спальни 2
    Смотреть
    Ипотека и
    рассрочка
    Загородный дом СО-145
    Стоимость от:
    10 239 900
    Проект от: 65 250
    Этажей 1
    Санузлы 2
    Спальни 2
    Смотреть
    Ипотека и
    рассрочка
    Дом из клееного бруса «Марфино 3»
    Стоимость от:
    9 322 560
    Проект от: 64 800
    Этажей 2
    Санузлы 2
    Спальни 3
    Смотреть
    Ипотека и
    рассрочка
    Одноэтажный дом ГОГЕН
    Стоимость от:
    7 597 480
    Проект от: 55 800
    Этажей 1
    Санузлы 2
    Спальни 3
    Смотреть
    Ипотека и
    рассрочка
    Каркасный дом КД-444
    Стоимость от:
    9 459 240
    Проект от: 72 450
    Этажей 2
    Санузлы 2
    Спальни 6
    Смотреть

    Как узнать стоимость дома

    back
    Оставляете заявку
    Вы заполняете форму на сайте или звоните нам. Менеджер Лайвкрафт связывается с вами для уточнения деталей: тип дома, площадь, материалы, участок строительства.
    back
    Консультация и подбор решения
    Наш специалист помогает выбрать оптимальный тип дома и конструкцию с учётом бюджета, сроков и целей — будь то дом для постоянного проживания или дача.
    back
    Расчёт предварительной стоимости
    Инженер делает первичный расчёт стоимости строительства по вашим параметрам: фундамент, коробка, кровля, отделка. Вы получаете смету с разбивкой по этапам.
    back
    Корректировка и утверждение сметы
    При необходимости вносим изменения — например, замену материалов или сокращение этапов. После согласования формируется окончательная фиксированная смета.
    back
    Заключение договора и старт работ
    После утверждения сметы заключаем официальный договор с гарантией. Вы получаете прозрачный график и точную стоимость — без скрытых расходов.

    Заказать конусльтацию по:Одноэтажный каркасный дом 8х8 м.

    Фото 1 Одноэтажный каркасный дом 8х8 м.


      Наши
      контакты

      Дмитров
      Опорный проезд 28Б
      (индустриальный парк Ниагара)
      9:00 до 18:00

      Корзина