4.9
Рейтинг на основании 120 отзывов
Дмитров
Опорный проезд 28Б
(индустриальный парк Ниагара)
Бренд "Дмитров-Дело" c 2008 года на рынке строительства в Дмитрове
Звоните 9:00 до 18:00 8 (915) 055-33-61
Бренд "Дмитров-Дело" c 2008 года на рынке строительства в Дмитрове

Одноэтажный каркасный дом i.House77

Стоимость проекта от:
32 400 ₽
БЕСПЛАТНО! ПРИ ЗАКАЗЕ СТРОИТЕЛЬСТВА
Стоимость строительства от:
4 399 560 ₽
Артикул ART-15686
Дата 25.12.2025
Архитектурный стиль Барнхаус
Количество надземных этажей 1
Круглогодичное проживание Да
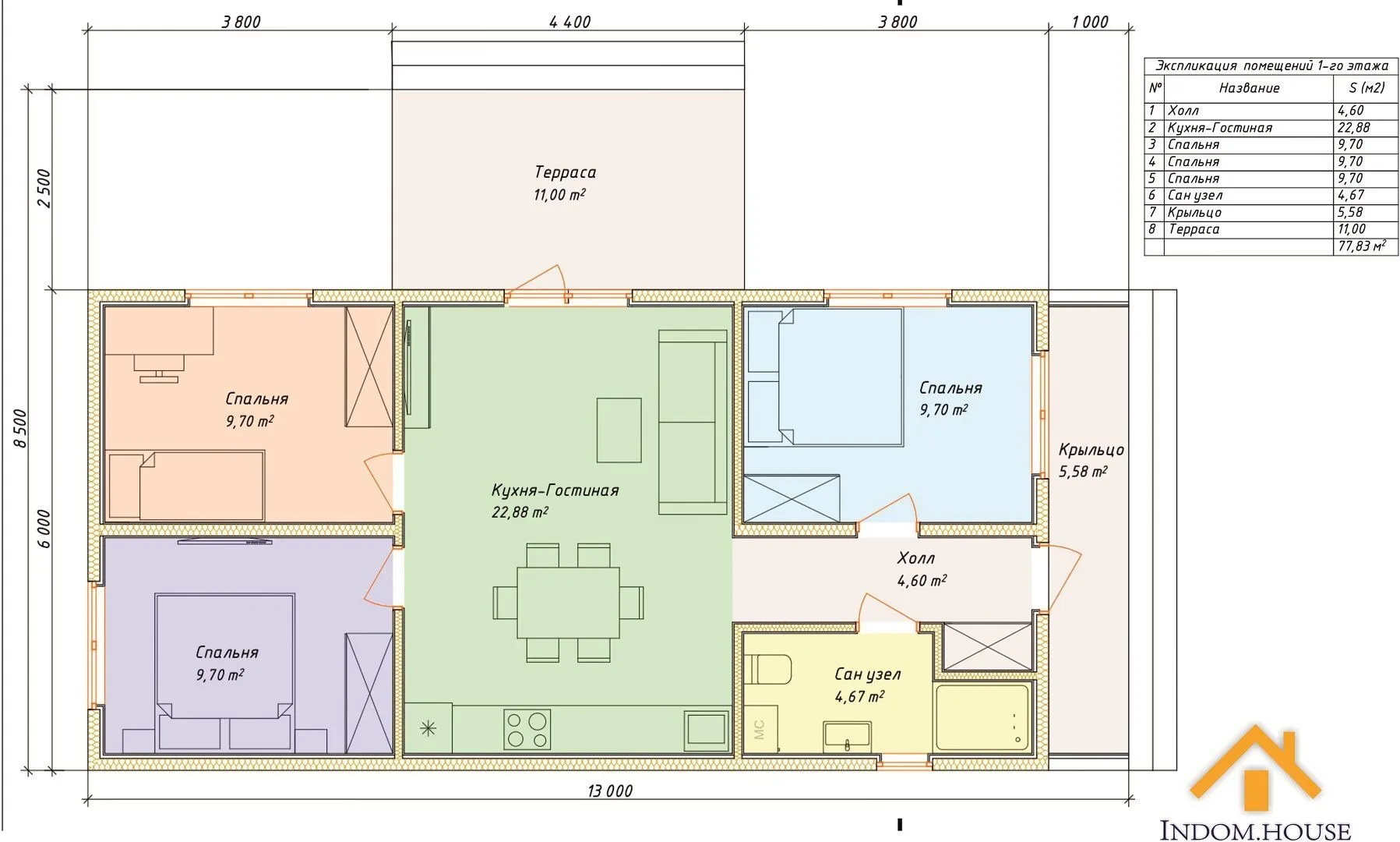
Площадь дома 72 м2
Санузлы 1
Спальни 3

Описание

Погрузитесь в атмосферу настоящего уюта с нашим одноэтажным каркасным домом i.House77 – настоящим произведением искусства в стиле барнхаус. Его простая и при этом элегантная конструкция создаёт чувство, будто вы входите в уютный, но современно оборудованный крестьянский особняк. Каркасно‑панельная технология не только обеспечивает непревзойденную тепло- и звукоизоляцию, но и позволяет смело использовать все пространства в течение года, даже в самые холодные периоды. Прямо у окна открывается мягкий, рассеянный свет, а массивные панели придают дому характер и ощущение природной тепла. Терраса, выходящая из обширных окон, приглашает к отдыхам и трапезам на свежем воздухе, а отсутствие лишних балконов и веренда укрепляет ощущение открытого пространства и простора внутри дома. Двускатная крыша подчёркивает традиционный характер барнхауса, а её простота позволяет быстро восстанавливать структуру и экономить средства на содержание. i.House77 – это не просто здание, это место, где каждый элемент продуман, чтобы создавать комфорт и вдохновение. Превратите свою мечту о домашнем очаге в реальность, выбрав дом, который говорит вам: «Здесь начинается моя новая жизнь».

Характеристики дома

Архитектурный стиль
Автоматизированное регулирование параметров теплоносителя
Нет
Балконы/лоджии
Отсутствуют
Чердачное помещение
Нет
Датчики протечки воды
Нет
Эксплуатируемая или зеленая кровля
Нет
Электроснабжение
Не предусмотрено
Газоснабжение
Не предусмотрено
Изоляция воздушного шума
Нет
Камин
Нет
Класс энергоэффективности
-
Класс энергосбережения
-
Количество надземных этажей
1
Круглогодичное проживание
Да
Материал кровли
Металлические рулонные или листовые материалы
Материал перекрытий
Деревянные
Материал внешних стен
Материал внутренних перегородок
Деревянные
Модульное строительство с конструкциями заводского изготовления
Нет
Объем надземной части
244 м3
Основной материал фасадов
Дерево
Отопление
Индивидуальное
Площадь дома
72 м2
Площадь застройки
89 м2
Подвальное помещение
Нет
Показатель компактности здания
-
Приборы учета тепловой энергии
Нет
Пристроенный гараж/крытая автостоянка
Нет
Противопожарная система
Нет
Санузлы
1
Совмещенная кухня-гостиная
Да
Спальни
3
Терраса
Да
Тип фундамента
Свайно-винтовой
Тип кровли
Толщина внешних стен
250 мм
Толщина внутренних перегородок
150 мм
Улучшенные шумовые характеристики
Да
Вентиляция
Естественная
Веранда
Нет
Водоотведение
Не предусмотрено
Водоснабжение
Не предусмотрено
Высота дома
5.5 м
Высота потолков
3.6 м

Планировка

Фасад дома

Александр

Закажите выезд инженера

Александр

Выездной инженер
Закажите выезд инженера для точной диагностики и профессиональной консультации по инженерным системам. Специалист приедет в удобное время, проведёт осмотр, рассчитает стоимость работ и подберёт оптимальные решения для вашего дома.


    Похожие проекты

    Ипотека и
    рассрочка
    Одноэтажный дом СКАЙ-75
    Стоимость от:
    5 296 500
    Проект от: 33 750
    Этажей 1
    Санузлы 2
    Спальни 2
    Смотреть
    Ипотека и
    рассрочка
    Загородный дом «Рубин»
    Стоимость от:
    6 991 380
    Проект от: 44 550
    Этажей 1
    Санузлы 2
    Спальни 4
    Смотреть
    Ипотека и
    рассрочка
    Меркурий
    Стоимость от:
    5 473 600
    Проект от: 36 000
    Этажей 1
    Санузлы 1
    Спальни 1
    Смотреть
    Ипотека и
    рассрочка
    Двухэтажный барнхаус 130
    Стоимость от:
    6 216 900
    Проект от: 47 700
    Этажей 2
    Санузлы 2
    Спальни 3
    Смотреть
    Ипотека и
    рассрочка
    Дом «ИЖС-Стандарт плюс»
    Стоимость от:
    6 567 000
    Проект от: 40 500
    Этажей 1
    Санузлы 2
    Спальни 3
    Смотреть
    Ипотека и
    рассрочка
    963А «Тенея» — одноэтажный дом из газобетона, 3 спальни
    Стоимость от:
    7 663 040
    Проект от: 50 400
    Этажей 1
    Санузлы 2
    Спальни 3
    Смотреть

    Как узнать стоимость дома

    back
    Оставляете заявку
    Вы заполняете форму на сайте или звоните нам. Менеджер Лайвкрафт связывается с вами для уточнения деталей: тип дома, площадь, материалы, участок строительства.
    back
    Консультация и подбор решения
    Наш специалист помогает выбрать оптимальный тип дома и конструкцию с учётом бюджета, сроков и целей — будь то дом для постоянного проживания или дача.
    back
    Расчёт предварительной стоимости
    Инженер делает первичный расчёт стоимости строительства по вашим параметрам: фундамент, коробка, кровля, отделка. Вы получаете смету с разбивкой по этапам.
    back
    Корректировка и утверждение сметы
    При необходимости вносим изменения — например, замену материалов или сокращение этапов. После согласования формируется окончательная фиксированная смета.
    back
    Заключение договора и старт работ
    После утверждения сметы заключаем официальный договор с гарантией. Вы получаете прозрачный график и точную стоимость — без скрытых расходов.

    Заказать конусльтацию по:Одноэтажный каркасный дом i.House77

    Фото 1 Одноэтажный каркасный дом i.House77


      Наши
      контакты

      Дмитров
      Опорный проезд 28Б
      (индустриальный парк Ниагара)
      9:00 до 18:00

      Корзина