4.9
Рейтинг на основании 120 отзывов
Дмитров
Опорный проезд 28Б
(индустриальный парк Ниагара)
Бренд "Дмитров-Дело" c 2008 года на рынке строительства в Дмитрове
Звоните 9:00 до 18:00 8 (915) 055-33-61
Бренд "Дмитров-Дело" c 2008 года на рынке строительства в Дмитрове

Загородный дом Скапа

Стоимость проекта от:
144 450 ₽
БЕСПЛАТНО! ПРИ ЗАКАЗЕ СТРОИТЕЛЬСТВА
Стоимость строительства от:
22 425 840 ₽
Артикул ART-12640
Дата 25.12.2025
Архитектурный стиль Европейский
Количество надземных этажей 2
Круглогодичное проживание Да
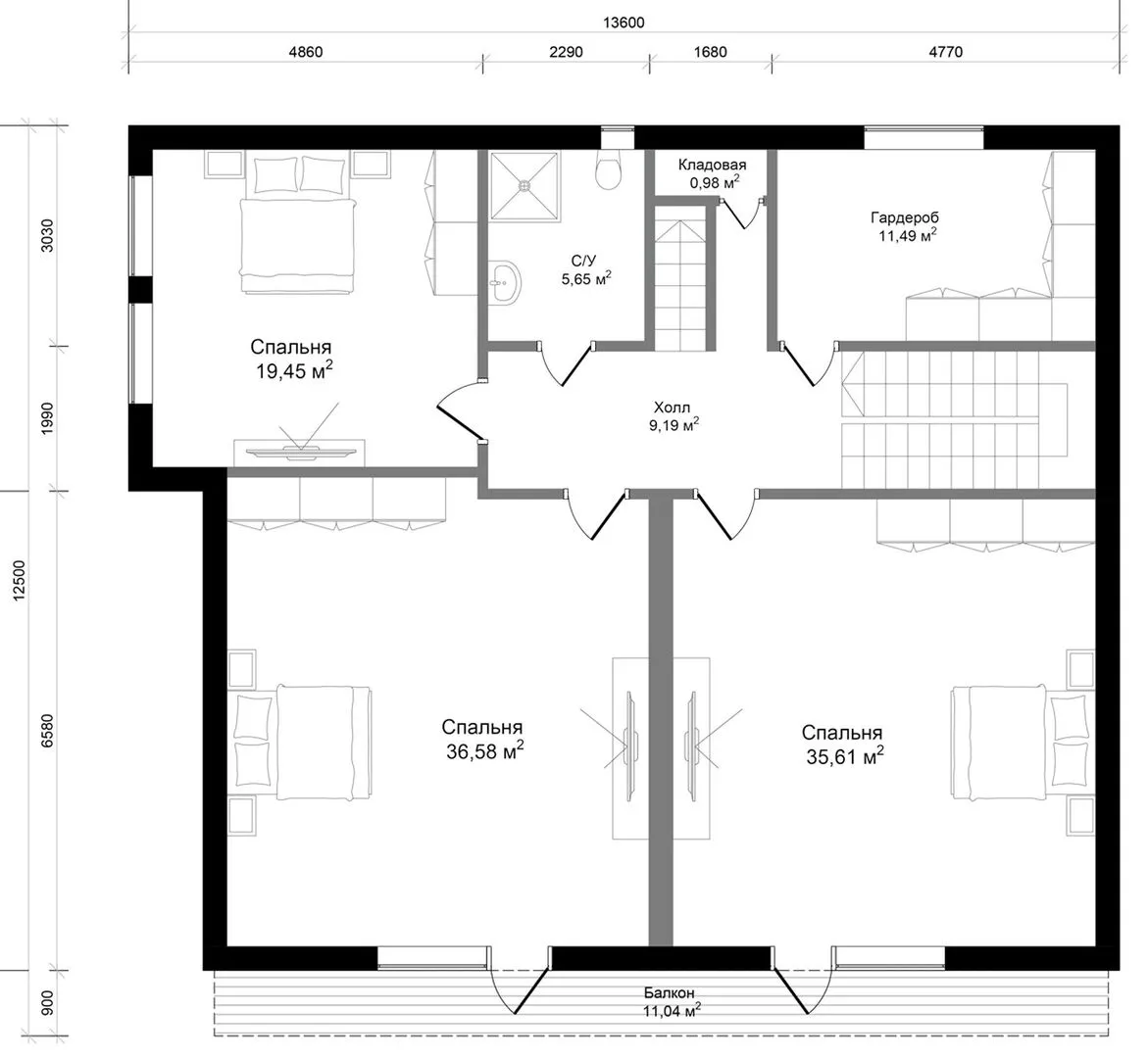
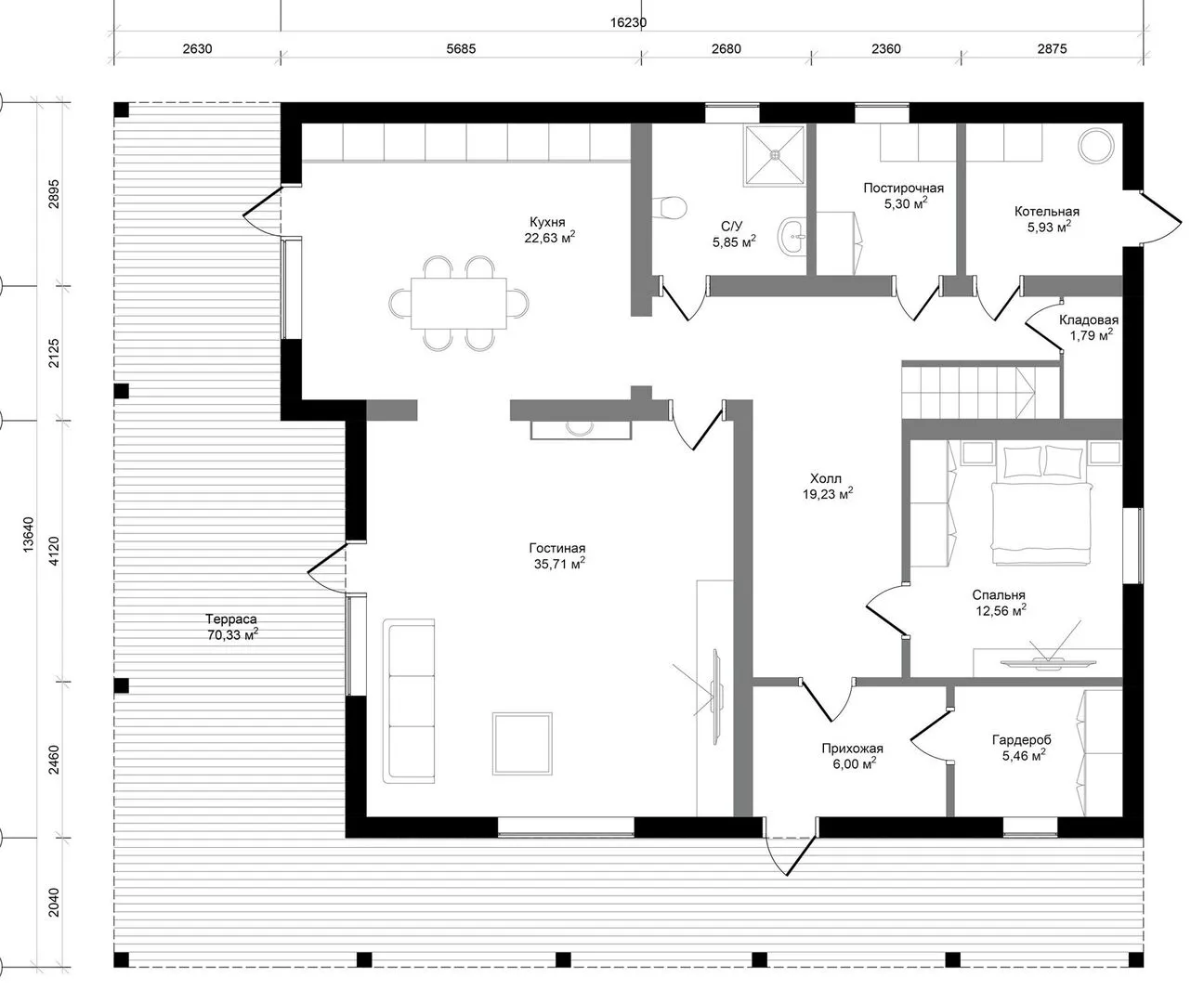
Площадь дома 321 м2
Санузлы 2
Спальни 4

Описание

**Дом Скапа** — это настоящий уголок европейской идиллии, отточенный до каждой детали. С двумя надземными этажами он создаёт ощущение простора и уюта, а стильный фасад из газобетонных блоков придаёт зданию лёгкую элегантность и надёжность. Благодаря двумскатной крыше, покрытой качественным материалом, вы ощутите тепло и защиту от непогоды в любое время года, ведь этот дом предназначен для круглогодичного проживания. Уют начинается внутри: просторные комнаты с большим световым потоком, открытые зоны, где легко организовать семейный обед или вечернюю беседу. Один балкон/лоджия станет идеальным местом для чаепития под звёздами, а открытая терраса приглашает в летний барбекю‑вечер или спокойный ужин на свежем воздухе. Отворённая планировка, аккуратные переходы и изысканные детали в интерьере воссоздают атмосферу настоящего европейского особняка. Дом Скапа — это место, где каждая мелочь продумана: комфорт, безопасность и эстетика сливаются в единую гармонию. Если вы ищете дом, где можно жить, отдыхать и открывать новую главу вашей семейной истории, этот особняк станет вашим идеальным выбором. Не упустите шанс стать владельцем уникального уголка, созданного с любовью к деталям и стремлением к идеальному сочетанию архитектуры и природы.

Характеристики дома

Архитектурный стиль
Автоматизированное регулирование параметров теплоносителя
Да
Балконы/лоджии
1
Чердачное помещение
Нет
Датчики протечки воды
Да
Эксплуатируемая или зеленая кровля
Нет
Электроснабжение
Центральное
Газоснабжение
Центральное
Изоляция воздушного шума
Да
Камин
Да
Класс энергоэффективности
-
Класс энергосбережения
-
Количество надземных этажей
2
Круглогодичное проживание
Да
Материал кровли
Металлочерепица
Материал перекрытий
Монолитные железобетонные
Материал внешних стен
Материал внутренних перегородок
Блочные
Модульное строительство с конструкциями заводского изготовления
Нет
Объем надземной части
-
Основной материал фасадов
Штукатурка
Отопление
Центральное
Площадь дома
321 м2
Площадь застройки
221 м2
Подвальное помещение
Нет
Показатель компактности здания
-
Приборы учета тепловой энергии
Да
Пристроенный гараж/крытая автостоянка
Нет
Противопожарная система
Нет
Санузлы
2
Совмещенная кухня-гостиная
Нет
Спальни
4
Терраса
Да
Тип фундамента
Плитный
Тип кровли
Толщина внешних стен
300 мм
Толщина внутренних перегородок
150 мм
Улучшенные шумовые характеристики
Да
Вентиляция
Естественная
Веранда
Нет
Водоотведение
2 варианта
Водоснабжение
2 варианта
Высота дома
8.5 м
Высота потолков
3.1 м

Планировка

Фасад дома

Александр

Закажите выезд инженера

Александр

Выездной инженер
Закажите выезд инженера для точной диагностики и профессиональной консультации по инженерным системам. Специалист приедет в удобное время, проведёт осмотр, рассчитает стоимость работ и подберёт оптимальные решения для вашего дома.


    Похожие проекты

    Ипотека и
    рассрочка
    Модульный каркасный дом KEDR
    Стоимость от:
    5 447 310
    Проект от: 45 900
    Этажей 1
    Санузлы 1
    Спальни 2
    Смотреть
    Ипотека и
    рассрочка
    Роман с Террасой
    Стоимость от:
    9 674 940
    Проект от: 61 650
    Этажей 1
    Санузлы 2
    Спальни 3
    Смотреть
    Ипотека и
    рассрочка
    Каркасный дом по проекту «Блэнвиль»
    Стоимость от:
    8 271 720
    Проект от: 62 100
    Этажей 2
    Санузлы 2
    Спальни 4
    Смотреть
    Ипотека и
    рассрочка
    S 2-125
    Стоимость от:
    8 972 160
    Проект от: 55 800
    Этажей 2
    Санузлы 2
    Спальни 4
    Смотреть
    Ипотека и
    рассрочка
    Проект Престиж
    Стоимость от:
    10 704 720
    Проект от: 64 350
    Этажей 2
    Санузлы 2
    Спальни 4
    Смотреть
    Ипотека и
    рассрочка
    Одноэтажный дом XXS Light
    Стоимость от:
    4 664 440
    Проект от: 27 900
    Этажей 1
    Санузлы 1
    Спальни 2
    Смотреть

    Как узнать стоимость дома

    back
    Оставляете заявку
    Вы заполняете форму на сайте или звоните нам. Менеджер Лайвкрафт связывается с вами для уточнения деталей: тип дома, площадь, материалы, участок строительства.
    back
    Консультация и подбор решения
    Наш специалист помогает выбрать оптимальный тип дома и конструкцию с учётом бюджета, сроков и целей — будь то дом для постоянного проживания или дача.
    back
    Расчёт предварительной стоимости
    Инженер делает первичный расчёт стоимости строительства по вашим параметрам: фундамент, коробка, кровля, отделка. Вы получаете смету с разбивкой по этапам.
    back
    Корректировка и утверждение сметы
    При необходимости вносим изменения — например, замену материалов или сокращение этапов. После согласования формируется окончательная фиксированная смета.
    back
    Заключение договора и старт работ
    После утверждения сметы заключаем официальный договор с гарантией. Вы получаете прозрачный график и точную стоимость — без скрытых расходов.

    Заказать конусльтацию по:Загородный дом Скапа

    Фото 1 Загородный дом Скапа


      Наши
      контакты

      Дмитров
      Опорный проезд 28Б
      (индустриальный парк Ниагара)
      9:00 до 18:00

      Корзина