4.9
Рейтинг на основании 120 отзывов
Дмитров
Опорный проезд 28Б
(индустриальный парк Ниагара)
Бренд "Дмитров-Дело" c 2008 года на рынке строительства в Дмитрове
Звоните 9:00 до 18:00 8 (915) 055-33-61
Бренд "Дмитров-Дело" c 2008 года на рынке строительства в Дмитрове

S 2-101-1

Стоимость проекта от:
44 100 ₽
БЕСПЛАТНО! ПРИ ЗАКАЗЕ СТРОИТЕЛЬСТВА
Стоимость строительства от:
7 093 920 ₽
Артикул ART-6233
Дата 26.12.2025
Архитектурный стиль Европейский
Количество надземных этажей 2
Круглогодичное проживание Да
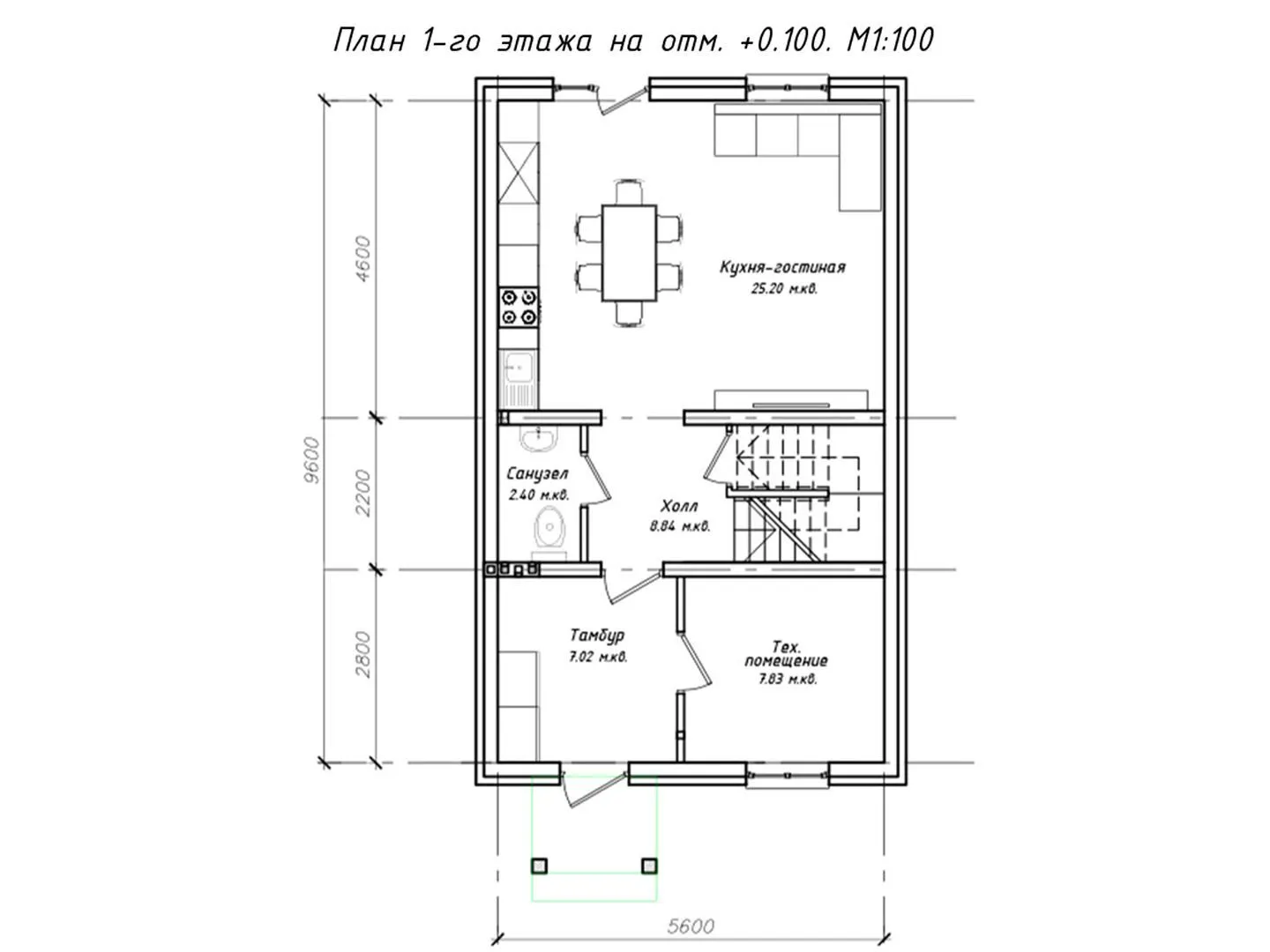
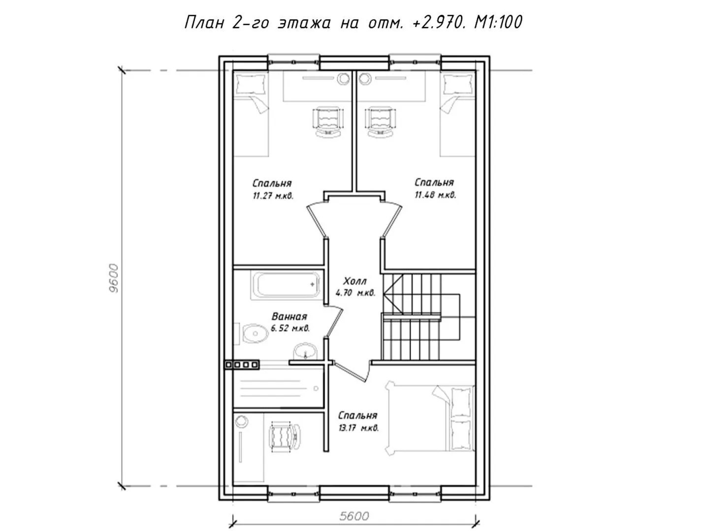
Площадь дома 98 м2
Санузлы 2
Спальни 3

Описание

Дом S 2‑101‑1 – это современное воплощение европейского комфорта, созданное для того, чтобы каждый день в нём ощущался как праздник. На двух надземных этажах уютно располагается просторная гостинная, светлый кухонный уголок и несколько приятных комнат, где легко создать свою собственную маленькую гавань от суеты. Благодаря высоте потолков и большому количеству окон, в квартире всегда тепло и светло. Стены из керамзитобетонных блоков обеспечивают отличную тепло- и звукоизоляцию, а два скатых крыша и типичный европейский стиль придают дому элегантный и строгий характер. Этот дом станет идеальным выбором для тех, кто ценит комфорт и качественное жильё круглый год – без лишних балконов, веранд и прицепов, но с простором, который можно использовать по своему усмотрению. Внутреннее пространство было продумано до мелочей: открытые жилые зоны, аккуратные световые переходы, строгие линии и приятная цветовая гамма создают атмосферу спокойствия и уюта. Высокое качество материалы и точное исполнение делают этот дом не просто красивым, но и надёжным для длительного проживания. Вы можете организовать интерьер так, чтобы он подчеркивал вашу индивидуальность, не отклоняясь от современного европейского стиля. Если вы ищете дом, где каждая деталь работает на ваше качество жизни, S 2‑101‑1 будет отличной инвестицией в семейное счастье. Здесь каждый элемент - от фундамент до кровли - призван дарить вам уверенность и тепло. Откройте дверь в этот уютный уголок и почувствуйте, насколько легко и приятно жить в гармонии с временем и пространством.

Характеристики дома

Архитектурный стиль
Автоматизированное регулирование параметров теплоносителя
-
Балконы/лоджии
Отсутствуют
Чердачное помещение
Нет
Датчики протечки воды
-
Эксплуатируемая или зеленая кровля
-
Электроснабжение
Центральное
Газоснабжение
Не предусмотрено
Изоляция воздушного шума
-
Камин
Нет
Класс энергоэффективности
-
Класс энергосбережения
-
Количество надземных этажей
2
Круглогодичное проживание
Да
Материал кровли
Металлочерепица
Материал перекрытий
Сборные железобетонные
Материал внешних стен
Материал внутренних перегородок
Блочные
Модульное строительство с конструкциями заводского изготовления
Нет
Объем надземной части
394 м3
Основной материал фасадов
Штукатурка
Отопление
Индивидуальное
Площадь дома
98 м2
Площадь застройки
67 м2
Подвальное помещение
Нет
Показатель компактности здания
-
Приборы учета тепловой энергии
-
Пристроенный гараж/крытая автостоянка
Нет
Противопожарная система
Нет
Санузлы
2
Совмещенная кухня-гостиная
Да
Спальни
3
Терраса
Нет
Тип фундамента
Свайно-ростверковый
Тип кровли
Толщина внешних стен
200 мм
Толщина внутренних перегородок
100 мм
Улучшенные шумовые характеристики
-
Вентиляция
Естественная
Веранда
Нет
Водоотведение
Локальные очистные сооружения
Водоснабжение
Индивидуальное
Высота дома
7.93 м
Высота потолков
2.6 м

Планировка

Фасад дома

Александр

Закажите выезд инженера

Александр

Выездной инженер
Закажите выезд инженера для точной диагностики и профессиональной консультации по инженерным системам. Специалист приедет в удобное время, проведёт осмотр, рассчитает стоимость работ и подберёт оптимальные решения для вашего дома.


    Похожие проекты

    Ипотека и
    рассрочка
    Классический дом_150м
    Стоимость от:
    9 987 600
    Проект от: 67 950
    Этажей 2
    Санузлы 2
    Спальни 3
    Смотреть
    Ипотека и
    рассрочка
    Индивидуальный жилой дом площадью 75 м2
    Стоимость от:
    5 974 100
    Проект от: 33 750
    Этажей 1
    Санузлы 1
    Спальни 2
    Смотреть
    Ипотека и
    рассрочка
    SBSпроект150
    Стоимость от:
    13 512 000
    Проект от: 85 500
    Этажей 2
    Санузлы 3
    Спальни 4
    Смотреть
    Ипотека и
    рассрочка
    Классический дом 200м2
    Стоимость от:
    13 488 480
    Проект от: 91 800
    Этажей 2
    Санузлы 2
    Спальни 5
    Смотреть
    Ипотека и
    рассрочка
    Брусовой дом ТА-70
    Стоимость от:
    5 423 000
    Проект от: 31 500
    Этажей 1
    Санузлы 1
    Спальни 3
    Смотреть
    Ипотека и
    рассрочка
    SKANDIK-43
    Стоимость от:
    2 492 710
    Проект от: 19 350
    Этажей 1
    Санузлы 1
    Спальни 1
    Смотреть

    Как узнать стоимость дома

    back
    Оставляете заявку
    Вы заполняете форму на сайте или звоните нам. Менеджер Лайвкрафт связывается с вами для уточнения деталей: тип дома, площадь, материалы, участок строительства.
    back
    Консультация и подбор решения
    Наш специалист помогает выбрать оптимальный тип дома и конструкцию с учётом бюджета, сроков и целей — будь то дом для постоянного проживания или дача.
    back
    Расчёт предварительной стоимости
    Инженер делает первичный расчёт стоимости строительства по вашим параметрам: фундамент, коробка, кровля, отделка. Вы получаете смету с разбивкой по этапам.
    back
    Корректировка и утверждение сметы
    При необходимости вносим изменения — например, замену материалов или сокращение этапов. После согласования формируется окончательная фиксированная смета.
    back
    Заключение договора и старт работ
    После утверждения сметы заключаем официальный договор с гарантией. Вы получаете прозрачный график и точную стоимость — без скрытых расходов.

    Заказать конусльтацию по:S 2-101-1

    Фото 1 S 2-101-1


      Наши
      контакты

      Дмитров
      Опорный проезд 28Б
      (индустриальный парк Ниагара)
      9:00 до 18:00

      Корзина