4.9
Рейтинг на основании 120 отзывов
Дмитров
Опорный проезд 28Б
(индустриальный парк Ниагара)
Бренд "Дмитров-Дело" c 2008 года на рынке строительства в Дмитрове
Звоните 9:00 до 18:00 8 (915) 055-33-61
Бренд "Дмитров-Дело" c 2008 года на рынке строительства в Дмитрове

Одноэтажный каркасный дом «Дюна»

Стоимость проекта от:
52 650 ₽
БЕСПЛАТНО! ПРИ ЗАКАЗЕ СТРОИТЕЛЬСТВА
Стоимость строительства от:
6 505 785 ₽
Артикул ART-20599
Дата 26.12.2025
Архитектурный стиль Барнхаус
Количество надземных этажей 1
Круглогодичное проживание Да
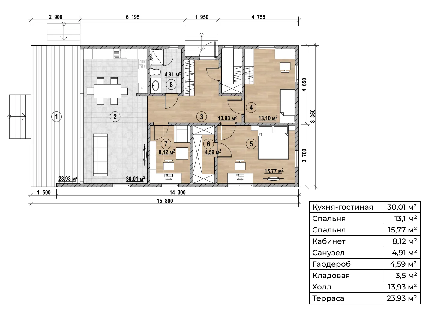
Площадь дома 117 м2
Санузлы 1
Спальни 2

Описание

Объект, который мы рады представить, — это единственный этаж, одноуровневый каркасный дом «Дюна». В его современном барнхаус‑стиле сочетаются простота традиционного сельского строения и современный комфорт: широкие деревянные панельные фасады придают дому живую теплоту, а двускатная крыша с её характерной «птиочной» кривой добавляет нотки элегантности и величия. Дом спроектирован для круглогодичного проживания: качественная теплоизоляция и энергоэффективные материалы позволят вам наслаждаться уютом круглый год, а простая и лаконичная архитектура, без лишних балконов, веранд и прибрежных помещений, делает его легким в обслуживании. Вместо непрерывных открытых пространств здесь – большая терраса, которая открывает возможность для вечеров под открытым небом, романтических пикников или тихих вечеров с семьей. Хотя «Дюна» не оснащена прибрежными гаражами и чердачными помещениями, её простая и одновременно впечатляющая конструкция позволяет легко адаптировать внутренний план под ваши потребности. Внутреннее пространство, созданное на одном уровне, обеспечивает свободный проход и естественный поток света, а деревянные внутренние стенки создают атмосферу уюта и гармонии с природой. Этот дом — идеальное решение для тех, кто ищет современный, удобный и эко‑ориентированный оазис, где каждая детали продумана до мелочей.

Характеристики дома

Архитектурный стиль
Автоматизированное регулирование параметров теплоносителя
Да
Балконы/лоджии
Отсутствуют
Чердачное помещение
Нет
Датчики протечки воды
Да
Эксплуатируемая или зеленая кровля
Нет
Электроснабжение
2 варианта
Газоснабжение
2 варианта
Изоляция воздушного шума
Да
Камин
Нет
Класс энергоэффективности
-
Класс энергосбережения
-
Количество надземных этажей
1
Круглогодичное проживание
Да
Материал кровли
Фальцевая кровля Кликфальц
Материал перекрытий
Деревянные
Материал внешних стен
Материал внутренних перегородок
Деревянные
Модульное строительство с конструкциями заводского изготовления
Нет
Объем надземной части
414 м3
Основной материал фасадов
Планкен
Отопление
2 варианта
Площадь дома
117 м2
Площадь застройки
125 м2
Подвальное помещение
Нет
Показатель компактности здания
-
Приборы учета тепловой энергии
Да
Пристроенный гараж/крытая автостоянка
Нет
Противопожарная система
Да
Санузлы
1
Совмещенная кухня-гостиная
Да
Спальни
2
Терраса
Да
Тип фундамента
Свайно-винтовой
Тип кровли
Толщина внешних стен
300 мм
Толщина внутренних перегородок
150 мм
Улучшенные шумовые характеристики
Да
Вентиляция
2 варианта
Веранда
Нет
Водоотведение
2 варианта
Водоснабжение
2 варианта
Высота дома
4.58 м
Высота потолков
2.2 м

Планировка

Фасад дома

Александр

Закажите выезд инженера

Александр

Выездной инженер
Закажите выезд инженера для точной диагностики и профессиональной консультации по инженерным системам. Специалист приедет в удобное время, проведёт осмотр, рассчитает стоимость работ и подберёт оптимальные решения для вашего дома.


    Похожие проекты

    Ипотека и
    рассрочка
    Одноэтажный дом ПР 1-110 Чистополь
    Стоимость от:
    8 190 380
    Проект от: 49 050
    Этажей 1
    Санузлы 2
    Спальни 3
    Смотреть
    Ипотека и
    рассрочка
    Современный дом с гаражом на две машины S-227
    Стоимость от:
    16 974 480
    Проект от: 102 150
    Этажей 2
    Санузлы 3
    Спальни 3
    Смотреть
    Ипотека и
    рассрочка
    Загородный дом М-63
    Стоимость от:
    7 290 140
    Проект от: 43 650
    Этажей 1
    Санузлы 2
    Спальни 2
    Смотреть
    Ипотека и
    рассрочка
    Проект 3
    Стоимость от:
    7 062 000
    Проект от: 45 000
    Этажей 1
    Санузлы 2
    Спальни 3
    Смотреть
    Ипотека и
    рассрочка
    Дом из клееного бруса «Подольск»
    Стоимость от:
    21 172 080
    Проект от: 147 150
    Этажей 2
    Санузлы 2
    Спальни 4
    Смотреть
    Ипотека и
    рассрочка
    Индивидуальный жилой дом площадью 75 м2
    Стоимость от:
    5 974 100
    Проект от: 33 750
    Этажей 1
    Санузлы 1
    Спальни 2
    Смотреть

    Как узнать стоимость дома

    back
    Оставляете заявку
    Вы заполняете форму на сайте или звоните нам. Менеджер Лайвкрафт связывается с вами для уточнения деталей: тип дома, площадь, материалы, участок строительства.
    back
    Консультация и подбор решения
    Наш специалист помогает выбрать оптимальный тип дома и конструкцию с учётом бюджета, сроков и целей — будь то дом для постоянного проживания или дача.
    back
    Расчёт предварительной стоимости
    Инженер делает первичный расчёт стоимости строительства по вашим параметрам: фундамент, коробка, кровля, отделка. Вы получаете смету с разбивкой по этапам.
    back
    Корректировка и утверждение сметы
    При необходимости вносим изменения — например, замену материалов или сокращение этапов. После согласования формируется окончательная фиксированная смета.
    back
    Заключение договора и старт работ
    После утверждения сметы заключаем официальный договор с гарантией. Вы получаете прозрачный график и точную стоимость — без скрытых расходов.

    Заказать конусльтацию по:Одноэтажный каркасный дом «Дюна»

    Фото 1 Одноэтажный каркасный дом «Дюна»


      Наши
      контакты

      Дмитров
      Опорный проезд 28Б
      (индустриальный парк Ниагара)
      9:00 до 18:00

      Корзина