4.9
Рейтинг на основании 120 отзывов
Дмитров
Опорный проезд 28Б
(индустриальный парк Ниагара)
Бренд "Дмитров-Дело" c 2008 года на рынке строительства в Дмитрове
Звоните 9:00 до 18:00 8 (915) 055-33-61
Бренд "Дмитров-Дело" c 2008 года на рынке строительства в Дмитрове

Одноэтажный коттедж КС 039

Стоимость проекта от:
59 400 ₽
БЕСПЛАТНО! ПРИ ЗАКАЗЕ СТРОИТЕЛЬСТВА
Стоимость строительства от:
9 625 440 ₽
Артикул ART-19130
Дата 26.12.2025
Архитектурный стиль Классический
Количество надземных этажей 1
Круглогодичное проживание Да
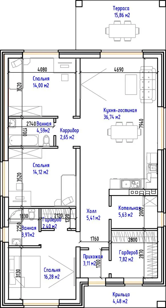
Площадь дома 132 м2
Санузлы 2
Спальни 3

Описание

Погрузитесь в атмосферу уютного классического коттеджа, созданного для комфортной жизни круглый год. Просторный одноэтажный ансамбль сочетает в себе элегантность традиционного стиля и практичность современных стандартов. Кирпичные внешние стены создают тепло и надежность, а многощипковая крыша, выполненная с любовью к деталям, обеспечивает долгий срок службы и защиту от непогоды. Внутреннее пространство пропитано светом и уютом: большие окна, обрамленные классическими рамами, открывают вид на тихий двор и позволяют естественно наполнять помещения мягким дневным светом. Теплый кирпичный фасад, выполненный в спокойных, но насыщенных тонах, гармонирует с окружающей природой, а просторные двери в открытый двор делают этот дом идеальным местом для семейных вечеров и завтраков на свежем воздухе. Крупная терраса зовет к прогулкам, где каждый уголок может стать местом для беседы и отдыха. Несмотря на отсутствие балконов, веранд и гаражных решений, коттедж сохраняет практичность, предостерегая от лишней суеты. Здесь каждый метр продуман до мелочей: от планировки комнат до использования качественных материалов. Это ваш новый дом — место, где современность встречается с классикой для создания идеальной среды для жизни и отдыха.

Характеристики дома

Архитектурный стиль
Автоматизированное регулирование параметров теплоносителя
Да
Балконы/лоджии
Отсутствуют
Чердачное помещение
Нет
Датчики протечки воды
Нет
Эксплуатируемая или зеленая кровля
Нет
Электроснабжение
Центральное
Газоснабжение
Центральное
Изоляция воздушного шума
Нет
Камин
Нет
Класс энергоэффективности
-
Класс энергосбережения
-
Количество надземных этажей
1
Круглогодичное проживание
Да
Материал кровли
Битумная черепица
Материал перекрытий
Сборно-монолитные железобетонные
Материал внешних стен
Материал внутренних перегородок
Кирпичные
Модульное строительство с конструкциями заводского изготовления
Нет
Объем надземной части
937 м3
Основной материал фасадов
Облицовочный кирпич
Отопление
Индивидуальное
Площадь дома
132 м2
Площадь застройки
172 м2
Подвальное помещение
Нет
Показатель компактности здания
-
Приборы учета тепловой энергии
Нет
Пристроенный гараж/крытая автостоянка
Нет
Противопожарная система
Нет
Санузлы
2
Совмещенная кухня-гостиная
Да
Спальни
3
Терраса
Да
Тип фундамента
Свайно-ростверковый
Тип кровли
Толщина внешних стен
490 мм
Толщина внутренних перегородок
120 мм
Улучшенные шумовые характеристики
Да
Вентиляция
Естественная
Веранда
Нет
Водоотведение
Локальные очистные сооружения
Водоснабжение
Индивидуальное
Высота дома
7.03 м
Высота потолков
3.15 м

Планировка

Фасад дома

Александр

Закажите выезд инженера

Александр

Выездной инженер
Закажите выезд инженера для точной диагностики и профессиональной консультации по инженерным системам. Специалист приедет в удобное время, проведёт осмотр, рассчитает стоимость работ и подберёт оптимальные решения для вашего дома.


    Похожие проекты

    Ипотека и
    рассрочка
    Авторский проект «Актау 1.0»
    Стоимость от:
    6 708 900
    Проект от: 42 750
    Этажей 1
    Санузлы 1
    Спальни 2
    Смотреть
    Ипотека и
    рассрочка
    23НШ11.00 KOPORE
    Стоимость от:
    6 839 415
    Проект от: 55 350
    Этажей 1
    Санузлы 2
    Спальни 3
    Смотреть
    Ипотека и
    рассрочка
    Коттедж С97
    Стоимость от:
    8 436 120
    Проект от: 47 700
    Этажей 1
    Санузлы 2
    Спальни 3
    Смотреть
    Ипотека и
    рассрочка
    706А «Истра» -двухэтажный дом в стиле Райта, 4 спальни, терраса
    Стоимость от:
    12 710 880
    Проект от: 81 900
    Этажей 2
    Санузлы 3
    Спальни 4
    Смотреть
    Ипотека и
    рассрочка
    Дом с мансардой
    Стоимость от:
    11 035 200
    Проект от: 67 500
    Этажей 2
    Санузлы 2
    Спальни 4
    Смотреть
    Ипотека и
    рассрочка
    Дом из клееного бруса БД-103
    Стоимость от:
    6 283 530
    Проект от: 44 550
    Этажей 1
    Санузлы 2
    Спальни 3
    Смотреть

    Как узнать стоимость дома

    back
    Оставляете заявку
    Вы заполняете форму на сайте или звоните нам. Менеджер Лайвкрафт связывается с вами для уточнения деталей: тип дома, площадь, материалы, участок строительства.
    back
    Консультация и подбор решения
    Наш специалист помогает выбрать оптимальный тип дома и конструкцию с учётом бюджета, сроков и целей — будь то дом для постоянного проживания или дача.
    back
    Расчёт предварительной стоимости
    Инженер делает первичный расчёт стоимости строительства по вашим параметрам: фундамент, коробка, кровля, отделка. Вы получаете смету с разбивкой по этапам.
    back
    Корректировка и утверждение сметы
    При необходимости вносим изменения — например, замену материалов или сокращение этапов. После согласования формируется окончательная фиксированная смета.
    back
    Заключение договора и старт работ
    После утверждения сметы заключаем официальный договор с гарантией. Вы получаете прозрачный график и точную стоимость — без скрытых расходов.

    Заказать конусльтацию по:Одноэтажный коттедж КС 039

    Фото 1 Одноэтажный коттедж КС 039


      Наши
      контакты

      Дмитров
      Опорный проезд 28Б
      (индустриальный парк Ниагара)
      9:00 до 18:00

      Корзина