4.9
Рейтинг на основании 120 отзывов
Дмитров
Опорный проезд 28Б
(индустриальный парк Ниагара)
Бренд "Дмитров-Дело" c 2008 года на рынке строительства в Дмитрове
Звоните 9:00 до 18:00 8 (915) 055-33-61
Бренд "Дмитров-Дело" c 2008 года на рынке строительства в Дмитрове

Одноэтажный просторный Барн хаус с 4 спальнями Г-117

Стоимость проекта от:
57 600 ₽
БЕСПЛАТНО! ПРИ ЗАКАЗЕ СТРОИТЕЛЬСТВА
Стоимость строительства от:
7 842 560 ₽
Артикул ART-18658
Дата 26.12.2025
Архитектурный стиль Барнхаус
Количество надземных этажей 1
Круглогодичное проживание Да
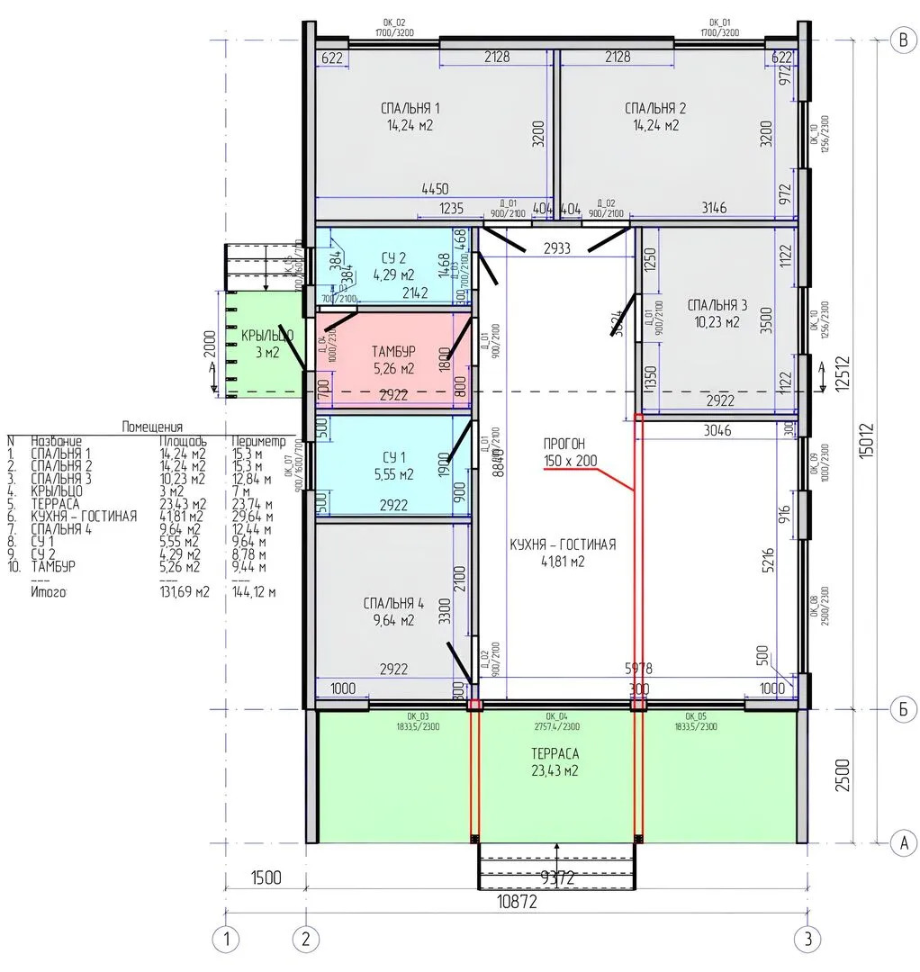
Площадь дома 128 м2
Санузлы 2
Спальни 4

Описание

Новый одноэтажный **Barn House G-117** — это сочетание уюта деревенской идиллии и современных удобств, которые будут радовать вас каждый день. Просторный план дома открывает душевную атмосферу гостеприимства: четыре ярко освещенные спальни, большая кухня с обеденной зоной и открытая гостиная создают идеальный комфорт как для семейных праздников, так и для тихих моментов у полки с книгами. Нежные линии барнхауса дополняют стильные детали, а двойская скатная крыша придает дому изысканный силуэт, создавая ощущение простора и открытости. Терраса, спускающаяся с крыши, становится идеальным местом для завтраков на свежем воздухе, барбекю в летние вечеринки или вечерних бесед под звёздным небом. Внешние стены из SIP‑панелей обеспечивают отличную теплоизоляцию, а тем самым гарантируют круглогодическое проживание без лишних затрат на отопление и кондиционирование. Внутреннее пространство наполнено естественным светом, обильной вентиляцией и продуманными решениями для хранения, а открытая планировка позволяет легко адаптировать его под любые ваши потребности. Этот дом дарит не только уют и комфорт, но и ощущение дома, где каждый уголок пропитан теплом и заботой о вашем благополучии. Если вы ищете место, где можно восстановить силы, насладиться природой и при этом наслаждаться всеми преимуществами современного жилья, Barn House G-117 — ваш идеальный выбор.

Характеристики дома

Архитектурный стиль
Автоматизированное регулирование параметров теплоносителя
Нет
Балконы/лоджии
Отсутствуют
Чердачное помещение
Нет
Датчики протечки воды
Нет
Эксплуатируемая или зеленая кровля
Нет
Электроснабжение
Не предусмотрено
Газоснабжение
Не предусмотрено
Изоляция воздушного шума
Нет
Камин
Нет
Класс энергоэффективности
-
Класс энергосбережения
-
Количество надземных этажей
1
Круглогодичное проживание
Да
Материал кровли
Металлические листовые гофрированные профили
Материал перекрытий
Деревянные
Материал внешних стен
Материал внутренних перегородок
Деревянные
Модульное строительство с конструкциями заводского изготовления
Нет
Объем надземной части
297 м3
Основной материал фасадов
Планкен
Отопление
Не предусмотрено
Площадь дома
128 м2
Площадь застройки
131 м2
Подвальное помещение
Нет
Показатель компактности здания
-
Приборы учета тепловой энергии
Нет
Пристроенный гараж/крытая автостоянка
Нет
Противопожарная система
Нет
Санузлы
2
Совмещенная кухня-гостиная
Да
Спальни
4
Терраса
Да
Тип фундамента
Свайный
Тип кровли
Толщина внешних стен
174 мм
Толщина внутренних перегородок
100 мм
Улучшенные шумовые характеристики
Нет
Вентиляция
Естественная
Веранда
Нет
Водоотведение
Не предусмотрено
Водоснабжение
Не предусмотрено
Высота дома
4.7 м
Высота потолков
2.8 м

Планировка

Фасад дома

Александр

Закажите выезд инженера

Александр

Выездной инженер
Закажите выезд инженера для точной диагностики и профессиональной консультации по инженерным системам. Специалист приедет в удобное время, проведёт осмотр, рассчитает стоимость работ и подберёт оптимальные решения для вашего дома.


    Похожие проекты

    Ипотека и
    рассрочка
    Классика 99,3
    Стоимость от:
    6 348 540
    Проект от: 39 150
    Этажей 1
    Санузлы 1
    Спальни 2
    Смотреть
    Ипотека и
    рассрочка
    Загородный одноэтажный дом с двускатной кровлей GSB-1F-122
    Стоимость от:
    7 838 820
    Проект от: 49 950
    Этажей 1
    Санузлы 2
    Спальни 3
    Смотреть
    Ипотека и
    рассрочка
    Проект Дарбинян
    Стоимость от:
    5 179 900
    Проект от: 29 250
    Этажей 1
    Санузлы 1
    Спальни 2
    Смотреть
    Ипотека и
    рассрочка
    К.1.-109
    Стоимость от:
    8 190 380
    Проект от: 49 050
    Этажей 1
    Санузлы 1
    Спальни 3
    Смотреть
    Ипотека и
    рассрочка
    КОМФОРТ В БАРНХАУСЕ
    Стоимость от:
    4 517 370
    Проект от: 36 450
    Этажей 1
    Санузлы 1
    Спальни 2
    Смотреть
    Ипотека и
    рассрочка
    Сказка 160
    Стоимость от:
    10 891 920
    Проект от: 68 850
    Этажей 2
    Санузлы 2
    Спальни 4
    Смотреть

    Как узнать стоимость дома

    back
    Оставляете заявку
    Вы заполняете форму на сайте или звоните нам. Менеджер Лайвкрафт связывается с вами для уточнения деталей: тип дома, площадь, материалы, участок строительства.
    back
    Консультация и подбор решения
    Наш специалист помогает выбрать оптимальный тип дома и конструкцию с учётом бюджета, сроков и целей — будь то дом для постоянного проживания или дача.
    back
    Расчёт предварительной стоимости
    Инженер делает первичный расчёт стоимости строительства по вашим параметрам: фундамент, коробка, кровля, отделка. Вы получаете смету с разбивкой по этапам.
    back
    Корректировка и утверждение сметы
    При необходимости вносим изменения — например, замену материалов или сокращение этапов. После согласования формируется окончательная фиксированная смета.
    back
    Заключение договора и старт работ
    После утверждения сметы заключаем официальный договор с гарантией. Вы получаете прозрачный график и точную стоимость — без скрытых расходов.

    Заказать конусльтацию по:Одноэтажный просторный Барн хаус с 4 спальнями Г-117

    Фото 1 Одноэтажный просторный Барн хаус с 4 спальнями Г-117


      Наши
      контакты

      Дмитров
      Опорный проезд 28Б
      (индустриальный парк Ниагара)
      9:00 до 18:00

      Корзина