4.9
Рейтинг на основании 120 отзывов
Дмитров
Опорный проезд 28Б
(индустриальный парк Ниагара)
Бренд "Дмитров-Дело" c 2008 года на рынке строительства в Дмитрове
Звоните 9:00 до 18:00 8 (915) 055-33-61
Бренд "Дмитров-Дело" c 2008 года на рынке строительства в Дмитрове

Одноэтажный семейный дом Аист-1 (3 спальни)

Стоимость проекта от:
42 300 ₽
БЕСПЛАТНО! ПРИ ЗАКАЗЕ СТРОИТЕЛЬСТВА
Стоимость строительства от:
5 966 180 ₽
Артикул ART-11839
Дата 25.12.2025
Архитектурный стиль Классический
Количество надземных этажей 1
Круглогодичное проживание Да
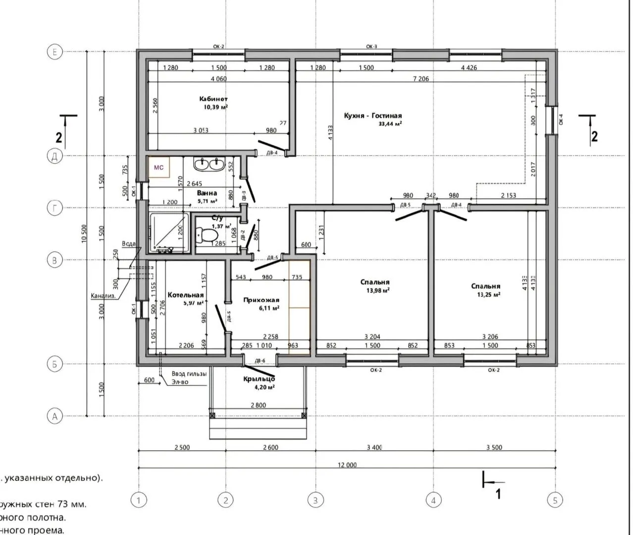
Площадь дома 94 м2
Санузлы 2
Спальни 3

Описание

Прогуливаясь по улице, вы встретите уютный, одноэтажный семейный дом Аист‑1, который сразу же пронизан атмосферой домашнего тепла. Его «Классический» стиль напоминает вам о спокойной гармонии и аккуратности: ровные фасады, строгие линии, и при этом без лишних украшений. Внутри вас ждёт простор, где каждая из 3 уютных спален рассчитана на комфортную жизнь любой семьи. Всё пространство пропитано мягким светом, а открытые планировки сделают ваше ежедневное пребывание лёгким и приятным. Этот дом предназначен для круглогодичного проживания. Каркасно‑панельная конструкция с утеплёнными стенами обеспечивает надежную теплоизоляцию, а двускатная крыша дарит надёжную защиту от непогоды и придаёт вид изысканной простоты. Удобный чердак открывает дополнительные возможности: хранить сезонную одежду, устроить уютный уголок для хобби, или превратить его в просторную рабочую зону. В Аист‑1 вы найдёте всё необходимое для спокойного семейного быта. Площадь без балконов и веранд создаёт ощущение приватности, а отсутствие прибрежного гаража лишь подчёркивает открытость и простоту, позволяя вам наслаждаться своей жизнью без лишних забот. Это дом, где каждая деталь продумана для вашего комфорта, а его классический облик будет радовать глаз и душу долгие годы.

Характеристики дома

Архитектурный стиль
Автоматизированное регулирование параметров теплоносителя
Нет
Балконы/лоджии
Отсутствуют
Чердачное помещение
Да
Датчики протечки воды
Нет
Эксплуатируемая или зеленая кровля
Нет
Электроснабжение
Центральное
Газоснабжение
Центральное
Изоляция воздушного шума
Да
Камин
Нет
Класс энергоэффективности
-
Класс энергосбережения
-
Количество надземных этажей
1
Круглогодичное проживание
Да
Материал кровли
Металлочерепица
Материал перекрытий
Деревянные
Материал внешних стен
Материал внутренних перегородок
Деревянные
Модульное строительство с конструкциями заводского изготовления
Нет
Объем надземной части
327 м3
Основной материал фасадов
Сайдинг
Отопление
Индивидуальное
Площадь дома
94 м2
Площадь застройки
108 м2
Подвальное помещение
Нет
Показатель компактности здания
-
Приборы учета тепловой энергии
Нет
Пристроенный гараж/крытая автостоянка
Нет
Противопожарная система
Нет
Санузлы
2
Совмещенная кухня-гостиная
Да
Спальни
3
Терраса
Нет
Тип фундамента
Свайный
Тип кровли
Толщина внешних стен
275 мм
Толщина внутренних перегородок
170 мм
Улучшенные шумовые характеристики
Да
Вентиляция
Естественная
Веранда
Нет
Водоотведение
2 варианта
Водоснабжение
2 варианта
Высота дома
6 м
Высота потолков
2.75 м

Планировка

Фасад дома

Александр

Закажите выезд инженера

Александр

Выездной инженер
Закажите выезд инженера для точной диагностики и профессиональной консультации по инженерным системам. Специалист приедет в удобное время, проведёт осмотр, рассчитает стоимость работ и подберёт оптимальные решения для вашего дома.


    Похожие проекты

    Ипотека и
    рассрочка
    Загородный дом «Ваниль 3»
    Стоимость от:
    7 495 800
    Проект от: 56 250
    Этажей 2
    Санузлы 2
    Спальни 4
    Смотреть
    Ипотека и
    рассрочка
    Двухэтажный загородный дом «Садбери оптима»
    Стоимость от:
    4 907 700
    Проект от: 36 900
    Этажей 2
    Санузлы 2
    Спальни 4
    Смотреть
    Ипотека и
    рассрочка
    6х6 один этаж
    Стоимость от:
    1 681 130
    Проект от: 13 050
    Этажей 1
    Санузлы 1
    Спальни 1
    Смотреть
    Ипотека и
    рассрочка
    GP- 211/S
    Стоимость от:
    6 708 900
    Проект от: 42 750
    Этажей 1
    Санузлы 1
    Спальни 3
    Смотреть
    Ипотека и
    рассрочка
    Дом в стиле хай-тек Олимп
    Стоимость от:
    8 145 900
    Проект от: 56 700
    Этажей 2
    Санузлы 2
    Спальни 3
    Смотреть
    Ипотека и
    рассрочка
    Проект индивидуального жилого двухэтажного дома
    Стоимость от:
    9 550 080
    Проект от: 59 400
    Этажей 2
    Санузлы 2
    Спальни 4
    Смотреть

    Как узнать стоимость дома

    back
    Оставляете заявку
    Вы заполняете форму на сайте или звоните нам. Менеджер Лайвкрафт связывается с вами для уточнения деталей: тип дома, площадь, материалы, участок строительства.
    back
    Консультация и подбор решения
    Наш специалист помогает выбрать оптимальный тип дома и конструкцию с учётом бюджета, сроков и целей — будь то дом для постоянного проживания или дача.
    back
    Расчёт предварительной стоимости
    Инженер делает первичный расчёт стоимости строительства по вашим параметрам: фундамент, коробка, кровля, отделка. Вы получаете смету с разбивкой по этапам.
    back
    Корректировка и утверждение сметы
    При необходимости вносим изменения — например, замену материалов или сокращение этапов. После согласования формируется окончательная фиксированная смета.
    back
    Заключение договора и старт работ
    После утверждения сметы заключаем официальный договор с гарантией. Вы получаете прозрачный график и точную стоимость — без скрытых расходов.

    Заказать конусльтацию по:Одноэтажный семейный дом Аист-1 (3 спальни)

    Фото 1 Одноэтажный семейный дом Аист-1 (3 спальни)


      Наши
      контакты

      Дмитров
      Опорный проезд 28Б
      (индустриальный парк Ниагара)
      9:00 до 18:00

      Корзина