4.9
Рейтинг на основании 120 отзывов
Дмитров
Опорный проезд 28Б
(индустриальный парк Ниагара)
Бренд "Дмитров-Дело" c 2008 года на рынке строительства в Дмитрове
Звоните 9:00 до 18:00 8 (915) 055-33-61
Бренд "Дмитров-Дело" c 2008 года на рынке строительства в Дмитрове

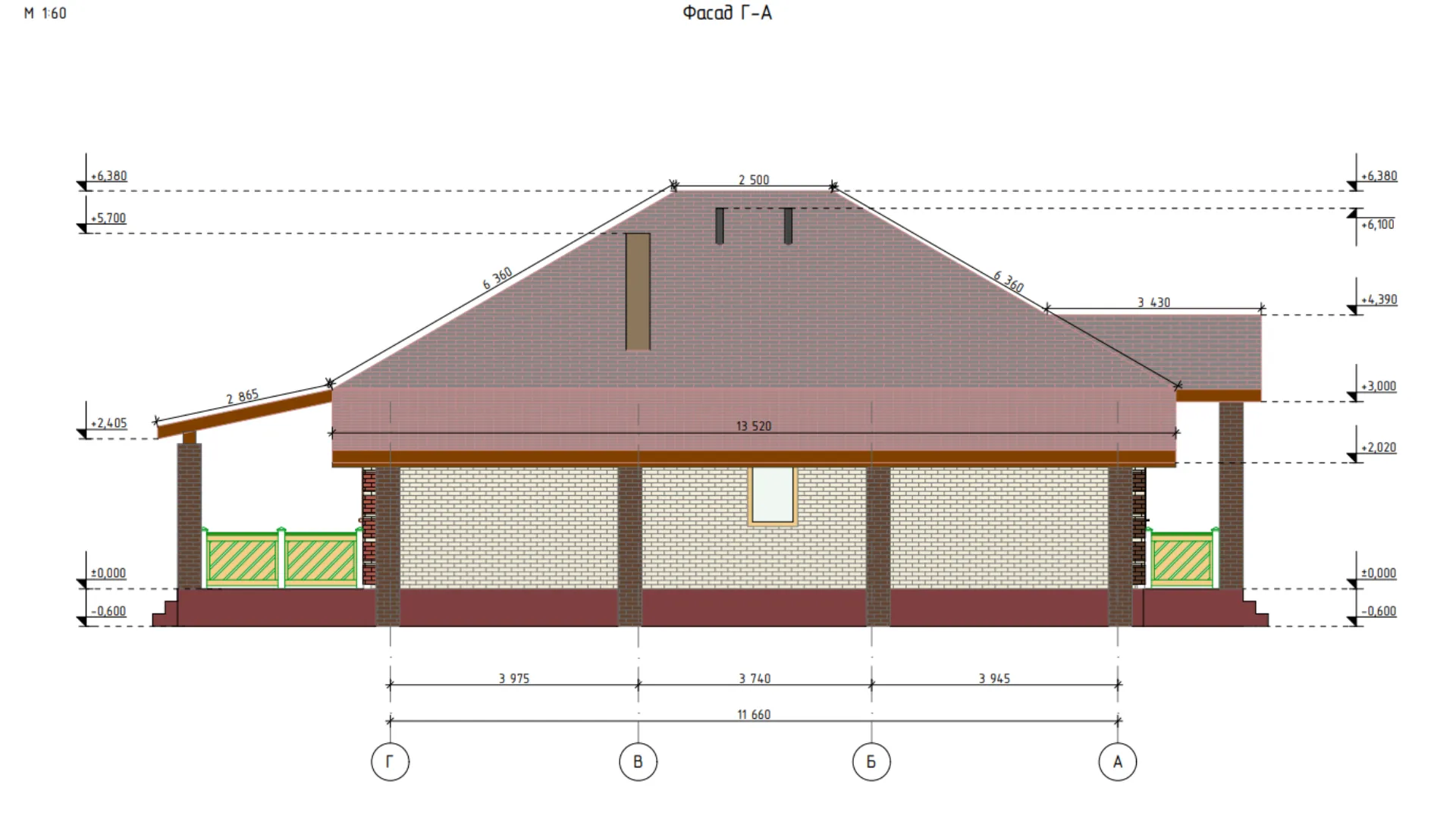
Одноэтажный жилой дом S-128

Стоимость проекта от:
40 950 ₽
Стоимость строительства от:
6 840 020 ₽
Артикул ART-14610
Дата 25.12.2025
Архитектурный стиль Классический
Количество надземных этажей 1
Круглогодичное проживание Да
Площадь дома 91 м2
Санузлы 1
Спальни 3

Описание

Объект представляет собой прекрасный одноэтажный дом классического стиля, идеальный для тех, кто ценит уют, простоту и гармонию с природой. Его массивные кирпичные стены придают зданию внушительный и надёжный облик, а четырёхскатная (вальмовая) крыша создаёт атмосферу элегантности и благородства. Благодаря продуманной планировке и качественной изоляции, дом обеспечивает комфортное проживание круглый год, оттепель не смущает, а теплые лучи солнечного света проникают в каждый угол. Внутреннее пространство обустроено с учётом современных потребностей семейной жизни: большие светлые комнаты, современная кухня‑быт, удобные зоны отдыха, а также открытая веранда и терраса, где можно пообедать под открытым небом или провести вечер в компании друзей и близких. В доме предусмотрено пристроенное гаражное помещение и крытая автостоянка, что избавляет от хлопот с парковкой и повышает ценность недвижимости. Выбирая этот дом, вы не просто инвестируете в жильё, а создаёте свой маленький уголок, где каждая деталь продумана на каждый день, а окружающая атмосфера дарит ощущение тепла, безопасности и истинного уюта. Это идеальный выбор для тех, кто ищет качественный, надёжный и в то же время стильный дом, где можно спокойно жить, отдыхать и строить будущее.

Характеристики дома

Архитектурный стиль
Классический
Автоматизированное регулирование параметров теплоносителя
Нет
Балконы/лоджии
Отсутствуют
Чердачное помещение
Нет
Датчики протечки воды
Нет
Эксплуатируемая или зеленая кровля
Нет
Электроснабжение
Индивидуальное
Газоснабжение
Центральное
Изоляция воздушного шума
Нет
Камин
Нет
Класс энергоэффективности
-
Класс энергосбережения
-
Количество надземных этажей
1
Круглогодичное проживание
Да
Материал кровли
Металлочерепица
Материал перекрытий
Деревянные
Материал внешних стен
Кирпич
Материал внутренних перегородок
Блочные
Модульное строительство с конструкциями заводского изготовления
Нет
Объем надземной части
126 м3
Основной материал фасадов
Облицовочный кирпич
Отопление
Индивидуальное
Площадь дома
91 м2
Площадь застройки
91 м2
Подвальное помещение
Нет
Показатель компактности здания
-
Приборы учета тепловой энергии
Нет
Пристроенный гараж/крытая автостоянка
Да
Противопожарная система
Нет
Санузлы
1
Совмещенная кухня-гостиная
Да
Спальни
3
Терраса
Да
Тип фундамента
Свайно-ростверковый
Тип кровли
Четырехскатная (вальмовая)
Толщина внешних стен
650 мм
Толщина внутренних перегородок
220 мм
Улучшенные шумовые характеристики
Нет
Вентиляция
Естественная
Веранда
Да
Водоотведение
Локальные очистные сооружения
Водоснабжение
Индивидуальное
Высота дома
6.38 м
Высота потолков
3 м

Планировка

Фасад дома

Александр

Закажите выезд инженера

Александр

Выездной инженер
Закажите выезд инженера для точной диагностики и профессиональной консультации по инженерным системам. Специалист приедет в удобное время, проведёт осмотр, рассчитает стоимость работ и подберёт оптимальные решения для вашего дома.


    Похожие проекты

    Ипотека и
    рассрочка
    Проект двухэтажного дома с сауной в классическом стиле S-349
    Стоимость от:
    26 057 520
    Проект от: 167 850
    Этажей 2
    Санузлы 4
    Спальни 5
    Смотреть
    Ипотека и
    рассрочка
    Жилой дом Уют 1.0
    Стоимость от:
    11 396 320
    Проект от: 68 400
    Этажей 3
    Санузлы 1
    Спальни 3
    Смотреть
    Ипотека и
    рассрочка
    Двухэтажный мансардный дом №370-3
    Стоимость от:
    10 134 000
    Проект от: 65 250
    Этажей 2
    Санузлы 2
    Спальни 5
    Смотреть
    Ипотека и
    рассрочка
    Дом с широким остеклением в стиле хайтек S3-121-3 (Zx116)
    Стоимость от:
    9 747 320
    Проект от: 56 700
    Этажей 1
    Санузлы 3
    Спальни 3
    Смотреть
    Ипотека и
    рассрочка
    Комфорт-006
    Стоимость от:
    6 239 860
    Проект от: 37 350
    Этажей 1
    Санузлы 2
    Спальни 3
    Смотреть
    Ипотека и
    рассрочка
    S.Dom-144-2
    Стоимость от:
    9 063 600
    Проект от: 63 000
    Этажей 2
    Санузлы 2
    Спальни 5
    Смотреть

    Как узнать стоимость дома

    back
    Оставляете заявку
    Вы заполняете форму на сайте или звоните нам. Менеджер Лайвкрафт связывается с вами для уточнения деталей: тип дома, площадь, материалы, участок строительства.
    back
    Консультация и подбор решения
    Наш специалист помогает выбрать оптимальный тип дома и конструкцию с учётом бюджета, сроков и целей — будь то дом для постоянного проживания или дача.
    back
    Расчёт предварительной стоимости
    Инженер делает первичный расчёт стоимости строительства по вашим параметрам: фундамент, коробка, кровля, отделка. Вы получаете смету с разбивкой по этапам.
    back
    Корректировка и утверждение сметы
    При необходимости вносим изменения — например, замену материалов или сокращение этапов. После согласования формируется окончательная фиксированная смета.
    back
    Заключение договора и старт работ
    После утверждения сметы заключаем официальный договор с гарантией. Вы получаете прозрачный график и точную стоимость — без скрытых расходов.

    Заказать конусльтацию по:Одноэтажный жилой дом S-128

    Фото 1 Одноэтажный жилой дом S-128


      Наши
      контакты

      Дмитров
      Опорный проезд 28Б
      (индустриальный парк Ниагара)
      9:00 до 18:00