4.9
Рейтинг на основании 120 отзывов
Дмитров
Опорный проезд 28Б
(индустриальный парк Ниагара)
Бренд "Дмитров-Дело" c 2008 года на рынке строительства в Дмитрове
Звоните 9:00 до 18:00 8 (915) 055-33-61
Бренд "Дмитров-Дело" c 2008 года на рынке строительства в Дмитрове

Одноэтажный жилой дом с мансардой

Стоимость проекта от:
77 850 ₽
БЕСПЛАТНО! ПРИ ЗАКАЗЕ СТРОИТЕЛЬСТВА
Стоимость строительства от:
11 836 660 ₽
Артикул ART-15156
Дата 25.12.2025
Архитектурный стиль Классический
Количество надземных этажей 1
Круглогодичное проживание Да
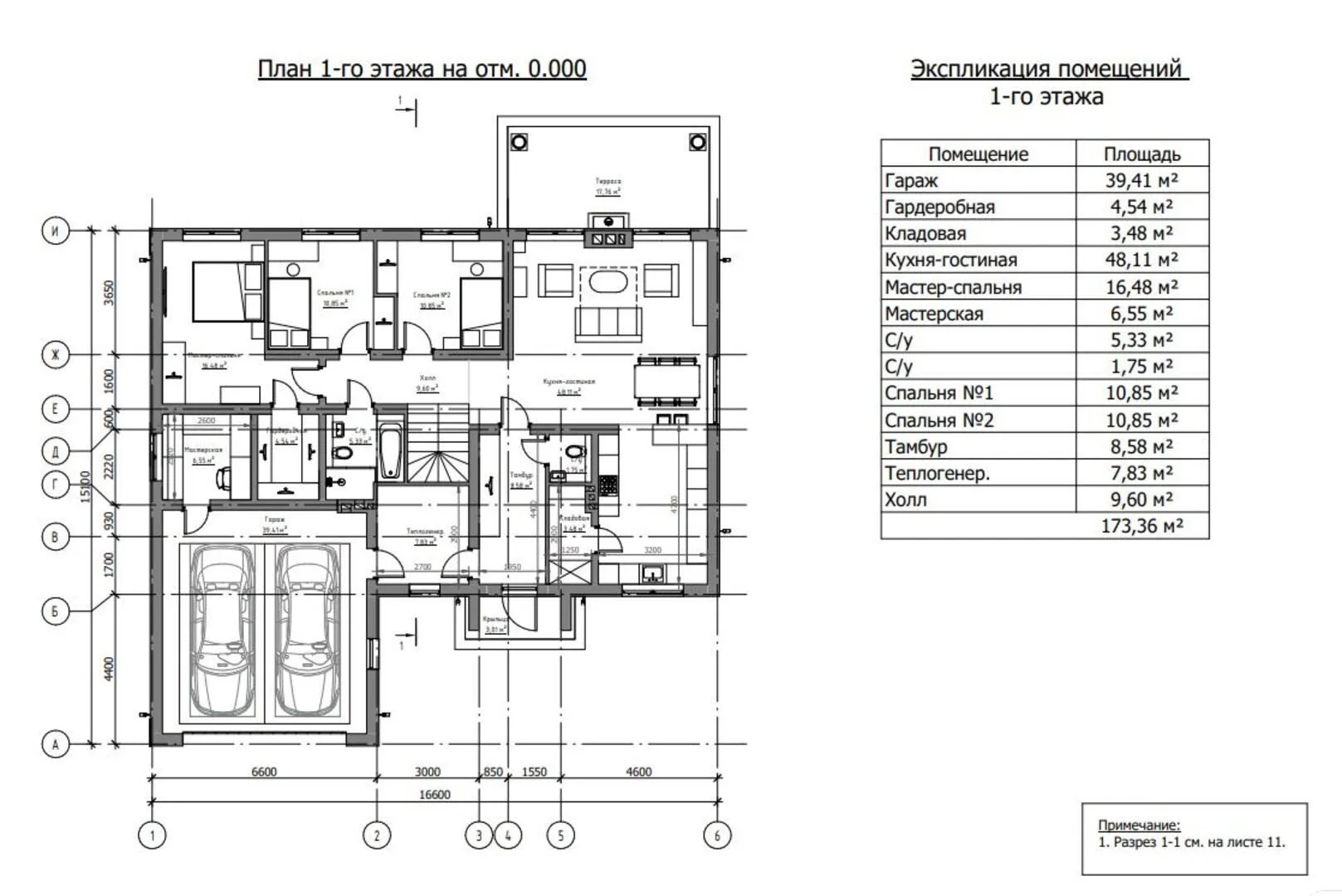
Площадь дома 173 м2
Санузлы 2
Спальни 3

Описание

Добро пожаловать в уютный уголок вашего будущего уюта – одностоящий семейный дом с мансардой, где каждый уголок пропитан классической элегантностью и практичностью. С его открытой, светлой планировкой и непрерывной жилой зоной в любое время года вы сможете наслаждаться комфортом и гармонией, не открываясь ветру и холоду. Фасад, выполненный из газобетонных блоков, отражает не только долговечность и энергоэффективность, но и строгую симметрию, характерную для традиционной классической архитектуры. Дом гордо демонстрирует удобный прибрежный стиль с просторным террасным участком, где вы сможете отдыхать в идиллической атмосфере, выращивая цветы, устраивая барбекю или просто наслаждаясь звуками заката. Встроенный гараж и крытая автостоянка обеспечивают безопасность вашего автомобиля и дополнительное место для хранения. Мансарда превращает этот дом в настоящий кладезь возможностей – от уютной зоны для чтения до домашнего офиса, а также хранение вещей, которые не нужны ежедневно, но нужны вам в будущем. Каждый элемент этого дома создан с заботой и вниманием к деталям: от комбинированной, надежной кровли до тщательно продуманной планировки, где каждая комната имеет свою индивидуальность. Ваша мечта о спокойном, уютном и красивом жилище становится реальностью, когда вы садитесь в этот дом, где каждая деталь приглашает к гармонии и благополучию. Откройте новые горизонты комфорта – дайте своему дому стать вашим личным убежищем от суеты и вдохновляющего начала каждого дня.

Характеристики дома

Архитектурный стиль
Автоматизированное регулирование параметров теплоносителя
Да
Балконы/лоджии
Отсутствуют
Чердачное помещение
Да
Датчики протечки воды
Да
Эксплуатируемая или зеленая кровля
Нет
Электроснабжение
Центральное
Газоснабжение
Центральное
Изоляция воздушного шума
Да
Камин
Нет
Класс энергоэффективности
B
Класс энергосбережения
A++
Количество надземных этажей
1
Круглогодичное проживание
Да
Материал кровли
Керамическая черепица
Материал перекрытий
Монолитные железобетонные
Материал внешних стен
Материал внутренних перегородок
Блочные
Модульное строительство с конструкциями заводского изготовления
Нет
Объем надземной части
850 м3
Основной материал фасадов
Штукатурка
Отопление
Индивидуальное
Площадь дома
173 м2
Площадь застройки
258 м2
Подвальное помещение
Нет
Показатель компактности здания
0.82
Приборы учета тепловой энергии
Да
Пристроенный гараж/крытая автостоянка
Да
Противопожарная система
Нет
Санузлы
2
Совмещенная кухня-гостиная
Да
Спальни
3
Терраса
Да
Тип фундамента
Плитный
Тип кровли
Толщина внешних стен
300 мм
Толщина внутренних перегородок
100 мм
Улучшенные шумовые характеристики
Да
Вентиляция
2 варианта
Веранда
Нет
Водоотведение
Локальные очистные сооружения
Водоснабжение
Индивидуальное
Высота дома
6.92 м
Высота потолков
3 м

Планировка

Фасад дома

Александр

Закажите выезд инженера

Александр

Выездной инженер
Закажите выезд инженера для точной диагностики и профессиональной консультации по инженерным системам. Специалист приедет в удобное время, проведёт осмотр, рассчитает стоимость работ и подберёт оптимальные решения для вашего дома.


    Похожие проекты

    Ипотека и
    рассрочка
    Одноэтажный дом F-7766
    Стоимость от:
    7 894 040
    Проект от: 45 900
    Этажей 1
    Санузлы 1
    Спальни 2
    Смотреть
    Ипотека и
    рассрочка
    ЭП/09/2023/6NK9K0X
    Стоимость от:
    9 958 320
    Проект от: 59 850
    Этажей 2
    Санузлы 2
    Спальни 3
    Смотреть
    Ипотека и
    рассрочка
    Вдохновение 150
    Стоимость от:
    9 891 000
    Проект от: 67 500
    Этажей 2
    Санузлы 2
    Спальни 3
    Смотреть
    Ипотека и
    рассрочка
    Одноэтажный каменный дом «Венера»
    Стоимость от:
    8 040 340
    Проект от: 48 150
    Этажей 1
    Санузлы 2
    Спальни 2
    Смотреть
    Ипотека и
    рассрочка
    1005А «Остров сокровищ» — 4 спальни (мастер спальня) , терраса
    Стоимость от:
    11 468 880
    Проект от: 75 150
    Этажей 2
    Санузлы 3
    Спальни 4
    Смотреть
    Ипотека и
    рассрочка
    Кирпичный дом (Пятидворье)
    Стоимость от:
    6 464 920
    Проект от: 38 700
    Этажей 1
    Санузлы 1
    Спальни 3
    Смотреть

    Как узнать стоимость дома

    back
    Оставляете заявку
    Вы заполняете форму на сайте или звоните нам. Менеджер Лайвкрафт связывается с вами для уточнения деталей: тип дома, площадь, материалы, участок строительства.
    back
    Консультация и подбор решения
    Наш специалист помогает выбрать оптимальный тип дома и конструкцию с учётом бюджета, сроков и целей — будь то дом для постоянного проживания или дача.
    back
    Расчёт предварительной стоимости
    Инженер делает первичный расчёт стоимости строительства по вашим параметрам: фундамент, коробка, кровля, отделка. Вы получаете смету с разбивкой по этапам.
    back
    Корректировка и утверждение сметы
    При необходимости вносим изменения — например, замену материалов или сокращение этапов. После согласования формируется окончательная фиксированная смета.
    back
    Заключение договора и старт работ
    После утверждения сметы заключаем официальный договор с гарантией. Вы получаете прозрачный график и точную стоимость — без скрытых расходов.

    Заказать конусльтацию по:Одноэтажный жилой дом с мансардой

    Фото 1 Одноэтажный жилой дом с мансардой


      Наши
      контакты

      Дмитров
      Опорный проезд 28Б
      (индустриальный парк Ниагара)
      9:00 до 18:00

      Корзина