4.9
Рейтинг на основании 120 отзывов
Дмитров
Опорный проезд 28Б
(индустриальный парк Ниагара)
Бренд "Дмитров-Дело" c 2008 года на рынке строительства в Дмитрове
Звоните 9:00 до 18:00 8 (915) 055-33-61
Бренд "Дмитров-Дело" c 2008 года на рынке строительства в Дмитрове

Пифей-89,70

Стоимость проекта от:
31 500 ₽
Стоимость строительства от:
5 264 600 ₽
Артикул ART-10568
Дата 25.12.2025
Архитектурный стиль Классический
Количество надземных этажей 1
Круглогодичное проживание Да
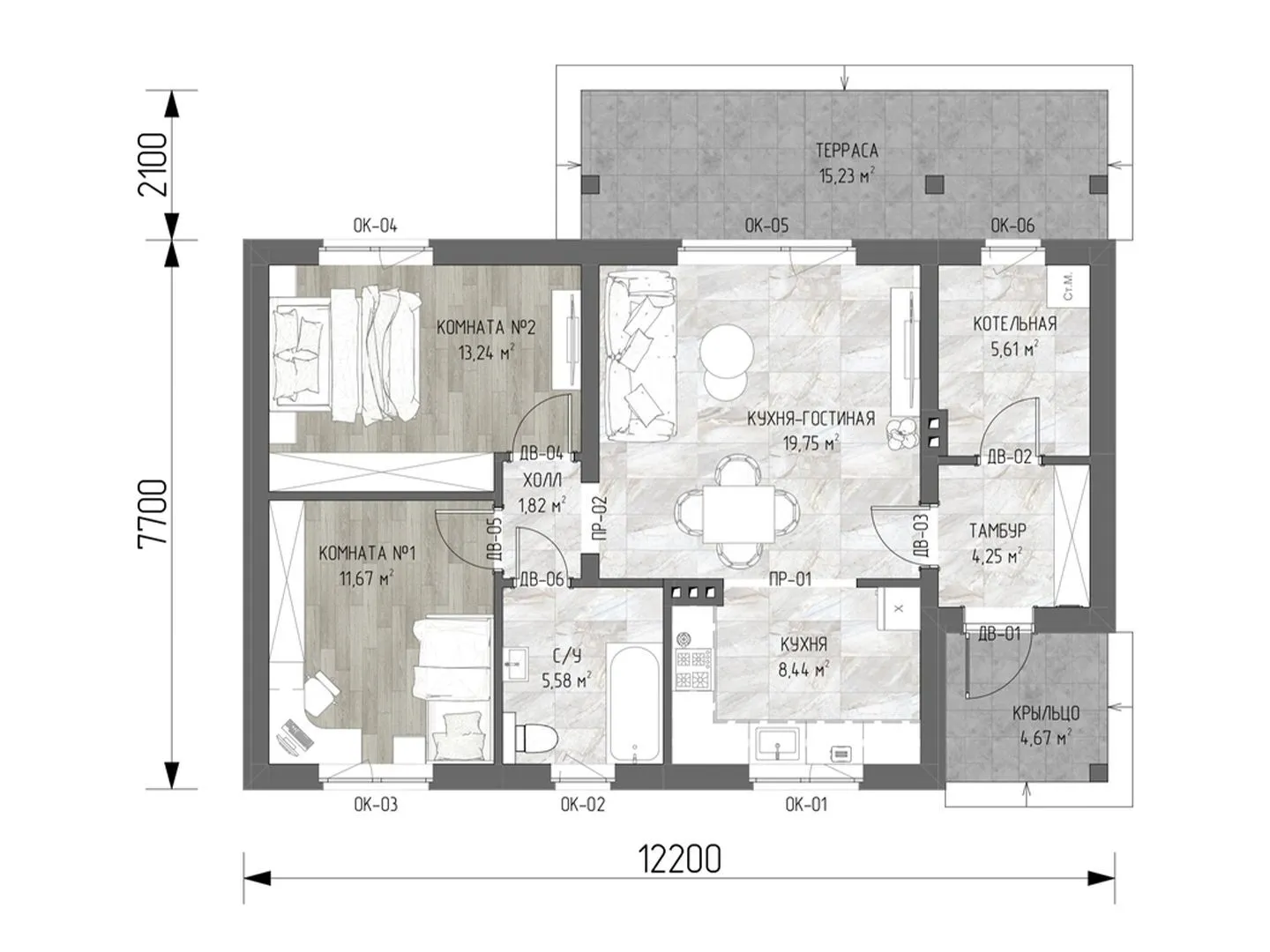
Площадь дома 70 м2
Санузлы 1
Спальни 2

Описание

Пифей‑89,70 – это уютное одноэтажное семейное резидентство, олицетворяющее классическую элегантность в простых, но благородных деталях. Годовая конструкция, выполненная из керамзитобетонных блоков, гарантирует тепло и комфорт в любое время года, а двускатная крыша придаёт традиционный вид и защищает от непогоды. Внутри просторные комнаты с открытым планом, в котором гармонично сочетаются свет и пространство, создавая ощущение свободы и легкости. Отдельно стоит отметить практичность: без балконов и веранд, но при этом с просторной террасой, открывающей панорамные виды на окрестности, и чердачным помещением, которое можно превратить в кладовую, гостиный уголок или маленькую мастерскую. Удобство в отсутствии отдельного прицепного гаража, но при этом достаточное пространство для легкой автостоянки рядом, которое подойдёт для современного образа жизни. Пифей‑89,70 – это более чем просто дом. Это место, где классический стиль встречается с функциональностью, а каждый квадратный метр создан для комфорта и уюта. Приглашаем вас открыть для себя идеальное сочетание традиций и современности, сделав ваш новый дом настоящей крепостью семейного счастья.

Характеристики дома

Архитектурный стиль
Классический
Автоматизированное регулирование параметров теплоносителя
-
Балконы/лоджии
Отсутствуют
Чердачное помещение
Да
Датчики протечки воды
-
Эксплуатируемая или зеленая кровля
-
Электроснабжение
Центральное
Газоснабжение
Не предусмотрено
Изоляция воздушного шума
-
Камин
Нет
Класс энергоэффективности
-
Класс энергосбережения
-
Количество надземных этажей
1
Круглогодичное проживание
Да
Материал кровли
Металлочерепица
Материал перекрытий
Монолитные железобетонные
Материал внешних стен
Керамзитобетонные блоки
Материал внутренних перегородок
Блочные
Модульное строительство с конструкциями заводского изготовления
Нет
Объем надземной части
-
Основной материал фасадов
Облицовочный кирпич
Отопление
Индивидуальное
Площадь дома
70 м2
Площадь застройки
89 м2
Подвальное помещение
Нет
Показатель компактности здания
-
Приборы учета тепловой энергии
-
Пристроенный гараж/крытая автостоянка
Нет
Противопожарная система
Нет
Санузлы
1
Совмещенная кухня-гостиная
Да
Спальни
2
Терраса
Да
Тип фундамента
Свайно-ростверковый
Тип кровли
Двускатная
Толщина внешних стен
440 мм
Толщина внутренних перегородок
100 мм
Улучшенные шумовые характеристики
-
Вентиляция
2 варианта
Веранда
Нет
Водоотведение
Локальные очистные сооружения
Водоснабжение
Индивидуальное
Высота дома
5.29 м
Высота потолков
2.7 м

Планировка

Фасад дома

Александр

Закажите выезд инженера

Александр

Выездной инженер
Закажите выезд инженера для точной диагностики и профессиональной консультации по инженерным системам. Специалист приедет в удобное время, проведёт осмотр, рассчитает стоимость работ и подберёт оптимальные решения для вашего дома.


    Похожие проекты

    Ипотека и
    рассрочка
    Грата 1-130-Шале
    Стоимость от:
    9 540 740
    Проект от: 57 150
    Этажей 1
    Санузлы 2
    Спальни 2
    Смотреть
    Ипотека и
    рассрочка
    Загородный дом по проекту «Расмус».
    Стоимость от:
    5 079 360
    Проект от: 35 100
    Этажей 1
    Санузлы 1
    Спальни 2
    Смотреть
    Ипотека и
    рассрочка
    МС_Белая_1
    Стоимость от:
    15 238 080
    Проект от: 99 900
    Этажей 2
    Санузлы 3
    Спальни 4
    Смотреть
    Ипотека и
    рассрочка
    Проект жилого дома «Флагман»
    Стоимость от:
    11 194 500
    Проект от: 76 500
    Этажей 2
    Санузлы 2
    Спальни 4
    Смотреть
    Ипотека и
    рассрочка
    Одноэтажный дом по индивидуальному проекту
    Стоимость от:
    7 515 200
    Проект от: 45 000
    Этажей 1
    Санузлы 1
    Спальни 3
    Смотреть
    Ипотека и
    рассрочка
    Двухэтажный загородный дом Д-142
    Стоимость от:
    9 917 280
    Проект от: 63 900
    Этажей 2
    Санузлы 3
    Спальни 4
    Смотреть

    Как узнать стоимость дома

    back
    Оставляете заявку
    Вы заполняете форму на сайте или звоните нам. Менеджер Лайвкрафт связывается с вами для уточнения деталей: тип дома, площадь, материалы, участок строительства.
    back
    Консультация и подбор решения
    Наш специалист помогает выбрать оптимальный тип дома и конструкцию с учётом бюджета, сроков и целей — будь то дом для постоянного проживания или дача.
    back
    Расчёт предварительной стоимости
    Инженер делает первичный расчёт стоимости строительства по вашим параметрам: фундамент, коробка, кровля, отделка. Вы получаете смету с разбивкой по этапам.
    back
    Корректировка и утверждение сметы
    При необходимости вносим изменения — например, замену материалов или сокращение этапов. После согласования формируется окончательная фиксированная смета.
    back
    Заключение договора и старт работ
    После утверждения сметы заключаем официальный договор с гарантией. Вы получаете прозрачный график и точную стоимость — без скрытых расходов.

    Заказать конусльтацию по:Пифей-89,70

    Фото 1 Пифей-89,70


      Наши
      контакты

      Дмитров
      Опорный проезд 28Б
      (индустриальный парк Ниагара)
      9:00 до 18:00

      Корзина