4.9
Рейтинг на основании 120 отзывов
Дмитров
Опорный проезд 28Б
(индустриальный парк Ниагара)
Бренд "Дмитров-Дело" c 2008 года на рынке строительства в Дмитрове
Звоните 9:00 до 18:00 8 (915) 055-33-61
Бренд "Дмитров-Дело" c 2008 года на рынке строительства в Дмитрове

Прима

Стоимость проекта от:
55 350 ₽
БЕСПЛАТНО! ПРИ ЗАКАЗЕ СТРОИТЕЛЬСТВА
Стоимость строительства от:
9 211 920 ₽
Артикул ART-11673
Дата 25.12.2025
Архитектурный стиль Классический
Количество надземных этажей 2
Круглогодичное проживание Да
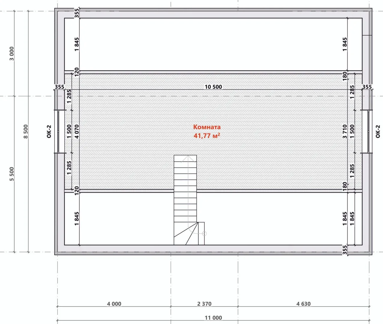
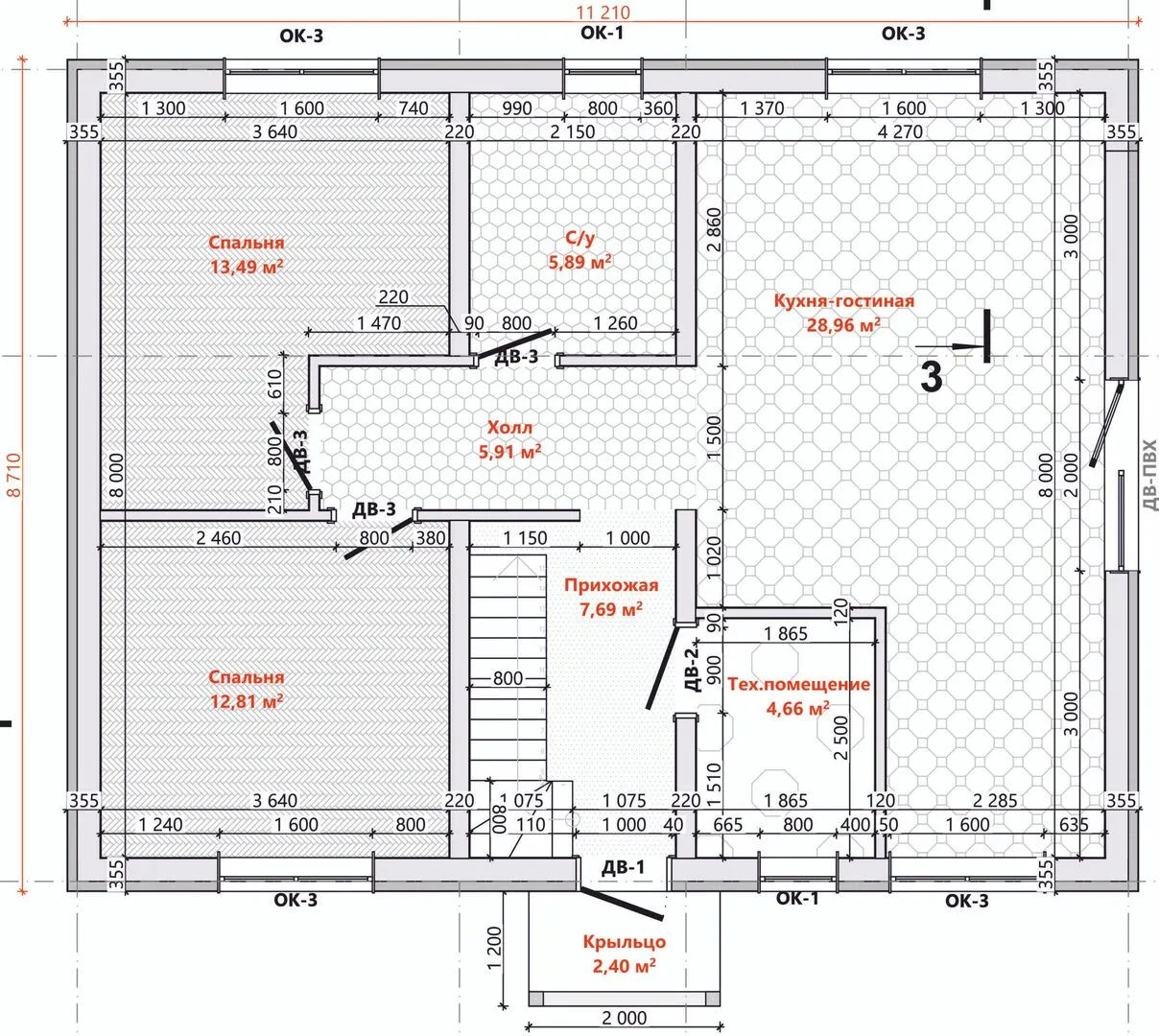
Площадь дома 123 м2
Санузлы 1
Спальни 2

Описание

Разделяйте каждый абзац.Это уютный двухэтажный дом, выполненный в традиционном классическом стиле с изысканными деталями, которые подчеркивают его элегантность и комфорт. Его современная планировка позволяет обустроить пространство так, чтобы каждый уголок ощущался жизненно важным и одновременно спокойным, обеспечивая круглогодичное проживание без лишних забот. Фасад отделан прочными газобетонными блоками, а двойная крыша придаёт дому надёжность и изысканность, защищая интерьер от непогоды и создавая приятную теплоту в любое время года. Хотя отдельные балконы, веранда и крытая автостоянка отсутствуют, интерьер компенсирует это простотой и функциональностью: просторные коридоры и светлые комнаты создают ощущение простора и свободы. Каждый из двух уровней пропитан классикой — от изящных колонн, до тщательно подобранной отделки стен и мебели, обеспечивающей комфортный быт. Зал, кухня и все остальные помещения прекрасно соединяются между собой, создавая идеальный баланс приватности и открытости. Такой дом — это идеальный выбор для тех, кто ценит качество, надежность и элегантность в каждом дне. Он будет служить безопасным убежищем, где в любой сезон атмосфера остаётся тёплой и приветливой, а эстетика и уют создают неповторимую жизненную атмосферу.

Характеристики дома

Архитектурный стиль
Автоматизированное регулирование параметров теплоносителя
Нет
Балконы/лоджии
Отсутствуют
Чердачное помещение
Нет
Датчики протечки воды
Нет
Эксплуатируемая или зеленая кровля
Нет
Электроснабжение
Индивидуальное
Газоснабжение
Индивидуальное
Изоляция воздушного шума
Нет
Камин
Нет
Класс энергоэффективности
-
Класс энергосбережения
-
Количество надземных этажей
2
Круглогодичное проживание
Да
Материал кровли
Металлочерепица
Материал перекрытий
Деревянные
Материал внешних стен
Материал внутренних перегородок
Пенобетонные
Модульное строительство с конструкциями заводского изготовления
Нет
Объем надземной части
-
Основной материал фасадов
Штукатурка
Отопление
Индивидуальное
Площадь дома
123 м2
Площадь застройки
93 м2
Подвальное помещение
Нет
Показатель компактности здания
-
Приборы учета тепловой энергии
Нет
Пристроенный гараж/крытая автостоянка
Нет
Противопожарная система
Нет
Санузлы
1
Совмещенная кухня-гостиная
Да
Спальни
2
Терраса
Нет
Тип фундамента
Ленточный
Тип кровли
Толщина внешних стен
240 мм
Толщина внутренних перегородок
150 мм
Улучшенные шумовые характеристики
Нет
Вентиляция
Естественная
Веранда
Нет
Водоотведение
Локальные очистные сооружения
Водоснабжение
Индивидуальное
Высота дома
6.8 м
Высота потолков
2.9 м

Планировка

Фасад дома

Александр

Закажите выезд инженера

Александр

Выездной инженер
Закажите выезд инженера для точной диагностики и профессиональной консультации по инженерным системам. Специалист приедет в удобное время, проведёт осмотр, рассчитает стоимость работ и подберёт оптимальные решения для вашего дома.


    Похожие проекты

    Ипотека и
    рассрочка
    Загородный дом Фрея
    Стоимость от:
    7 544 640
    Проект от: 47 700
    Этажей 2
    Санузлы 2
    Спальни 3
    Смотреть
    Ипотека и
    рассрочка
    Барн-80
    Стоимость от:
    7 244 820
    Проект от: 40 950
    Этажей 1
    Санузлы 1
    Спальни 3
    Смотреть
    Ипотека и
    рассрочка
    Семекеево 50
    Стоимость от:
    6 089 820
    Проект от: 36 450
    Этажей 1
    Санузлы 1
    Спальни 3
    Смотреть
    Ипотека и
    рассрочка
    Проект № 352
    Стоимость от:
    7 061 040
    Проект от: 45 450
    Этажей 2
    Санузлы 2
    Спальни 4
    Смотреть
    Ипотека и
    рассрочка
    Барнхаус 120
    Стоимость от:
    7 352 400
    Проект от: 54 000
    Этажей 1
    Санузлы 2
    Спальни 3
    Смотреть
    Ипотека и
    рассрочка
    Загородный дом «Мечта»
    Стоимость от:
    4 347 750
    Проект от: 33 750
    Этажей 1
    Санузлы 1
    Спальни 2
    Смотреть

    Как узнать стоимость дома

    back
    Оставляете заявку
    Вы заполняете форму на сайте или звоните нам. Менеджер Лайвкрафт связывается с вами для уточнения деталей: тип дома, площадь, материалы, участок строительства.
    back
    Консультация и подбор решения
    Наш специалист помогает выбрать оптимальный тип дома и конструкцию с учётом бюджета, сроков и целей — будь то дом для постоянного проживания или дача.
    back
    Расчёт предварительной стоимости
    Инженер делает первичный расчёт стоимости строительства по вашим параметрам: фундамент, коробка, кровля, отделка. Вы получаете смету с разбивкой по этапам.
    back
    Корректировка и утверждение сметы
    При необходимости вносим изменения — например, замену материалов или сокращение этапов. После согласования формируется окончательная фиксированная смета.
    back
    Заключение договора и старт работ
    После утверждения сметы заключаем официальный договор с гарантией. Вы получаете прозрачный график и точную стоимость — без скрытых расходов.

    Заказать конусльтацию по:Прима

    Фото 1 Прима


      Наши
      контакты

      Дмитров
      Опорный проезд 28Б
      (индустриальный парк Ниагара)
      9:00 до 18:00

      Корзина