4.9
Рейтинг на основании 120 отзывов
Дмитров
Опорный проезд 28Б
(индустриальный парк Ниагара)
Бренд "Дмитров-Дело" c 2008 года на рынке строительства в Дмитрове
Звоните 9:00 до 18:00 8 (915) 055-33-61
Бренд "Дмитров-Дело" c 2008 года на рынке строительства в Дмитрове

Загородный дом «Бовилла»

Стоимость проекта от:
31 500 ₽
БЕСПЛАТНО! ПРИ ЗАКАЗЕ СТРОИТЕЛЬСТВА
Стоимость строительства от:
5 423 000 ₽
Артикул ART-6326
Дата 26.12.2025
Архитектурный стиль Американский/Канадский
Количество надземных этажей 1
Круглогодичное проживание Да
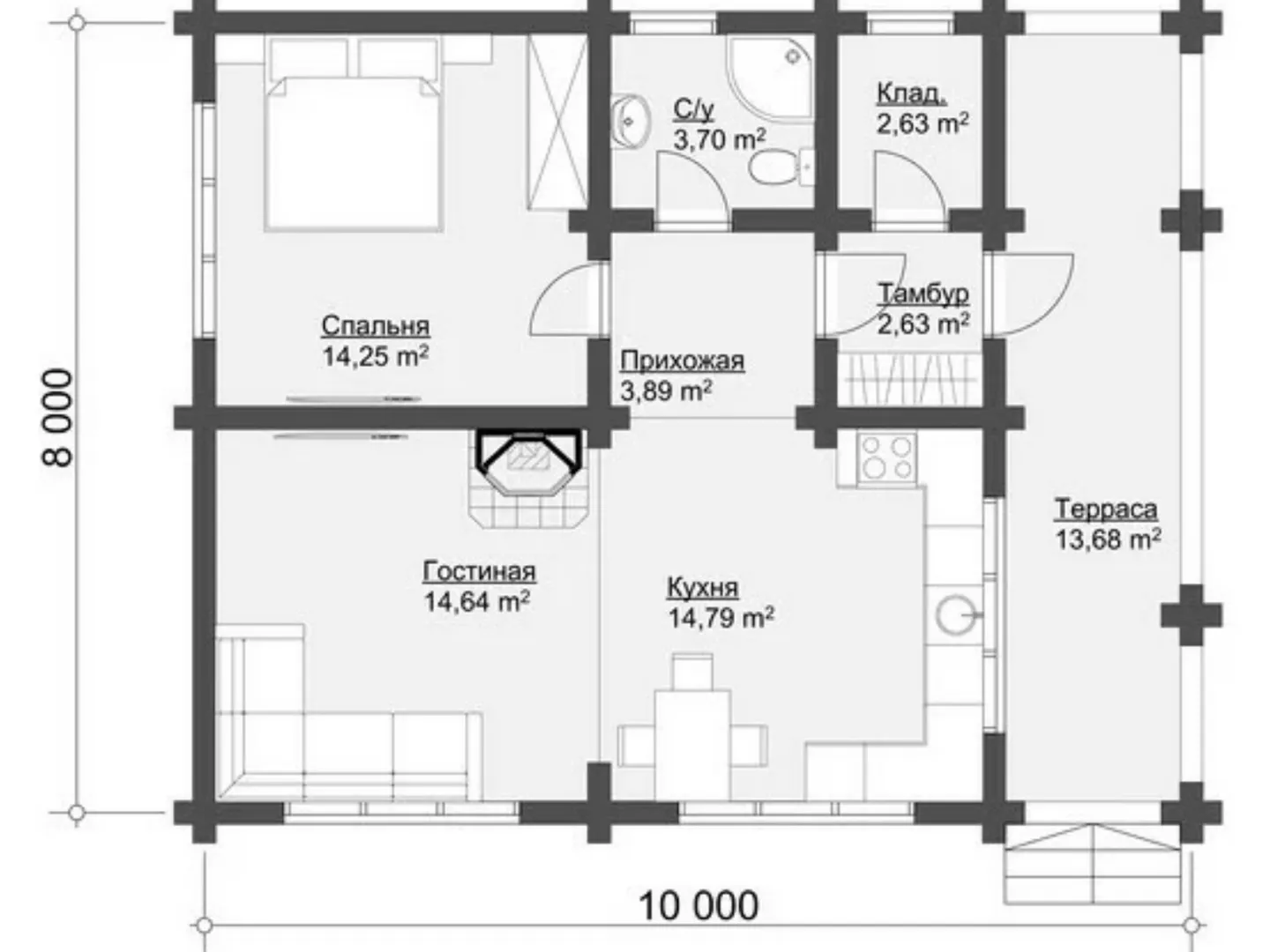
Площадь дома 70 м2
Санузлы 1
Спальни 1

Описание

В тени величественных сосен, где свежий воздух всегда подсказывает, что рядом с природой, расположен одинокий уголок уюта – загородный дом «Бовилла». Это идеальное место для тех, кто ценит атмосферу покоя и одновременно не хочет отказываться от комфорта. Дом, выполненный в элегантном американско‑канадском стиле, привлекает своей непринужденной, но изысканной архитектурой. Внутри – один просторный этаж, где каждая зона логично продумана под круглогодичное проживание — тёплый камин в гостиной, светлая открытая кухня, уютные спальни с мягкими панорамами на лесную чащу. Стены «Бовиллы» возведены из натурального дерева, их срубовые конструкции создают ощущение крепости и гармонии с природой. Двускатная крыша подчёркивает живописный силуэт и обеспечивает превосходную теплоизоляцию, а широкая терраса служит идеальным местом для завтраков под открытым небом, вечерних бесед и наблюдения за закатом над хвойным лесом. В доме отсутствуют балконы, веранда и прицепный гараж, что приписывается к его компактности и экономичности: всё, чем вам понадобится, находится в непосредственной близости, а открытая площадка перед дверью создаёт ощущение простора. «Бовилла» – это место, где каждый элемент продуман в гармонии со временем: в простоте логического дизайна кроется богатство ощущений. Если вы мечтаете о доме, где природа и уют соединяются в безупречной симфонии, этот загородный дом станет идеальным выбором, приглашая в мир спокойствия, уюта и вдохновения.

Характеристики дома

Архитектурный стиль
Автоматизированное регулирование параметров теплоносителя
-
Балконы/лоджии
Отсутствуют
Чердачное помещение
Нет
Датчики протечки воды
-
Эксплуатируемая или зеленая кровля
-
Электроснабжение
2 варианта
Газоснабжение
Индивидуальное
Изоляция воздушного шума
-
Камин
Нет
Класс энергоэффективности
-
Класс энергосбережения
-
Количество надземных этажей
1
Круглогодичное проживание
Да
Материал кровли
Композитная черепица
Материал перекрытий
Деревянные
Материал внешних стен
Материал внутренних перегородок
Деревянные
Модульное строительство с конструкциями заводского изготовления
Нет
Объем надземной части
-
Основной материал фасадов
Дерево
Отопление
Индивидуальное
Площадь дома
70 м2
Площадь застройки
80 м2
Подвальное помещение
Нет
Показатель компактности здания
-
Приборы учета тепловой энергии
-
Пристроенный гараж/крытая автостоянка
Нет
Противопожарная система
Нет
Санузлы
1
Совмещенная кухня-гостиная
Нет
Спальни
1
Терраса
Да
Тип фундамента
Ленточный
Тип кровли
Толщина внешних стен
220 мм
Толщина внутренних перегородок
200 мм
Улучшенные шумовые характеристики
-
Вентиляция
Принудительная
Веранда
Нет
Водоотведение
Локальные очистные сооружения
Водоснабжение
Индивидуальное
Высота дома
4.6 м
Высота потолков
2.7 м

Планировка

Фасад дома

Александр

Закажите выезд инженера

Александр

Выездной инженер
Закажите выезд инженера для точной диагностики и профессиональной консультации по инженерным системам. Специалист приедет в удобное время, проведёт осмотр, рассчитает стоимость работ и подберёт оптимальные решения для вашего дома.


    Похожие проекты

    Ипотека и
    рассрочка
    Одноэтажный дом Fixplans-3338
    Стоимость от:
    4 242 040
    Проект от: 27 900
    Этажей 1
    Санузлы 2
    Спальни 2
    Смотреть
    Ипотека и
    рассрочка
    Трехкомнатный дом, площадью 73 кв.м., проект №65
    Стоимость от:
    4 994 660
    Проект от: 32 850
    Этажей 1
    Санузлы 1
    Спальни 2
    Смотреть
    Ипотека и
    рассрочка
    А-фрейм
    Стоимость от:
    8 572 200
    Проект от: 58 500
    Этажей 2
    Санузлы 1
    Спальни 2
    Смотреть
    Ипотека и
    рассрочка
    Одноэтажный семейный дом Аист-1 (3 спальни)
    Стоимость от:
    5 966 180
    Проект от: 42 300
    Этажей 1
    Санузлы 2
    Спальни 3
    Смотреть
    Ипотека и
    рассрочка
    Белгород
    Стоимость от:
    6 781 680
    Проект от: 43 650
    Этажей 2
    Санузлы 2
    Спальни 3
    Смотреть
    Ипотека и
    рассрочка
    Двухэтажный каркасный дом 8*9 «БС-171»
    Стоимость от:
    7 551 360
    Проект от: 53 550
    Этажей 2
    Санузлы 2
    Спальни 4
    Смотреть

    Как узнать стоимость дома

    back
    Оставляете заявку
    Вы заполняете форму на сайте или звоните нам. Менеджер Лайвкрафт связывается с вами для уточнения деталей: тип дома, площадь, материалы, участок строительства.
    back
    Консультация и подбор решения
    Наш специалист помогает выбрать оптимальный тип дома и конструкцию с учётом бюджета, сроков и целей — будь то дом для постоянного проживания или дача.
    back
    Расчёт предварительной стоимости
    Инженер делает первичный расчёт стоимости строительства по вашим параметрам: фундамент, коробка, кровля, отделка. Вы получаете смету с разбивкой по этапам.
    back
    Корректировка и утверждение сметы
    При необходимости вносим изменения — например, замену материалов или сокращение этапов. После согласования формируется окончательная фиксированная смета.
    back
    Заключение договора и старт работ
    После утверждения сметы заключаем официальный договор с гарантией. Вы получаете прозрачный график и точную стоимость — без скрытых расходов.

    Заказать конусльтацию по:Загородный дом «Бовилла»

    Фото 1 Загородный дом «Бовилла»


      Наши
      контакты

      Дмитров
      Опорный проезд 28Б
      (индустриальный парк Ниагара)
      9:00 до 18:00

      Корзина