4.9
Рейтинг на основании 120 отзывов
Дмитров
Опорный проезд 28Б
(индустриальный парк Ниагара)
Бренд "Дмитров-Дело" c 2008 года на рынке строительства в Дмитрове
Звоните 9:00 до 18:00 8 (915) 055-33-61
Бренд "Дмитров-Дело" c 2008 года на рынке строительства в Дмитрове

Проект 01-24

Стоимость проекта от:
73 800 ₽
БЕСПЛАТНО! ПРИ ЗАКАЗЕ СТРОИТЕЛЬСТВА
Стоимость строительства от:
11 256 960 ₽
Артикул ART-19060
Дата 26.12.2025
Архитектурный стиль Минимализм
Количество надземных этажей 2
Круглогодичное проживание Да
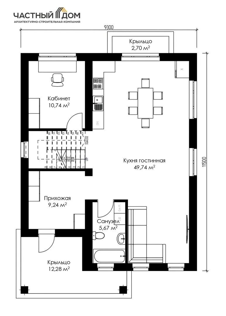
Площадь дома 164 м2
Санузлы 2
Спальни 3

Описание

Добро пожаловать в проект 01‑24 – ваш новый дом, созданный для спокойствия и стиля. Современный минимализм сочетается с практической продуманностью: кирпичные стены придают уют и тепло, а плоская крыши открывает возможности для новых идей – будь то небольшое окошко на солнечном дворе или персональный уголок с видом на город. На каждом из двух надземных этажей вы найдёте открытые, светлые пространства, где каждая деталь продумана так, чтобы вам было приятно жить круглый год. Грациозный балкон/лоджия – ваш личный оазис, где можно насладиться чашкой кофе под звёздами или отдыхом после рабочего дня. Нет лишних балконов и веранд, но и отсутствие приобщённого гаража не помешает вам ощутить индивидуальность пространства – ведь свободны от загибов, вы сможете организовать свою парковку по собственному усмотрению. Минимализм в архитектуре подчёркивает чистую линию дизайна, а отсутствие чердачного помещения и террасы делает каждый квадратный метр максимально функциональным. Это дом, где каждая нить соединяется, создавая гармонию простоты, уюта и удобства.

Характеристики дома

Архитектурный стиль
Автоматизированное регулирование параметров теплоносителя
Нет
Балконы/лоджии
1
Чердачное помещение
Нет
Датчики протечки воды
Нет
Эксплуатируемая или зеленая кровля
Нет
Электроснабжение
2 варианта
Газоснабжение
2 варианта
Изоляция воздушного шума
Нет
Камин
Нет
Класс энергоэффективности
-
Класс энергосбережения
-
Количество надземных этажей
2
Круглогодичное проживание
Да
Материал кровли
Рулонные битумные покрытия
Материал перекрытий
Сборные железобетонные
Материал внешних стен
Материал внутренних перегородок
Кирпичные
Модульное строительство с конструкциями заводского изготовления
Нет
Объем надземной части
-
Основной материал фасадов
Штукатурка
Отопление
2 варианта
Площадь дома
164 м2
Площадь застройки
116 м2
Подвальное помещение
Нет
Показатель компактности здания
-
Приборы учета тепловой энергии
Нет
Пристроенный гараж/крытая автостоянка
Нет
Противопожарная система
Нет
Санузлы
2
Совмещенная кухня-гостиная
Да
Спальни
3
Терраса
Нет
Тип фундамента
Плитный
Тип кровли
Толщина внешних стен
250 мм
Толщина внутренних перегородок
120 мм
Улучшенные шумовые характеристики
Нет
Вентиляция
Естественная
Веранда
Нет
Водоотведение
2 варианта
Водоснабжение
2 варианта
Высота дома
7.2 м
Высота потолков
3 м

Планировка

Фасад дома

Александр

Закажите выезд инженера

Александр

Выездной инженер
Закажите выезд инженера для точной диагностики и профессиональной консультации по инженерным системам. Специалист приедет в удобное время, проведёт осмотр, рассчитает стоимость работ и подберёт оптимальные решения для вашего дома.


    Похожие проекты

    Ипотека и
    рассрочка
    Глизе 74
    Стоимость от:
    4 533 980
    Проект от: 33 300
    Этажей 1
    Санузлы 1
    Спальни 2
    Смотреть
    Ипотека и
    рассрочка
    Одноэтажный загородный дом «Уют»
    Стоимость от:
    9 540 740
    Проект от: 57 150
    Этажей 1
    Санузлы 2
    Спальни 3
    Смотреть
    Ипотека и
    рассрочка
    Дом из CLT «Байкальск»
    Стоимость от:
    1 099 680
    Проект от: 104 400
    Этажей 2
    Санузлы 2
    Спальни 3
    Смотреть
    Ипотека и
    рассрочка
    Дом из профилированного бруса
    Стоимость от:
    8 331 600
    Проект от: 51 750
    Этажей 2
    Санузлы 2
    Спальни 3
    Смотреть
    Ипотека и
    рассрочка
    Одноэтажный дом ПГ — 6
    Стоимость от:
    8 490 460
    Проект от: 50 850
    Этажей 1
    Санузлы 1
    Спальни 3
    Смотреть
    Ипотека и
    рассрочка
    КД «Томск»
    Стоимость от:
    7 900 200
    Проект от: 59 400
    Этажей 2
    Санузлы 2
    Спальни 5
    Смотреть

    Как узнать стоимость дома

    back
    Оставляете заявку
    Вы заполняете форму на сайте или звоните нам. Менеджер Лайвкрафт связывается с вами для уточнения деталей: тип дома, площадь, материалы, участок строительства.
    back
    Консультация и подбор решения
    Наш специалист помогает выбрать оптимальный тип дома и конструкцию с учётом бюджета, сроков и целей — будь то дом для постоянного проживания или дача.
    back
    Расчёт предварительной стоимости
    Инженер делает первичный расчёт стоимости строительства по вашим параметрам: фундамент, коробка, кровля, отделка. Вы получаете смету с разбивкой по этапам.
    back
    Корректировка и утверждение сметы
    При необходимости вносим изменения — например, замену материалов или сокращение этапов. После согласования формируется окончательная фиксированная смета.
    back
    Заключение договора и старт работ
    После утверждения сметы заключаем официальный договор с гарантией. Вы получаете прозрачный график и точную стоимость — без скрытых расходов.

    Заказать конусльтацию по:Проект 01-24

    Фото 1 Проект 01-24


      Наши
      контакты

      Дмитров
      Опорный проезд 28Б
      (индустриальный парк Ниагара)
      9:00 до 18:00

      Корзина