4.9
Рейтинг на основании 120 отзывов
Дмитров
Опорный проезд 28Б
(индустриальный парк Ниагара)
Бренд "Дмитров-Дело" c 2008 года на рынке строительства в Дмитрове
Звоните 9:00 до 18:00 8 (915) 055-33-61
Бренд "Дмитров-Дело" c 2008 года на рынке строительства в Дмитрове

Проект 10

Стоимость проекта от:
44 100 ₽
БЕСПЛАТНО! ПРИ ЗАКАЗЕ СТРОИТЕЛЬСТВА
Стоимость строительства от:
7 365 160 ₽
Артикул ART-11134
Дата 25.12.2025
Архитектурный стиль Классический
Количество надземных этажей 1
Круглогодичное проживание Да
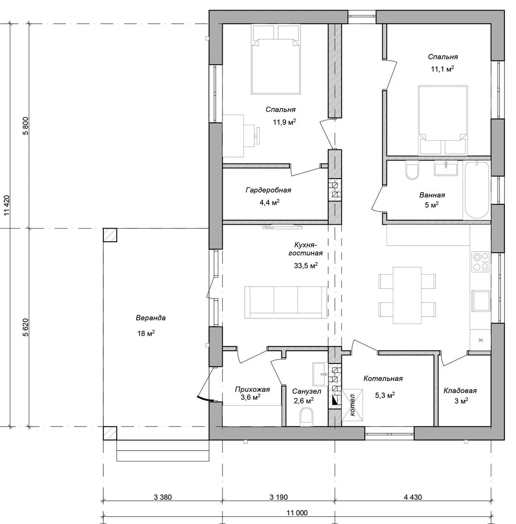
Площадь дома 98 м2
Санузлы 2
Спальни 2

Описание

**Проект 10: Дом вашей мечты, где классика встречается с комфортом** Оценьте безмятежность уютного дома, построенного одним надземным этажом и приспособленного к круглогодичному проживанию. Архитектурный стиль сохраняет традиционные линии, придавая дому элегантный и уравновешенный вид. Внутри царит простор и свет, а обшивка газобетонными блоками гарантирует отличную теплоизоляцию и долговечность. Крыша из четырех скатов–тип «вальмовая» обеспечивает надёжную защиту от непогоды, а её ровные и изящные линии дополнительно подчёркивают аккуратность внешнего экстерьера. Одним из главных преимуществ вашего будущего жилья является практичная веранда. Именно она превращает обычную обеденную зону в идеальное место для встреч, чтения книг в тёплое время года и наслаждения свежим воздухом. При отсутствии балконов, лоджий и чердачних помещений дом остаётся компактным, но при этом максимально функциональным, идеально подходящим для спокойной семейной жизни. Без нужды в прицепляемых гаражах или автостоянках, вы легко найдёте место для собственного автомобиля в свободном пространстве участка, сохраняя при этом чистый и спокойный вид двора. Выбирая «Проект 10», вы получаете дом, где простота, традиция и качество создают идеальную, гармоничную жилую среду. Это приглашение к жизни, в которой каждый день начинается с приятного ощущения уюта и завершен мягким покоем, которые дарят именно ваш новый классический дом.

Характеристики дома

Архитектурный стиль
Автоматизированное регулирование параметров теплоносителя
Нет
Балконы/лоджии
Отсутствуют
Чердачное помещение
Нет
Датчики протечки воды
Нет
Эксплуатируемая или зеленая кровля
Нет
Электроснабжение
Не предусмотрено
Газоснабжение
Не предусмотрено
Изоляция воздушного шума
Нет
Камин
Нет
Класс энергоэффективности
-
Класс энергосбережения
-
Количество надземных этажей
1
Круглогодичное проживание
Да
Материал кровли
Металлочерепица
Материал перекрытий
Деревянные
Материал внешних стен
Материал внутренних перегородок
Блочные
Модульное строительство с конструкциями заводского изготовления
Нет
Объем надземной части
630 м3
Основной материал фасадов
Штукатурка
Отопление
Не предусмотрено
Площадь дома
98 м2
Площадь застройки
120 м2
Подвальное помещение
Нет
Показатель компактности здания
-
Приборы учета тепловой энергии
Нет
Пристроенный гараж/крытая автостоянка
Нет
Противопожарная система
Нет
Санузлы
2
Совмещенная кухня-гостиная
Да
Спальни
2
Терраса
Нет
Тип фундамента
Свайно-ростверковый
Толщина внешних стен
380 мм
Толщина внутренних перегородок
100 мм
Улучшенные шумовые характеристики
Нет
Вентиляция
Естественная
Веранда
Да
Водоотведение
Не предусмотрено
Водоснабжение
Не предусмотрено
Высота дома
5.2 м
Высота потолков
2.8 м

Планировка

Фасад дома

Александр

Закажите выезд инженера

Александр

Выездной инженер
Закажите выезд инженера для точной диагностики и профессиональной консультации по инженерным системам. Специалист приедет в удобное время, проведёт осмотр, рассчитает стоимость работ и подберёт оптимальные решения для вашего дома.


    Похожие проекты

    Ипотека и
    рассрочка
    Проект дома 021-15
    Стоимость от:
    12 943 680
    Проект от: 81 900
    Этажей 2
    Санузлы 2
    Спальни 3
    Смотреть
    Ипотека и
    рассрочка
    ЭКОДОМ
    Стоимость от:
    4 814 480
    Проект от: 28 800
    Этажей 1
    Санузлы 1
    Спальни 2
    Смотреть
    Ипотека и
    рассрочка
    Европа 90
    Стоимость от:
    7 140 100
    Проект от: 42 750
    Этажей 1
    Санузлы 1
    Спальни 3
    Смотреть
    Ипотека и
    рассрочка
    АР 125 второй свет
    Стоимость от:
    8 190 380
    Проект от: 49 050
    Этажей 1
    Санузлы 2
    Спальни 3
    Смотреть
    Ипотека и
    рассрочка
    Next-72-1
    Стоимость от:
    5 577 440
    Проект от: 32 400
    Этажей 1
    Санузлы 1
    Спальни 2
    Смотреть
    Ипотека и
    рассрочка
    Одноэтажный дом из бруса СЕМЕЙНЫЙ
    Стоимость от:
    5 444 230
    Проект от: 38 700
    Этажей 1
    Санузлы 1
    Спальни 3
    Смотреть

    Как узнать стоимость дома

    back
    Оставляете заявку
    Вы заполняете форму на сайте или звоните нам. Менеджер Лайвкрафт связывается с вами для уточнения деталей: тип дома, площадь, материалы, участок строительства.
    back
    Консультация и подбор решения
    Наш специалист помогает выбрать оптимальный тип дома и конструкцию с учётом бюджета, сроков и целей — будь то дом для постоянного проживания или дача.
    back
    Расчёт предварительной стоимости
    Инженер делает первичный расчёт стоимости строительства по вашим параметрам: фундамент, коробка, кровля, отделка. Вы получаете смету с разбивкой по этапам.
    back
    Корректировка и утверждение сметы
    При необходимости вносим изменения — например, замену материалов или сокращение этапов. После согласования формируется окончательная фиксированная смета.
    back
    Заключение договора и старт работ
    После утверждения сметы заключаем официальный договор с гарантией. Вы получаете прозрачный график и точную стоимость — без скрытых расходов.

    Заказать конусльтацию по:Проект 10

    Фото 1 Проект 10


      Наши
      контакты

      Дмитров
      Опорный проезд 28Б
      (индустриальный парк Ниагара)
      9:00 до 18:00

      Корзина