4.9
Рейтинг на основании 120 отзывов
Дмитров
Опорный проезд 28Б
(индустриальный парк Ниагара)
Бренд "Дмитров-Дело" c 2008 года на рынке строительства в Дмитрове
Звоните 9:00 до 18:00 8 (915) 055-33-61
Бренд "Дмитров-Дело" c 2008 года на рынке строительства в Дмитрове

Проект 100 со вторым светом

Стоимость проекта от:
45 000 ₽
БЕСПЛАТНО! ПРИ ЗАКАЗЕ СТРОИТЕЛЬСТВА
Стоимость строительства от:
7 515 200 ₽
Артикул ART-15553
Дата 25.12.2025
Архитектурный стиль Классический
Количество надземных этажей 1
Круглогодичное проживание Да
Площадь дома 100 м2
Санузлы 2
Спальни 3

Описание

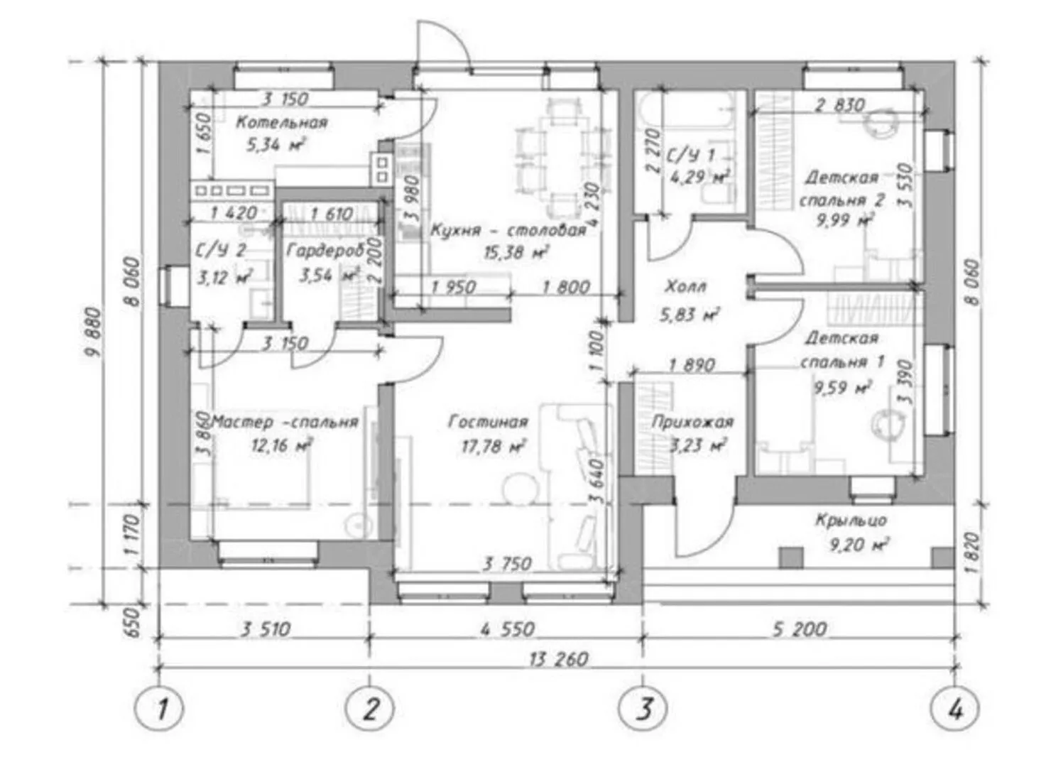
**Проект 100 – «Небо над Вами»** Этот уникальный одноэтажный дом сочетает в себе утонченность классической архитектуры и современные решения, созданные для круглогодичного комфорта. Величественные кирпичные стены и комбинированный тип кровли придают зданию благородный силуэт, а широкая терраса приглашает к прогулкам под открытым небом, открывая впечатляющие виды на окрестности. Чистота линий и внимание к деталям делают каждый уголок этого дома настоящим произведением искусства. Экстерьер проекта «100 со вторым светом» поражает умудренностью пространства: внутреннее пространство продуманно распределено по одной элегантной площадке, а чердачное помещение готово превратиться в уютную мастерскую, детскую или книжный уголок. Отсутствие балконов и веранд не мешает создать гармоничный интерьер, где большие окна пропускают наполняющий свет, усиливая ощущение тесности с природой. Внутренние помещения открыты, наполнены светом и воздухом, что делает дом идеальным выбором для всех, кто ценит тепло и уют в любое время года. Пусть ваш дом станет убежищем, где каждый сантиметр продуман и наполнен заботой о комфорте. Проект 100 – это возможность обустройству жизни в стиле, который объединяет традиции и современность, даря вам простор, свет и гармонию в каждом мгновении. Откройте дверь к своему идеальному пространству уже сегодня.

Характеристики дома

Архитектурный стиль
Автоматизированное регулирование параметров теплоносителя
Да
Балконы/лоджии
Отсутствуют
Чердачное помещение
Да
Датчики протечки воды
Нет
Эксплуатируемая или зеленая кровля
Нет
Электроснабжение
Центральное
Газоснабжение
Центральное
Изоляция воздушного шума
Да
Камин
Нет
Класс энергоэффективности
A++
Класс энергосбережения
A++
Количество надземных этажей
1
Круглогодичное проживание
Да
Материал кровли
Металлочерепица
Материал перекрытий
Деревянные
Материал внешних стен
Материал внутренних перегородок
Кирпичные
Модульное строительство с конструкциями заводского изготовления
Нет
Объем надземной части
350 м3
Основной материал фасадов
Облицовочный кирпич
Отопление
Индивидуальное
Площадь дома
100 м2
Площадь застройки
129 м2
Подвальное помещение
Нет
Показатель компактности здания
3
Приборы учета тепловой энергии
Да
Пристроенный гараж/крытая автостоянка
Нет
Противопожарная система
Нет
Санузлы
2
Совмещенная кухня-гостиная
Да
Спальни
3
Терраса
Да
Тип фундамента
Свайно-ростверковый
Тип кровли
Толщина внешних стен
500 мм
Толщина внутренних перегородок
250 мм
Улучшенные шумовые характеристики
Да
Вентиляция
Естественная
Веранда
Нет
Водоотведение
Локальные очистные сооружения
Водоснабжение
Индивидуальное
Высота дома
5.8 м
Высота потолков
3.1 м

Планировка

Фасад дома

Александр

Закажите выезд инженера

Александр

Выездной инженер
Закажите выезд инженера для точной диагностики и профессиональной консультации по инженерным системам. Специалист приедет в удобное время, проведёт осмотр, рассчитает стоимость работ и подберёт оптимальные решения для вашего дома.


    Похожие проекты

    Ипотека и
    рассрочка
    Двухэтажный дом ЦН-134
    Стоимость от:
    8 663 100
    Проект от: 60 300
    Этажей 2
    Санузлы 2
    Спальни 5
    Смотреть
    Ипотека и
    рассрочка
    Трехэтажный дом с эксплуатируемой плоской кровлей УП
    Стоимость от:
    10 463 700
    Проект от: 65 250
    Этажей 3
    Санузлы 3
    Спальни 5
    Смотреть
    Ипотека и
    рассрочка
    Одноэтажный дом ИП24-123
    Стоимость от:
    8 970 060
    Проект от: 55 350
    Этажей 1
    Санузлы 2
    Спальни 3
    Смотреть
    Ипотека и
    рассрочка
    IDEA 84
    Стоимость от:
    4 823 720
    Проект от: 34 200
    Этажей 1
    Санузлы 1
    Спальни 2
    Смотреть
    Ипотека и
    рассрочка
    Сканди Валдай 130 2122Д
    Стоимость от:
    7 883 920
    Проект от: 61 200
    Этажей 1
    Санузлы 2
    Спальни 2
    Смотреть
    Ипотека и
    рассрочка
    Одноэтажный дом БАРН-167
    Стоимость от:
    2 835 855
    Проект от: 22 950
    Этажей 1
    Санузлы 1
    Спальни 1
    Смотреть

    Как узнать стоимость дома

    back
    Оставляете заявку
    Вы заполняете форму на сайте или звоните нам. Менеджер Лайвкрафт связывается с вами для уточнения деталей: тип дома, площадь, материалы, участок строительства.
    back
    Консультация и подбор решения
    Наш специалист помогает выбрать оптимальный тип дома и конструкцию с учётом бюджета, сроков и целей — будь то дом для постоянного проживания или дача.
    back
    Расчёт предварительной стоимости
    Инженер делает первичный расчёт стоимости строительства по вашим параметрам: фундамент, коробка, кровля, отделка. Вы получаете смету с разбивкой по этапам.
    back
    Корректировка и утверждение сметы
    При необходимости вносим изменения — например, замену материалов или сокращение этапов. После согласования формируется окончательная фиксированная смета.
    back
    Заключение договора и старт работ
    После утверждения сметы заключаем официальный договор с гарантией. Вы получаете прозрачный график и точную стоимость — без скрытых расходов.

    Заказать конусльтацию по:Проект 100 со вторым светом

    Фото 1 Проект 100 со вторым светом


      Наши
      контакты

      Дмитров
      Опорный проезд 28Б
      (индустриальный парк Ниагара)
      9:00 до 18:00

      Корзина