4.9
Рейтинг на основании 120 отзывов
Дмитров
Опорный проезд 28Б
(индустриальный парк Ниагара)
Бренд "Дмитров-Дело" c 2008 года на рынке строительства в Дмитрове
Звоните 9:00 до 18:00 8 (915) 055-33-61
Бренд "Дмитров-Дело" c 2008 года на рынке строительства в Дмитрове

Проект №352

Стоимость проекта от:
40 500 ₽
Стоимость строительства от:
6 355 800 ₽
Артикул ART-6364
Дата 26.12.2025
Архитектурный стиль Европейский
Количество надземных этажей 1
Круглогодичное проживание Да
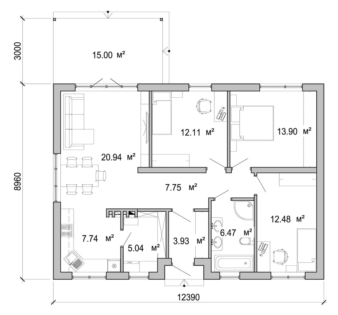
Площадь дома 90 м2
Санузлы 1
Спальни 3

Описание

Вас ждет уютный уголок европейской элегантности – дом проекта №352, рассчитанный на один надземный этаж, но поражающий просторной и светлой жилой зоной. Стиль «Европейский» подчёркнут строгими линиями, изящными деталями и вниманием к качеству материалов: наружные стены выполнены из газобетонных блоков, что обеспечивает теплоизоляцию и долговечность, а двускатная крыша добавляет классического очарования. Такой дом идеально подходит для круглогодичного проживания, создавая комфортное, приятное ощущение, как будто вы живёте в небольшом приюте, но при этом рядом со всеми преимуществами городского быта. Внутри пространство обрамлено мягким светом, а наличие террасы превращает вашу резиденцию в настоящий оазис спокойствия: утренний кофе под открытым небом, летний вечер в саду, семейные пикники – всё это лишь на расстоянии шагов от гостиной. Просторные комнаты и продуманная планировка позволяют настроить всё по своему вкусу, а отсутствие балконов и воображаемой воображаемой даёт вам больше места для творчества и хранения вещей. Этот дом – идеальное решение для тех, кто ценит эстетику, простоту и надёжную конструкцию, а не лишние дополнения вроде гаража или веранд. Если вы ищете место, где современность сочетается с традиционным европейским шармом и где можно начать новый, спокойный этап жизни, проект №352 ждёт вас. Позвольте себе открыть дверь в ваш новый дом – где каждая деталь проработана с любовью и уважением к вашему комфорту. Свяжитесь с нами, и мы вместе сделаем ваш выбор лёгким и вдохновляющим.

Характеристики дома

Архитектурный стиль
Европейский
Автоматизированное регулирование параметров теплоносителя
-
Балконы/лоджии
Отсутствуют
Чердачное помещение
Нет
Датчики протечки воды
-
Эксплуатируемая или зеленая кровля
-
Электроснабжение
Не предусмотрено
Газоснабжение
Не предусмотрено
Изоляция воздушного шума
-
Камин
Нет
Класс энергоэффективности
-
Класс энергосбережения
-
Количество надземных этажей
1
Круглогодичное проживание
Да
Материал кровли
Металлочерепица
Материал перекрытий
Деревянные
Материал внешних стен
Газобетонные блоки
Материал внутренних перегородок
Кирпичные
Модульное строительство с конструкциями заводского изготовления
Нет
Объем надземной части
400 м3
Основной материал фасадов
Штукатурка
Отопление
Не предусмотрено
Площадь дома
90 м2
Площадь застройки
111 м2
Подвальное помещение
Нет
Показатель компактности здания
-
Приборы учета тепловой энергии
-
Пристроенный гараж/крытая автостоянка
Нет
Противопожарная система
Нет
Санузлы
1
Совмещенная кухня-гостиная
Да
Спальни
3
Терраса
Да
Тип фундамента
Плитный
Тип кровли
Двускатная
Толщина внешних стен
430 мм
Толщина внутренних перегородок
120 мм
Улучшенные шумовые характеристики
-
Вентиляция
Естественная
Веранда
Нет
Водоотведение
Не предусмотрено
Водоснабжение
Не предусмотрено
Высота дома
3.5 м
Высота потолков
3 м

Планировка

Фасад дома

Александр

Закажите выезд инженера

Александр

Выездной инженер
Закажите выезд инженера для точной диагностики и профессиональной консультации по инженерным системам. Специалист приедет в удобное время, проведёт осмотр, рассчитает стоимость работ и подберёт оптимальные решения для вашего дома.


    Похожие проекты

    Ипотека и
    рассрочка
    Северный С1
    Стоимость от:
    8 333 160
    Проект от: 53 100
    Этажей 1
    Санузлы 2
    Спальни 3
    Смотреть
    Ипотека и
    рассрочка
    Двухэтажный дом из газобетона «БС-173»
    Стоимость от:
    6 020 640
    Проект от: 38 700
    Этажей 2
    Санузлы 2
    Спальни 3
    Смотреть
    Ипотека и
    рассрочка
    Дом в скандинавском стиле «Вива 172»
    Стоимость от:
    10 294 200
    Проект от: 77 400
    Этажей 2
    Санузлы 2
    Спальни 4
    Смотреть
    Ипотека и
    рассрочка
    Посёлок Европейский-2 дом Арни М
    Стоимость от:
    5 984 440
    Проект от: 36 900
    Этажей 1
    Санузлы 2
    Спальни 3
    Смотреть
    Ипотека и
    рассрочка
    ZS 77 Одноэтажный дом
    Стоимость от:
    7 065 080
    Проект от: 42 300
    Этажей 1
    Санузлы 1
    Спальни 3
    Смотреть
    Ипотека и
    рассрочка
    ХИТАЧИ
    Стоимость от:
    4 747 875
    Проект от: 33 750
    Этажей 1
    Санузлы 1
    Спальни 2
    Смотреть

    Как узнать стоимость дома

    back
    Оставляете заявку
    Вы заполняете форму на сайте или звоните нам. Менеджер Лайвкрафт связывается с вами для уточнения деталей: тип дома, площадь, материалы, участок строительства.
    back
    Консультация и подбор решения
    Наш специалист помогает выбрать оптимальный тип дома и конструкцию с учётом бюджета, сроков и целей — будь то дом для постоянного проживания или дача.
    back
    Расчёт предварительной стоимости
    Инженер делает первичный расчёт стоимости строительства по вашим параметрам: фундамент, коробка, кровля, отделка. Вы получаете смету с разбивкой по этапам.
    back
    Корректировка и утверждение сметы
    При необходимости вносим изменения — например, замену материалов или сокращение этапов. После согласования формируется окончательная фиксированная смета.
    back
    Заключение договора и старт работ
    После утверждения сметы заключаем официальный договор с гарантией. Вы получаете прозрачный график и точную стоимость — без скрытых расходов.

    Заказать конусльтацию по:Проект №352

    Фото 1 Проект №352


      Наши
      контакты

      Дмитров
      Опорный проезд 28Б
      (индустриальный парк Ниагара)
      9:00 до 18:00

      Корзина