4.9
Рейтинг на основании 120 отзывов
Дмитров
Опорный проезд 28Б
(индустриальный парк Ниагара)
Бренд "Дмитров-Дело" c 2008 года на рынке строительства в Дмитрове
Звоните 9:00 до 18:00 8 (915) 055-33-61
Бренд "Дмитров-Дело" c 2008 года на рынке строительства в Дмитрове

Проект 4

Стоимость проекта от:
58 050 ₽
БЕСПЛАТНО! ПРИ ЗАКАЗЕ СТРОИТЕЛЬСТВА
Стоимость строительства от:
9 016 560 ₽
Артикул ART-14538
Дата 25.12.2025
Архитектурный стиль Классический
Количество надземных этажей 2
Круглогодичное проживание Да
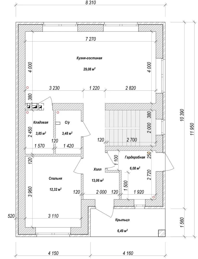
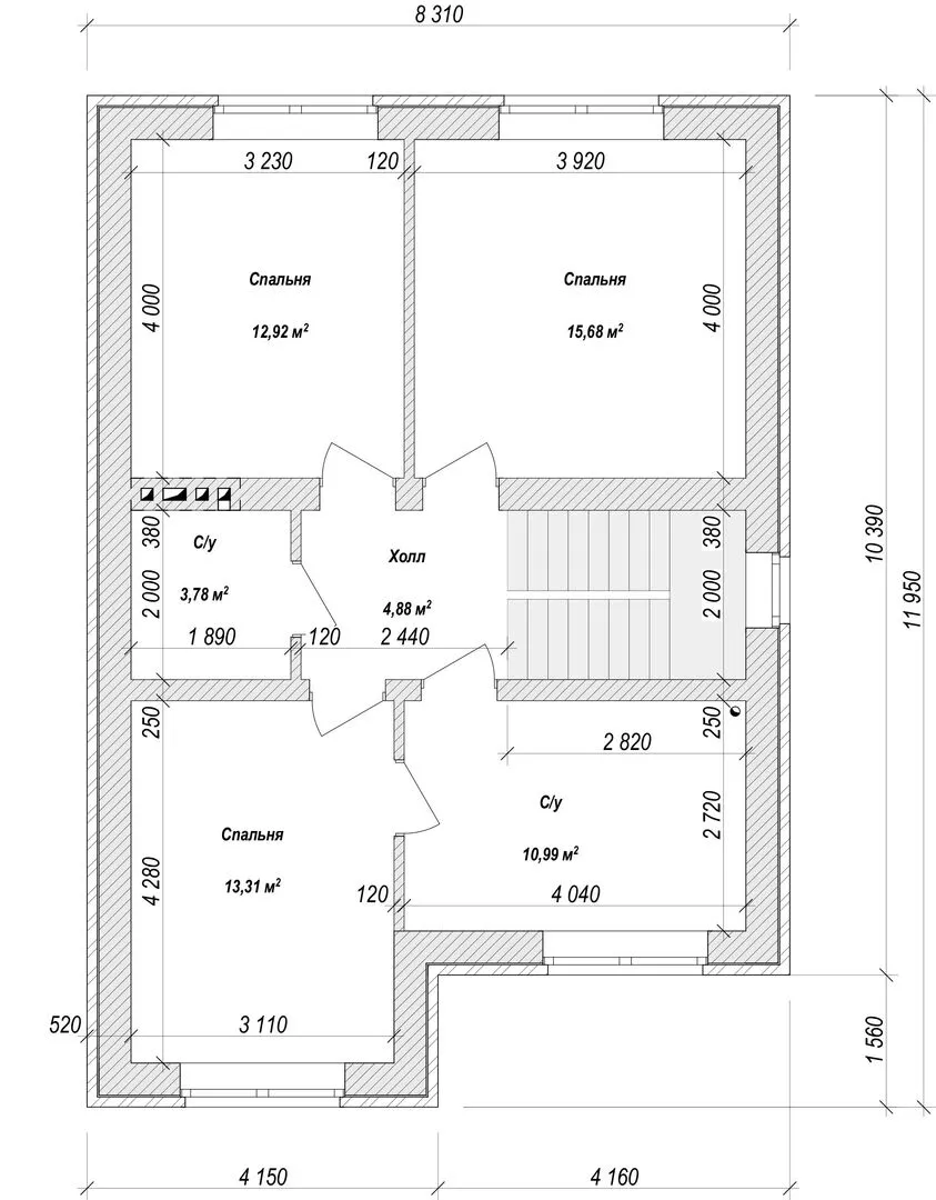
Площадь дома 129 м2
Санузлы 3
Спальни 4

Описание

Добро пожаловать в уютную и изящную квартиру, созданную для тех, кто ценит классику и заботится о своем комфорте круглый год. С просторным планированием на двух надземных этажах, эта небольшая жемчужина сочетает в себе строгую элегантность и практичность: здесь каждое помещение проработано до мелочей, а высокие потолки придают ощущение простора. Внешний облик дома выполнен из керамического блока, который не только придает фасаду стойкость и низкую износостойкость, но и обеспечивает отличную тепло- и звукоизоляцию. Классический архитектурный стиль подчёркнут аккуратными линией и гармоничными пропорциями. Четырехскатная (вальмовая) крыша защищает от атмосферных воздействий, сохраняя тепло внутри в холодную погоду и обеспечивая комфорт в летние дни. Проект без балконов и веранд, без крытых автостоянок, рассчитан на тех, кто ценит внутренний уют и лаконичные решения, оставляя место для ваших индивидуальных идей. Этот дом – идеальное решение для семьи, которая ищет спокойный и стильный уголок, где каждый день будет начинаться и завершаться в приятной атмосфере. Наслаждайтесь качественными материалами, продуманными инженерными системами и классическим шармом, который остаётся актуальным с каждым годом. Ваша новая квартира уже ждёт, чтобы стать вашим личным убежищем в мире комфорта и изящного дизайна.

Характеристики дома

Архитектурный стиль
Автоматизированное регулирование параметров теплоносителя
Нет
Балконы/лоджии
Отсутствуют
Чердачное помещение
Нет
Датчики протечки воды
Нет
Эксплуатируемая или зеленая кровля
Нет
Электроснабжение
Не предусмотрено
Газоснабжение
Не предусмотрено
Изоляция воздушного шума
Нет
Камин
Нет
Класс энергоэффективности
-
Класс энергосбережения
-
Количество надземных этажей
2
Круглогодичное проживание
Да
Материал кровли
Металлочерепица
Материал перекрытий
Монолитные железобетонные
Материал внешних стен
Материал внутренних перегородок
Блочные
Модульное строительство с конструкциями заводского изготовления
Нет
Объем надземной части
637 м3
Основной материал фасадов
Облицовочный кирпич
Отопление
Не предусмотрено
Площадь дома
129 м2
Площадь застройки
99 м2
Подвальное помещение
Нет
Показатель компактности здания
-
Приборы учета тепловой энергии
Нет
Пристроенный гараж/крытая автостоянка
Нет
Противопожарная система
Нет
Санузлы
3
Совмещенная кухня-гостиная
Да
Спальни
4
Терраса
Нет
Тип фундамента
Плитный
Толщина внешних стен
520 мм
Толщина внутренних перегородок
120 мм
Улучшенные шумовые характеристики
Нет
Вентиляция
Естественная
Веранда
Нет
Водоотведение
Не предусмотрено
Водоснабжение
Не предусмотрено
Высота дома
8.08 м
Высота потолков
3.05 м

Планировка

Фасад дома

Александр

Закажите выезд инженера

Александр

Выездной инженер
Закажите выезд инженера для точной диагностики и профессиональной консультации по инженерным системам. Специалист приедет в удобное время, проведёт осмотр, рассчитает стоимость работ и подберёт оптимальные решения для вашего дома.


    Похожие проекты

    Ипотека и
    рассрочка
    MX — 137
    Стоимость от:
    11 743 440
    Проект от: 76 950
    Этажей 2
    Санузлы 3
    Спальни 4
    Смотреть
    Ипотека и
    рассрочка
    «Печора (К-1-87)»
    Стоимость от:
    6 249 540
    Проект от: 45 900
    Этажей 1
    Санузлы 1
    Спальни 2
    Смотреть
    Ипотека и
    рассрочка
    Одноэтажный дом Сканди Вилье ВМ
    Стоимость от:
    8 811 440
    Проект от: 68 400
    Этажей 1
    Санузлы 1
    Спальни 4
    Смотреть
    Ипотека и
    рассрочка
    Авторский проект «Санфор 2.0»
    Стоимость от:
    6 779 520
    Проект от: 43 200
    Этажей 1
    Санузлы 1
    Спальни 3
    Смотреть
    Ипотека и
    рассрочка
    Загородный дом ДГ-15
    Стоимость от:
    6 978 840
    Проект от: 45 900
    Этажей 1
    Санузлы 1
    Спальни 2
    Смотреть
    Ипотека и
    рассрочка
    Стандарт
    Стоимость от:
    4 378 440
    Проект от: 27 900
    Этажей 1
    Санузлы 1
    Спальни 2
    Смотреть

    Как узнать стоимость дома

    back
    Оставляете заявку
    Вы заполняете форму на сайте или звоните нам. Менеджер Лайвкрафт связывается с вами для уточнения деталей: тип дома, площадь, материалы, участок строительства.
    back
    Консультация и подбор решения
    Наш специалист помогает выбрать оптимальный тип дома и конструкцию с учётом бюджета, сроков и целей — будь то дом для постоянного проживания или дача.
    back
    Расчёт предварительной стоимости
    Инженер делает первичный расчёт стоимости строительства по вашим параметрам: фундамент, коробка, кровля, отделка. Вы получаете смету с разбивкой по этапам.
    back
    Корректировка и утверждение сметы
    При необходимости вносим изменения — например, замену материалов или сокращение этапов. После согласования формируется окончательная фиксированная смета.
    back
    Заключение договора и старт работ
    После утверждения сметы заключаем официальный договор с гарантией. Вы получаете прозрачный график и точную стоимость — без скрытых расходов.

    Заказать конусльтацию по:Проект 4

    Фото 1 Проект 4


      Наши
      контакты

      Дмитров
      Опорный проезд 28Б
      (индустриальный парк Ниагара)
      9:00 до 18:00

      Корзина