4.9
Рейтинг на основании 120 отзывов
Дмитров
Опорный проезд 28Б
(индустриальный парк Ниагара)
Бренд "Дмитров-Дело" c 2008 года на рынке строительства в Дмитрове
Звоните 9:00 до 18:00 8 (915) 055-33-61
Бренд "Дмитров-Дело" c 2008 года на рынке строительства в Дмитрове

Проект 6

Стоимость проекта от:
45 000 ₽
Стоимость строительства от:
7 062 000 ₽
Артикул ART-14545
Дата 25.12.2025
Архитектурный стиль Классический
Количество надземных этажей 1
Круглогодичное проживание Да
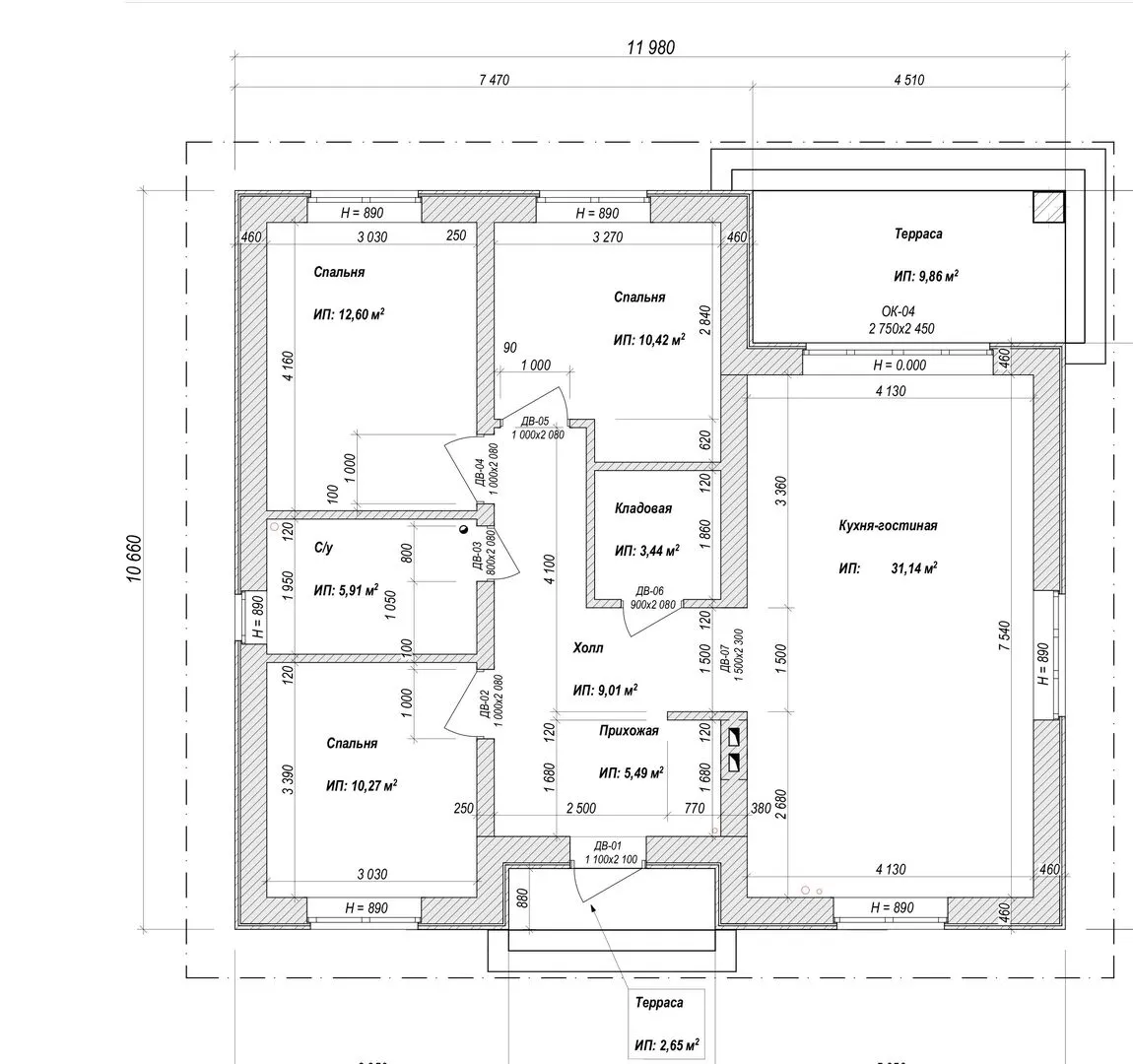
Площадь дома 100 м2
Санузлы 1
Спальни 3

Описание

**Обратите внимание на проект № 6 – ваш идеальный дом на одну улицу, где каждая деталь продумана до мелочей.** Этот классический корпус обладает теплом и уютом, которые делают его идеальным местом для круглогодичного проживания. Он выглядит словно из другого времени, сохраняя при этом современный комфорт. Величественная четырехскатная (вальмовая) крыша с ровной уклоном подчёркивает изысканность архитектурного решения, а облицовка керамическим блоком делает стены элегантно гладкими и одновременно стойкими к погодным воздействиям. **Особое внимание уделено внутреннему пространству, которое создано для того, чтобы каждый день напоминал праздник.** Без лишнего шума от подъездной автостоянки и балконов этот дом превращается в настоящий оазис тишины. Наличие просторной террасы открывает двери к восходящему солнцу и звёздному небоскрёбу, создавая идеальные условия для вечеров на свежем воздухе или уютных семейных ужинов. Внутри вы найдёте гармонично отданные к классическому стилю комнаты, где простота дизайна сочетается с функциональностью, позволяющей чувствовать себя дома даже в холод самых ветреных дней. **Пусть ваш новый дом станет воплощением комфорта, тепла и утончённости.** Проект 6 сочетает в себе изысканную эстетику с практичностью: отсутствие привязки к автомобильным нуждам, простота обслуживания и устойчивость к климатическим нагрузкам делают его идеальным акционным выбором как для семей с детьми, так и для тех, кто ценит спокойствие и душевный покой. Выбирая этот дом, вы не просто покупаете недвижимость – вы открываете дверь к новому образу жизни, где каждая деталь создана с любовью к вам.

Характеристики дома

Архитектурный стиль
Классический
Автоматизированное регулирование параметров теплоносителя
Нет
Балконы/лоджии
Отсутствуют
Чердачное помещение
Нет
Датчики протечки воды
Нет
Эксплуатируемая или зеленая кровля
Нет
Электроснабжение
Не предусмотрено
Газоснабжение
Не предусмотрено
Изоляция воздушного шума
Нет
Камин
Нет
Класс энергоэффективности
-
Класс энергосбережения
-
Количество надземных этажей
1
Круглогодичное проживание
Да
Материал кровли
Металлочерепица
Материал перекрытий
Деревянные
Материал внешних стен
Керамический блок
Материал внутренних перегородок
Блочные
Модульное строительство с конструкциями заводского изготовления
Нет
Объем надземной части
646 м3
Основной материал фасадов
Облицовочный кирпич
Отопление
Не предусмотрено
Площадь дома
100 м2
Площадь застройки
127 м2
Подвальное помещение
Нет
Показатель компактности здания
-
Приборы учета тепловой энергии
Нет
Пристроенный гараж/крытая автостоянка
Нет
Противопожарная система
Нет
Санузлы
1
Совмещенная кухня-гостиная
Да
Спальни
3
Терраса
Да
Тип фундамента
Плитный
Тип кровли
Четырехскатная (вальмовая)
Толщина внешних стен
380 мм
Толщина внутренних перегородок
120 мм
Улучшенные шумовые характеристики
Нет
Вентиляция
Естественная
Веранда
Нет
Водоотведение
Не предусмотрено
Водоснабжение
Не предусмотрено
Высота дома
5.94 м
Высота потолков
2.85 м

Планировка

Фасад дома

Александр

Закажите выезд инженера

Александр

Выездной инженер
Закажите выезд инженера для точной диагностики и профессиональной консультации по инженерным системам. Специалист приедет в удобное время, проведёт осмотр, рассчитает стоимость работ и подберёт оптимальные решения для вашего дома.


    Похожие проекты

    Ипотека и
    рассрочка
    Двухэтажный дом СМ-18
    Стоимость от:
    7 719 120
    Проект от: 46 350
    Этажей 2
    Санузлы 2
    Спальни 4
    Смотреть
    Ипотека и
    рассрочка
    Индивидуальный жилой дом Т1-116(108)
    Стоимость от:
    8 640 500
    Проект от: 51 750
    Этажей 1
    Санузлы 2
    Спальни 3
    Смотреть
    Ипотека и
    рассрочка
    Жилой дом DC-65
    Стоимость от:
    4 862 220
    Проект от: 27 450
    Этажей 1
    Санузлы 1
    Спальни 2
    Смотреть
    Ипотека и
    рассрочка
    Одноэтажный барнхаус ИЖД 16,500*9,500-АР
    Стоимость от:
    7 167 820
    Проект от: 55 800
    Этажей 1
    Санузлы 1
    Спальни 3
    Смотреть
    Ипотека и
    рассрочка
    Каркасный дом Корнфилд 100
    Стоимость от:
    5 985 000
    Проект от: 45 000
    Этажей 2
    Санузлы 2
    Спальни 4
    Смотреть
    Ипотека и
    рассрочка
    S.Dom-103-2M
    Стоимость от:
    8 286 720
    Проект от: 57 600
    Этажей 2
    Санузлы 2
    Спальни 4
    Смотреть

    Как узнать стоимость дома

    back
    Оставляете заявку
    Вы заполняете форму на сайте или звоните нам. Менеджер Лайвкрафт связывается с вами для уточнения деталей: тип дома, площадь, материалы, участок строительства.
    back
    Консультация и подбор решения
    Наш специалист помогает выбрать оптимальный тип дома и конструкцию с учётом бюджета, сроков и целей — будь то дом для постоянного проживания или дача.
    back
    Расчёт предварительной стоимости
    Инженер делает первичный расчёт стоимости строительства по вашим параметрам: фундамент, коробка, кровля, отделка. Вы получаете смету с разбивкой по этапам.
    back
    Корректировка и утверждение сметы
    При необходимости вносим изменения — например, замену материалов или сокращение этапов. После согласования формируется окончательная фиксированная смета.
    back
    Заключение договора и старт работ
    После утверждения сметы заключаем официальный договор с гарантией. Вы получаете прозрачный график и точную стоимость — без скрытых расходов.

    Заказать конусльтацию по:Проект 6

    Фото 1 Проект 6


      Наши
      контакты

      Дмитров
      Опорный проезд 28Б
      (индустриальный парк Ниагара)
      9:00 до 18:00