4.9
Рейтинг на основании 120 отзывов
Дмитров
Опорный проезд 28Б
(индустриальный парк Ниагара)
Бренд "Дмитров-Дело" c 2008 года на рынке строительства в Дмитрове
Звоните 9:00 до 18:00 8 (915) 055-33-61
Бренд "Дмитров-Дело" c 2008 года на рынке строительства в Дмитрове

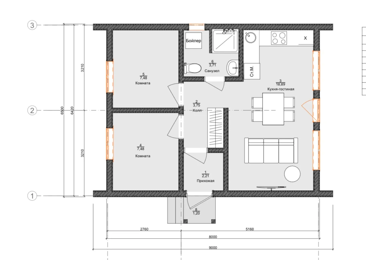
Одноэтажный каркасный дом 6,5*8 «БС-21Е»

Стоимость проекта от:
19 800 ₽
БЕСПЛАТНО! ПРИ ЗАКАЗЕ СТРОИТЕЛЬСТВА
Стоимость строительства от:
2 591 820 ₽
Артикул ART-19257
Дата 26.12.2025
Архитектурный стиль Шале
Количество надземных этажей 1
Круглогодичное проживание Да
Площадь дома 44 м2
Санузлы 1
Спальни 2

Описание

**БС‑21Е** – компактный шале‑дом, где уют и функциональность встречаются в гармоничной симфонии простых форм и теплых деталей. Его каркасно‑панельный облик, выполненный в изысканном стиле шале, обещает тепло даже в самые холодные дни, благодаря энергоэффективным технологиям строительства. Легкая, но прочная конструкция способна обустроить комфортную жизнь в любой климатической зоне, предоставляя непрерывное проживание круглый год. Внутреннее пространство, планируемое на 6,5 × 8 м, оптимально подходит для небольших семей или пар, желающих создать домашний уголок без лишних суеты. Просторная гостиная с обилием естественного света, уютная кухня‑столовая и функциональная спальня – все это в едином потоке пространства, где каждая деталь продумана до мелочей. Отсутствие балконов и веранд позволяет сохранить чистую, лаконичную фасадную линию, а отсутствие прицепов и крытых стоянок – экономию места и простоту в обслуживании. Выбирая «БС‑21Е», вы инвестируете в надёжность, комфорт и эстетическую привлекательность, которые не только украсят вашу жизнь, но и обеспечат спокойствие на долгие годы. Это дом, который приглашает к созданию новых воспоминаний и открывает горизонты для свободного, гармоничного бытия.

Характеристики дома

Архитектурный стиль
Автоматизированное регулирование параметров теплоносителя
Да
Балконы/лоджии
Отсутствуют
Чердачное помещение
Нет
Датчики протечки воды
Нет
Эксплуатируемая или зеленая кровля
Нет
Электроснабжение
Индивидуальное
Газоснабжение
Не предусмотрено
Изоляция воздушного шума
Нет
Камин
Нет
Класс энергоэффективности
-
Класс энергосбережения
-
Количество надземных этажей
1
Круглогодичное проживание
Да
Материал кровли
Стальные листовые гофрированные профили
Материал перекрытий
Деревянные
Материал внешних стен
Материал внутренних перегородок
Деревянные
Модульное строительство с конструкциями заводского изготовления
Нет
Объем надземной части
239 м3
Основной материал фасадов
Сайдинг
Отопление
Индивидуальное
Площадь дома
44 м2
Площадь застройки
52 м2
Подвальное помещение
Нет
Показатель компактности здания
-
Приборы учета тепловой энергии
Да
Пристроенный гараж/крытая автостоянка
Нет
Противопожарная система
Нет
Санузлы
1
Совмещенная кухня-гостиная
Да
Спальни
2
Терраса
Нет
Тип фундамента
Свайно-винтовой
Тип кровли
Толщина внешних стен
200 мм
Толщина внутренних перегородок
100 мм
Улучшенные шумовые характеристики
Нет
Вентиляция
2 варианта
Веранда
Нет
Водоотведение
Локальные очистные сооружения
Водоснабжение
Индивидуальное
Высота дома
4.1 м
Высота потолков
2.5 м

Планировка

Фасад дома

Александр

Закажите выезд инженера

Александр

Выездной инженер
Закажите выезд инженера для точной диагностики и профессиональной консультации по инженерным системам. Специалист приедет в удобное время, проведёт осмотр, рассчитает стоимость работ и подберёт оптимальные решения для вашего дома.


    Похожие проекты

    Ипотека и
    рассрочка
    Проект загородного дома NHD-139
    Стоимость от:
    9 165 640
    Проект от: 54 900
    Этажей 1
    Санузлы 1
    Спальни 3
    Смотреть
    Ипотека и
    рассрочка
    БД 1454
    Стоимость от:
    4 802 160
    Проект от: 30 600
    Этажей 1
    Санузлы 1
    Спальни 2
    Смотреть
    Ипотека и
    рассрочка
    Одноэтажный дом с мансардой FIXPLANS — 2285
    Стоимость от:
    10 850 400
    Проект от: 67 500
    Этажей 2
    Санузлы 2
    Спальни 3
    Смотреть
    Ипотека и
    рассрочка
    Меридиан-3
    Стоимость от:
    8 824 420
    Проект от: 54 450
    Этажей 1
    Санузлы 2
    Спальни 3
    Смотреть
    Ипотека и
    рассрочка
    Двухэтажный загородный дом «ЗС 234-24»
    Стоимость от:
    12 508 560
    Проект от: 80 550
    Этажей 2
    Санузлы 2
    Спальни 4
    Смотреть
    Ипотека и
    рассрочка
    D163-2
    Стоимость от:
    5 030 880
    Проект от: 34 650
    Этажей 2
    Санузлы 2
    Спальни 2
    Смотреть

    Как узнать стоимость дома

    back
    Оставляете заявку
    Вы заполняете форму на сайте или звоните нам. Менеджер Лайвкрафт связывается с вами для уточнения деталей: тип дома, площадь, материалы, участок строительства.
    back
    Консультация и подбор решения
    Наш специалист помогает выбрать оптимальный тип дома и конструкцию с учётом бюджета, сроков и целей — будь то дом для постоянного проживания или дача.
    back
    Расчёт предварительной стоимости
    Инженер делает первичный расчёт стоимости строительства по вашим параметрам: фундамент, коробка, кровля, отделка. Вы получаете смету с разбивкой по этапам.
    back
    Корректировка и утверждение сметы
    При необходимости вносим изменения — например, замену материалов или сокращение этапов. После согласования формируется окончательная фиксированная смета.
    back
    Заключение договора и старт работ
    После утверждения сметы заключаем официальный договор с гарантией. Вы получаете прозрачный график и точную стоимость — без скрытых расходов.

    Заказать конусльтацию по:Одноэтажный каркасный дом 6,5*8 «БС-21Е»

    Фото 1 Одноэтажный каркасный дом 6,5*8 «БС-21Е»


      Наши
      контакты

      Дмитров
      Опорный проезд 28Б
      (индустриальный парк Ниагара)
      9:00 до 18:00

      Корзина