4.9
Рейтинг на основании 120 отзывов
Дмитров
Опорный проезд 28Б
(индустриальный парк Ниагара)
Бренд "Дмитров-Дело" c 2008 года на рынке строительства в Дмитрове
Звоните 9:00 до 18:00 8 (915) 055-33-61
Бренд "Дмитров-Дело" c 2008 года на рынке строительства в Дмитрове

Проект 85-Л

Стоимость проекта от:
37 800 ₽
БЕСПЛАТНО! ПРИ ЗАКАЗЕ СТРОИТЕЛЬСТВА
Стоимость строительства от:
6 130 080 ₽
Артикул ART-20205
Дата 26.12.2025
Архитектурный стиль Классический
Количество надземных этажей 1
Круглогодичное проживание Да
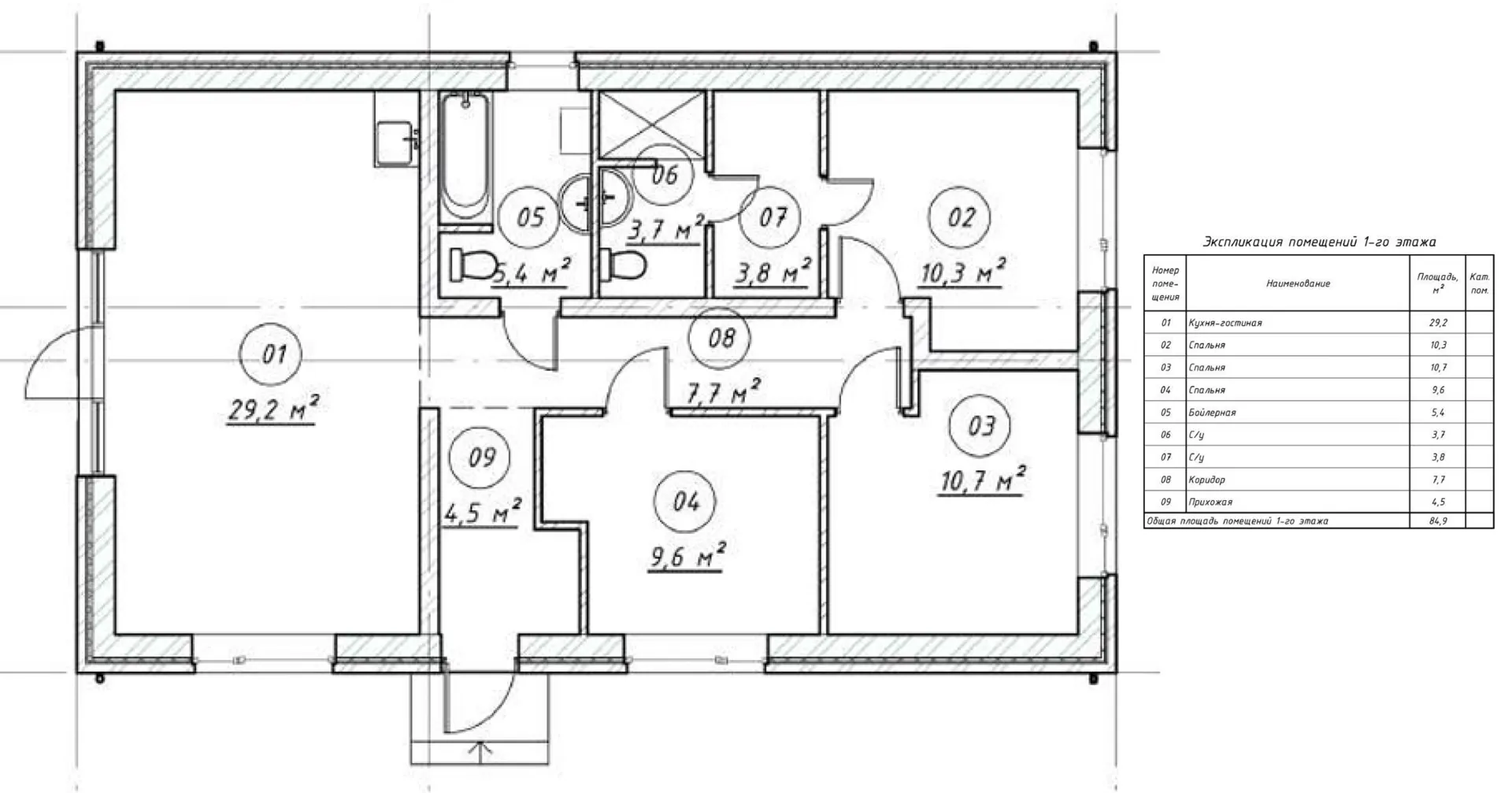
Площадь дома 84 м2
Санузлы 2
Спальни 3

Описание

**Портрет простоты и уюта — проект 85‑Л** Выбирая одиннадцать метров в дважды классическом исполнении, вы открываете дверь в сказку современного дома одного этажа. Никаких лестниц, лишних переходов и барьеров: простор, свет и тепло приходят сразу к вашему порогу. Круглогодичное проживание здесь возможно благодаря тщательному подбору материалов — газобетонные блоки внешних стен создают идеальную теплоизоляцию, а двускатная крыша обеспечивает эффективный отвод дождевой и снежной нагрузки. В интерьере чувствуется гармония простых форм и традиционной архитектуры: стены, крыша, пространство открытое, как безмятежный полумрак. Вместо балконов и веранд дом дарит уют в каждом квадратном метре, а чердачное помещение становится вашим личным оазисом для работы, творчества или хранения. Ощущение домашнего уюта усиливается живыми, мягкими линиями классического дизайна, которые сохраняют свой шарм даже в самых современных интерьерах. Не забудьте, что в проекте 85‑Л нет отдельного гаража: это означает больше живого пространства внутри, а также возможность легко парковаться в любой закрытой площадке района. Выбирая этот проект, вы выбираете легкость в движении, экономичность расходов и простую жизнь, где каждый элемент — от кровли до пола — рассказывает вам историю комфорта и надёжности.

Характеристики дома

Архитектурный стиль
Автоматизированное регулирование параметров теплоносителя
Нет
Балконы/лоджии
Отсутствуют
Чердачное помещение
Да
Датчики протечки воды
Нет
Эксплуатируемая или зеленая кровля
Нет
Электроснабжение
Центральное
Газоснабжение
Центральное
Изоляция воздушного шума
Нет
Камин
Нет
Класс энергоэффективности
-
Класс энергосбережения
-
Количество надземных этажей
1
Круглогодичное проживание
Да
Материал кровли
Битумная черепица
Материал перекрытий
Деревянные
Материал внешних стен
Материал внутренних перегородок
Пенобетонные
Модульное строительство с конструкциями заводского изготовления
Нет
Объем надземной части
347 м3
Основной материал фасадов
Облицовочный кирпич
Отопление
Индивидуальное
Площадь дома
84 м2
Площадь застройки
111 м2
Подвальное помещение
Нет
Показатель компактности здания
-
Приборы учета тепловой энергии
Нет
Пристроенный гараж/крытая автостоянка
Нет
Противопожарная система
Нет
Санузлы
2
Совмещенная кухня-гостиная
Да
Спальни
3
Терраса
Нет
Тип фундамента
Свайно-ростверковый
Тип кровли
Толщина внешних стен
500 мм
Толщина внутренних перегородок
100 мм
Улучшенные шумовые характеристики
Нет
Вентиляция
Естественная
Веранда
Нет
Водоотведение
Локальные очистные сооружения
Водоснабжение
Индивидуальное
Высота дома
5.42 м
Высота потолков
2.8 м

Планировка

Фасад дома

Александр

Закажите выезд инженера

Александр

Выездной инженер
Закажите выезд инженера для точной диагностики и профессиональной консультации по инженерным системам. Специалист приедет в удобное время, проведёт осмотр, рассчитает стоимость работ и подберёт оптимальные решения для вашего дома.


    Похожие проекты

    Ипотека и
    рассрочка
    Одноэтажный кирпичный дом COMFORT — 118 m2 (Белый облицовочный кирпич)
    Стоимость от:
    7 085 980
    Проект от: 40 050
    Этажей 1
    Санузлы 1
    Спальни 3
    Смотреть
    Ипотека и
    рассрочка
    Одноэтажный загородный дом с гаражом S3-155 (Z269)
    Стоимость от:
    12 645 360
    Проект от: 76 050
    Этажей 2
    Санузлы 3
    Спальни 5
    Смотреть
    Ипотека и
    рассрочка
    Проект ГБ-324-24
    Стоимость от:
    22 565 520
    Проект от: 145 350
    Этажей 2
    Санузлы 3
    Спальни 5
    Смотреть
    Ипотека и
    рассрочка
    Проект загородного дома NHD-119
    Стоимость от:
    10 741 060
    Проект от: 64 350
    Этажей 1
    Санузлы 3
    Спальни 4
    Смотреть
    Ипотека и
    рассрочка
    Загородный дом по проекту «Харвин».
    Стоимость от:
    11 491 200
    Проект от: 81 000
    Этажей 2
    Санузлы 2
    Спальни 3
    Смотреть
    Ипотека и
    рассрочка
    Двухэтажный ВН 116
    Стоимость от:
    8 255 040
    Проект от: 52 200
    Этажей 2
    Санузлы 2
    Спальни 4
    Смотреть

    Как узнать стоимость дома

    back
    Оставляете заявку
    Вы заполняете форму на сайте или звоните нам. Менеджер Лайвкрафт связывается с вами для уточнения деталей: тип дома, площадь, материалы, участок строительства.
    back
    Консультация и подбор решения
    Наш специалист помогает выбрать оптимальный тип дома и конструкцию с учётом бюджета, сроков и целей — будь то дом для постоянного проживания или дача.
    back
    Расчёт предварительной стоимости
    Инженер делает первичный расчёт стоимости строительства по вашим параметрам: фундамент, коробка, кровля, отделка. Вы получаете смету с разбивкой по этапам.
    back
    Корректировка и утверждение сметы
    При необходимости вносим изменения — например, замену материалов или сокращение этапов. После согласования формируется окончательная фиксированная смета.
    back
    Заключение договора и старт работ
    После утверждения сметы заключаем официальный договор с гарантией. Вы получаете прозрачный график и точную стоимость — без скрытых расходов.

    Заказать конусльтацию по:Проект 85-Л

    Фото 1 Проект 85-Л


      Наши
      контакты

      Дмитров
      Опорный проезд 28Б
      (индустриальный парк Ниагара)
      9:00 до 18:00

      Корзина