4.9
Рейтинг на основании 120 отзывов
Дмитров
Опорный проезд 28Б
(индустриальный парк Ниагара)
Бренд "Дмитров-Дело" c 2008 года на рынке строительства в Дмитрове
Звоните 9:00 до 18:00 8 (915) 055-33-61
Бренд "Дмитров-Дело" c 2008 года на рынке строительства в Дмитрове

Проект 85 м2 три спальни

Стоимость проекта от:
38 250 ₽
БЕСПЛАТНО! ПРИ ЗАКАЗЕ СТРОИТЕЛЬСТВА
Стоимость строительства от:
6 002 700 ₽
Артикул ART-11017
Дата 25.12.2025
Архитектурный стиль Классический
Количество надземных этажей 1
Круглогодичное проживание Да
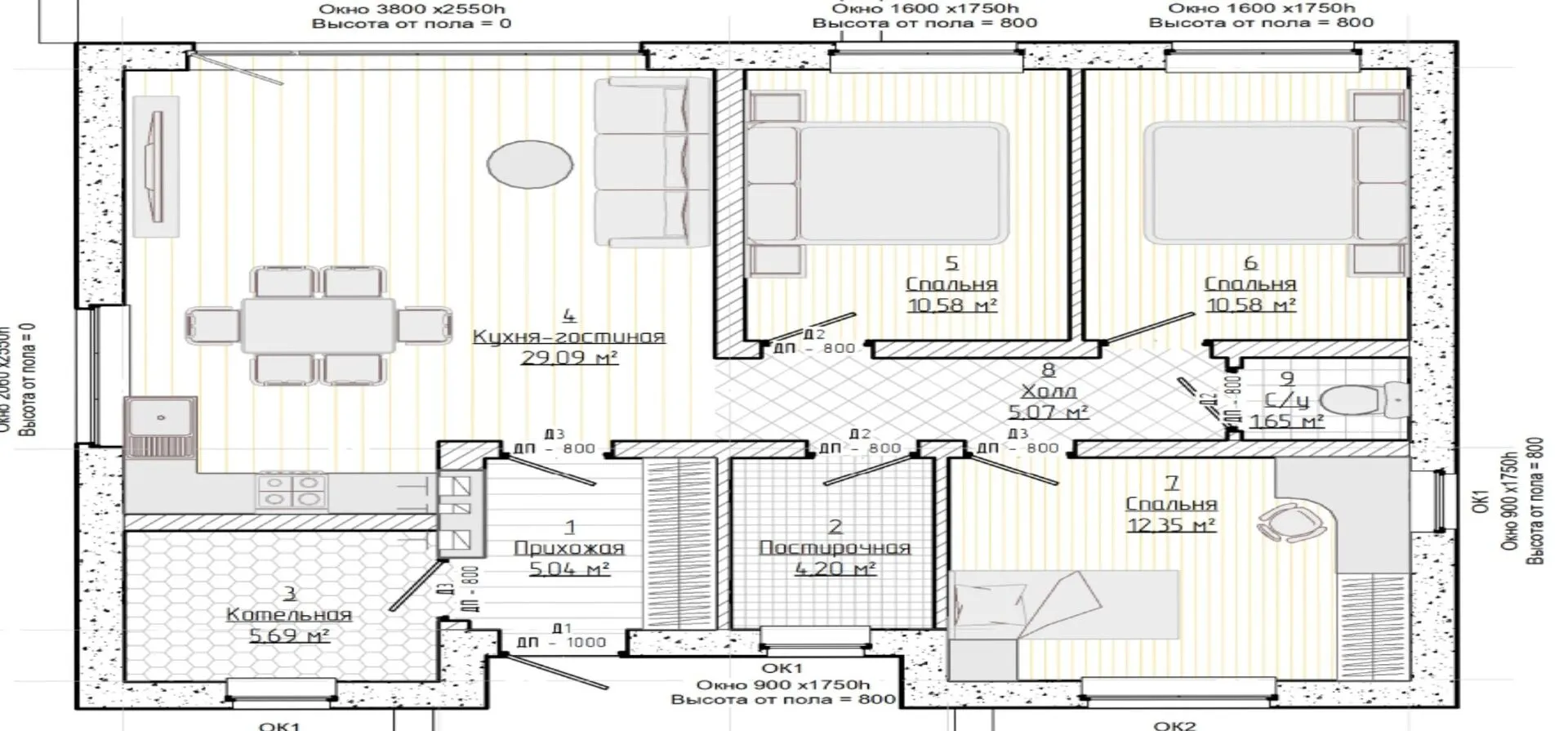
Площадь дома 85 м2
Санузлы 1
Спальни 3

Описание

Погрузитесь в атмосферу уюта и гармонии с нашим новостройством площадью 85 м²: классический фасад, гармонично сочетающий традиционные линии и современные детали, созданный для тех, кто ценит непременную безопасность и комфорт круглый год. Внутри вы найдёте просторную гостиную, где свет льётся через большие окновенные окна, и кухню‑столовую с продуманными рабочими поверхностями, где каждый момент готовки становится праздником. Три полноценные спальни, в том числе главная с выходом на тихую террасу, обещают полноценный отдых и уединение, а светлый коридор ведёт к уютному чердачному пространству, которое можно превратить в дополнительную мастерскую, игровую комнату или домашний офис. Классический архитектурный стиль подчёркивает эстетичность, но при этом экономически разумен: стены из газобетонных блоков обеспечивают отличную тепло- и звукоизоляцию, а двускатная крыша гарантирует надёжность и простоту обслуживания. Теплая атмосфера сохраняется в доме благодаря тщательно подобранному утеплению и качественной отделке – ваш дом будет радовать вас и вашу семью даже в самых холодных зимних сутках. На территории дома расположен просторный террасный антракт, где можно провести весёлую вечернюю встречу с друзьями или просто насладиться тихими моментами на свежем воздухе. Этот дом – идеальный выбор для семей, ценящих уют, безопасность и простоту. В нём каждый сантиметр продуман до мелочей, чтобы ваш быт был легким и гармоничным. Откройте для себя новый уровень комфорта: свяжитесь с нами уже сегодня, чтобы увидеть этот проект вживую и обсудить условия покупки. Ваш новый уютный уголок ждёт вас!

Характеристики дома

Архитектурный стиль
Автоматизированное регулирование параметров теплоносителя
Да
Балконы/лоджии
Отсутствуют
Чердачное помещение
Да
Датчики протечки воды
Да
Эксплуатируемая или зеленая кровля
Нет
Электроснабжение
Центральное
Газоснабжение
Центральное
Изоляция воздушного шума
Да
Камин
Нет
Класс энергоэффективности
B
Класс энергосбережения
A
Количество надземных этажей
1
Круглогодичное проживание
Да
Материал кровли
Металлочерепица
Материал перекрытий
Деревянные
Материал внешних стен
Материал внутренних перегородок
Кирпичные
Модульное строительство с конструкциями заводского изготовления
Нет
Объем надземной части
576 м3
Основной материал фасадов
Облицовочный кирпич
Отопление
Индивидуальное
Площадь дома
85 м2
Площадь застройки
130 м2
Подвальное помещение
Нет
Показатель компактности здания
1
Приборы учета тепловой энергии
Да
Пристроенный гараж/крытая автостоянка
Нет
Противопожарная система
Нет
Санузлы
1
Совмещенная кухня-гостиная
Да
Спальни
3
Терраса
Да
Тип фундамента
Плитный
Тип кровли
Толщина внешних стен
375 мм
Толщина внутренних перегородок
250 мм
Улучшенные шумовые характеристики
Да
Вентиляция
Естественная
Веранда
Нет
Водоотведение
Локальные очистные сооружения
Водоснабжение
Индивидуальное
Высота дома
5.7 м
Высота потолков
2.8 м

Планировка

Фасад дома

Александр

Закажите выезд инженера

Александр

Выездной инженер
Закажите выезд инженера для точной диагностики и профессиональной консультации по инженерным системам. Специалист приедет в удобное время, проведёт осмотр, рассчитает стоимость работ и подберёт оптимальные решения для вашего дома.


    Похожие проекты

    Ипотека и
    рассрочка
    Загородный жилой дом №4
    Стоимость от:
    8 940 580
    Проект от: 53 550
    Этажей 1
    Санузлы 3
    Спальни 2
    Смотреть
    Ипотека и
    рассрочка
    Ропша9 с террасой
    Стоимость от:
    9 518 880
    Проект от: 66 150
    Этажей 2
    Санузлы 2
    Спальни 4
    Смотреть
    Ипотека и
    рассрочка
    Современный одноэтажный дом KV-02
    Стоимость от:
    6 073 320
    Проект от: 38 700
    Этажей 1
    Санузлы 1
    Спальни 3
    Смотреть
    Ипотека и
    рассрочка
    Быстровозводимый дом «EFFECT LIGHT 236»
    Стоимость от:
    15 278 640
    Проект от: 106 200
    Этажей 2
    Санузлы 5
    Спальни 4
    Смотреть
    Ипотека и
    рассрочка
    Авторский проект «Робсон 2.0»
    Стоимость от:
    7 200 720
    Проект от: 46 350
    Этажей 2
    Санузлы 2
    Спальни 2
    Смотреть
    Ипотека и
    рассрочка
    Дом из клееного бруса «Мюнхен»
    Стоимость от:
    11 209 800
    Проект от: 76 500
    Этажей 2
    Санузлы 3
    Спальни 5
    Смотреть

    Как узнать стоимость дома

    back
    Оставляете заявку
    Вы заполняете форму на сайте или звоните нам. Менеджер Лайвкрафт связывается с вами для уточнения деталей: тип дома, площадь, материалы, участок строительства.
    back
    Консультация и подбор решения
    Наш специалист помогает выбрать оптимальный тип дома и конструкцию с учётом бюджета, сроков и целей — будь то дом для постоянного проживания или дача.
    back
    Расчёт предварительной стоимости
    Инженер делает первичный расчёт стоимости строительства по вашим параметрам: фундамент, коробка, кровля, отделка. Вы получаете смету с разбивкой по этапам.
    back
    Корректировка и утверждение сметы
    При необходимости вносим изменения — например, замену материалов или сокращение этапов. После согласования формируется окончательная фиксированная смета.
    back
    Заключение договора и старт работ
    После утверждения сметы заключаем официальный договор с гарантией. Вы получаете прозрачный график и точную стоимость — без скрытых расходов.

    Заказать конусльтацию по:Проект 85 м2 три спальни

    Фото 1 Проект 85 м2 три спальни


      Наши
      контакты

      Дмитров
      Опорный проезд 28Б
      (индустриальный парк Ниагара)
      9:00 до 18:00

      Корзина