4.9
Рейтинг на основании 120 отзывов
Дмитров
Опорный проезд 28Б
(индустриальный парк Ниагара)
Бренд "Дмитров-Дело" c 2008 года на рынке строительства в Дмитрове
Звоните 9:00 до 18:00 8 (915) 055-33-61
Бренд "Дмитров-Дело" c 2008 года на рынке строительства в Дмитрове

Вероника 2120

Стоимость проекта от:
35 550 ₽
БЕСПЛАТНО! ПРИ ЗАКАЗЕ СТРОИТЕЛЬСТВА
Стоимость строительства от:
5 578 980 ₽
Артикул ART-5937
Дата 26.12.2025
Архитектурный стиль Классический
Количество надземных этажей 1
Круглогодичное проживание Да
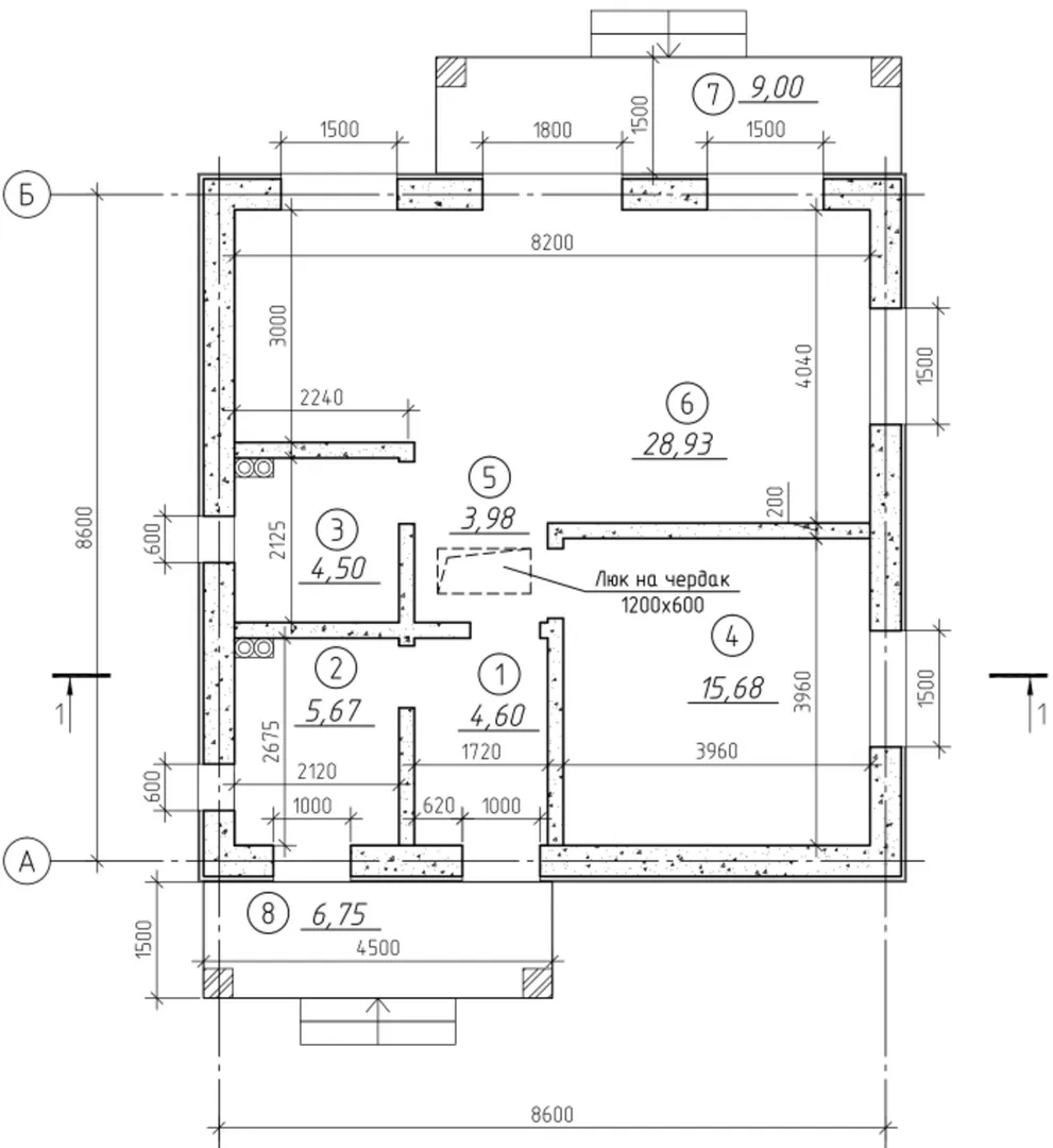
Площадь дома 79 м2
Санузлы 1
Спальни 1

Описание

**Дом «Вероника 2120» — воплощение спокойствия и уюта в классическом стиле** Этот очаровательный одноэтажный дом открывает собой просторы, где каждая деталь продумана для вашего комфорта. Стены, возведённые из прочных газобетонных блоков, гарантируют тепло и тихую атмосферу даже в самые холодные дни. Двускатная крыша, укрывающая внутреннее пространство, придаёт фасаду элегантность и аутентичность русской классики, в то время как наличие круглогодичного проживания делает его идеальным выбором для тех, кто ценит удобство без компромиссов. **Зарядка от солнца и свежести на собственной террасе** Уникальная возможность обжиться в этом доме — просторная терраса, покрытая надёжной материализацией, дарит живой уголок для летних барбекю, уютных вечеров с книгой и наблюдений за вечерним закатом. Благодаря отсутствию балконов и веранд вы полностью контролируете уровень солнечного света и приватность, а открытая обстановка повышает ощущение простора. Всё это сопровождается отсутствием присоединённого гаража, что позволяет вам наслаждаться чистотой и свободой без лишних конструкций. **Лёгкость и функциональность каждого помещения** Построенный в классическом стиле, «Вероника 2120» сочетает в себе красоту и практичность. Одноэтажная планировка облегчает движение по дому, а удобные размеры комнат создают ощущение открытости. Отсутствие чердачного помещения не лишает дома уютности – каждый квадратный метр продуман так, чтобы в нём чувствовались гармония и простота. Приходите, и вы убедитесь, как простота может стать истинным домом, где мечты о спокойном бытии становятся реальностью.

Характеристики дома

Архитектурный стиль
Автоматизированное регулирование параметров теплоносителя
-
Балконы/лоджии
Отсутствуют
Чердачное помещение
Нет
Датчики протечки воды
-
Эксплуатируемая или зеленая кровля
-
Электроснабжение
Не предусмотрено
Газоснабжение
Не предусмотрено
Изоляция воздушного шума
-
Камин
Нет
Класс энергоэффективности
-
Класс энергосбережения
-
Количество надземных этажей
1
Круглогодичное проживание
Да
Материал кровли
Металлочерепица
Материал перекрытий
Деревянные
Материал внешних стен
Материал внутренних перегородок
Блочные
Модульное строительство с конструкциями заводского изготовления
Нет
Объем надземной части
250 м3
Основной материал фасадов
Штукатурка
Отопление
Не предусмотрено
Площадь дома
79 м2
Площадь застройки
83 м2
Подвальное помещение
Нет
Показатель компактности здания
-
Приборы учета тепловой энергии
-
Пристроенный гараж/крытая автостоянка
Нет
Противопожарная система
Нет
Санузлы
1
Совмещенная кухня-гостиная
Да
Спальни
1
Терраса
Да
Тип фундамента
Плитный
Тип кровли
Толщина внешних стен
400 мм
Толщина внутренних перегородок
200 мм
Улучшенные шумовые характеристики
-
Вентиляция
Естественная
Веранда
Нет
Водоотведение
Не предусмотрено
Водоснабжение
Не предусмотрено
Высота дома
5.4 м
Высота потолков
3 м

Планировка

Фасад дома

Александр

Закажите выезд инженера

Александр

Выездной инженер
Закажите выезд инженера для точной диагностики и профессиональной консультации по инженерным системам. Специалист приедет в удобное время, проведёт осмотр, рассчитает стоимость работ и подберёт оптимальные решения для вашего дома.


    Похожие проекты

    Ипотека и
    рассрочка
    GP-барн-F
    Стоимость от:
    4 869 480
    Проект от: 37 800
    Этажей 1
    Санузлы 1
    Спальни 2
    Смотреть
    Ипотека и
    рассрочка
    Одноэтажный дом Л116
    Стоимость от:
    8 565 480
    Проект от: 51 300
    Этажей 1
    Санузлы 2
    Спальни 3
    Смотреть
    Ипотека и
    рассрочка
    Загородный дом АС-260
    Стоимость от:
    10 134 000
    Проект от: 65 250
    Этажей 2
    Санузлы 3
    Спальни 4
    Смотреть
    Ипотека и
    рассрочка
    Сидней
    Стоимость от:
    14 698 080
    Проект от: 102 150
    Этажей 2
    Санузлы 4
    Спальни 4
    Смотреть
    Ипотека и
    рассрочка
    Каркасный дом 50,1 кв.м
    Стоимость от:
    2 898 500
    Проект от: 22 500
    Этажей 1
    Санузлы 1
    Спальни 2
    Смотреть
    Ипотека и
    рассрочка
    Кульсеитово-166
    Стоимость от:
    14 666 400
    Проект от: 94 500
    Этажей 2
    Санузлы 3
    Спальни 6
    Смотреть

    Как узнать стоимость дома

    back
    Оставляете заявку
    Вы заполняете форму на сайте или звоните нам. Менеджер Лайвкрафт связывается с вами для уточнения деталей: тип дома, площадь, материалы, участок строительства.
    back
    Консультация и подбор решения
    Наш специалист помогает выбрать оптимальный тип дома и конструкцию с учётом бюджета, сроков и целей — будь то дом для постоянного проживания или дача.
    back
    Расчёт предварительной стоимости
    Инженер делает первичный расчёт стоимости строительства по вашим параметрам: фундамент, коробка, кровля, отделка. Вы получаете смету с разбивкой по этапам.
    back
    Корректировка и утверждение сметы
    При необходимости вносим изменения — например, замену материалов или сокращение этапов. После согласования формируется окончательная фиксированная смета.
    back
    Заключение договора и старт работ
    После утверждения сметы заключаем официальный договор с гарантией. Вы получаете прозрачный график и точную стоимость — без скрытых расходов.

    Заказать конусльтацию по:Вероника 2120

    Фото 1 Вероника 2120


      Наши
      контакты

      Дмитров
      Опорный проезд 28Б
      (индустриальный парк Ниагара)
      9:00 до 18:00

      Корзина