4.9
Рейтинг на основании 120 отзывов
Дмитров
Опорный проезд 28Б
(индустриальный парк Ниагара)
Бренд "Дмитров-Дело" c 2008 года на рынке строительства в Дмитрове
Звоните 9:00 до 18:00 8 (915) 055-33-61
Бренд "Дмитров-Дело" c 2008 года на рынке строительства в Дмитрове

Авторский проект «Грегит»

Стоимость проекта от:
44 550 ₽
БЕСПЛАТНО! ПРИ ЗАКАЗЕ СТРОИТЕЛЬСТВА
Стоимость строительства от:
6 921 360 ₽
Артикул ART-6410
Дата 26.12.2025
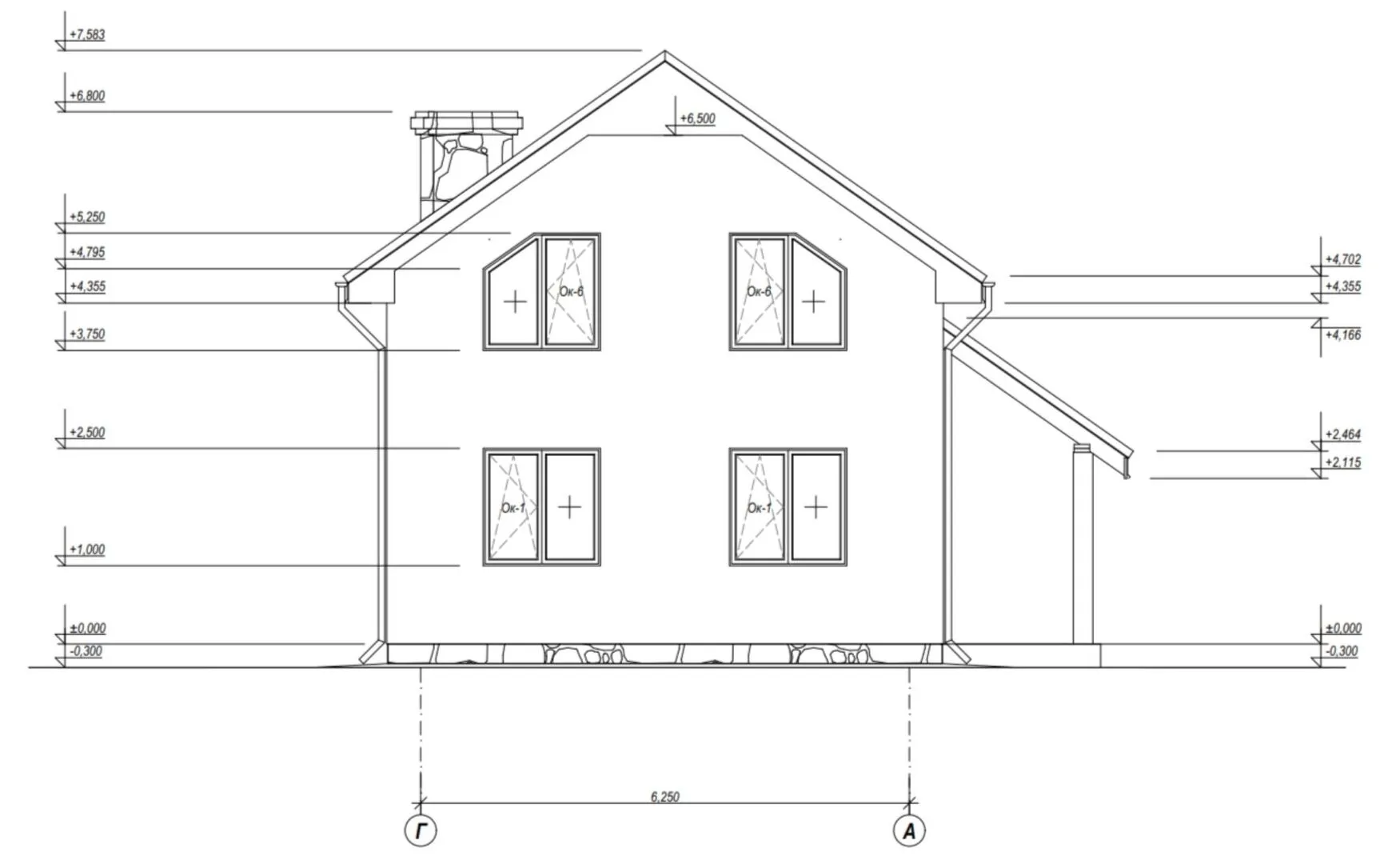
Архитектурный стиль Американский/Канадский
Количество надземных этажей 2
Круглогодичное проживание Да
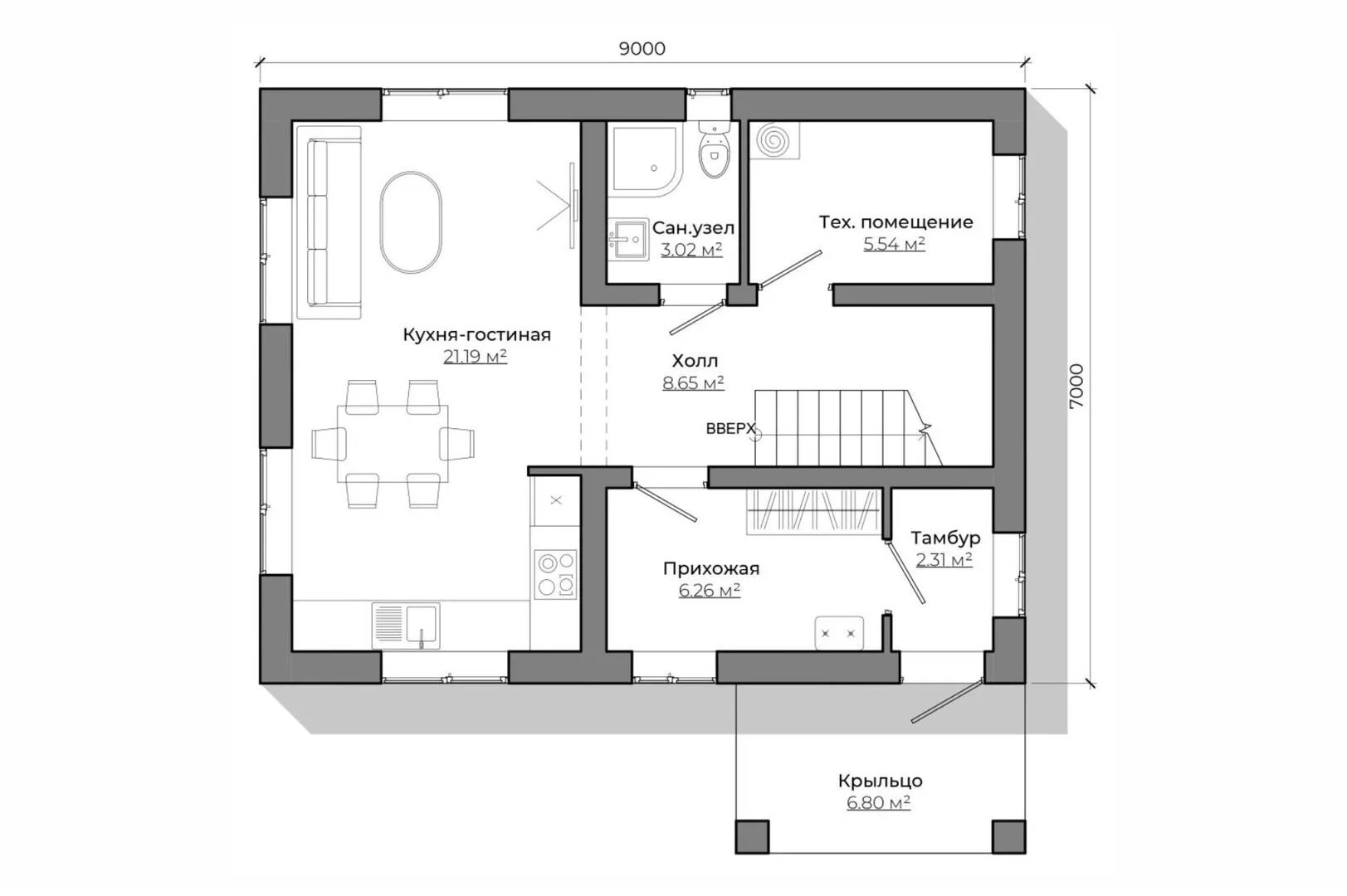
Площадь дома 99 м2
Санузлы 2
Спальни 3

Описание

Наша авторская разработка «Грегит» – это воплощение американско‑канадского вкуса в современном стиле. Дом построен в двухнадземных эволюциях, каждая из которых раскрывает простор и свет: открытая планировка гостиной, кухни и зоны отдыха, обрамлённая высокими потолками и большим количеством стеклянных проёмов, создаёт ощущение непрерывной связи с природой. Круглогоднее проживание гарантировано благодаря теплоизолирующим газобетонным блокам и надежной двускатной крыше, которые защищают от перепадов температур и придают строению характерную простоту и элегантность. В «Грегите» всё продумано до мельчайших деталей: отсутствие балконов, лоджий или веранды позволяет полностью концентрироваться на внутреннем пространстве – уютных спальнях, светлой кухне, функциональной гостиной и практичной прачечной. Крытая автостоянка и чердачное помещение не предусмотрены – архитектура направлена на максимальную экономию ресурсов и минимизацию внешних коммуникаций. Вместо этого вы найдёте продуманную систему хранения, современный санузел и душевую ванную, где каждая деталь подчёркивает качество и комфорт жизни. Господствующая атмосфера «Грегита» – это сочетание простоты и функциональности, где каждый элемент служит не только эстетике, но и практичности. Это идеальный дом для тех, кто ценит простор, тепло и качество, а также для тех, кто ищет тихий уголок в быстро меняющемся мире. Присоединяйтесь к нашему проекту и окунитесь в атмосферу уюта, где каждая комната приглашает отдых и вдохновение.

Характеристики дома

Архитектурный стиль
Автоматизированное регулирование параметров теплоносителя
Нет
Балконы/лоджии
Отсутствуют
Чердачное помещение
Нет
Датчики протечки воды
Нет
Эксплуатируемая или зеленая кровля
Нет
Электроснабжение
2 варианта
Газоснабжение
2 варианта
Изоляция воздушного шума
Нет
Камин
Нет
Класс энергоэффективности
-
Класс энергосбережения
-
Количество надземных этажей
2
Круглогодичное проживание
Да
Материал кровли
Металлочерепица
Материал перекрытий
Монолитные железобетонные
Материал внешних стен
Материал внутренних перегородок
Блочные
Модульное строительство с конструкциями заводского изготовления
Нет
Объем надземной части
750 м3
Основной материал фасадов
Штукатурка
Отопление
2 варианта
Площадь дома
99 м2
Площадь застройки
132 м2
Подвальное помещение
Нет
Показатель компактности здания
-
Приборы учета тепловой энергии
Нет
Пристроенный гараж/крытая автостоянка
Нет
Противопожарная система
Нет
Санузлы
2
Совмещенная кухня-гостиная
Да
Спальни
3
Терраса
Нет
Тип фундамента
Плитный
Тип кровли
Толщина внешних стен
375 мм
Толщина внутренних перегородок
100 мм
Улучшенные шумовые характеристики
Нет
Вентиляция
2 варианта
Веранда
Нет
Водоотведение
2 варианта
Водоснабжение
2 варианта
Высота дома
8 м
Высота потолков
2.7 м

Планировка

Фасад дома

Александр

Закажите выезд инженера

Александр

Выездной инженер
Закажите выезд инженера для точной диагностики и профессиональной консультации по инженерным системам. Специалист приедет в удобное время, проведёт осмотр, рассчитает стоимость работ и подберёт оптимальные решения для вашего дома.


    Похожие проекты

    Ипотека и
    рассрочка
    Монолитный двухэтажный дом LG
    Стоимость от:
    9 249 600
    Проект от: 58 500
    Этажей 2
    Санузлы 3
    Спальни 4
    Смотреть
    Ипотека и
    рассрочка
    Современный дом с панорамным остеклением s3-124-3 (Z390)
    Стоимость от:
    11 930 600
    Проект от: 67 500
    Этажей 1
    Санузлы 3
    Спальни 3
    Смотреть
    Ипотека и
    рассрочка
    Искра 80
    Стоимость от:
    5 861 460
    Проект от: 37 350
    Этажей 1
    Санузлы 2
    Спальни 2
    Смотреть
    Ипотека и
    рассрочка
    Одноэтажный дом Fixplans — 0809
    Стоимость от:
    9 463 080
    Проект от: 60 300
    Этажей 1
    Санузлы 2
    Спальни 3
    Смотреть
    Ипотека и
    рассрочка
    Проект одноэтажного дома Луч
    Стоимость от:
    12 316 480
    Проект от: 73 800
    Этажей 1
    Санузлы 2
    Спальни 3
    Смотреть
    Ипотека и
    рассрочка
    Индивидуальный жилой дом ЕП-2024-105
    Стоимость от:
    5 636 840
    Проект от: 41 400
    Этажей 1
    Санузлы 2
    Спальни 3
    Смотреть

    Как узнать стоимость дома

    back
    Оставляете заявку
    Вы заполняете форму на сайте или звоните нам. Менеджер Лайвкрафт связывается с вами для уточнения деталей: тип дома, площадь, материалы, участок строительства.
    back
    Консультация и подбор решения
    Наш специалист помогает выбрать оптимальный тип дома и конструкцию с учётом бюджета, сроков и целей — будь то дом для постоянного проживания или дача.
    back
    Расчёт предварительной стоимости
    Инженер делает первичный расчёт стоимости строительства по вашим параметрам: фундамент, коробка, кровля, отделка. Вы получаете смету с разбивкой по этапам.
    back
    Корректировка и утверждение сметы
    При необходимости вносим изменения — например, замену материалов или сокращение этапов. После согласования формируется окончательная фиксированная смета.
    back
    Заключение договора и старт работ
    После утверждения сметы заключаем официальный договор с гарантией. Вы получаете прозрачный график и точную стоимость — без скрытых расходов.

    Заказать конусльтацию по:Авторский проект «Грегит»

    Фото 1 Авторский проект «Грегит»


      Наши
      контакты

      Дмитров
      Опорный проезд 28Б
      (индустриальный парк Ниагара)
      9:00 до 18:00

      Корзина