4.9
Рейтинг на основании 120 отзывов
Дмитров
Опорный проезд 28Б
(индустриальный парк Ниагара)
Бренд "Дмитров-Дело" c 2008 года на рынке строительства в Дмитрове
Звоните 9:00 до 18:00 8 (915) 055-33-61
Бренд "Дмитров-Дело" c 2008 года на рынке строительства в Дмитрове

Проект Дом для ПМЖ Рубин 126

Стоимость проекта от:
52 200 ₽
БЕСПЛАТНО! ПРИ ЗАКАЗЕ СТРОИТЕЛЬСТВА
Стоимость строительства от:
6 953 040 ₽
Артикул ART-17864
Дата 26.12.2025
Архитектурный стиль Классический
Количество надземных этажей 2
Круглогодичное проживание Да
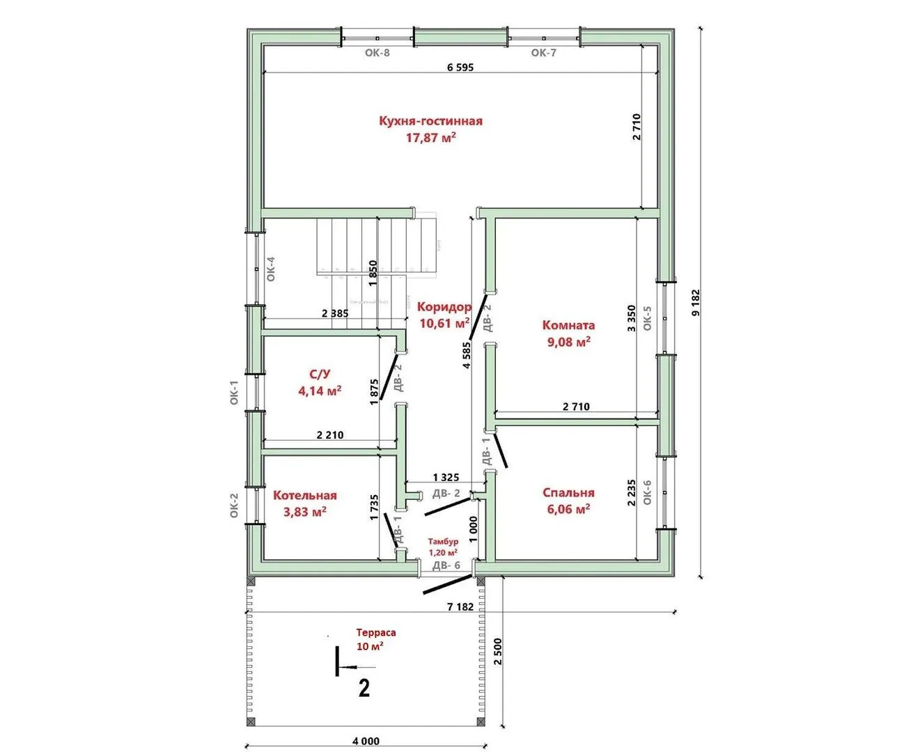
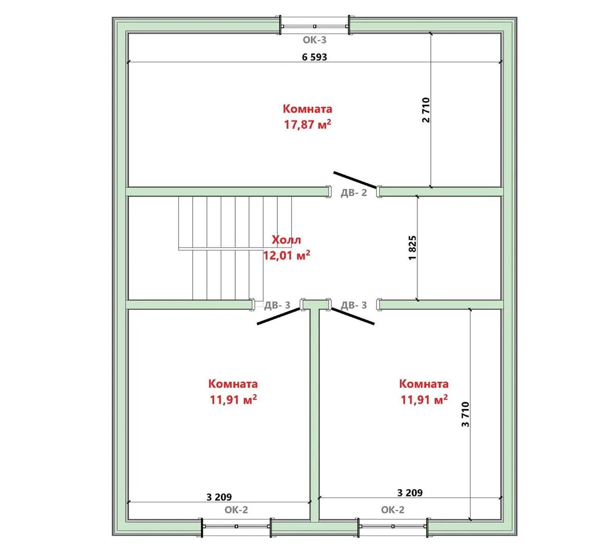
Площадь дома 116 м2
Санузлы 1
Спальни 5

Описание

**Дом на проекте «Рубин 126» — симфония традиций и уюта** Если вы мечтаете об уютном уголке, где каждая деталь пронизана теплом и вниманием к комфорту, то этот дом — ваш идеальный выбор. Двухэтажный дом в классическом стиле сочетает в себе строгую элегантность с мягкими, дружелюбными оттенками. Внутри — полноценная, функциональная планировка, рассчитанная на круглогодичную жизнь: просторные комнаты, светлые коридоры, уютные зоны отдыха — всё, чтобы каждый день был наполнен гармонией и уютом. Особенности, которые делают его неповторимым: — деревянный каркас, придающий стенам дыхание и тепло; — двускатная крыша, создающая благоприятные воздушные потоки и защищающая от ветров и дождей; — терраса, где можно наслаждаться прохладой летнего баланса и тепло осенних закатов. В доме нет лишних деталей, которые отвлекают внимание: здесь отсутствуют балконы, лоджии, веранда, прицепный гараж и чердачное помещение, что позволяет сосредоточиться на главном — комфорте и спокойствии. Этот дом — воплощение времени и качества. Он позволяет ощутить дух классической архитектуры, оставаясь в полном распоряжении современных удобств. Вы сможете почувствовать себя дома уже с первых шагов: уютная атмосфера, высококачественные материалы, и неповторимый стиль, который будет служить вам и вашим близким долгие годы. Приходите, откройте для себя, как выглядит счастье в каждой детали.

Характеристики дома

Архитектурный стиль
Автоматизированное регулирование параметров теплоносителя
Нет
Балконы/лоджии
Отсутствуют
Чердачное помещение
Нет
Датчики протечки воды
Нет
Эксплуатируемая или зеленая кровля
Нет
Электроснабжение
Центральное
Газоснабжение
Центральное
Изоляция воздушного шума
Нет
Камин
Нет
Класс энергоэффективности
-
Класс энергосбережения
-
Количество надземных этажей
2
Круглогодичное проживание
Да
Материал кровли
Металлочерепица
Материал перекрытий
Деревянные
Материал внешних стен
Материал внутренних перегородок
Гипсокартонные
Модульное строительство с конструкциями заводского изготовления
Нет
Объем надземной части
276 м3
Основной материал фасадов
Дерево
Отопление
Индивидуальное
Площадь дома
116 м2
Площадь застройки
84 м2
Подвальное помещение
Нет
Показатель компактности здания
-
Приборы учета тепловой энергии
Нет
Пристроенный гараж/крытая автостоянка
Нет
Противопожарная система
Нет
Санузлы
1
Совмещенная кухня-гостиная
Да
Спальни
5
Терраса
Да
Тип фундамента
Свайный
Тип кровли
Толщина внешних стен
200 мм
Толщина внутренних перегородок
100 мм
Улучшенные шумовые характеристики
Да
Вентиляция
Принудительная
Веранда
Нет
Водоотведение
Локальные очистные сооружения
Водоснабжение
Индивидуальное
Высота дома
7.8 м
Высота потолков
2.6 м

Планировка

Фасад дома

Александр

Закажите выезд инженера

Александр

Выездной инженер
Закажите выезд инженера для точной диагностики и профессиональной консультации по инженерным системам. Специалист приедет в удобное время, проведёт осмотр, рассчитает стоимость работ и подберёт оптимальные решения для вашего дома.


    Похожие проекты

    Ипотека и
    рассрочка
    Двухэтажный каркасный дом 7*9 «БС-174»
    Стоимость от:
    7 043 760
    Проект от: 49 950
    Этажей 2
    Санузлы 2
    Спальни 3
    Смотреть
    Ипотека и
    рассрочка
    Университетский 109
    Стоимость от:
    8 820 680
    Проект от: 51 300
    Этажей 1
    Санузлы 2
    Спальни 3
    Смотреть
    Ипотека и
    рассрочка
    Дом из бруса с террасой и мансардным этажом
    Стоимость от:
    10 341 660
    Проект от: 70 650
    Этажей 2
    Санузлы 1
    Спальни 3
    Смотреть
    Ипотека и
    рассрочка
    Проект КД-113
    Стоимость от:
    6 550 610
    Проект от: 50 850
    Этажей 1
    Санузлы 2
    Спальни 3
    Смотреть
    Ипотека и
    рассрочка
    Одноэтажный дом СМ-15
    Стоимость от:
    13 598 420
    Проект от: 76 950
    Этажей 1
    Санузлы 2
    Спальни 3
    Смотреть
    Ипотека и
    рассрочка
    Загородный дом с террасой -115
    Стоимость от:
    6 647 575
    Проект от: 51 750
    Этажей 1
    Санузлы 2
    Спальни 2
    Смотреть

    Как узнать стоимость дома

    back
    Оставляете заявку
    Вы заполняете форму на сайте или звоните нам. Менеджер Лайвкрафт связывается с вами для уточнения деталей: тип дома, площадь, материалы, участок строительства.
    back
    Консультация и подбор решения
    Наш специалист помогает выбрать оптимальный тип дома и конструкцию с учётом бюджета, сроков и целей — будь то дом для постоянного проживания или дача.
    back
    Расчёт предварительной стоимости
    Инженер делает первичный расчёт стоимости строительства по вашим параметрам: фундамент, коробка, кровля, отделка. Вы получаете смету с разбивкой по этапам.
    back
    Корректировка и утверждение сметы
    При необходимости вносим изменения — например, замену материалов или сокращение этапов. После согласования формируется окончательная фиксированная смета.
    back
    Заключение договора и старт работ
    После утверждения сметы заключаем официальный договор с гарантией. Вы получаете прозрачный график и точную стоимость — без скрытых расходов.

    Заказать конусльтацию по:Проект Дом для ПМЖ Рубин 126

    Фото 1 Проект Дом для ПМЖ Рубин 126


      Наши
      контакты

      Дмитров
      Опорный проезд 28Б
      (индустриальный парк Ниагара)
      9:00 до 18:00

      Корзина