4.9
Рейтинг на основании 120 отзывов
Дмитров
Опорный проезд 28Б
(индустриальный парк Ниагара)
Бренд "Дмитров-Дело" c 2008 года на рынке строительства в Дмитрове
Звоните 9:00 до 18:00 8 (915) 055-33-61
Бренд "Дмитров-Дело" c 2008 года на рынке строительства в Дмитрове

Проект дома КС-18

Стоимость проекта от:
76 050 ₽
БЕСПЛАТНО! ПРИ ЗАКАЗЕ СТРОИТЕЛЬСТВА
Стоимость строительства от:
12 645 360 ₽
Артикул ART-522
Дата 26.12.2025
Архитектурный стиль Классический
Количество надземных этажей 2
Круглогодичное проживание Да
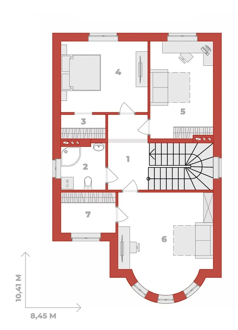
Площадь дома 169 м2
Санузлы 2
Спальни 4

Описание

Проект дома КС‑18 — это настоящее воплощение классической архитектурной элегантности, в котором каждая деталь продумана так, чтобы подарить комфорт и надежность круглый год. Два надземных этажа, уютно разделенные пространствами, дарят семейной жизни свободу и гармонию: открытые коридоры, светлые комнаты и площадки для семейных завтраков. Стиль, сочетающий строгость линий с плавными изгибами, создаёт впечатление времени, остановившегося в уюте вашего собственного уголка. Внешняя оболочка дома выполнена из газобетонных блоков, что гарантирует тепло- и звукоизоляцию, а также долговечность конструкции. Многощипковая крыша не только придаёт фасаду традиционный вид, но и обеспечивает надёжную защиту от природных непогод. Особое внимание уделено функциональности: прицепленный гараж и крытая автостоянка позволяют хранить автомобиль и транспорт под одной крышей, а светло-обогащённый чердак превращается в кладовую или уютный уголок для хобби. Терраса, открывающая панорамный вид на сад и окрестности, приглашает к вечерним посиделкам и романтическим прогулкам. Несмотря на отсутствие балконов и веранд, проект сохранил максимальное пространство внутри, позволяя вам наслаждаться каждым уголком вашего дома. КС‑18 — это не просто сооружение, а атмосфера уюта, где классика встречается с современным комфортом, создавая дом, в котором хочется жить и возвращаться.

Характеристики дома

Архитектурный стиль
Автоматизированное регулирование параметров теплоносителя
Нет
Балконы/лоджии
Отсутствуют
Чердачное помещение
Да
Датчики протечки воды
Нет
Эксплуатируемая или зеленая кровля
Нет
Электроснабжение
Центральное
Газоснабжение
Центральное
Изоляция воздушного шума
Да
Камин
Нет
Класс энергоэффективности
-
Класс энергосбережения
-
Количество надземных этажей
2
Круглогодичное проживание
Да
Материал кровли
Металлочерепица
Материал перекрытий
Монолитные железобетонные
Материал внешних стен
Материал внутренних перегородок
Блочные
Модульное строительство с конструкциями заводского изготовления
Нет
Объем надземной части
-
Основной материал фасадов
Натуральный камень
Отопление
Индивидуальное
Площадь дома
169 м2
Площадь застройки
176 м2
Подвальное помещение
Нет
Показатель компактности здания
-
Приборы учета тепловой энергии
Нет
Пристроенный гараж/крытая автостоянка
Да
Противопожарная система
Нет
Санузлы
2
Совмещенная кухня-гостиная
Да
Спальни
4
Терраса
Да
Тип фундамента
Ленточный
Тип кровли
Толщина внешних стен
400 мм
Толщина внутренних перегородок
100 мм
Улучшенные шумовые характеристики
Да
Вентиляция
Естественная
Веранда
Нет
Водоотведение
Локальные очистные сооружения
Водоснабжение
Индивидуальное
Высота дома
9 м
Высота потолков
3 м

Планировка

Фасад дома

Александр

Закажите выезд инженера

Александр

Выездной инженер
Закажите выезд инженера для точной диагностики и профессиональной консультации по инженерным системам. Специалист приедет в удобное время, проведёт осмотр, рассчитает стоимость работ и подберёт оптимальные решения для вашего дома.


    Похожие проекты

    Ипотека и
    рассрочка
    Загородный дом КД-120
    Стоимость от:
    10 056 960
    Проект от: 64 800
    Этажей 2
    Санузлы 2
    Спальни 3
    Смотреть
    Ипотека и
    рассрочка
    Загородный одноэтажный дом GSB-1F-72-Т27
    Стоимость от:
    6 991 380
    Проект от: 44 550
    Этажей 1
    Санузлы 1
    Спальни 3
    Смотреть
    Ипотека и
    рассрочка
    Норд 108
    Стоимость от:
    8 140 000
    Проект от: 56 250
    Этажей 1
    Санузлы 2
    Спальни 3
    Смотреть
    Ипотека и
    рассрочка
    Проект загородного дома NHD-121
    Стоимость от:
    12 166 440
    Проект от: 72 900
    Этажей 1
    Санузлы 2
    Спальни 2
    Смотреть
    Ипотека и
    рассрочка
    Дом одноэтажный кирпичный «Классик с эркером»
    Стоимость от:
    6 927 140
    Проект от: 39 150
    Этажей 1
    Санузлы 1
    Спальни 3
    Смотреть
    Ипотека и
    рассрочка
    НОРДВЕЙ 115 с террасой
    Стоимость от:
    6 393 805
    Проект от: 45 450
    Этажей 1
    Санузлы 1
    Спальни 3
    Смотреть

    Как узнать стоимость дома

    back
    Оставляете заявку
    Вы заполняете форму на сайте или звоните нам. Менеджер Лайвкрафт связывается с вами для уточнения деталей: тип дома, площадь, материалы, участок строительства.
    back
    Консультация и подбор решения
    Наш специалист помогает выбрать оптимальный тип дома и конструкцию с учётом бюджета, сроков и целей — будь то дом для постоянного проживания или дача.
    back
    Расчёт предварительной стоимости
    Инженер делает первичный расчёт стоимости строительства по вашим параметрам: фундамент, коробка, кровля, отделка. Вы получаете смету с разбивкой по этапам.
    back
    Корректировка и утверждение сметы
    При необходимости вносим изменения — например, замену материалов или сокращение этапов. После согласования формируется окончательная фиксированная смета.
    back
    Заключение договора и старт работ
    После утверждения сметы заключаем официальный договор с гарантией. Вы получаете прозрачный график и точную стоимость — без скрытых расходов.

    Заказать конусльтацию по:Проект дома КС-18

    Фото 1 Проект дома КС-18


      Наши
      контакты

      Дмитров
      Опорный проезд 28Б
      (индустриальный парк Ниагара)
      9:00 до 18:00

      Корзина