4.9
Рейтинг на основании 120 отзывов
Дмитров
Опорный проезд 28Б
(индустриальный парк Ниагара)
Бренд "Дмитров-Дело" c 2008 года на рынке строительства в Дмитрове
Звоните 9:00 до 18:00 8 (915) 055-33-61
Бренд "Дмитров-Дело" c 2008 года на рынке строительства в Дмитрове

Проект дома КС-28

Стоимость проекта от:
76 500 ₽
БЕСПЛАТНО! ПРИ ЗАКАЗЕ СТРОИТЕЛЬСТВА
Стоимость строительства от:
12 708 000 ₽
Артикул ART-534
Дата 26.12.2025
Архитектурный стиль Классический
Количество надземных этажей 2
Круглогодичное проживание Да
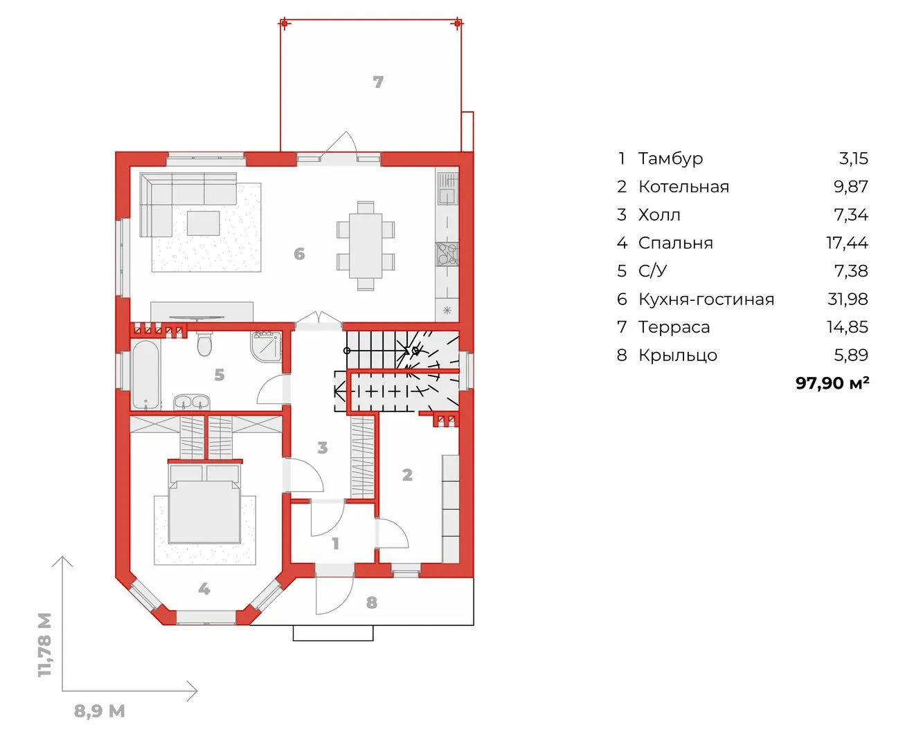
Площадь дома 170 м2
Санузлы 2
Спальни 4

Описание

Дом проекта КС‑28 — это идеальное сочетание утончённого классического стиля и практической, круглогодичной жилой среды. Оборудован двумя надземными этажами, он открывает простор для семейного уюта: в каждой комнате царит свет и простор, а открытые зоны с верандой приглашают проводить вечера на свежем воздухе, наслаждаясь теплом камина и ароматом благоухающей природы. Внутренний план продуман так, чтобы каждый уголок напоминал о домашнем комфорте: уютные спальни, современная кухонная зона, гостинная с большим окном, пропускающим мягкий свет, и, конечно, функциональный гардеробный, где хранить вещи не будет проблемой. Структура дома из газобетонных блоков дарует не только легкость и энергоэффективность, но и устойчивость к климатическим перепадам, а многощипковая крыша подчеркнет элегантность фасада и одновременно защитит от непогоды. Чёрдачное помещение — отличная возможность реализовать творческие идеи: создать мастерскую, небольшую гостиную, зону отдыха для детей, либо превратить его в домашний кабинет. Понимая важность удобства и безопасности, проект не предусматривает отдельного пристроенного гаража, но при необходимости можно легко расширить жилое пространство в сторону прилегающей к дому автостоянки. Всё, что нужно, чтобы превратить этот классический дом в ваш собственный уголок уюта и благополучия.

Характеристики дома

Архитектурный стиль
Автоматизированное регулирование параметров теплоносителя
-
Балконы/лоджии
Отсутствуют
Чердачное помещение
Да
Датчики протечки воды
-
Эксплуатируемая или зеленая кровля
-
Электроснабжение
Центральное
Газоснабжение
Центральное
Изоляция воздушного шума
-
Камин
Нет
Класс энергоэффективности
-
Класс энергосбережения
-
Количество надземных этажей
2
Круглогодичное проживание
Да
Материал кровли
Металлочерепица
Материал перекрытий
Монолитные железобетонные
Материал внешних стен
Материал внутренних перегородок
Блочные
Модульное строительство с конструкциями заводского изготовления
Нет
Объем надземной части
-
Основной материал фасадов
Натуральный камень
Отопление
Индивидуальное
Площадь дома
170 м2
Площадь застройки
209 м2
Подвальное помещение
Нет
Показатель компактности здания
-
Приборы учета тепловой энергии
-
Пристроенный гараж/крытая автостоянка
Нет
Противопожарная система
Нет
Санузлы
2
Совмещенная кухня-гостиная
Да
Спальни
4
Терраса
Нет
Тип фундамента
Ленточный
Тип кровли
Толщина внешних стен
400 мм
Толщина внутренних перегородок
100 мм
Улучшенные шумовые характеристики
-
Вентиляция
Естественная
Веранда
Да
Водоотведение
Локальные очистные сооружения
Водоснабжение
Индивидуальное
Высота дома
10 м
Высота потолков
3 м

Планировка

Фасад дома

Александр

Закажите выезд инженера

Александр

Выездной инженер
Закажите выезд инженера для точной диагностики и профессиональной консультации по инженерным системам. Специалист приедет в удобное время, проведёт осмотр, рассчитает стоимость работ и подберёт оптимальные решения для вашего дома.


    Похожие проекты

    Ипотека и
    рассрочка
    Современный дом МЕЛИНА-130
    Стоимость от:
    9 079 200
    Проект от: 58 500
    Этажей 2
    Санузлы 2
    Спальни 4
    Смотреть
    Ипотека и
    рассрочка
    Дом в стиле хай-тек HT-205
    Стоимость от:
    18 532 800
    Проект от: 121 500
    Этажей 2
    Санузлы 3
    Спальни 3
    Смотреть
    Ипотека и
    рассрочка
    Строительство дома Барнхаус
    Стоимость от:
    6 190 470
    Проект от: 49 950
    Этажей 1
    Санузлы 2
    Спальни 3
    Смотреть
    Ипотека и
    рассрочка
    Двухэтажный дом линейки «Эстетика» 2-170
    Стоимость от:
    11 872 800
    Проект от: 76 500
    Этажей 2
    Санузлы 3
    Спальни 3
    Смотреть
    Ипотека и
    рассрочка
    Проект А012
    Стоимость от:
    6 089 820
    Проект от: 36 450
    Этажей 1
    Санузлы 1
    Спальни 3
    Смотреть
    Ипотека и
    рассрочка
    Дом двухэтажный, каркасный (тип Барнхаус) БК2 86.19-4-2
    Стоимость от:
    4 877 520
    Проект от: 37 350
    Этажей 2
    Санузлы 2
    Спальни 4
    Смотреть

    Как узнать стоимость дома

    back
    Оставляете заявку
    Вы заполняете форму на сайте или звоните нам. Менеджер Лайвкрафт связывается с вами для уточнения деталей: тип дома, площадь, материалы, участок строительства.
    back
    Консультация и подбор решения
    Наш специалист помогает выбрать оптимальный тип дома и конструкцию с учётом бюджета, сроков и целей — будь то дом для постоянного проживания или дача.
    back
    Расчёт предварительной стоимости
    Инженер делает первичный расчёт стоимости строительства по вашим параметрам: фундамент, коробка, кровля, отделка. Вы получаете смету с разбивкой по этапам.
    back
    Корректировка и утверждение сметы
    При необходимости вносим изменения — например, замену материалов или сокращение этапов. После согласования формируется окончательная фиксированная смета.
    back
    Заключение договора и старт работ
    После утверждения сметы заключаем официальный договор с гарантией. Вы получаете прозрачный график и точную стоимость — без скрытых расходов.

    Заказать конусльтацию по:Проект дома КС-28

    Фото 1 Проект дома КС-28


      Наши
      контакты

      Дмитров
      Опорный проезд 28Б
      (индустриальный парк Ниагара)
      9:00 до 18:00

      Корзина