Проект двухэтажного дома «Барселона»
Описание
Характеристики дома
Архитектурный стиль
Автоматизированное регулирование параметров теплоносителя
-
Балконы/лоджии
Отсутствуют
Чердачное помещение
Нет
Датчики протечки воды
-
Эксплуатируемая или зеленая кровля
-
Электроснабжение
Центральное
Газоснабжение
Центральное
Изоляция воздушного шума
-
Камин
Нет
Класс энергоэффективности
-
Класс энергосбережения
-
Количество надземных этажей
2
Круглогодичное проживание
Да
Материал кровли
Металлочерепица
Материал перекрытий
Монолитные железобетонные
Материал внешних стен
Материал внутренних перегородок
Кирпичные
Модульное строительство с конструкциями заводского изготовления
Нет
Объем надземной части
-
Основной материал фасадов
Облицовочный кирпич
Отопление
Индивидуальное
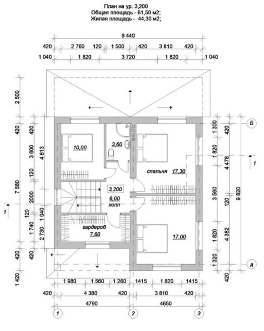
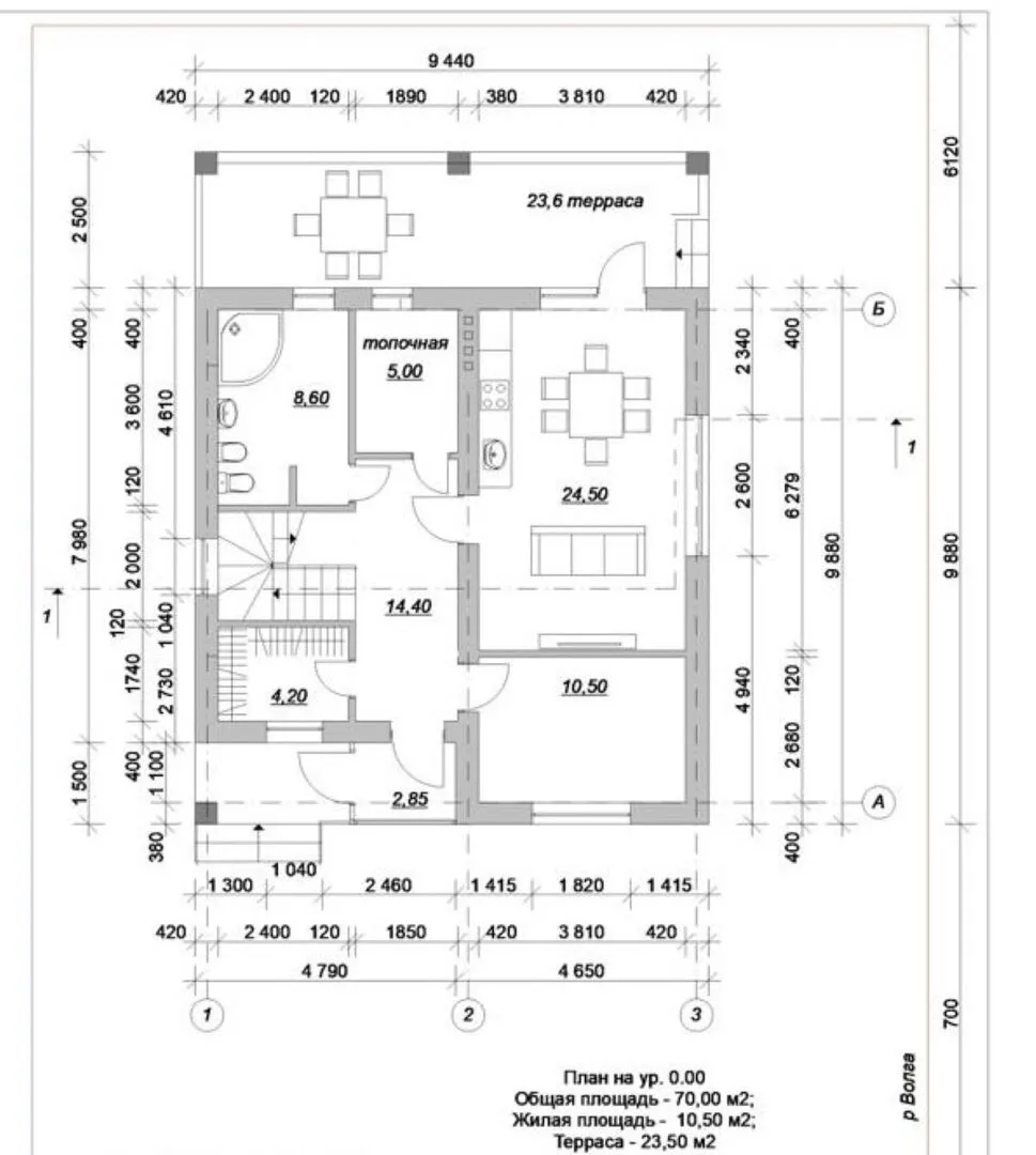
Площадь дома
133 м2
Площадь застройки
117 м2
Подвальное помещение
Нет
Показатель компактности здания
-
Приборы учета тепловой энергии
-
Пристроенный гараж/крытая автостоянка
Нет
Противопожарная система
Нет
Санузлы
2
Совмещенная кухня-гостиная
Да
Спальни
3
Терраса
Да
Тип фундамента
Ленточный
Тип кровли
Толщина внешних стен
420 мм
Толщина внутренних перегородок
250 мм
Улучшенные шумовые характеристики
-
Вентиляция
Система кондиционирования
Веранда
Нет
Водоотведение
Локальные очистные сооружения
Водоснабжение
Индивидуальное
Высота дома
8.9 м
Высота потолков
3 м
Категории проекта
Строительство двухэтажных домовСтроительство домовСтроительство домов без балкона или лоджииСтроительство домов без гаражаСтроительство домов без чердакаСтроительство домов в Классическом стилеСтроительство домов для круглогодичного проживанияСтроительство домов с верандойСтроительство домов с террасойСтроительство домов с четырехскатной (вальмовой) кровлейСтроительство кирпичных домов
Закажите выезд инженера
Александр
Выездной инженер
Закажите выезд инженера для точной диагностики и профессиональной консультации по инженерным
системам. Специалист приедет в удобное время, проведёт осмотр, рассчитает стоимость работ и подберёт
оптимальные решения для вашего дома.
Как узнать стоимость дома
Заказать конусльтацию по:Проект двухэтажного дома «Барселона»
Наши
контакты
Дмитров
Опорный проезд 28Б
(индустриальный парк Ниагара)
Опорный проезд 28Б
(индустриальный парк Ниагара)
9:00 до 18:00