4.9
Рейтинг на основании 120 отзывов
Дмитров
Опорный проезд 28Б
(индустриальный парк Ниагара)
Бренд "Дмитров-Дело" c 2008 года на рынке строительства в Дмитрове
Звоните 9:00 до 18:00 8 (915) 055-33-61
Бренд "Дмитров-Дело" c 2008 года на рынке строительства в Дмитрове

Проект Двухэтажный дом с эркером

Стоимость проекта от:
66 150 ₽
БЕСПЛАТНО! ПРИ ЗАКАЗЕ СТРОИТЕЛЬСТВА
Стоимость строительства от:
10 273 680 ₽
Артикул ART-18967
Дата 26.12.2025
Архитектурный стиль Европейский
Количество надземных этажей 2
Круглогодичное проживание Да
Площадь дома 147 м2
Санузлы 2
Спальни 3

Описание

Утопический уголок европейской эстетики, который обретает жизнь в каждом уголке этого двухэтажного дома. Его фасад из газобетонных блоков придаёт не только надёжность, но и легкое тепло, делая каждый момент кругосветного пребывания уюта и комфорта. Кладёная четырёхскатная (вальмовая) крыша, словно нежный шёлк, покрывает просторный дом, подчёркивая простоту элегантности и одновременно даря защиту от непогоды. Внутри – открытые, светлые пространства, обрамлённые обширными окнами, позволяющими рассекать воздух на живую кристаллическую светоту. Умело размещённый эркер создаёт уникальную полянку с мягкой падающей росой света, идеальное место для утреннего чтения или вечернего кофе. Отсутствие балконов, веранд и прикупленного гаража делает этот дом идеальным для тех, кто ценит спокойствие и приватность. Вместо этого, просторная терраса приглашает к романтическим прогулкам, летним барбекю и уютным встречам с друзьями. Внутри дома каждый планирует пространство так, чтобы каждое обитание было наполнено светом и спокойствием. Вера, что здесь каждый сможет обрести свой маленький рай, остаётся неизменной, отведя из простоты до высшего понимания – всё это, как и в архитектуре самого дома, подчиняется европейскому стилю: чистые линии, симметрия и гармония. В завершении ваш дом – это не только место, где вы остаетесь круглый год, но и пространство, в котором рождаются воспоминания и моменты. Его конструктивные решения, от выбора материалов до архитектурных форм, призваны обогреть вашу жизнь и сделать каждое мгновение особенным. Выберите это сочетание стиля, уюта и практичности, и ваш дом станет вашим персональным гаванью, где каждый день сияет.

Характеристики дома

Архитектурный стиль
Автоматизированное регулирование параметров теплоносителя
Да
Балконы/лоджии
Отсутствуют
Чердачное помещение
Нет
Датчики протечки воды
Да
Эксплуатируемая или зеленая кровля
Нет
Электроснабжение
Центральное
Газоснабжение
Центральное
Изоляция воздушного шума
Да
Камин
Нет
Класс энергоэффективности
-
Класс энергосбережения
-
Количество надземных этажей
2
Круглогодичное проживание
Да
Материал кровли
Металлочерепица
Материал перекрытий
Монолитные железобетонные
Материал внешних стен
Материал внутренних перегородок
Кирпичные
Модульное строительство с конструкциями заводского изготовления
Нет
Объем надземной части
443 м3
Основной материал фасадов
Облицовочный кирпич
Отопление
Индивидуальное
Площадь дома
147 м2
Площадь застройки
180 м2
Подвальное помещение
Нет
Показатель компактности здания
-
Приборы учета тепловой энергии
Да
Пристроенный гараж/крытая автостоянка
Нет
Противопожарная система
Да
Санузлы
2
Совмещенная кухня-гостиная
Да
Спальни
3
Терраса
Да
Тип фундамента
Плитный
Толщина внешних стен
400 мм
Толщина внутренних перегородок
200 мм
Улучшенные шумовые характеристики
Да
Вентиляция
Система кондиционирования
Веранда
Нет
Водоотведение
Центральное
Водоснабжение
Центральное
Высота дома
6 м
Высота потолков
3 м

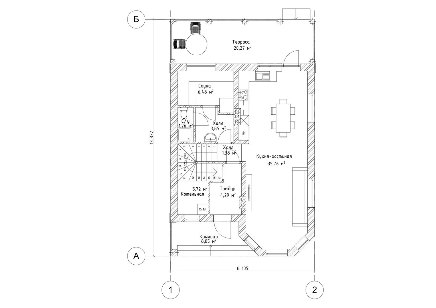
Планировка

Фасад дома

Александр

Закажите выезд инженера

Александр

Выездной инженер
Закажите выезд инженера для точной диагностики и профессиональной консультации по инженерным системам. Специалист приедет в удобное время, проведёт осмотр, рассчитает стоимость работ и подберёт оптимальные решения для вашего дома.


    Похожие проекты

    Ипотека и
    рассрочка
    Индвидуальный жилой дом 858-19-01/23-АР
    Стоимость от:
    8 528 160
    Проект от: 51 300
    Этажей 2
    Санузлы 2
    Спальни 2
    Смотреть
    Ипотека и
    рассрочка
    СКАНДИ 144
    Стоимость от:
    10 056 960
    Проект от: 64 800
    Этажей 2
    Санузлы 2
    Спальни 4
    Смотреть
    Ипотека и
    рассрочка
    «АлексАнна»
    Стоимость от:
    25 526 160
    Проект от: 161 550
    Этажей 2
    Санузлы 2
    Спальни 5
    Смотреть
    Ипотека и
    рассрочка
    Загородный дом 47 м2
    Стоимость от:
    3 177 240
    Проект от: 21 150
    Этажей 1
    Санузлы 1
    Спальни 2
    Смотреть
    Ипотека и
    рассрочка
    Одноэтажный дом Fixplans-0125
    Стоимость от:
    9 816 180
    Проект от: 62 550
    Этажей 1
    Санузлы 2
    Спальни 3
    Смотреть
    Ипотека и
    рассрочка
    КОМФОРТ В БАРНХАУСЕ
    Стоимость от:
    4 517 370
    Проект от: 36 450
    Этажей 1
    Санузлы 1
    Спальни 2
    Смотреть

    Как узнать стоимость дома

    back
    Оставляете заявку
    Вы заполняете форму на сайте или звоните нам. Менеджер Лайвкрафт связывается с вами для уточнения деталей: тип дома, площадь, материалы, участок строительства.
    back
    Консультация и подбор решения
    Наш специалист помогает выбрать оптимальный тип дома и конструкцию с учётом бюджета, сроков и целей — будь то дом для постоянного проживания или дача.
    back
    Расчёт предварительной стоимости
    Инженер делает первичный расчёт стоимости строительства по вашим параметрам: фундамент, коробка, кровля, отделка. Вы получаете смету с разбивкой по этапам.
    back
    Корректировка и утверждение сметы
    При необходимости вносим изменения — например, замену материалов или сокращение этапов. После согласования формируется окончательная фиксированная смета.
    back
    Заключение договора и старт работ
    После утверждения сметы заключаем официальный договор с гарантией. Вы получаете прозрачный график и точную стоимость — без скрытых расходов.

    Заказать конусльтацию по:Проект Двухэтажный дом с эркером

    Фото 1 Проект Двухэтажный дом с эркером


      Наши
      контакты

      Дмитров
      Опорный проезд 28Б
      (индустриальный парк Ниагара)
      9:00 до 18:00

      Корзина