4.9
Рейтинг на основании 120 отзывов
Дмитров
Опорный проезд 28Б
(индустриальный парк Ниагара)
Бренд "Дмитров-Дело" c 2008 года на рынке строительства в Дмитрове
Звоните 9:00 до 18:00 8 (915) 055-33-61
Бренд "Дмитров-Дело" c 2008 года на рынке строительства в Дмитрове

Проект Гвиненко

Стоимость проекта от:
40 950 ₽
БЕСПЛАТНО! ПРИ ЗАКАЗЕ СТРОИТЕЛЬСТВА
Стоимость строительства от:
7 244 820 ₽
Артикул ART-12218
Дата 25.12.2025
Архитектурный стиль Классический
Количество надземных этажей 1
Круглогодичное проживание Да
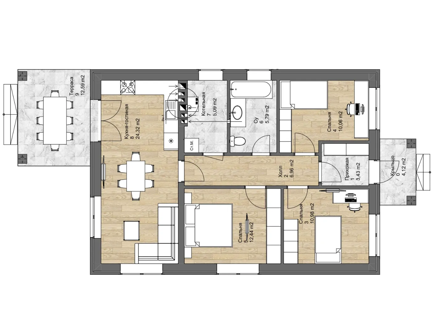
Площадь дома 91 м2
Санузлы 1
Спальни 3

Описание

**Знакомьтесь с Домом «Гвиненко» – оазис классической элегантности в самом сердце уюта.** Этот очаровательный одноэтажный дом воплощает в себе дух истинной классики: строгие линии фасада, хрупкая симметрия и изысканные детали создают атмосферу благородного и спокойного жилья. Отражая традиционные ценности, проект «Гвиненко» позволяет вам наслаждаться круглогодичным комфортом даже в самые суровые периоды. **Мощные газобетонные блоки защищают внутреннее пространство от холода и шума, а четырёхскатная вальмовая крыша добавляет дому неповторимого шарма и защищает от непогоды.** Площадь чердачного помещения открывает простор для творчества—это может стать уютной мастерской, игровой площадкой для детей или простором для хранения. Совместно с просторной террасой вы сможете проводить приятные вечера в приятной компании, наслаждаясь свежим воздухом без необходимости в веранде или балконах. **Дом «Гвиненко» сочетает в себе все преимущества классического дизайна и современные стандарты комфорта.** Выберите этот стильный вариант, если цените простоту, безопасность и атмосферу домашнего уюта. Он станет идеальной недвижимостью для тех, кто ищет гармонию, надежность и душевное спокойствие в одном элегантном доме.

Характеристики дома

Архитектурный стиль
Автоматизированное регулирование параметров теплоносителя
Нет
Балконы/лоджии
Отсутствуют
Чердачное помещение
Да
Датчики протечки воды
Нет
Эксплуатируемая или зеленая кровля
Нет
Электроснабжение
Центральное
Газоснабжение
Не предусмотрено
Изоляция воздушного шума
Нет
Камин
Нет
Класс энергоэффективности
-
Класс энергосбережения
-
Количество надземных этажей
1
Круглогодичное проживание
Да
Материал кровли
Металлочерепица
Материал перекрытий
Деревянные
Материал внешних стен
Материал внутренних перегородок
Кирпичные
Модульное строительство с конструкциями заводского изготовления
Нет
Объем надземной части
-
Основной материал фасадов
Облицовочный кирпич
Отопление
Индивидуальное
Площадь дома
91 м2
Площадь застройки
481 м2
Подвальное помещение
Нет
Показатель компактности здания
-
Приборы учета тепловой энергии
Нет
Пристроенный гараж/крытая автостоянка
Нет
Противопожарная система
Нет
Санузлы
1
Совмещенная кухня-гостиная
Да
Спальни
3
Терраса
Да
Тип фундамента
Ленточный
Толщина внешних стен
450 мм
Толщина внутренних перегородок
120 мм
Улучшенные шумовые характеристики
Нет
Вентиляция
Естественная
Веранда
Нет
Водоотведение
Локальные очистные сооружения
Водоснабжение
Индивидуальное
Высота дома
5.25 м
Высота потолков
3 м

Планировка

Фасад дома

Александр

Закажите выезд инженера

Александр

Выездной инженер
Закажите выезд инженера для точной диагностики и профессиональной консультации по инженерным системам. Специалист приедет в удобное время, проведёт осмотр, рассчитает стоимость работ и подберёт оптимальные решения для вашего дома.


    Похожие проекты

    Ипотека и
    рассрочка
    Газобетонный дом «Агат»
    Стоимость от:
    8 121 300
    Проект от: 51 750
    Этажей 1
    Санузлы 1
    Спальни 3
    Смотреть
    Ипотека и
    рассрочка
    Загородный дом MAKS-1
    Стоимость от:
    11 916 480
    Проект от: 72 900
    Этажей 2
    Санузлы 2
    Спальни 2
    Смотреть
    Ипотека и
    рассрочка
    Модерн 28-24КД
    Стоимость от:
    11 849 520
    Проект от: 82 350
    Этажей 2
    Санузлы 2
    Спальни 3
    Смотреть
    Ипотека и
    рассрочка
    Модник
    Стоимость от:
    8 151 840
    Проект от: 61 200
    Этажей 2
    Санузлы 2
    Спальни 4
    Смотреть
    Ипотека и
    рассрочка
    1005А «Остров сокровищ» — 4 спальни (мастер спальня) , терраса
    Стоимость от:
    11 468 880
    Проект от: 75 150
    Этажей 2
    Санузлы 3
    Спальни 4
    Смотреть
    Ипотека и
    рассрочка
    Двухэтажный загородный дом «Спрингсайд»
    Стоимость от:
    7 062 300
    Проект от: 53 100
    Этажей 2
    Санузлы 2
    Спальни 4
    Смотреть

    Как узнать стоимость дома

    back
    Оставляете заявку
    Вы заполняете форму на сайте или звоните нам. Менеджер Лайвкрафт связывается с вами для уточнения деталей: тип дома, площадь, материалы, участок строительства.
    back
    Консультация и подбор решения
    Наш специалист помогает выбрать оптимальный тип дома и конструкцию с учётом бюджета, сроков и целей — будь то дом для постоянного проживания или дача.
    back
    Расчёт предварительной стоимости
    Инженер делает первичный расчёт стоимости строительства по вашим параметрам: фундамент, коробка, кровля, отделка. Вы получаете смету с разбивкой по этапам.
    back
    Корректировка и утверждение сметы
    При необходимости вносим изменения — например, замену материалов или сокращение этапов. После согласования формируется окончательная фиксированная смета.
    back
    Заключение договора и старт работ
    После утверждения сметы заключаем официальный договор с гарантией. Вы получаете прозрачный график и точную стоимость — без скрытых расходов.

    Заказать конусльтацию по:Проект Гвиненко

    Фото 1 Проект Гвиненко


      Наши
      контакты

      Дмитров
      Опорный проезд 28Б
      (индустриальный парк Ниагара)
      9:00 до 18:00

      Корзина