4.9
Рейтинг на основании 120 отзывов
Дмитров
Опорный проезд 28Б
(индустриальный парк Ниагара)
Бренд "Дмитров-Дело" c 2008 года на рынке строительства в Дмитрове
Звоните 9:00 до 18:00 8 (915) 055-33-61
Бренд "Дмитров-Дело" c 2008 года на рынке строительства в Дмитрове

ТЕХАС

Стоимость проекта от:
51 750 ₽
Стоимость строительства от:
8 640 500 ₽
Артикул ART-12441
Дата 25.12.2025
Архитектурный стиль Классический
Количество надземных этажей 1
Круглогодичное проживание Да
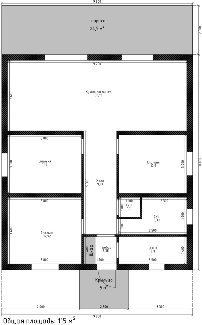
Площадь дома 115 м2
Санузлы 2
Спальни 3

Описание

Небольшой, но впечатляющий дом, построенный в неотразимом классическом стиле, представляет собой идеальное сочетание простоты и уюта. Уже при первом взгляде сердце начинает биться сильнее – просторные комнатные пространства, обратившиеся в светлые уголки, где мягкий свет проникает из окна за окнами, придавая интерьеру ощущение тепла и родства. Внутри каждый квадратный метр тщательно продуман: большие окна, естественное освещение, высокие потолки и аккуратные детали, указывающие на качество строительства. Этот дом рассчитан на круглогодичную жизнь благодаря качественным материалам: керамзитобетонные блоки создают прочность и хорошую теплоизоляцию, а четырехскатная (вальмовая) крыша гарантирует надёжность даже в суровых условиях. На территории располагается большая терраса, где можно устроить пикник в яркий летний день или укутаться под одеялом с чашкой горячего шоколада во время дождливого вечера. В доме нет отдельного гаража или подъездной крытой стоянки, но застройка предусматривает удобные места для парковки автомобиля и свободное пространство для отдыха на свежем воздухе. Для семейных клиентов, которые ценят комфорт, простоту обслуживания и эстетику, этот дом выглядит как настоящий дом мечты. Пространство легко масштабируется под любые потребности, а классический фасад придаёт вашему жилищу статус и элегантность, которые будут оценены во всем сезоне. Это не просто жильё – это продолжение вашего образа жизни.

Характеристики дома

Архитектурный стиль
Классический
Автоматизированное регулирование параметров теплоносителя
Нет
Балконы/лоджии
Отсутствуют
Чердачное помещение
Нет
Датчики протечки воды
Нет
Эксплуатируемая или зеленая кровля
Нет
Электроснабжение
Индивидуальное
Газоснабжение
Не предусмотрено
Изоляция воздушного шума
Нет
Камин
Нет
Класс энергоэффективности
-
Класс энергосбережения
-
Количество надземных этажей
1
Круглогодичное проживание
Да
Материал кровли
Металлочерепица
Материал перекрытий
Деревянные
Материал внешних стен
Керамзитобетонные блоки
Материал внутренних перегородок
Блочные
Модульное строительство с конструкциями заводского изготовления
Нет
Объем надземной части
580 м3
Основной материал фасадов
Штукатурка
Отопление
Индивидуальное
Площадь дома
115 м2
Площадь застройки
132 м2
Подвальное помещение
Нет
Показатель компактности здания
-
Приборы учета тепловой энергии
Да
Пристроенный гараж/крытая автостоянка
Нет
Противопожарная система
Нет
Санузлы
2
Совмещенная кухня-гостиная
Да
Спальни
3
Терраса
Да
Тип фундамента
Свайно-ростверковый
Тип кровли
Четырехскатная (вальмовая)
Толщина внешних стен
420 мм
Толщина внутренних перегородок
100 мм
Улучшенные шумовые характеристики
Нет
Вентиляция
Естественная
Веранда
Нет
Водоотведение
Локальные очистные сооружения
Водоснабжение
Индивидуальное
Высота дома
5.8 м
Высота потолков
3 м

Планировка

Фасад дома

Александр

Закажите выезд инженера

Александр

Выездной инженер
Закажите выезд инженера для точной диагностики и профессиональной консультации по инженерным системам. Специалист приедет в удобное время, проведёт осмотр, рассчитает стоимость работ и подберёт оптимальные решения для вашего дома.


    Похожие проекты

    Ипотека и
    рассрочка
    Сибирский шале
    Стоимость от:
    5 380 925
    Проект от: 38 250
    Этажей 1
    Санузлы 1
    Спальни 2
    Смотреть
    Ипотека и
    рассрочка
    Дом 82 м2, 1 этаж (4C-82)
    Стоимость от:
    6 530 040
    Проект от: 36 900
    Этажей 1
    Санузлы 1
    Спальни 3
    Смотреть
    Ипотека и
    рассрочка
    «Колесникова»
    Стоимость от:
    2 935 860
    Проект от: 22 050
    Этажей 2
    Санузлы 1
    Спальни 2
    Смотреть
    Ипотека и
    рассрочка
    Одноэтажный жилой дом из клеёного бруса Велес КБ-198
    Стоимость от:
    13 547 160
    Проект от: 89 100
    Этажей 1
    Санузлы 2
    Спальни 3
    Смотреть
    Ипотека и
    рассрочка
    Загородный дом АС-236
    Стоимость от:
    11 299 200
    Проект от: 72 000
    Этажей 1
    Санузлы 2
    Спальни 4
    Смотреть
    Ипотека и
    рассрочка
    Эффектный Ми-5
    Стоимость от:
    15 159 760
    Проект от: 93 600
    Этажей 1
    Санузлы 2
    Спальни 3
    Смотреть

    Как узнать стоимость дома

    back
    Оставляете заявку
    Вы заполняете форму на сайте или звоните нам. Менеджер Лайвкрафт связывается с вами для уточнения деталей: тип дома, площадь, материалы, участок строительства.
    back
    Консультация и подбор решения
    Наш специалист помогает выбрать оптимальный тип дома и конструкцию с учётом бюджета, сроков и целей — будь то дом для постоянного проживания или дача.
    back
    Расчёт предварительной стоимости
    Инженер делает первичный расчёт стоимости строительства по вашим параметрам: фундамент, коробка, кровля, отделка. Вы получаете смету с разбивкой по этапам.
    back
    Корректировка и утверждение сметы
    При необходимости вносим изменения — например, замену материалов или сокращение этапов. После согласования формируется окончательная фиксированная смета.
    back
    Заключение договора и старт работ
    После утверждения сметы заключаем официальный договор с гарантией. Вы получаете прозрачный график и точную стоимость — без скрытых расходов.

    Заказать конусльтацию по:ТЕХАС

    Фото 1 ТЕХАС


      Наши
      контакты

      Дмитров
      Опорный проезд 28Б
      (индустриальный парк Ниагара)
      9:00 до 18:00