4.9
Рейтинг на основании 120 отзывов
Дмитров
Опорный проезд 28Б
(индустриальный парк Ниагара)
Бренд "Дмитров-Дело" c 2008 года на рынке строительства в Дмитрове
Звоните 9:00 до 18:00 8 (915) 055-33-61
Бренд "Дмитров-Дело" c 2008 года на рынке строительства в Дмитрове

Проект индивидуального жилого двухэтажного дома

Стоимость проекта от:
59 400 ₽
БЕСПЛАТНО! ПРИ ЗАКАЗЕ СТРОИТЕЛЬСТВА
Стоимость строительства от:
9 550 080 ₽
Артикул ART-18331
Дата 26.12.2025
Архитектурный стиль Классический
Количество надземных этажей 2
Круглогодичное проживание Да
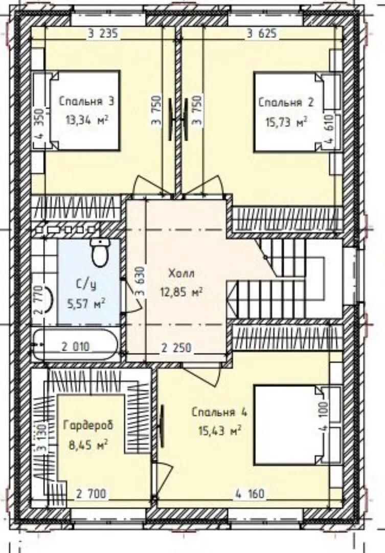
Площадь дома 132 м2
Санузлы 2
Спальни 4

Описание

Носимый своим уютом и временем‑проверенной элегантностью, наш двухэтажный индивидуальный дом в классическом стиле словно приветствует каждого, кто ступает на его порог. Стены, облицованные надёжным кирпичом, создают ощущение прочности и тепла, а четырёхскатная вальмовая крыша придаёт фасаду лёгкость и изящество. Никаких балконов, веранд или пристроенного гаража здесь нет – но именно простота и чистый, лаконичный дизайн позволяют сосредоточиться на деталях интерьера, которые делают дом истинным убежищем в любое время года. Просторное планировочное решение двухэтажки обеспечивает разделение зоны отдыха и личного пространства: в уютных гостиных царит свет и простор, а спальни располагаются с максимальным комфортабельным расположением. Внутри каждый уголок рассчитан на функциональность и эстетику, без лишних барьеров, благодаря чему в доме легко чувствовать себя как дома. Бытовое окружение, подходящее для семьи любого размера, а безмятежная атмосфера дома заставляет забыть о внешнем мире. Если вы ищете сочетание традиционного стиля, практичности и безупречного качества строительства, наш дом станет идеальным выбором. Позвольте себе воплотить мечту о домашнем уюте и свяжитесь с нами – ваш новый дом уже ждет, чтобы стать частью вашей истории.

Характеристики дома

Архитектурный стиль
Автоматизированное регулирование параметров теплоносителя
Нет
Балконы/лоджии
Отсутствуют
Чердачное помещение
Нет
Датчики протечки воды
Нет
Эксплуатируемая или зеленая кровля
Нет
Электроснабжение
Центральное
Газоснабжение
Центральное
Изоляция воздушного шума
Нет
Камин
Нет
Класс энергоэффективности
-
Класс энергосбережения
-
Количество надземных этажей
2
Круглогодичное проживание
Да
Материал кровли
Металлочерепица
Материал перекрытий
Сборные железобетонные предварительно напряженные пустотные плиты
Материал внешних стен
Материал внутренних перегородок
Кирпичные
Модульное строительство с конструкциями заводского изготовления
Нет
Объем надземной части
-
Основной материал фасадов
Облицовочный кирпич
Отопление
Индивидуальное
Площадь дома
132 м2
Площадь застройки
100 м2
Подвальное помещение
Нет
Показатель компактности здания
-
Приборы учета тепловой энергии
Нет
Пристроенный гараж/крытая автостоянка
Нет
Противопожарная система
Нет
Санузлы
2
Совмещенная кухня-гостиная
Да
Спальни
4
Терраса
Нет
Тип фундамента
Свайно-ростверковый
Толщина внешних стен
510 мм
Толщина внутренних перегородок
120 мм
Улучшенные шумовые характеристики
Нет
Вентиляция
Естественная
Веранда
Нет
Водоотведение
Локальные очистные сооружения
Водоснабжение
Центральное
Высота дома
8 м
Высота потолков
3 м

Планировка

Фасад дома

Александр

Закажите выезд инженера

Александр

Выездной инженер
Закажите выезд инженера для точной диагностики и профессиональной консультации по инженерным системам. Специалист приедет в удобное время, проведёт осмотр, рассчитает стоимость работ и подберёт оптимальные решения для вашего дома.


    Похожие проекты

    Ипотека и
    рассрочка
    Рождественское 101Н
    Стоимость от:
    6 842 000
    Проект от: 45 000
    Этажей 1
    Санузлы 1
    Спальни 3
    Смотреть
    Ипотека и
    рассрочка
    Каркасный дом Ирадус 122
    Стоимость от:
    9 399 660
    Проект от: 70 650
    Этажей 2
    Санузлы 2
    Спальни 4
    Смотреть
    Ипотека и
    рассрочка
    ИЗУМРУД
    Стоимость от:
    7 526 200
    Проект от: 49 500
    Этажей 1
    Санузлы 2
    Спальни 3
    Смотреть
    Ипотека и
    рассрочка
    Дом с мансардой ДГ-6
    Стоимость от:
    11 215 200
    Проект от: 67 500
    Этажей 2
    Санузлы 2
    Спальни 5
    Смотреть
    Ипотека и
    рассрочка
    Модульный дом FL 77 (СО77)
    Стоимость от:
    5 688 540
    Проект от: 45 900
    Этажей 1
    Санузлы 1
    Спальни 3
    Смотреть
    Ипотека и
    рассрочка
    Проект 124
    Стоимость от:
    9 274 560
    Проект от: 55 800
    Этажей 2
    Санузлы 2
    Спальни 4
    Смотреть

    Как узнать стоимость дома

    back
    Оставляете заявку
    Вы заполняете форму на сайте или звоните нам. Менеджер Лайвкрафт связывается с вами для уточнения деталей: тип дома, площадь, материалы, участок строительства.
    back
    Консультация и подбор решения
    Наш специалист помогает выбрать оптимальный тип дома и конструкцию с учётом бюджета, сроков и целей — будь то дом для постоянного проживания или дача.
    back
    Расчёт предварительной стоимости
    Инженер делает первичный расчёт стоимости строительства по вашим параметрам: фундамент, коробка, кровля, отделка. Вы получаете смету с разбивкой по этапам.
    back
    Корректировка и утверждение сметы
    При необходимости вносим изменения — например, замену материалов или сокращение этапов. После согласования формируется окончательная фиксированная смета.
    back
    Заключение договора и старт работ
    После утверждения сметы заключаем официальный договор с гарантией. Вы получаете прозрачный график и точную стоимость — без скрытых расходов.

    Заказать конусльтацию по:Проект индивидуального жилого двухэтажного дома

    Фото 1 Проект индивидуального жилого двухэтажного дома


      Наши
      контакты

      Дмитров
      Опорный проезд 28Б
      (индустриальный парк Ниагара)
      9:00 до 18:00

      Корзина