4.9
Рейтинг на основании 120 отзывов
Дмитров
Опорный проезд 28Б
(индустриальный парк Ниагара)
Бренд "Дмитров-Дело" c 2008 года на рынке строительства в Дмитрове
Звоните 9:00 до 18:00 8 (915) 055-33-61
Бренд "Дмитров-Дело" c 2008 года на рынке строительства в Дмитрове

Проект Индивидуальный жилой дом ОС-24-52

Стоимость проекта от:
48 150 ₽
БЕСПЛАТНО! ПРИ ЗАКАЗЕ СТРОИТЕЛЬСТВА
Стоимость строительства от:
8 515 540 ₽
Артикул ART-11957
Дата 25.12.2025
Архитектурный стиль Классический
Количество надземных этажей 1
Круглогодичное проживание Да
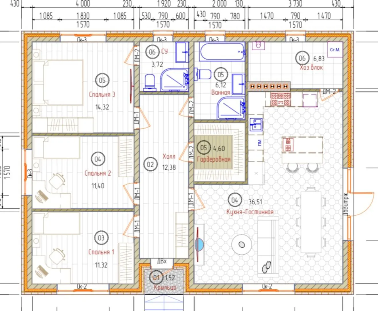
Площадь дома 107 м2
Санузлы 2
Спальни 3

Описание

Представляем вашему вниманию индивидуальный жилой дом **ОС‑24‑52** – воплощение классической элегантности и практичности в одном. Просторный одноповерховый интерьер, рассчитанный на круглогодичное проживание, дарит ощущение уюта и тепла в любое время года. Классический архитектурный стиль подчёркивает гармоничный баланс между традицией и современностью: строгие линии фасада из высококачественного кирпича, а величественная четырехскатная кровля с валмовой крышей придаёт дому величественный вид и защищает от непогоды. Внутри вы найдете продуманное пространство со светлым и открытым планом, где каждая деталь обрамлена изящными деревянными элементами. Специально отведённые от пространства жилого зала **чердачное помещение** открывают возможности для дополнительного хранения, небольшого рабочего кабинета или уютной зоны отдыха. Эко‑дружественные материалы и изоляция обеспечивают комфорт температуры и энергоэффективность, а наличие традиционных окон с двойным остеклением создаёт мягкий, приглушённый свет, способствующий расслаблению после напряжённого дня. Дом не требует лишних помещений: при отсутствии веранд, балконов и гаражей вы легко создадите собственный уютный уголок вдали от городской суеты, а простота в обслуживании позволяет больше времени уделять семье и любимым занятиям. Если вы ищете уют, функциональность и неповторимый классический шарм, то ОС‑24‑52 станет идеальным выбором для вашего нового дома.

Характеристики дома

Архитектурный стиль
Автоматизированное регулирование параметров теплоносителя
Да
Балконы/лоджии
Отсутствуют
Чердачное помещение
Да
Датчики протечки воды
Нет
Эксплуатируемая или зеленая кровля
Нет
Электроснабжение
Центральное
Газоснабжение
Центральное
Изоляция воздушного шума
Нет
Камин
Нет
Класс энергоэффективности
B
Класс энергосбережения
B+
Количество надземных этажей
1
Круглогодичное проживание
Да
Материал кровли
Металлочерепица
Материал перекрытий
Деревянные
Материал внешних стен
Материал внутренних перегородок
Блочные
Модульное строительство с конструкциями заводского изготовления
Нет
Объем надземной части
321 м3
Основной материал фасадов
Облицовочный кирпич
Отопление
Индивидуальное
Площадь дома
107 м2
Площадь застройки
136 м2
Подвальное помещение
Нет
Показатель компактности здания
0.82
Приборы учета тепловой энергии
Нет
Пристроенный гараж/крытая автостоянка
Нет
Противопожарная система
Нет
Санузлы
2
Совмещенная кухня-гостиная
Да
Спальни
3
Терраса
Нет
Тип фундамента
Ленточный
Толщина внешних стен
400 мм
Толщина внутренних перегородок
130 мм
Улучшенные шумовые характеристики
Да
Вентиляция
Естественная
Веранда
Нет
Водоотведение
Центральное
Водоснабжение
Центральное
Высота дома
5.7 м
Высота потолков
3 м

Планировка

Фасад дома

Александр

Закажите выезд инженера

Александр

Выездной инженер
Закажите выезд инженера для точной диагностики и профессиональной консультации по инженерным системам. Специалист приедет в удобное время, проведёт осмотр, рассчитает стоимость работ и подберёт оптимальные решения для вашего дома.


    Похожие проекты

    Ипотека и
    рассрочка
    Индивидуальный жилой дом
    Стоимость от:
    9 125 280
    Проект от: 54 900
    Этажей 2
    Санузлы 1
    Спальни 4
    Смотреть
    Ипотека и
    рассрочка
    Крафт К 65-1 (Каркасный дом)
    Стоимость от:
    3 625 050
    Проект от: 29 250
    Этажей 1
    Санузлы 1
    Спальни 1
    Смотреть
    Ипотека и
    рассрочка
    Каркасный дом Лапландия 6
    Стоимость от:
    5 337 960
    Проект от: 40 050
    Этажей 2
    Санузлы 1
    Спальни 5
    Смотреть
    Ипотека и
    рассрочка
    Загородный дом АС-264
    Стоимость от:
    13 548 960
    Проект от: 87 300
    Этажей 2
    Санузлы 2
    Спальни 5
    Смотреть
    Ипотека и
    рассрочка
    А7-21
    Стоимость от:
    23 963 280
    Проект от: 151 650
    Этажей 2
    Санузлы 3
    Спальни 4
    Смотреть
    Ипотека и
    рассрочка
    Модульный дом FL 43 (К43)
    Стоимость от:
    3 625 050
    Проект от: 29 250
    Этажей 1
    Санузлы 1
    Спальни 2
    Смотреть

    Как узнать стоимость дома

    back
    Оставляете заявку
    Вы заполняете форму на сайте или звоните нам. Менеджер Лайвкрафт связывается с вами для уточнения деталей: тип дома, площадь, материалы, участок строительства.
    back
    Консультация и подбор решения
    Наш специалист помогает выбрать оптимальный тип дома и конструкцию с учётом бюджета, сроков и целей — будь то дом для постоянного проживания или дача.
    back
    Расчёт предварительной стоимости
    Инженер делает первичный расчёт стоимости строительства по вашим параметрам: фундамент, коробка, кровля, отделка. Вы получаете смету с разбивкой по этапам.
    back
    Корректировка и утверждение сметы
    При необходимости вносим изменения — например, замену материалов или сокращение этапов. После согласования формируется окончательная фиксированная смета.
    back
    Заключение договора и старт работ
    После утверждения сметы заключаем официальный договор с гарантией. Вы получаете прозрачный график и точную стоимость — без скрытых расходов.

    Заказать конусльтацию по:Проект Индивидуальный жилой дом ОС-24-52

    Фото 1 Проект Индивидуальный жилой дом ОС-24-52


      Наши
      контакты

      Дмитров
      Опорный проезд 28Б
      (индустриальный парк Ниагара)
      9:00 до 18:00

      Корзина