4.9
Рейтинг на основании 120 отзывов
Дмитров
Опорный проезд 28Б
(индустриальный парк Ниагара)
Бренд "Дмитров-Дело" c 2008 года на рынке строительства в Дмитрове
Звоните 9:00 до 18:00 8 (915) 055-33-61
Бренд "Дмитров-Дело" c 2008 года на рынке строительства в Дмитрове

Проект Индивидуальный жилой дом ОС-23-30

Стоимость проекта от:
37 800 ₽
БЕСПЛАТНО! ПРИ ЗАКАЗЕ СТРОИТЕЛЬСТВА
Стоимость строительства от:
6 688 880 ₽
Артикул ART-11552
Дата 25.12.2025
Архитектурный стиль Классический
Количество надземных этажей 1
Круглогодичное проживание Да
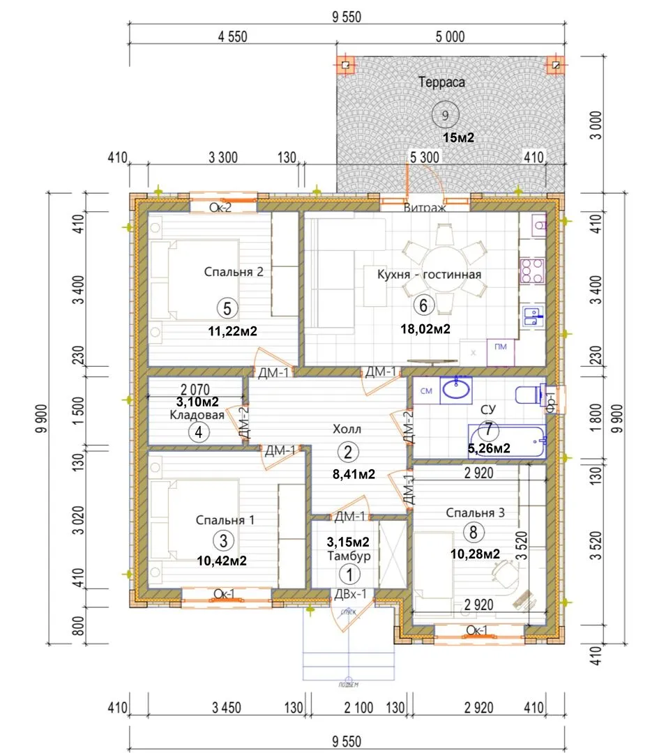
Площадь дома 84 м2
Санузлы 1
Спальни 3

Описание

Индивидуальный жилой дом «ОС‑23‑30» — это воплощение классической элегантности в компактной одноэтажной структуре. Его строгая линия пронизана уютом и теплом, а безмятежный фасад из кирпича дарит ощущение надёжности и стиля. Дом, рассчитанный на круглогодичное проживание, с гармоничной четырехскатной (валмовой) крышей, создает ощущение защищённости и внутреннего спокойствия даже в самые суровые зимы. Теплые стены из кирпича, пропитанные традиционным шармом, обрамляют просторный внутренний двор, где можно украсить сад или устроить уютное семейное уединение. Внутри предусмотрены просторные помещения, а открытая чердаческая площадка открывает дополнительные варианты для творчества: домашний офис, уютная игровая зона, даже небольшая библиотека. Просторная терраса приглашает на вечерние коктейли, а внутренний дворок предоставляет возможность провести пикник или вечерний барбекю с семьёй и друзьями. Эта архитектурная жемчужина сочетает в себе классическую эстетику, практичность и современный комфорт, предлагая вам не просто жильё, а целостный образ жизни. Превосходные материалы, продуманные детали и безупречный дизайн делают «ОС‑23‑30» идеальным выбором для тех, кто ценит уют, уют и элегантность в каждом мгновении своего дома.

Характеристики дома

Архитектурный стиль
Автоматизированное регулирование параметров теплоносителя
Да
Балконы/лоджии
Отсутствуют
Чердачное помещение
Да
Датчики протечки воды
Нет
Эксплуатируемая или зеленая кровля
Нет
Электроснабжение
Центральное
Газоснабжение
Центральное
Изоляция воздушного шума
Нет
Камин
Нет
Класс энергоэффективности
-
Класс энергосбережения
-
Количество надземных этажей
1
Круглогодичное проживание
Да
Материал кровли
Металлочерепица
Материал перекрытий
Деревянные
Материал внешних стен
Материал внутренних перегородок
Блочные
Модульное строительство с конструкциями заводского изготовления
Нет
Объем надземной части
210 м3
Основной материал фасадов
Облицовочный кирпич
Отопление
Индивидуальное
Площадь дома
84 м2
Площадь застройки
104 м2
Подвальное помещение
Да
Показатель компактности здания
-
Приборы учета тепловой энергии
Нет
Пристроенный гараж/крытая автостоянка
Нет
Противопожарная система
Нет
Санузлы
1
Совмещенная кухня-гостиная
Да
Спальни
3
Терраса
Да
Тип фундамента
Ленточный
Толщина внешних стен
400 мм
Толщина внутренних перегородок
130 мм
Улучшенные шумовые характеристики
Да
Вентиляция
Естественная
Веранда
Нет
Водоотведение
Локальные очистные сооружения
Водоснабжение
Центральное
Высота дома
4.89 м
Высота потолков
3 м

Планировка

Фасад дома

Александр

Закажите выезд инженера

Александр

Выездной инженер
Закажите выезд инженера для точной диагностики и профессиональной консультации по инженерным системам. Специалист приедет в удобное время, проведёт осмотр, рассчитает стоимость работ и подберёт оптимальные решения для вашего дома.


    Похожие проекты

    Ипотека и
    рассрочка
    Загородный дом АС-263
    Стоимость от:
    8 677 440
    Проект от: 52 200
    Этажей 2
    Санузлы 3
    Спальни 2
    Смотреть
    Ипотека и
    рассрочка
    Каркасный дом. Проект К — 70.
    Стоимость от:
    3 468 300
    Проект от: 27 000
    Этажей 1
    Санузлы 1
    Спальни 2
    Смотреть
    Ипотека и
    рассрочка
    Модульный дом FL 65 (СТ65)
    Стоимость от:
    4 851 990
    Проект от: 39 150
    Этажей 1
    Санузлы 1
    Спальни 3
    Смотреть
    Ипотека и
    рассрочка
    Счастье
    Стоимость от:
    17 234 640
    Проект от: 112 950
    Этажей 2
    Санузлы 3
    Спальни 4
    Смотреть
    Ипотека и
    рассрочка
    Каменный проект дома «Орион»
    Стоимость от:
    9 776 400
    Проект от: 60 750
    Этажей 2
    Санузлы 2
    Спальни 3
    Смотреть
    Ипотека и
    рассрочка
    Одноэтажный коттедж «БРИЗ-33»
    Стоимость от:
    9 786 260
    Проект от: 55 350
    Этажей 1
    Санузлы 1
    Спальни 3
    Смотреть

    Как узнать стоимость дома

    back
    Оставляете заявку
    Вы заполняете форму на сайте или звоните нам. Менеджер Лайвкрафт связывается с вами для уточнения деталей: тип дома, площадь, материалы, участок строительства.
    back
    Консультация и подбор решения
    Наш специалист помогает выбрать оптимальный тип дома и конструкцию с учётом бюджета, сроков и целей — будь то дом для постоянного проживания или дача.
    back
    Расчёт предварительной стоимости
    Инженер делает первичный расчёт стоимости строительства по вашим параметрам: фундамент, коробка, кровля, отделка. Вы получаете смету с разбивкой по этапам.
    back
    Корректировка и утверждение сметы
    При необходимости вносим изменения — например, замену материалов или сокращение этапов. После согласования формируется окончательная фиксированная смета.
    back
    Заключение договора и старт работ
    После утверждения сметы заключаем официальный договор с гарантией. Вы получаете прозрачный график и точную стоимость — без скрытых расходов.

    Заказать конусльтацию по:Проект Индивидуальный жилой дом ОС-23-30

    Фото 1 Проект Индивидуальный жилой дом ОС-23-30


      Наши
      контакты

      Дмитров
      Опорный проезд 28Б
      (индустриальный парк Ниагара)
      9:00 до 18:00

      Корзина