4.9
Рейтинг на основании 120 отзывов
Дмитров
Опорный проезд 28Б
(индустриальный парк Ниагара)
Бренд "Дмитров-Дело" c 2008 года на рынке строительства в Дмитрове
Звоните 9:00 до 18:00 8 (915) 055-33-61
Бренд "Дмитров-Дело" c 2008 года на рынке строительства в Дмитрове

Проект мансардного дома №14

Стоимость проекта от:
54 900 ₽
БЕСПЛАТНО! ПРИ ЗАКАЗЕ СТРОИТЕЛЬСТВА
Стоимость строительства от:
9 125 280 ₽
Артикул ART-19309
Дата 26.12.2025
Архитектурный стиль Классический
Количество надземных этажей 2
Круглогодичное проживание Да
Площадь дома 122 м2
Санузлы 2
Спальни 5

Описание

Добро пожаловать в уютную «Классическую» мансардную виллу № 14 – идеальное сочетание традиционного стиля и современных удобств. Уже при первом взгляде вы ощутите неповторимое волшебство двускатной крыши, которое создаёт особое ощущение защищённости и тепла. Непосредственно с основания, выполненные из газобетонных блоков, дарят непревзойденную тепло- и звукоизоляцию, делая ваш дом комфортным в любое время года и исключительным уединённым местом для отдыха и семейных встреч. Дом состоит из двух надземных этажей, где каждый квадратный метр продуман до мелочей: от светлых, просторных комнат до аккуратных светлых кухонь с высококачественной бытовой техникой. Входная дверь открывает пространство уютной веранды, где можно наслаждаться свежим воздухом и тёплым летним солнцем, не выходя из дома. Все помещения спроектированы с учётом максимального комфорта и практичности: просторные гардеробные, тихие зоны отдыха, удобные санузлы, а также продуманная планировка – что важно для круглогодичного проживания. Мансардная веранда и традиционный двускатный фасад придают дому особый шарм, а чистый, классический дизайн делает его универсальным и подходящим для любой среды – от исторических районов до современной городской среды. Этот дом – воплощение благородства, уюта и надёжности, где каждый сможет почувствовать себя дома. Приглашаем вас стать частью этого уютного уголка и открыть для себя новый уровень гармоничного проживания.

Характеристики дома

Архитектурный стиль
Автоматизированное регулирование параметров теплоносителя
Нет
Балконы/лоджии
Отсутствуют
Чердачное помещение
Нет
Датчики протечки воды
Нет
Эксплуатируемая или зеленая кровля
Нет
Электроснабжение
Индивидуальное
Газоснабжение
Индивидуальное
Изоляция воздушного шума
Нет
Камин
Нет
Класс энергоэффективности
-
Класс энергосбережения
-
Количество надземных этажей
2
Круглогодичное проживание
Да
Материал кровли
Металлочерепица
Материал перекрытий
Сборные железобетонные многопустотные плиты
Материал внешних стен
Материал внутренних перегородок
Пенобетонные
Модульное строительство с конструкциями заводского изготовления
Нет
Объем надземной части
720 м3
Основной материал фасадов
Облицовочный кирпич
Отопление
Индивидуальное
Площадь дома
122 м2
Площадь застройки
95 м2
Подвальное помещение
Нет
Показатель компактности здания
-
Приборы учета тепловой энергии
Нет
Пристроенный гараж/крытая автостоянка
Нет
Противопожарная система
Нет
Санузлы
2
Совмещенная кухня-гостиная
Да
Спальни
5
Терраса
Нет
Тип фундамента
Ленточный
Тип кровли
Толщина внешних стен
550 мм
Толщина внутренних перегородок
100 мм
Улучшенные шумовые характеристики
Нет
Вентиляция
Естественная
Веранда
Да
Водоотведение
Локальные очистные сооружения
Водоснабжение
Индивидуальное
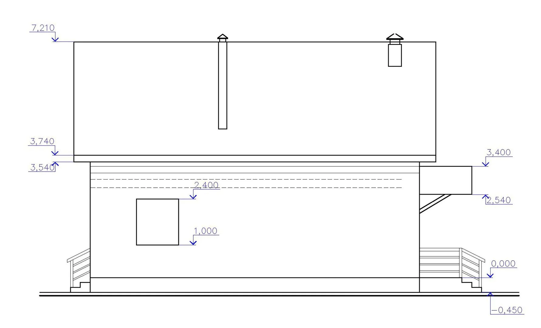
Высота дома
7.6 м
Высота потолков
2.75 м

Планировка

Фасад дома

Александр

Закажите выезд инженера

Александр

Выездной инженер
Закажите выезд инженера для точной диагностики и профессиональной консультации по инженерным системам. Специалист приедет в удобное время, проведёт осмотр, рассчитает стоимость работ и подберёт оптимальные решения для вашего дома.


    Похожие проекты

    Ипотека и
    рассрочка
    Двухэтажный дом КОМФОРТ 250 С БАННЫМ КОМПЛЕКСОМ
    Стоимость от:
    16 441 920
    Проект от: 111 600
    Этажей 2
    Санузлы 5
    Спальни 4
    Смотреть
    Ипотека и
    рассрочка
    Гранит 101
    Стоимость от:
    8 403 780
    Проект от: 53 550
    Этажей 1
    Санузлы 1
    Спальни 3
    Смотреть
    Ипотека и
    рассрочка
    Проект №3
    Стоимость от:
    7 244 820
    Проект от: 40 950
    Этажей 1
    Санузлы 2
    Спальни 3
    Смотреть
    Ипотека и
    рассрочка
    МК-01-2024 одноэтажный дом площадь 75 кв.м.
    Стоимость от:
    5 639 700
    Проект от: 33 750
    Этажей 1
    Санузлы 1
    Спальни 2
    Смотреть
    Ипотека и
    рассрочка
    Одноэтажный дом Швеция 130
    Стоимость от:
    11 107 250
    Проект от: 78 750
    Этажей 1
    Санузлы 2
    Спальни 4
    Смотреть
    Ипотека и
    рассрочка
    Невонка
    Стоимость от:
    8 187 630
    Проект от: 58 050
    Этажей 1
    Санузлы 1
    Спальни 3
    Смотреть

    Как узнать стоимость дома

    back
    Оставляете заявку
    Вы заполняете форму на сайте или звоните нам. Менеджер Лайвкрафт связывается с вами для уточнения деталей: тип дома, площадь, материалы, участок строительства.
    back
    Консультация и подбор решения
    Наш специалист помогает выбрать оптимальный тип дома и конструкцию с учётом бюджета, сроков и целей — будь то дом для постоянного проживания или дача.
    back
    Расчёт предварительной стоимости
    Инженер делает первичный расчёт стоимости строительства по вашим параметрам: фундамент, коробка, кровля, отделка. Вы получаете смету с разбивкой по этапам.
    back
    Корректировка и утверждение сметы
    При необходимости вносим изменения — например, замену материалов или сокращение этапов. После согласования формируется окончательная фиксированная смета.
    back
    Заключение договора и старт работ
    После утверждения сметы заключаем официальный договор с гарантией. Вы получаете прозрачный график и точную стоимость — без скрытых расходов.

    Заказать конусльтацию по:Проект мансардного дома №14

    Фото 1 Проект мансардного дома №14


      Наши
      контакты

      Дмитров
      Опорный проезд 28Б
      (индустриальный парк Ниагара)
      9:00 до 18:00

      Корзина